・
□□□□□□□□□□□□□□□□□□□□□□□□□□□□□□□□□□□□□□□
いつも弊社ホームページをご覧頂き誠にありがとうございます。
パールハイツ桜上水はお陰様で販売を終了致しました。弊社問合せフォームにてご要望頂けましたら、当お部屋でキャンセル等が発生した場合、他のお部屋が販売になりました際にご紹介させて頂きます。
不動産Agent 六棒株式会社
TEL:03‐5413‐5336
□□□□□□□□□□□□□□□□□□□□□□□□□□□□□□□□□□□□□□□
・
本日は京王線「桜上水」駅より徒歩8分リノベーションマンション
パールハイツ桜上水 のお部屋をご案内致します!
京王線の急行停車駅『桜上水』駅よりリノベーションマンション『パールハイツ桜上水』のご紹介です!
アクセス
京王線「桜上水」駅 徒歩8分
京王線「上北沢」駅 徒歩9分
京王線は新宿から八王子を結ぶ鉄道路線。桜上水から2駅先の明大前までは電車で約3分、新宿までは約11分と都心へのアクセスも申し分無し(*´˘`*)♡落ち着いた住宅街が広がるベットタウンです♪♪
街をご案内する前にまずはこちらをご覧ください!
□□□□□□□□□□□□□□□□□□□□□□□□□□□□□□□□□□□□□□□
★★★【パールハイツ桜上水】周辺のハザードマップをCHECK!!★★★
お部屋の記事を読む前に…!周辺のハザードマップをチェックしておきませんか!
パールハイツ桜上水のハザードマップは★こちらから…どうぞ★
□□□□□□□□□□□□□□□□□□□□□□□□□□□□□□□□□□□□□□□
桜上水駅の駅前には商店街も広がっています。スーパー、ドラッグストア、飲食店にクリニックと必要なお店は揃っています(o´∀`ノ
桜上水駅から商店街を北に進むと、甲州街道♪♪甲州街道を渡って、左折すると今回ご紹介させていただくマンションです。
マンションの北側には神田川♪♪井の頭池に源を発し、隅田川に合流する神田川。かつては「神田上水」を取水し、東京を築き上げた立役者です (●´∀`)
歩いて約10分ほどの所には、『塚山公園』☆
緑が溢れるステキな公園の中には、お茶室や竪穴式住居跡も(笑)昭和7年頃から土器や石器が出土し、その後多くの竪穴式住居跡が発見されました。縄文時代からの由緒正しい住宅街です (●´∀`)
こちらの物件のお買い物環境はと言いますと、駅前にスーパー『キッチンコート』♪♪徒歩7分、甲州街道沿いに『いなげや』。お隣のマンション1Fにコンビニとバッチリの環境です♪♪お隣の上北沢駅前のサミットも充分徒歩圏内です。
反対側のお隣は、『ロイヤル病院』。お隣が病院というのは安心です(´∀`*)
こちらが『パールハイツ桜上水』。
昭和47年築、総世帯数48戸。2005年に大規模修繕工事が実施されています。甲州街道沿いに建つタイル張り外観のマンションです。
前面道路は、4×4車線の甲州街道です。
エントランスは甲州街道に面しておらず、道を1本入ったところにあります。こちらがマンションのエントランスです。
エントランスホールは、綺麗に管理されている印象の明るい空間♪♪通勤の管理人さんもいらっしゃって管理体制は良好です。
エントランスホールの奥、こちらのエレベーターでお部屋へと向かいます。
ここで間取り図のご紹介です。
※間取り図は別タブで開きますので、確認しながらご覧いただくことが出来ます。
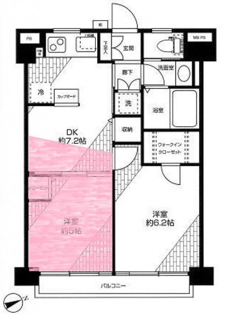
今回ご紹介するお部屋は8階、専有面積41.60㎡の1LDK。お一人暮らしやDINKSの方にお勧めのお部屋です。バルコニーからの眺めはなかなからしいですよ。楽しみですね♬
では、早速行ってみましょう!
玄関の照明には人感センサーが付けられているので、帰れば自動的に照明のスイッチをONにしてくれます。両手いっぱいに荷物を抱え、暗闇の中スイッチを探したりすることももうありません。
シューズボックスは広~いウォークインタイプ!!!大量の靴以外にもコートなどをかけておけますし、キャリーケースなどを置いておくことだってできますよ。
こちらは約10.5帖のリビング・ダイニング・キッチン。
東向きバルコニーに面したお部屋です。縦長で、キッチン、ダイニング、リビングと並べるオーソドックスなタイプ。サイズに気を付ければ家具のレイアウトに悩むことはなさそうです。壁に貼られたアクセントパネルはただのオシャレじゃありません。「エコカラット」と言って吸臭や調湿の機能を持った優れものなんですよ。
こちらは約6帖の洋室。
LDKと同じバルコニーに面した明るいお部屋です。内装がシンプルでアレンジの幅も広そうですね。柱などの出っ張りもないので、ベッドも少し大きめのサイズにできるかもしれませんよ。収納は大きなウォークインクローゼット!!!
LDKとの仕切り扉は引き込み式なので、開放してつなげて使うことも可能。合わせれば約16.5帖!大きなワンルームって感じです。普段は開けておいて、必要に応じて閉めるのが個人的にはおススメです。
カウンターキッチンは大きく分けて2種類あって、こちらのように立ち上がりやコンロ前の壁があるセミオープンタイプと、フルフラットでコンロ前もガラス製衝立のように視界を遮らないものを使用したフルオープンタイプ。開放的!ってイメージはフルオープンの方で、こちらは解放感と個室感のバランスをとったキッチンです。
廊下へ戻って…
洗面室には洗面化粧台、洗濯機スペース、浴室がまとまり脱衣所も兼ねています。洗面化粧台は三面鏡付。裏がキャビネットになっているので、洗面周りに散らかりがちなものを片付けるのに便利ですよ。水栓が洗面台と一体化しているので洗面ボウル周りはスッキリ。ヘッドが伸びるので使い勝手も問題ありません。
追焚き機能付きのユニットバスはスイッチ一つでお風呂が沸かせ、そのまま保温もしてくれるのでいつでも温かいお風呂に入ることができますよ。雨の日のお洗濯物乾燥に便利な浴室換気乾燥機付き!
トイレはINAX製の温水洗浄機能付き。トイレットペーパーや掃除道具を収納するのに便利な吊戸棚も付いています。
それではお待たせしました、最後はバルコニーからの眺望をご紹介!
いや~見事ですね!右から左までこんなに開放的な眺めなかなかないですよ!正面には新宿のビル群も望め、夜景も期待できそうですね♬
・
以上でパールハイツ桜上水のご案内を終わります。
いかがでしたでしょうか??
桜上水駅から徒歩8分のマンションです。
リノベーション済みという事で室内はとてもキレイですよ (っ・ω・)っ
内見のご予約やご質問などございましたらお気軽にお問い合わせくださいませ。
ご連絡お待ちしております。
弊社、不動産Agent 六棒株式会社では、一般仲介物件は仲介手数料20%~30%OFF!
にてお取り扱いしております!
なるべく沢山のお部屋をホームページに掲載したいと思っておりますが、時間的成約もございますので、残念ながらご紹介できるお部屋の一部しか掲載できておりません。
このホームページに掲載中のお部屋、その他サイト等で気になるお部屋、街を歩いていて気になったマンション等々ございましたら是非、弊社営業部までご相談ください!
~不動産Agent 六棒株式会社の特徴~
・一般仲介物件の仲介手数料は20%~30%OFFにてご案内中です!
・住宅ローンに自信あります!
・頭金10万円より購入できます。是非ご相談下さい!
・お部屋のご見学は車で2~3件まとめて案内します!
・物件数3000件以上、新築戸建、リノベ物件も多数ご用意しております!
過去に販売していたお部屋の概要 こちらのお部屋の販売は終了いたしました
| 価格 | -万円 |
| 面積 | 50.22㎡ |
| 間取り | 2bedrooms(2LDK) |
| 管理費 | 月額:12,320円 修繕積立金:11,810円 |
| 所在階 | 2階 |
| お問い合わせ・ご内見のご予約はこちらからお気軽にどうぞ | |
ここで間取り図のご紹介です。
※間取り図は別タブで開きますので、確認しながらご覧頂く事が出来ます。
□□□□□□□□□□□□□□□□□□□□□□□□□□□□□□□□□□□□□□□
★★★【パールハイツ桜上水】周辺のハザードマップをCHECK!!★★★
お部屋の記事を読む前に…!周辺のハザードマップをチェックしておきませんか!
パールハイツ桜上水のハザードマップは★こちらから…どうぞ★
□□□□□□□□□□□□□□□□□□□□□□□□□□□□□□□□□□□□□□□
今回ご紹介するお部屋は2階、間取りは2LDK、専有面積は50.22㎡となります。おひとり暮らしからファミリーまで幅広くお使いいただけるお部屋です。では、早速行ってみましょう!
2階なので、エレベーターを待っていられない時は階段でもササッと行けちゃいます。
広めの共用部なので開放感があります。それでは、外廊下を進みお部屋へGO!
趣のあるドアですね。マンションの玄関ドアは共用部ですので勝手に仕様を変えられない場所です。ドアの横にはTVモニター付きインターホンが設置されています。
しっかりとした、上がり框(かまち)があります。上がり框があると靴を履くときに腰かけたりできますし、【内と外】感がグッとあがりますね。
玄関から続く廊下は右に折れていて、宅配便やフードデリバリーなどの受け取り時にお部屋の中が見えないようになっています。
人感センサーが自動的にライトを点けてくれるので、段差につまづくこともありません。
玄関を上がったところに、トールタイプのシューズボックスがあります。
暗くなりがちな玄関ですが、本物件には小窓があります。開けることもできるので、換気にも役立ちます。
では、お部屋へ。
わあ。明るーい。
約11.2帖のLDKです。LDKといってもキッチンはLDから独立した感じの壁付けですね。
LDKは東向きバルコニーに面していて明るいですね。東向きは朝日が入ってくるので爽やかな朝が迎えられます。まずは、洋室との仕切り扉を閉めた状態で。
キッチン近くの壁には玄関のインターホンのモニター、お料理中に宅配便が来ても余裕で対応できます。
調理台の後ろには冷蔵庫や家電ラックのスペースや収納棚があります。キッチンに窓があるのも嬉しいですね。もちろん、お料理をする際は換気扇を忘れずに使いましょう!
明るい色パネルを使った調理台なので、キッチン内が広く感じます。
収納は吊戸棚と調理台・シンク下のスライドキャビネット。
引き出しタイプのスライドキャビネットは開口部が大きく、大きな物でも楽に出し入れ可能です。ぎっしり詰めてしまっても、パッと取り出すことができます。
ビルトイン食洗器に、浄水機能付きシャワー水栓。
設備が完備されているので快適に暮らせそうです。
グリル付の三口ガスコンロのシステムキッチンです。
先ほどの仕切っていたLDKのスライドドアを開けると、、、
洋室が登場します。
壁と同色の白いクローゼットが見えますか?
開けて見ると結構大きなクローゼットです。
洋室とLDKの仕切りは引き戸なので開けておけば、LDKとつなげて使うことも可能です。生活スタイルに合わせてお部屋として区切ったり、LDKと一体化させたり変化させられます。単純に模様替えして楽しむこともできますね。
では、もう一つの玄関側の洋室へ行ってみましょう。
ハリがあるので、真四角のお部屋ではないですね。凹んだ部分は造り付けの収納棚になっています。見せるタイプの収納として使うか、突っ張り棒などで目隠しのタペストリーを飾っても良いですね。
お部屋にある西向きの窓の外は、、、こんな感じです。(ノーコメントで、察してください。)採光、通風は問題なさそうです。窓があって換気できるだけでも嬉しいものです。
トイレは玄関横のスライドドアの中にあります。出がけに急にトイレに行きたくなった時や、帰ってきてすぐトイレに駆け込みたい時に助かる位置です。
吊戸棚は、梁のおかげで低めに設置されているので背が低い人に優しいです。
洗面室には洗面台、洗濯機スペース、浴室があります。
洗濯機スペースの上には吊戸棚も付いているので洗剤など置けそうです。
収納力バッチリの洗面化粧台。タオル掛けが既に設置されているのも、ナイス。
ノズルが伸びるので、シンクの掃除も朝シャンも簡単にできちゃいます。
明るく、清潔感のある浴室。
ちょっと、夜のリラックスタイムに「まぶしすぎるわ~」という時には、
切換ボタンで照明の色が温かい雰囲気に変えられますので、ご安心を。
お風呂は自動お湯はりや追い炊きもできますし、浴室は暖房・涼風・乾燥・換気がパネルスイッチを押すだけでできます。快適、快適。
最後はバルコニーへ。LDKと洋室の両方からアプローチできます。
4.34㎡、東向きのバルコニーです。
正直、バルコニーというより室外機置場に近いかも知れません。
【北方向】本物件は2階ですが、周りも2~3階建てが多く開放的な眺望です。
【南方向】視界を塞ぐような大きな建物は見当たらないですね。
・
以上でパールハイツ桜上水のご案内を終わります。
いかがでしたでしょうか??
桜上水駅から徒歩8分のマンションです。
リノベーション済みという事で室内はとてもキレイですよ (っ・ω・)っ
内見のご予約やご質問などございましたらお気軽にお問い合わせくださいませ。
ご連絡お待ちしております。
□□□□□□□□□□□□□□□□□□□□□□□□□□□□□□□□□□□□□□□
★★★【パールハイツ桜上水】周辺のハザードマップをCHECK!!★★★
お部屋のご購入前に…!周辺のハザードマップをチェックしておきませんか!
パールハイツ桜上水のハザードマップは★こちらから…どうぞ★
□□□□□□□□□□□□□□□□□□□□□□□□□□□□□□□□□□□□□□□
弊社、不動産Agent 六棒株式会社では、一般仲介物件は仲介手数料20%~30%OFF!
にてお取り扱いしております!
なるべく沢山のお部屋をホームページに掲載したいと思っておりますが、時間的成約もございますので、残念ながらご紹介できるお部屋の一部しか掲載できておりません。
このホームページに掲載中のお部屋、その他サイト等で気になるお部屋、街を歩いていて気になったマンション等々ございましたら是非、弊社営業部までご相談ください!
~不動産Agent 六棒株式会社の特徴~
・一般仲介物件の仲介手数料は20%~30%OFFにてご案内中です!
・住宅ローンに自信あります!
・頭金10万円より購入できます。是非ご相談下さい!
・お部屋のご見学は車で2~3件まとめて案内します!
・物件数3000件以上、新築戸建、リノベ物件も多数ご用意しております!
過去に販売していたお部屋の概要 こちらのお部屋の販売は終了いたしました
| 価格 | -万円 |
| 面積 | 42.53㎡ |
| 間取り | 2bedrooms(2LDK) |
| 管理費 | 月額:10,860円 修繕積立金:10,400円 |
| 所在階 | 9F |
| お問い合わせ・ご内見のご予約はこちらからお気軽にどうぞ | |
ここで間取り図のご紹介です。
※間取り図は別タブで開きますので、確認しながらご覧頂く事が出来ます。
□□□□□□□□□□□□□□□□□□□□□□□□□□□□□□□□□□□□□□□
★★★【パールハイツ桜上水】周辺のハザードマップをCHECK!!★★★
お部屋の記事を読む前に…!周辺のハザードマップをチェックしておきませんか!
パールハイツ桜上水のハザードマップは★こちらから…どうぞ★
□□□□□□□□□□□□□□□□□□□□□□□□□□□□□□□□□□□□□□□
今回ご紹介するお部屋は9階、間取りは2LDK、専有面積は42.53㎡となります。
では、早速行ってみましょう!
エレベーターで9階まで上がり、明るい外廊下を進むとお部屋に到着です。
玄関ドア横にはTVモニター付きインターホンが設置されて、お部屋の中から訪問者を確認する事が出来ます。応対するかを映像を見てから決められるので、防犯面からも安心ですね。
玄関を入ると、白を基調とした明るい雰囲気。お天気が良ければ、突き当りのスリットガラスから光が入ってもっと明るくなりそうです。
シューズボックスはトールタイプ。真ん中部分はカウンターになっていて、いろいろ飾ってインテリアを楽しむ事が出来ます。鍵やコインなど置く場合は、洒落たトレイなどを使うと雑然とした感じにならなくて済みますよ。シューズボックスの棚は可動式で、調節すればブーツなど背の高い靴でも収納可能です。
では、お部屋へ…
こちらはリビング・ダイニング・キッチン+南東側の洋室。仕切り戸を開けてバルコニーに面した二部屋をつなげる事によって、ワイドスパンのとても明るいお部屋になっています。ご家族構成やライフスタイルによって、様々な使い方が出来るのは嬉しいですね。
洋室側から…
引込式の扉開けた時もすっきり。引き出して来て扉を閉めれば…
本来の洋室に戻ります。シンプルな内装で、家具やカーテンも幅広く選ぶ事が出来そうですね。バルコニーに面した大きな窓が明るいお部屋です。
収納は間口が広くて使いやすそうなクローゼット。奥行きも深く収納力も抜群です。キャリーバッグやスーツケースなどの嵩張る物も難なく収納可能。衣装ケースなどで収納力をアップするのもアリですね。
LDKは、ダイニングとリビングのセットを別々に置くには少し狭いかもしれませんね。お部屋に余裕があるなら洋室をリビングにするのもいいですし、そうでなければダイニング、リビング兼用の家具を置くのもいいと思います。
キッチンは壁付けキッチン。場所を取らずにお部屋を広く使えるタイプです。キッチン内が目立つので、出来ればいつも綺麗にしておきたいですね。
収納は調理台下のスライドキャビネットと吊り扉。引き出し式のスライドキャビネットは開口部が大きく、大きな物の出し入れも楽々です。物をぎっしり詰めてしまっても中身が確認しやすいのも便利ですよ。
コンロは3口。タイマーや温度設定も可能な高機能タイプです。時代はここまで進んでいたんですね。
グリルって魚グリルと呼ばれるほど魚イメージが強いと思いますが、どんな食材でも美味しく調理出来るんですよ。オーブンみたいな物ですからね。調べればレシピもたくさんありますので、ご興味のある方は是非調べてみて下さい。
水栓は浄水機能付きシャワー水栓。お料理にお茶にと気軽に美味しいお水を使えますね。冷蔵庫がお部屋に出っ張らないように、専用のスペースが確保されていました。サイズにはご注意を。
廊下へ戻って、次のお部屋へ…
こちらは北西側の洋室。入口が引き戸になっているのでデッドスペースも出来ず、スペースを無駄なく使えるお部屋です。
窓は北西向き。FIX窓になっていて開ける事は出来ないようです。先程歩いて来た明るい外廊下に面しているので、光は入って来ますね。
収納は、隣の洋室と同じタイプのクローゼットとオーブンの収納棚。
次は、洗面室へ…
洗面室には洗面台の他に洗濯機スペース、浴室、トイレがまとまっていて、脱衣所も兼ねています。入浴中にお洗濯をすれば効率的ですね。洗面台は三面鏡付き。上部の照明のおかげで鏡を使う時に影になったりする事もありません。
収納は三面鏡裏のキャビネットと洗面台下。大小様々なタイプの収納で、大きな物から細かい物までバランスよく収納する事が出来そうです。
水洗はハンドシャワータイプ。ビルドインですっきりしていますが、ヘッドが伸びるので洗面ボウルを流したりにも便利ですよ。
浴室は木目のアクセントパネルを使った落ち着いた雰囲気。バスタイムをリラックスして過ごせそうです。
浴室換気乾燥機は浴室の換気の他に、お洗濯物乾燥や浴室暖房など様々な使い方があります。使っている方は少ないかもしれませんが「涼風」ボタンを使えば暑い夏も快適にお風呂に入れますよ。残念ながら冷房ではありませんが、濡れた頭を風が心地良く冷やしてくれます。
ゆったり浸かれる広々浴槽。
追い焚き機能付きで「ふろ自動」ボタン一つでお風呂を沸かす事が出来ます。そのまま保温もしてくれるので、いつでも温かいお風呂に入れますよ。長風呂しても安心ですね。
次はトイレへ…
トイレには洗浄便座付き。INAX製のシャワートイレです。洗浄便座の国産第一号は伊奈陶器、現在のINAXさんなんですよ。
それでは、最後はバルコニーへ出てみましょう。窓は二重サッシ!防音をはじめ防熱、防寒、防犯など様々な働きをしてくれます。
広さは4.34㎡、二部屋分の幅を持つバルコニーです。奥行きがあまりないので、高い所が苦手な方は少し怖いかもしれませんね。
外には開放的な眺めが広がっています。右側には甲州街道が通っていますが音はそれ程気にならないような?雨だからでしょうか?どちらにしても室内は二重サッシに守られているのでご安心を!
・
以上でパールハイツ桜上水のご案内を終わります。
いかがでしたでしょうか??
桜上水駅から徒歩8分のマンションです。
リノベーション済みという事で室内はとてもキレイですよ (っ・ω・)っ
内見のご予約やご質問などございましたらお気軽にお問い合わせくださいませ。
ご連絡お待ちしております。
□□□□□□□□□□□□□□□□□□□□□□□□□□□□□□□□□□□□□□□
★★★【パールハイツ桜上水】周辺のハザードマップをCHECK!!★★★
お部屋のご購入前に…!周辺のハザードマップをチェックしておきませんか!
パールハイツ桜上水のハザードマップは★こちらから…どうぞ★
□□□□□□□□□□□□□□□□□□□□□□□□□□□□□□□□□□□□□□□
弊社、不動産Agent 六棒株式会社では、
□リノベーションマンションはほぼ全て仲介手数料無料!
□その他一般仲介物件は仲介手数料20%~30%OFF!
にてお取り扱いしております!※弊社の「Agent Fee=仲介手数料」についてはご案内、ご面談の際に営業担当者よりご説明いたします!
なるべく沢山のお部屋をホームページに掲載したいと思っておりますが、時間的成約もございますので、残念ながらご紹介できるお部屋の一部しか掲載できておりません。
このホームページに掲載中のお部屋、その他サイト等で気になるお部屋、街を歩いていて気になったマンション等々ございましたら是非、弊社営業部までご相談ください!
~不動産Agent 六棒株式会社の特徴~
・一般仲介物件の仲介手数料は20%~30%OFFにてご案内中です!
・リノベーションマンションについてはほぼ全て仲介手数料無料です!
・住宅ローンに自信あります!
・頭金10万円より購入できます。是非ご相談下さい!
・お部屋のご見学は車で2~3件まとめて案内します!
・物件数3000件以上、新築戸建、リノベ物件も多数ご用意しております!
過去に販売していたお部屋の概要 こちらのお部屋の販売は終了いたしました
| 価格 | -万円 |
| 面積 | 50.22㎡ |
| 間取り | 2bedrooms(2LDK) |
| 管理費 | 月額:12,320円 修繕積立金:11,810円 |
| 所在階 | 9階 |
| お問い合わせ・ご内見のご予約はこちらからお気軽にどうぞ | |
ここで間取り図のご紹介です。
※間取り図は別タブで開きますので、確認しながらご覧頂く事が出来ます。
□□□□□□□□□□□□□□□□□□□□□□□□□□□□□□□□□□□□□□□
★★★【パールハイツ桜上水】周辺のハザードマップをCHECK!!★★★
お部屋の記事を読む前に…!周辺のハザードマップをチェックしておきませんか!
パールハイツ桜上水のハザードマップは★こちらから…どうぞ★
□□□□□□□□□□□□□□□□□□□□□□□□□□□□□□□□□□□□□□□
今回ご紹介するお部屋は9階、間取りは2LDK、専有面積は50.22㎡。三方角部屋で、お一人暮らしの方からファミリーまで幅広く使えるお部屋です。では、早速行ってみましょう!
エレベーターで9階まで上がり…
外廊下を進むとお部屋に到着です。仕切りが設置されていて雨風や人目から守ってくれていますよ。すりガラスなので明るくていいですね。
玄関ドア横にはモニター付きインターホンが設置されて、お部屋の中から訪問者を確認する事が出来ます。応対するかを、映像でチェックしてから決められるのは便利ですよね。ドアスコープは、向こうからも見られてる気がしてちょっと苦手です^^;)
玄関から続く廊下は右に折れていて、宅配便やフードデリバリーなどの受け取り時にお部屋の中が見えないようになっています。ひと昔前と比べると利用の機会も増えてますからね。人感センサーが自動的にライトを点けてくれるので、夜暗い中手探りでスイッチを探す必要はもうありません。消し忘れも防げて一石二鳥♬
シューズボックスの扉に付けられた姿見は、お出かけ前の身だしなみチェックに活躍してくれそうです。ドアには安心のダブルロック。複数の鍵は、開けづらくするのもありますが、狙われづらくする効果も大きいらしいですよ。
シューズボックスはトールタイプが二つ。収納力は抜群!可動棚を調節すればブーツなどでもそのまま収納可能です。
右に折れた廊下は木目を生かしたフローリングや建具で落ち着いた雰囲気。突き当りのドアまで伸びています。
では、お部屋の中へ…
こちらは約10帖のリビング・ダイニング・キッチン+約4.7帖の洋室。仕切り扉を開けて二部屋をつなげた様子です。ライフスタイルや状況に応じて、いろいろな使い方が出来るのは有り難いですね。南東向きのバルコニーに面した明るいお部屋です。
LDK自体は8の字のように真ん中がくびれた形になっていて、一方にはキッチン、残りがリビングダイニングになります。
仕切り戸を閉めれば…
本来の約4.7帖の洋室に戻ります。
収納はクローゼットと収納棚。クローゼットは間口が広くて使いやすそうですね。中が見やすい収納を使うと、無駄な買い物を減らせるらしいですよ。
キッチンは奥まった所にあり、ほとんど独立タイプと言っていいと思います。リビングからはキッチン内があまり見えず、人目を気にせず料理に集中出来るのは、料理好きにはたまりません(^^♪
では、キッチン内を見ていきましょう。
明るい色パネルを使った調理台。キッチン内が広く感じます。
収納は吊戸棚と調理台下のスライドキャビネット。引き出しタイプのスライドキャビネットは開口部が大きく、大きな物でも楽に出し入れ可能です。ぎっしり詰めてしまっても、中身の確認が出来るのもいいですよね。
コンロは3口。タイマーや温度設定が可能な高機能タイプです。IHだけかと思ったらガスコンロでもこんな事が出来るようになっていたんですね^^;)世の中どんどん進歩しています。
コンロの下にはグリル付き。お魚グリルなんて呼ばれる事もありますが、野菜でも肉でも何でも焼けるんですよ!我家でもよく、スペアリブやアスパラなんかを焼いて食べています。ただし、使う時は換気扇をお忘れなく!
水栓は浄水機能付きシャワー水栓。切り替えるだけで気軽に美味しいお水を使えます。ノズルが伸びてシンクの掃除も楽々♬
コンロの後ろには冷蔵庫スペースがありました。窓の外はいい眺めですから、窓が少し塞がれちゃうのが残念ですね。
廊下に戻って、次のお部屋へ…
こちらは約5.2帖の洋室。北西向きとはいえ、こちらの窓はほぼ西向きなので十分な明るさがあるお部屋です。一般的に北方向のお部屋は暗いイメージがありますが、実はそんな事はありません。たしかに日射しは期待出来ませんが、前が開けていれば一日を通して安定した光が入って来るので、意外と明るいんですよ。
入口が引き戸なのでデッドスペースも出来ず、お部屋のスペースを無駄なく使う事が出来ますよ。大きなベッドも十分に置ける広さがあります。
こちらの窓も見晴らしがいいですね。収納は先程の洋室と同じタイプです。
次はトイレへ…
洗浄便座付き。INAX製のシャワートイレです。最近では当たり前の洗浄便座ですが、意外に歴史は古く、1964年、前回の東京オリンピックの年にTOTOさんから初めて発売されました。その時はアメリカからの輸入販売でしたが、1967年にINAXさんから国産第一号が発売されます。50年以上の時間をかけて広がって来たんですね(^^)トイレットペーパーなどのストックに便利な吊戸棚も付いていますよ。
次は洗面室へ…
洗面室には洗面台の他に、浴室、洗濯機スペースがまとまっていて、脱衣所も兼ねています。入浴中にお洗濯をすれば効率的ですね。洗濯機スペースの上部には吊戸棚も付いているので、洗剤などはこちらへどうぞ。
洗面台は三面鏡付き。鏡の間に設置された照明のおかげで、鏡を見る時に影になったりする事もありません。
収納は三面鏡裏のキャビネットと洗面台下のスライドキャビネット。細かい物から大きな物までバランスよく収める事が出来そうです。
水洗はハンドシャワータイプ。キッチンの水栓と同じようにヘッドが伸びるので、洗面ボウルを流したりに便利ですよ。
浴室は優しい色合いの木目パネル。リラックス出来て疲れも流れていきそうです。
追い焚き機能付きで「ふろ自動」ボタン一つでお風呂を沸かす事が出来ます。そのまま保温もしてくれるので、いつでも温かいお風呂に入れますよ。長風呂派の方でも、途中でお湯が冷めたりしないので安心です。
ゆったり浸かれる広々浴槽。
浴室換気乾燥機は浴室の換気の他に、お洗濯物乾燥や浴室暖房など様々な使い方があります。「涼風」ボタンを使えば暑い夏のバスタイムも快適に♬ 残念ながら冷房ではありませんが、濡れた頭を風が心地良く冷やしてくれますよ。
それでは、最後はバルコニーのご紹介。
約4.7帖の洋室、LDKのどちらの窓からでも出られます。
広さは4.34㎡、南東向き。二部屋にまたがる幅の広いバルコニーです。奥行きがあまりないので、中央に置かれたエアコン室外機が邪魔で向こう側には行けませんでした。
バルコニーの外はご覧の通り!!とても開放的な眺めが広がっています。雨に煙る感じもまたイイですね♬
・
以上でパールハイツ桜上水のご案内を終わります。
いかがでしたでしょうか??
桜上水駅から徒歩8分のマンションです。
リノベーション済みという事で室内はとてもキレイですよ (っ・ω・)っ
内見のご予約やご質問などございましたらお気軽にお問い合わせくださいませ。
ご連絡お待ちしております。
□□□□□□□□□□□□□□□□□□□□□□□□□□□□□□□□□□□□□□□
★★★【パールハイツ桜上水】周辺のハザードマップをCHECK!!★★★
お部屋のご購入前に…!周辺のハザードマップをチェックしておきませんか!
パールハイツ桜上水のハザードマップは★こちらから…どうぞ★
□□□□□□□□□□□□□□□□□□□□□□□□□□□□□□□□□□□□□□□
弊社、不動産Agent 六棒株式会社では、一般仲介物件は仲介手数料20%~30%OFF!
にてお取り扱いしております!
なるべく沢山のお部屋をホームページに掲載したいと思っておりますが、時間的成約もございますので、残念ながらご紹介できるお部屋の一部しか掲載できておりません。
このホームページに掲載中のお部屋、その他サイト等で気になるお部屋、街を歩いていて気になったマンション等々ございましたら是非、弊社営業部までご相談ください!
~不動産Agent 六棒株式会社の特徴~
・一般仲介物件の仲介手数料は20%~30%OFFにてご案内中です!
・住宅ローンに自信あります!
・頭金10万円より購入できます。是非ご相談下さい!
・お部屋のご見学は車で2~3件まとめて案内します!
・物件数3000件以上、新築戸建、リノベ物件も多数ご用意しております!
過去に販売していたお部屋の概要 このお部屋の販売は終了いたしました。
| 価格 | -万円 |
| 面積 | 42.53㎡ |
| 間取り | 2bedrooms(2LDK) |
| 管理費 | 月額:10,860円 修繕積立金:10,400円 |
| 所在階 | 5F |
| お問い合わせ・ご内見のご予約はこちらからお気軽にどうぞ | |
ここで間取り図のご紹介です。
※間取り図は別タブで開きますので、確認しながらご覧頂く事が出来ます。
□□□□□□□□□□□□□□□□□□□□□□□□□□□□□□□□□□□□□□□
★★★【パールハイツ桜上水】周辺のハザードマップをCHECK!!★★★
お部屋の記事を読む前に…!周辺のハザードマップをチェックしておきませんか!
パールハイツ桜上水のハザードマップは★こちらから…どうぞ★
□□□□□□□□□□□□□□□□□□□□□□□□□□□□□□□□□□□□□□□
今回ご紹介するお部屋は5階、間取りは2LDK、専有面積は42.53㎡となります。
では、早速行ってみましょう!
エレベーターで5階まで上がり、明るい外廊下を進むと玄関に到着です。
ドア横にはテレビモニター付きインターホンが設置されていて、お部屋の中から訪問者をチェックする事が出来ます。『ハイ』と返事をする前に確認すれば、しつこいセールスで嫌な思いをする事もありませんよ。
廊下は短め。その分のスペースをお部屋や収納などにまわしてくれていると思うと、なんか嬉しいですね。
玄関ドアはダブルロック設置で安心です。
人感センサーは中に入っただけで自動的にライトを点けてくれる優れもの。両手が塞がっている時などはほんと助かります。シューズボックスはトールタイプが二つ。天井までの高さで収納力抜群ですよ。
では、まずは正面のドアから…
こちらは約9.1帖のリビング・ダイニング・キッチン+約5.5帖の洋室。奥の洋室の仕切り扉を開けて、リビングの一部としている様子です。二部屋共バルコニーに面した大きな窓があり、明るいお部屋になっていますね。
仕切り扉は引込式になっていて、開けた時もスッキリ。
引き出して閉めれば…
本来の約5.5帖の洋室に戻ります。ご家族構成によってはベッドルームにする事も可能な広さですね。
アクセントパネルはただの飾りではありません。『エコカラット』と言って、湿度調整や匂いを吸収してくれる機能性素材で出来ているんですよ。収納は、ハンガーポールや収納棚などが設置されたマルチクローゼットになっていました。
次はキッチンを…
収納は吊戸棚と調理台下。吊戸棚や扉タイプの収納は奥の方が出し入れしづらいので、収納グッズを上手く使うと良いかもしれませんね。
水栓は浄水機能付きシャワー水栓。切替ひとつで美味しいお水に変わりますので、お料理にお茶にと気軽に使う事が出来ますよ。
3口コンロに片面焼きグリルと調理器具も充実しています。
オープンキッチンですので、調理中は換気扇をお忘れなく! 冷蔵庫スペースは調理台横に確保されていました。すっぽり収まってスッキリしますがサイズには注意が必要です。
冷蔵庫スペースの隣の扉は洗濯機スペース。最近増えてきている、家事動線重視のポジションです。
では、いちど廊下に戻って洗面室へ…
浴室、洗面台、リネン庫、トイレなどがまとまっています。
収納は三面鏡裏のキャビネットと洗面台下。細かい物が多くなりがちな洗面周りには、キャビネットがあると重宝しますよね。
水洗はハンドシャワータイプ。ヘッドが伸びて洗面ボウルを流したりにも便利です。
リネン庫は棚が可動式。使い易いように調整可能です。

次は浴室へ…
ブラウンのアクセントパネルを使った落ち着いた雰囲気の浴室です。リラックスしたい浴室は落ち着けるのが一番ですよね(*´▽`*)
追い焚き機能はスイッチ一つでお風呂を沸かしてくれたり、決めた温度にお湯を保ってくれたり。いつでも温かいお風呂に入れますよ。
ゆったり浸かれる1216サイズの浴槽です。
浴室乾燥機能は浴室の乾燥をはじめ、お洗濯物乾燥や、ヒートショック予防など様々な働きをしてくれます。
次はトイレへ…
吊戸棚はちょっと嬉しい低めの設置。温水洗浄便座はINAX製のシャワートイレです。
では、次のお部屋へ…
こちらは約5.3帖の洋室。引き戸を使用でデッドスペースも作りませんので、お部屋のスペースを無駄なく使う事が出来そうです。シンプルな色使いで、合わせる家具やカーテンを幅広く選べるのがいいですね。
窓の外は外廊下。大きく開かないタイプの窓になっていました。
収納はウォークインクローゼット。両側にハンガーポールが設置されたタイプです。約0.9帖と広く、嵩張るスーツケースなども置いておく事が出来ますよ。
それでは最後はバルコニーのご紹介を…
洋室、LDKのどちらからでも出る事が出来ます。両方共窓は二重サッシになっていましたよ。防音、防犯、遮熱などかなり嬉しいポイントです♬
広さは4.00㎡、南東向きのバルコニーです。お昼にかけては陽当り良好。お洗濯物を干すなら午前中がチャンスですね。
バルコニーからはご覧の通り、開放的な眺めが望めます。写真では分かりづらいですが真ん中辺りには新宿のビル群が一望出来ますよ(^^)
・
以上でパールハイツ桜上水のご案内を終わります。
いかがでしたでしょうか??
桜上水駅から徒歩8分のマンションです。
リノベーション済みという事で室内はとてもキレイですよ (っ・ω・)っ
内見のご予約やご質問などございましたらお気軽にお問い合わせくださいませ。
ご連絡お待ちしております。
□□□□□□□□□□□□□□□□□□□□□□□□□□□□□□□□□□□□□□□
★★★【パールハイツ桜上水】周辺のハザードマップをCHECK!!★★★
お部屋のご購入前に…!周辺のハザードマップをチェックしておきませんか!
パールハイツ桜上水のハザードマップは★こちらから…どうぞ★
□□□□□□□□□□□□□□□□□□□□□□□□□□□□□□□□□□□□□□□
弊社、不動産Agent 六棒株式会社では、
□リノベーションマンションはほぼ全て仲介手数料無料!
□その他一般仲介物件は仲介手数料20%~30%OFF!
にてお取り扱いしております!※弊社の「Agent Fee=仲介手数料」についてはご案内、ご面談の際に営業担当者よりご説明いたします!
なるべく沢山のお部屋をホームページに掲載したいと思っておりますが、時間的成約もございますので、残念ながらご紹介できるお部屋の一部しか掲載できておりません。
このホームページに掲載中のお部屋、その他サイト等で気になるお部屋、街を歩いていて気になったマンション等々ございましたら是非、弊社営業部までご相談ください!
~不動産Agent 六棒株式会社の特徴~
・一般仲介物件の仲介手数料は20%~30%OFFにてご案内中です!
・リノベーションマンションについてはほぼ全て仲介手数料無料です!
・住宅ローンに自信あります!
・頭金10万円より購入できます。是非ご相談下さい!
・お部屋のご見学は車で2~3件まとめて案内します!
・物件数3000件以上、新築戸建、リノベ物件も多数ご用意しております!
過去に販売していたお部屋の概要 このお部屋の販売は終了いたしました。
| 価格 | -万円 |
| 面積 | 42.53㎡ |
| 間取り | 1bedrooms(1LDK) |
| 管理費 | 月額:10,860円 修繕積立金:10,400円 |
| 所在階 | 5F |
| お問い合わせ・ご内見のご予約はこちらからお気軽にどうぞ | |
こちらが今回ご紹介させて頂くお部屋の間取りです。
42.53㎡の2LDK!若いご夫婦にもオススメの物件ですよ! ↓ ↓
間取り図はクリックして頂くと別タブで開きますので、見比べながら進んでいくのもアリですよ!!
エレベーターを降りるとお部屋までは外廊下です。
外気には接しているのですが、ガラス壁が設置してあるので感覚的には内廊下ともいえるかもしれません。
プライバシーを保つことのできる内廊下と、臭いや湿気が籠らない外廊下の良い所を合わせた感じですね!!
玄関前にはモニター付きのインターフォンが付いています。
お部屋の中から廊下の様子を確認できるので、女性でも安心して生活することが出来ますね!
こちらからは相手の顔が見えるけど、向こうからは見えない・・・うーん、これは素晴らしいですね。
玄関には小物等を置いておく事の出来るミニカウンター、省スペースのシューズボックスが付いています。
薄型のシューズボックスは靴を斜めに収納するタイプなので、ブーツを多く持っている人は少し工夫が必要かもしれません。
玄関照明には人と明るさに反応し、自動的に点灯・消灯する人感センサー機能が付いています。
必要な時だけ点灯するので経済的で、つけ忘れや消し忘れの心配もありません。また、スイッチ操作が不要なので、荷物で手がいっぱいの時などもパッと点灯して便利。防犯にも役立ちますよ。
奥に進むとこちらはリビング・ダイニングです。
広さは約8.5帖。フローリングには特殊な加工がしてあるので、写真でも分かるようにピカピカです。一般的なフローリングと比べてもその違いは歴然です。
リノベーション済みという事で、内装もピカピカですね。
こちらは奥の洋室です。
広さは約5.8帖。スライド式のドアを開けていればリビングの一部としても使うことができますし、閉じれば1つの独立したお部屋としても使用することができます。状況に応じて臨機応変に使い分けていきたいですね!
キッチンのご紹介です。
浄水機能付きの水栓はシャワーヘッドになっています。シンクの隅々まで水を流すことが出来るのでお掃除も捗りますし、花瓶などの背の高い陽気に水を注ぐ際にも役立ちます。
コンロは2口のグリル付きガスコンロ。一般的なお料理なら2口あれば十分ですし、グリルも付いていれば特に困ることもないのではないでしょうか??
収納スペースもご覧の通り。
足もとの収納は間仕切りなどを利用してスッキリとまとめあげたいですね。
フライパンなどは重ねて収納するのではなく、ファイルボックス等を使って立てて置くことで、省スペースにもなりますし、取り出しもカンタンですよ!!
このキッチンで一番初めに作られるお料理な何になるのでしょうねぇ・・・
そういえば、引越し蕎麦って噂には聞くのですけど、実際に見たことってありませんよね??ご近所へのあいさつも兼ねてここはお蕎麦にしちゃうのもいいかもしれませんよ!!
それでは玄関に戻って、
次は洗面室です。
洗面化粧台はシンプルな1面鏡タイプです。
ミラーの両サイドに収納スペースが付いているので、歯ブラシなど小物類の置き場所に困ることもなさそうです。
水栓はシャワーヘッドになっているので、洗面台でシャンプーをすることも可能ですよ!!
洗面台のサイドには洗濯機置場があります。洗面室は脱衣所も兼ねているので、脱いだお洋服をすぐに洗濯することが出来ますね。
お部屋のいろんなところに靴下が片方だけ落ちている、なんて事態もなくなるかもしれませんよ!!
洗面台の横にあるドアを開ければトイレになっていますね。
ナショナルのシャワートイレが付いています。
便器の汚れにくさについてはいずれの企業も競って開発しているため、10~20年前の便器をこれまで使っていた方にとってはどのメーカーの便器もかなり洗浄力・汚れの付きにくさが向上しているという印象を受けると思います。
実際洗浄力や汚れの付きにくさについてはほぼ互角になってきているようですよ!!
次はお風呂です。
お風呂には浴室換気乾燥機能が付いているので、洗濯物はこちらに干すことが出来ます。
急な雨が怖い夏の午後、なかなか洗濯物が乾かない梅雨の時期には大活躍の機能です。
冬の寒い時期にはヒートショックを防ぐためにも入浴前に浴室を温めておくもの効果的ですよ!
追い焚き機能もついています。
暑い夏場はシャワーだけで済ませる人でも、涼しくなるとゆっくりと温かいお湯につかりたくなるでしょう。追い炊き機能があればいつでも温かいお風呂に入ることができます。
また、冷え性の女性の場合、帰宅後にお風呂に入っても就寝前にはすっかり身体が冷えていることもあるでしょう。追い炊き機能があれば寝る前にお湯に入って再び身体を温めることもできます。
次はこちら。
リビングにあるドアを開けます。
こちらは約5.5帖の洋室です。
寝室という感じですね。
確認は必要ですが、ダブルベッドも置くことのできる広さだと思いますよ!
大容量のウォークインクローゼット付です。
大量のお洋服を収納しておくことが出来るので、お部屋もスッキリ、面倒な衣替えもあっという間に終りそうですね。
最後にバルコニーです。
防音・断熱効果のある2重サッシが付いていますね。
近くの首都高を走るクルマの音も気にならないレベルに抑えてくれていました!!
冬場は結露対策にもなる2重サッシは本当に良いモノですよ!
さて東向きのバルコニーですが、眺望は問題ないですね!
洗濯物も午前中であればあっという間に乾くのでは?と思います。午後も空が広い為か、とても明るい景色を楽しむことが出来ますよ!!
では、以上でパールハイツ桜上水のご案内を終わります。
いかがでしたでしょうか??
桜上水駅徒歩8分、大型スーパーも徒歩圏内なので暮らしやすい環境だと思います。
内見のご予約やご質問などございましたらお気軽にお問い合わせくださいませ。
ご連絡お待ちしております。
弊社、不動産Agent 六棒株式会社では、
□リノベーションマンションはほぼ全て仲介手数料無料!
□その他一般仲介物件は仲介手数料20%~30%OFF!
にてお取り扱いしております!※弊社の「Agent Fee=仲介手数料」についてはご案内、ご面談の際に営業担当者よりご説明いたします!
なるべく沢山のお部屋をホームページに掲載したいと思っておりますが、時間的成約もございますので、残念ながらご紹介できるお部屋の一部しか掲載できておりません。
このホームページに掲載中のお部屋、その他サイト等で気になるお部屋、街を歩いていて気になったマンション等々ございましたら是非、弊社営業部までご相談ください!
~不動産Agent 六棒株式会社の特徴~
・一般仲介物件の仲介手数料は20%~30%OFFにてご案内中です!
・リノベーションマンションについてはほぼ全て仲介手数料無料です!
・住宅ローンに自信あります!
・頭金10万円より購入できます。是非ご相談下さい!
・お部屋のご見学は車で2~3件まとめて案内します!
・物件数3000件以上、新築戸建、リノベ物件も多数ご用意しております!
過去に販売していたお部屋の概要 このお部屋の販売は終了いたしました。
| 価格 | -万円 |
| 面積 | 42.53㎡ |
| 間取り | 1bedrooms(1LDK) |
| 管理費 | 月額:10,860円 修繕積立金:10,400円 |
| 所在階 | 9階 |
| お問い合わせ・ご内見のご予約はこちらからお気軽にどうぞ | |
こちらが今回ご紹介させて頂くお部屋の間取りです。
42.53㎡の2LDK!若いご夫婦にもオススメの物件ですよ!
間取り図はクリックして頂くと別タブで開きますので、見比べながら進んでいくのもアリですよ!!
エレベーターを降りるとお部屋までは外廊下です。
外気には接しているのですが、ガラス壁が設置してあるので感覚的には内廊下ともいえるかもしれません。
プライバシーを保つことのできる内廊下と、臭いや湿気が籠らない外廊下の良い所を合わせた感じですね!!
お部屋の外にはモニター付きのインターフォンが付いています。
オートロックは付いていないマンションですが、お部屋の中から外を確認できるのは防犯的にも安心できますね!!
セールスや勧誘などは直接顔を合わせることなくお断りすることができますよ!!
それでは中に入って行きましょう!!
玄関にはトールタイプのシューズボックスが付いています。
中の棚の高さは自由に変えることが出来るので、ブーツなどの背の高い履物でも問題なく収納することが出来そうです。
また、照明は人感センサーで自動でオン・オフをしてくれます。
両手が塞がっている時や真っ暗でスイッチを見つけられない時には大助かり、電気の消し忘れが無いので経済的なのも嬉しいですよね。
玄関から奥へ進むと、こちらはリビング・ダイニング・キッチンです。
約8.2帖の広さがあり、窓際の洋室とを仕切っているスライド式のドアを開ければ外からの光も入ってきます。
壁の一部にはエコカラットが使用されています。
エコカラットは現代版の土壁で、湿気を一定に保ちつつ臭いを吸収し、有害なホルムアルデヒドを抑制してくれるという凄い素材です。
リビングには電話用のカウンターが付いているので、パソコン・スマホ用の無線LANもスッキリまとめることが出来そうです。
窓側の洋室へと移動します。
こちらの洋室は約5.1帖。
東向きの窓からは明るい光が入ってきていますね!!
こちらの洋室にはクローゼットが付いています。
収納用の家具を置いてしまうと、どうしても室内が狭くなりがちですが、ビルドインタイプの収納があればそういった心配もないですね!
スライド式のドアを閉めれば1つの独立した洋室としても使用することが出来るので、状況に応じて臨機応変に使い分けていきましょう。
続いてキッチンのご紹介です。
3口のグリル付きガスコンロ、浄水機能付きの水栓が付いています。
水栓はシャワーヘッドになっているので、シンクの隅々まで水を流すことができ、お掃除もカンタン。花瓶のどの背の高い容器に水を注ぐ時にも大活躍です!
収納スペースも問題なさそうですね。
キッチン下の収納は間仕切りがあった方が使いやすいかと思いますので、100均などでラックなどを調達してきて下さいね!!
一番近い八幡山の100均までは徒歩15分程なので散策がてら歩いてみてください!!
吊戸棚は敢えて設置しないことで、キッチンを開放的にしています。
お料理中に家族と会話できない!なんてこともありませんよ!!
背後のスペースに余裕があるので、食器棚を置いても動線に支障はなさそうです。
それでは廊下に戻って・・・
次はトイレです。
定番かつ王道のTOTO製ウォシュレット付きトイレです。
トイレといえばTOTOと言われるほど、トイレを扱うメーカーの中でもTOTOは、一番人気の高いメーカーになります。製品によっては、価格が安いほど人気が高いという事も多いですが、トイレ市場では、より高額なメーカーであるTOTOが圧倒的な人気を誇っています。
吊戸棚も付いているので、トイレットペーパー等の消耗品も人目につくことなく収納することが出来ますね。
洗面室に行ってみましょう。
洗面室は脱衣所も兼ねているなので洗濯機置場もありますね。
脱いだ洋服をすぐに洗うことが出来るので、お部屋の中が脱いだ洗濯物で散らかることもありませんよ。
洗面化粧台は3面鏡タイプです。
3面鏡はほぼ同時に顔の両側が見られるので左右のバランスが分かりやすく、メイクや髭剃りがしやすいです。
鏡を開けると内部は収納棚になっており、歯ブラシや化粧品などの小物類を収納することができます!
洗面台のサイドにはリネン棚が付いています。
タオルや着替えなど、細かく仕切られているので種類ごとにスッキリと収納することが出来そうですね!
次はお風呂です。
お風呂には浴室換気乾燥機能が付いています。
特に冬場は、お風呂から出たときに外気との温度差によって、血圧の変化に影響を及ぼして身体に負担がかかるといわれています。
そこで浴室暖房乾燥機の暖房機能を使えば、急激な温度の変化をやわらげ、未然に事故を防ぐことができるのです。
また、洗濯物を吊しておけばいつでも乾かすことができますし、イヤなにおいやカビを防止するのに役立ちますよ!!
追い焚き機能も付いています。
一人暮らしでも、冬などは入っている間にお湯が冷めることがあるので、追い焚き機能はあった方が助かります。
家族がいるとなおさら入浴に時間がかかるので必要不可欠ですね。お湯を入れて温める方法もありますが、寒いとなかなか温まりませんよ!!
浴室には横長の大きな鏡が付いています。
横に長いミラーには、空間に奥行をもたらし、バスルームが広々とした印象にする効果がありますし、何より浴室が高級感のある雰囲気になるのは嬉しいですね!!
最後にバルコニーです。
2重サッシになっていますね。
首都高4号線に近いマンションですが、防音・断熱効果のある2重サッシがあれば怖いもの無しですね!!
とはいえ、聞こえ方には個人差があると思うので、内見の際にはぜひ耳を澄ましてみてください!!
眺望も問題ないですね!!
東向きになるので、日の光が当たるのは午前中になりそうですが、洗濯物には差し支え無さそうです。
大きな空が見えるのは本当にありがたいです。
遠くには新宿のビル群が見えるので、夜の景色もまた良さそうですね!!
では、以上でパールハイツ桜上水のご案内を終わります。
いかがでしたでしょうか??
桜上水駅徒歩8分、大型スーパーも徒歩圏内なので暮らしやすい環境だと思います。
内見のご予約やご質問などございましたらお気軽にお問い合わせくださいませ。
ご連絡お待ちしております。
弊社、不動産Agent 六棒株式会社では、
□リノベーションマンションはほぼ全て仲介手数料無料!
□その他一般仲介物件は仲介手数料20%~30%OFF!
にてお取り扱いしております!※弊社の「Agent Fee=仲介手数料」についてはご案内、ご面談の際に営業担当者よりご説明いたします!
なるべく沢山のお部屋をホームページに掲載したいと思っておりますが、時間的成約もございますので、残念ながらご紹介できるお部屋の一部しか掲載できておりません。
このホームページに掲載中のお部屋、その他サイト等で気になるお部屋、街を歩いていて気になったマンション等々ございましたら是非、弊社営業部までご相談ください!
~不動産Agent 六棒株式会社の特徴~
・一般仲介物件の仲介手数料は20%~30%OFFにてご案内中です!
・リノベーションマンションについてはほぼ全て仲介手数料無料です!
・住宅ローンに自信あります!
・頭金10万円より購入できます。是非ご相談下さい!
・お部屋のご見学は車で2~3件まとめて案内します!
・物件数3000件以上、新築戸建、リノベ物件も多数ご用意しております!
過去に販売していたお部屋の概要 このお部屋の販売は終了いたしました。
| 価格 | -万円 |
| 面積 | 42.53㎡ |
| 間取り | 2bedrooms(2DK) |
| 管理費 | 月額:10,400円 修繕積立金:10,860円 |
| 所在階 | 7階 |
| お問い合わせ・ご内見のご予約はこちらからお気軽にどうぞ | |
こちらが今回ご紹介させて頂くお部屋の間取りです。
42.53㎡の2DK。なかなか期待が出来そうですね!!
それでは早速参りましょう!!!
と、思ったのですが!
まだ工事が終わっていませんでしたーーーーー!!!
リフォーム工事屋さんの大将がいうには「工事は終わってるよ!!」との事でしたが、
(いやいや、業者さんが作業してるっていうのは終ってるって言わないよー・・・)
と思いながらも、せっかくなのでお喋りがてら写真を撮ってきました。
確かにほとんど完成はしているのですが!
ガンダムでジオングについてのシャアと作業員とのやりとりを彷彿とさせてくれるやりとりですね!!(有名なあのシーンです!)
なので、たまに大将の後ろ姿が写ってたりするかもしれませんが、皆さんは気にしないでくださいね!!
それでは参りましょう!!
紹介していく部分をピンク色で塗りつぶしているのでご参考までにどうぞ!!
まずは5帖の洋室からです。
玄関は絶賛工事中だったので今回はパスします。スミマセン!!
他にも工事中で写真に取れていない部分が多々あるので、気になる方は内見の申込ボタンをクリックしてくださいね。
ダイニングから東を向いている写真です、
東側にある洋室とはスライド式のドアで仕切られていますね。開けて使えばリビング・ダイニング・キッチンとしても使用することが出来ますよ!!
クローゼット付きなので収納用の大きな家具を置く必要もありませんね!
こちらのお部屋は、あとカーテンレールが付けば完成です!!
バルコニーに面した大きな窓が付いているので風通しもバツグンですよ!
次はキッチンです。
大将のシルエットが壁に写っていますね。
終始、内装について細かく説明してくれていたのですよ!!
2口のグリル付きガスコンロ、浄水機能付きの水栓はシャワーヘッドになっています。
キッチン回りの収納スペースも多めに取ってあるので、調味料・調理器具の収納場所には困ることが無さそうですよ!!
次はこちらの洋室です。
広さは約6.2帖。ウォークインクローゼットが付いていますよ!!
大量のお洋服を掛けることのできるウォークインクローゼットがあれば、面倒な衣替えもあっという間に終りそうですね!!
洋服以外にも季節ものの家電や生活雑貨なども入れることが出来るので、本当に何にでも対応可能ですよ!
こちらはダイニングにある収納スペース。と大将です。
次は浴室、トイレ、洗面と水廻り3兄弟です。
先ずは浴室から。
追い焚き機能、浴室乾燥機能付きです。
浴室換気乾燥機能の配線工事の真っ最中でした。写真には見えないですけど、天井裏での作業が進んでいます。
木目調の壁がお洒落な浴室に仕立て上げてくれています。
次はトイレです。
こちらはもう完成ですね!
LIXILのウォシュレット付きのトイレが選ばれています。個人的な話にはなりますが、LIXILのトイレは丸みを帯びたデザインが可愛いので一番好きです。
冒頭にも写真を載せた洗面化粧台は3面鏡タイプ。
3面鏡はほぼ同時に顔の両側が見られるので左右のバランスが分かりやすく、メイクや髭剃りがしやすいのが特徴です。
鏡を開けると内部は収納棚になっており、歯ブラシや化粧品などの小物類を収納することができます!
それでは最後にバルコニーです。
東向きのバルコニーは広さはあまりありませんが、写真の通り眺望は間違いありません!!
新宿のビル群を望むことが出来るので、夜景も期待できそうです。
背の高い建物も無いので大きな空を見ることが出来ますよ!
では、以上でパールハイツ桜上水のご案内を終わります。
いかがでしたでしょうか??
桜上水駅徒歩8分、大型スーパーも徒歩圏内なので暮らしやすい環境だと思います。
内見のご予約やご質問などございましたらお気軽にお問い合わせくださいませ。
ご連絡お待ちしております。
弊社、不動産Agent 六棒株式会社では、
□リノベーションマンションはほぼ全て仲介手数料無料!
□その他一般仲介物件は仲介手数料20%~30%OFF!
にてお取り扱いしております!※弊社の「Agent Fee=仲介手数料」についてはご案内、ご面談の際に営業担当者よりご説明いたします!
なるべく沢山のお部屋をホームページに掲載したいと思っておりますが、時間的成約もございますので、残念ながらご紹介できるお部屋の一部しか掲載できておりません。
このホームページに掲載中のお部屋、その他サイト等で気になるお部屋、街を歩いていて気になったマンション等々ございましたら是非、弊社営業部までご相談ください!
~不動産Agent 六棒株式会社の特徴~
・一般仲介物件の仲介手数料は20%~30%OFFにてご案内中です!
・リノベーションマンションについてはほぼ全て仲介手数料無料です!
・住宅ローンに自信あります!
・頭金10万円より購入できます。是非ご相談下さい!
・お部屋のご見学は車で2~3件まとめて案内します!
・物件数3000件以上、新築戸建、リノベ物件も多数ご用意しております!
過去に販売していたお部屋の概要 このお部屋の販売は終了いたしました。
| 価格 | -万円 |
| 面積 | 42.53㎡ |
| 間取り | 1bedrooms(1LDK+2WIC) |
| 管理費 | 月額:10.860円 修繕積立金:10.400円 |
| 所在階 | 8階 |
| お問い合わせ・ご内見のご予約はこちらからお気軽にどうぞ | |
この日は工事をしていたので内廊下のように見えますが、外廊下です。
廊下からの眺めも良いのですが、、、
工事が終わるのを待ちましょう!!
さて、今回ご案内させて頂くお部屋がこちらです。
さっそく行ってみましょう!!
ドアをあけると・・・・・
あれっ?シューズボックスが無い!?
と、これだけで思った人はすごいと思います!!でも、安心してください!!
玄関左手のドアを開ければウォークインクローゼットが!!!(`ω´)
靴はもちろんコートもかけてしまえるというスグレモノです。
棚の高さも自由に調節できるのでブーツなどの高さのある靴でも、靴以外の物でも置けてしまいますよ!!
二つ目のドアを開けると洗面室があります。
壁に棚が設置されているのはとても助かりますね。
ミラーキャビネット内部やシンク下の収納もあるのでモノの置場に困ることはありませんよ。
洗面室はお風呂に続いています。
木目調の壁には横に長い鏡が付いていますね。端から端まで鏡があるおかげで浴室内が広く感じます。追い焚き機能も付いているのでいつでも熱いお風呂に入ってリラックスすることができますよ!!
浴室には乾燥機能もあるのでお洗濯が天気に左右されることはありませんね!
廊下の突き当たりにはトイレがあります。
もちろんウォシュレットは付いていますよ!
吊戸棚も設置されているので備品の置き場所には困りませんね。シンプルですが使い勝手の良さそうなトイレですよ!!
ではキッチンへご案内します。
奥のリビングダイニングも気になりますけど少しお待ちくださいね。(○´ω`○)
対面式のキッチンにはグリル付きの2口コンロ、浄水機能付きの水栓、広々とした収納がついていますよ!またキッチンカウンター後ろのスペースはユッタリめに取ってあるので食器棚を置くことも出来たりします!
こちらはリビングダイニングですね。
なかなかにお洒落な空間になっているのではないでしょうか?
カメラマンの腕も上達していますよ!!
窓は東を向いているので朝は太陽の光が部屋の中を照らしてくれることでしょう!!
壁にはエコカラットが使われていますね。
エコカラットというのは云わば現代版の土壁で、快適な湿度を保ちつつ、ニオイや有害なホルムアルデヒドさえも低減させるという新素材です。
隣りの部屋とは引き戸で仕切られているので開けてしまえば更に開放的で気持ちがいいですよ。
お隣の部屋に進んでみますね!
こちらは約6帖の洋室です。約0.9帖のウォークインクローゼットが付いていますので収納に関しては申し分ありませんね。これだけ大きなクローゼットがあれば衣替えもラクラクです!!
いよいよバルコニーへ!!
これは絶景ですよ!!新宿のビル群が一望できます!!
昔から東京に住んでいる人でもこの景色はなかなか体験したことが無いのでは??
たぶん夜になると夜景もキレイなんでしょうね!「100億万ドルの夜景」くらい言っても良さそうな気がしますよ!!
バルコニーの広さはそこまでないので外でゆっくりカフェタイム、なんてことはできなさそうです。
すぐそこは首都高4号線と甲州街道ですが窓は全て2重サッシになっているので、音はそこまで気にならないですよ!
以上でパールハイツ桜上水8階のご案内を終わります。
ウォークインクローゼットが2つ付いているのも素晴らしいのですが、なんといっても窓の外に広がる新宿の街は圧巻です!!
どれだけカメラマンの腕が良くても写真だけでは1/3も伝わらないのです!!
実際に見に来ていただいてその目で絶景をみてください (・`ω´・ ○)
内見のご予約、ご質問などはこちらからお問い合わせくださいね!!
過去に販売していたお部屋の概要 このお部屋の販売は終了いたしました。
| 価格 | -万円 |
| 面積 | 85.06㎡ |
| 間取り | 3bedrooms(3LDK) |
| 管理費 | 月額:21.920円 修繕積立金:月額21.000円 |
| 所在階 | 8階 |
| お問い合わせ・ご内見のご予約はこちらからお気軽にどうぞ | |
それでは間取りのご紹介です。3LDK、85.06㎡。8階。ファミリーにおススメの間取(´∀`*)
無料で4LDKへの間取り変更も可能です。( 3LDKで使うとLDKが約20.2帖になります。)家族構成や生活スタイルに合わせられていいですね!
エレベーターを降りて外階段でお部屋へと向かいます。
扉を開けると、張り替えられた真っ白な玄関タイルとシックな色調のステキなフローリングが目を引きます(´∀`*)こちらの物件のフローリングはすべて天然無垢カリン材が使用されています♪♪玄関照明は人感センサーになっているので節電はもちろん夜間のお帰りの際も便利です。
玄関左にあります、シューズインクローゼットは収納力がバッチリあります。可動式なので、ブーツもきれいな形で仕舞えそうです。シューケア用品なども余裕で収納♪♪
シューズインクローゼットには窓も設置されていますので、風を通してカビ対策もできます(*´▽`)
廊下に戻ってお部屋を見ていきたいと思いますが、こちらの廊下の壁は石材調の装飾がされて高級感がたっぷりです。
1部屋目は廊下右手の洋室。約4.5帖の広さ。玄関から一番近いお部屋です。開口部は北西向き♪♪
クローゼットもあり収納もOK♪奥行きもしっかりです♪♪
廊下突き当りにはドアが2つ。両方とも洋室です。
まずは右手のお部屋。約7帖。南東向きの大きな窓のお部屋で明るい空間♪♪壁一面にもカリンの無垢材が使用されています。
収納はゆとりのあるウォークインタイプ。入口は小さいですが、中は広めです。右に左に広がっています。バーも付いているので、ロングコート等の衣類の収納にも良いですね♪♪
お隣の洋室は、約5帖のお部屋。こちらも南東向きの大きな窓で明るいお部屋です♪♪
こちらのお部屋のクローゼットは、大容量!!横幅180cm超えの大きな収納。
奥行きもしっかりで収納力バツグン☆バーも付いているので、ロングコート等の衣類の収納にも良いですね♪♪収納が大きいと生活スペースが広く使えて◎
廊下は左手に曲がって続きます♪♪
廊下を曲がってすぐにあるのはウォシュレット付きのトイレです。
上部には、収納棚があるので、ストック品の収納も完璧です♪♪
トイレのお隣は、水回りを集めた洗面室&バスルーム。ゆったりした広さで脱衣も悠々。左手手前に洗面台、左手奥に洗濯機置場、右手にバスルームの配置になっています。
まずは左手の洗面台♪♪まだミラーが取り付けられていませんが、もちろんバッチリ入ります(笑)木材とタイルを使用したスタイリッシュな洗面台です(*´∀`*)可動式の棚も設置されていて収納も大丈夫。
洗面台の奥は、洗濯機置場です☆しっかりと扉がついていますので、生活感を隠すことができて助かります(*´∀`*)
上部にはしっかりと棚も設置されています。しかも2段。洗剤等の保管はこちらに。
バスルームの隣には収納が用意されています(●´∀`)タオルやストック品等、様々な物を収納できます♪♪
バスルームは、ブラックの大理石調パネルのシックな雰囲気☆ゆっくり大きなバスタブにつかって疲れを癒せそうです♪♪追い焚き機能付きでいつでも暖かいお風呂に入れます。
ワイドなミラーはスタイリッシュな上に使い勝手も◎
乾燥・涼風・暖房・換気と機能は充実♪♪快適なバスタイムを過ごせそう(o´∀`ノお洗濯物も干せますので、雨の日でも安心してお洗濯ができますよ(*´∀`*)
それではスタイリッシュなドアの向こう、リビングダイニングキッチンを見ていきましょう♪♪
約20.2帖の広々リビングダイニングキッチン。
フローリングには無垢材(カリン)が使われています。紅色っぽい色合いが白い壁に映えてステキです。年月を重ねるといい味わいがでそうなところも楽しみですね。エアコンも1台設置されています。奥側の壁には、石材調の装飾がされていて高級感もたっぷり(*´˘`*)♡
こちらのお部屋は、無料の追加工事で約15.2帖のリビングダイニングキッチンと約4.6帖の間仕切りも可能です♪♪
お部屋にはTVモニター付きのインターフォンが設置されていて、セキュリティもバッチリ♫
それではキッチンを見ていきたいと思います。
無垢材のフローリングに合わせた落ち着いた木調キャビネットのシステムキッチン☆対面式のキッチンでお料理中もリビングを見渡せます (●´∀`)
対面式ですので上部の収納はありませんが、シンク下の収納はスライド式なのでキッチングッズの収納も楽々 (●´∀`)配管を気にせず収納できるので大容量。
3つ口コンロはお料理好きの方には嬉しいですね♪人造大理石のワークトップもシンクも充分な大きさで使い勝手◎
食洗機付きで家事の時間も短縮 (●´∀`)家族と一緒に過ごす時間が増えそうですね。ゆとりのあるキッチンです。
キッチンのお隣にはパントリーがあります。窓も設置されていて自然換気もバッチリできそう。
真っ白な可動式の棚がしっかりと設置されています。
お隣のドアは勝手口になっています。
それでは、最後にバルコニーに出てみましょう♪♪バルコニーは2つ。洋室から出るバルコニーとリビングダイニングから出ることのできるバルコニーです。大きさは2つとも同じサイズ。ウッド調のバルコニータイルが敷かれています。ロングスパンのバルコニーですが奥行きがあまりないバルコニーで、出るのは少し怖いです。
眺望はドーンと開けています♪♪青空がバッチリです(*´˘`*)♡新宿副都心も見えて夜景も綺麗だと思います。
甲州街道に面しているので、騒音が少し気になります。
音の感じ方は個人差がございますのでご内見の際にご確認くださいませ。
天然無垢材の高品質リノベーション物件♪♪広々リビングで充実した生活を送れる物件です♪♪
内見のご希望、ご質問などございましたら、![]()



















































































































































































































































































































































































































































































弊社 公式HP
六棒総合研究所
掲載予定物件
価格変更と販売終了物件
ハザードマップ検索
適合証明書.jp
Facebook
Twitter
Instagram