・
□□□□□□□□□□□□□□□□□□□□□□□□□□□□□□□□□□□□□□□
いつも弊社ホームページをご覧頂き誠にありがとうございます。
プレジデント桜上水はお陰様で販売を終了致しました。弊社問合せフォームにてご要望頂けましたら、当お部屋でキャンセル等が発生した場合、他のお部屋が販売になりました際にご紹介させて頂きます。
不動産Agent 六棒株式会社
TEL:03‐5413‐5336
□□□□□□□□□□□□□□□□□□□□□□□□□□□□□□□□□□□□□□□
・
今回ご紹介するのは
リノベーションマンション【プレジデント桜上水】
京王線「桜上水」駅から徒歩6分のマンションです。
京王線「桜上水」駅は急行停車駅。新宿まで約12分、「明大前」駅で乗り換えれば渋谷まででも約16分で出られる利便性の高い立地です。
桜上水駅の駅周辺に広がる商店街。スーパー、ドラッグストア、飲食店にクリニックと必要なお店はだいたい揃っていますよ。少し歩くと住宅が多くなるので駅周辺にギュッと集まっている感じですね。マンションへは北方向、甲州街道方面へ進みます。
こちらが今回ご紹介する【プレジデント桜上水】
昭和49年4月築、総戸数57戸。甲州街道沿いに建つマンションです。2016年に雑排水管更新工事、2017年には南西北側外壁補修工事済みと綺麗に保たれていますね。長期修繕計画もあり将来にわたっても安心です。
~建物情報~
●昭和49年4月築
●総戸数 57戸
●SRC・RC造地上9階建て
●管理会社による日勤管理
●ペット不可
●エレベーター2基あり
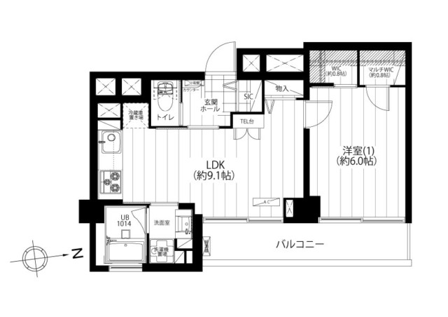
ここで間取り図とリノベーション内容のご紹介です。
※間取り図は別タブで開きますので、確認しながらご覧頂くことが出来ます。
~リノベーション内容~
●床、クロス新規貼替
●洗面、トイレ新規交換
●キッチン新規交換(浄水機能一体型水栓付き)
●ユニットバス新規交換(追い焚き機能、浴室乾燥機付き)
●建具新規交換・・・等
お部屋は6階、間取りは1LDK、専有面積は35.57㎡。東向きワイドスパンのお部屋です。お一人暮らしの方にお勧めです。では、早速行ってみましょう!
玄関を入るとコンパクトな玄関ホール。広くはありませんが、斜めに広くとられた上り口は荷物が多い時などにはとても助かります。左側のドアはシューズインクローゼット!収納力抜群で、散らかりがちな玄関をスッキリ保つ事が出来ますよ。チラッと見える右側のドアはトイレです。
こちらは約9.1帖のリビング・ダイニング・キッチン。東向きのバルコニーに面したワイドスパンのお部屋です。スペース的にダイニングとリビングのセット両方を置くのはきついかもしれませんね。兼用できる家具をチョイスするのがいいと思います。ちなみに置いてある家具は付いているそうなので、このまま使うのもアリかと。エアコンも設置されてすぐに快適な新生活を始められます。
キッチンは省スペースの壁付けタイプ。使いやすい一方キッチン内が丸見えなので、整理整頓は欠かせませんよ^^;)3口コンロ、グリル、浄水機能付水栓など調理機能は充実。吊戸棚も付いて収納にも困らなそうですね。
こちらは約6帖の洋室。内装がシンプルで幅広い家具を合わせる事が出来そうですね。LDKと同じ東向きのバルコニーに面していてとても明るいお部屋です。
収納はふたつ。L字型にハンガーポールの設置されたウォークインクローゼットと棚が設置されたマルチクローゼットです。合わせて約1.6帖の大容量!!これだけあれば家具を置く必要もありませんね。キャリーバッグやスーツケースなど嵩張る物の収納もお任せ下さい!
キッチン横の引き戸は洗面室。洗面台の他に洗濯機スペースと浴室がまとまっていて、脱衣所も兼ねています。脱いですぐ洗えれば効率的ですよね。窓付きで明るい浴室には、追い焚き機能や浴室換気乾燥機なども付いています。雨の日が続いてお洗濯物が溜まったりなんて事ももうありません(^^)
最後にバルコニーからの眺望をご紹介!素晴らしい眺めですね。程よく緑もあって季節感も感じられると思いますよ♬
・
以上でプレジデント桜上水のご案内を終わります。
いかがでしたでしょうか??
桜上水駅から徒歩6分のマンションです。
リノベーション済みという事で室内はとてもキレイですよ (っ・ω・)っ
内見のご予約やご質問などございましたらお気軽にお問い合わせくださいませ。
ご連絡お待ちしております。
弊社、不動産Agent 六棒株式会社では、
□リノベーションマンションはほぼ全て仲介手数料無料!
□その他一般仲介物件は仲介手数料20%~30%OFF!
にてお取り扱いしております!※弊社の「Agent Fee=仲介手数料」についてはご案内、ご面談の際に営業担当者よりご説明いたします!
なるべく沢山のお部屋をホームページに掲載したいと思っておりますが、時間的成約もございますので、残念ながらご紹介できるお部屋の一部しか掲載できておりません。
このホームページに掲載中のお部屋、その他サイト等で気になるお部屋、街を歩いていて気になったマンション等々ございましたら是非、弊社営業部までご相談ください!
~不動産Agent 六棒株式会社の特徴~
・一般仲介物件の仲介手数料は20%~30%OFFにてご案内中です!
・リノベーションマンションについてはほぼ全て仲介手数料無料です!
・住宅ローンに自信あります!
・頭金10万円より購入できます。是非ご相談下さい!
・お部屋のご見学は車で2~3件まとめて案内します!
・物件数3000件以上、新築戸建、リノベ物件も多数ご用意しております!




















弊社 公式HP
六棒総合研究所
掲載予定物件
価格変更と販売終了物件
ハザードマップ検索
適合証明書.jp
Facebook
Twitter
Instagram