・
□□□□□□□□□□□□□□□□□□□□□□□□□□□□□□□□□□□□□□□
いつも弊社ホームページをご覧頂き誠にありがとうございます。
ヒルズ代官山はお陰様で販売を終了致しました。弊社問合せフォームにてご要望頂けましたら、当お部屋でキャンセル等が発生した場合、他のお部屋が販売になりました際にご紹介させて頂きます。
不動産Agent 六棒株式会社
TEL:03‐5413‐5336
□□□□□□□□□□□□□□□□□□□□□□□□□□□□□□□□□□□□□□□
・
代官山&中目黒&恵比寿が徒歩圏(´∀`*)
グルメにショッピング・・・楽しい毎日が待っている予感!
リノベーションマンション『ヒルズ代官山』のご紹介です。
東急東横線「代官山」駅徒歩3分
東急東横線・東京メトロ日比谷線「中目黒」駅徒歩5分
JR山手線・埼京線・湘南新宿ライン・東京メトロ日比谷線「恵比寿」駅徒歩8分
最寄は代官山駅。駅周辺にはハイセンスなセレクトショップやブティック、カフェなどが集まっています。
コーヒーを飲みながら本が選べる代官山蔦屋はマンションから徒歩5分程度の距離。1階は朝7時からあいているので、出勤前にちょっと立ち寄って気になる書籍をチェックするのもいいですね。
代官山って歩いているだけでなんだかセンスがよくなった気がするのは私だけでしょうか。路面店が多い分、散策しがい充分です。
おしゃれなお店は多いけど日常のお買い物ってどうなのー?と思われるかもしれませんがマンションから徒歩5分のところにはピーコックが、徒歩6分のところに東急ストアがありお買い物も安心。中目黒方面の方がドラッグストアやスーパーなどが駅周辺にまとまっており、お買い物は便利かも。
ヒルズ代官山は昭和59年築、14階建て、総世帯数72戸。
外観は白のタイル貼り。(新耐震基準適合物件です。)
1階には店舗が入っています。
マンションはちょうど駒沢通りと山手通りの交差点付近に建っているので周辺の交通量は少々多めです。
店舗と店舗の間にエントランス。正面は管理人室になっています。
先へ進んで右に入るとエレベーターがあります。
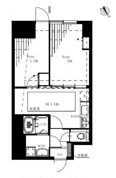
ここで間取り図のご紹介です。
※間取り図は別タブで開きますので、確認しながらご覧頂くことが出来ます。
今回ご紹介するお部屋は3階、間取りは2DK、専有面積は43.07㎡。お二人orお一人暮らしの方にお勧めです。では、早速行ってみましょう!
エレベーターを3階で降りて内廊下を進むと、玄関に到着です。天候に左右されない内廊下。夏でもちょっと涼しい気がしてホッとします(^^)
ドア横にはモニター付きインターホンが設置されていて、お部屋の中から訪問者を確認する事が出来ます。応対するかを映像を見てから決められるのは安心ですね。
自然の木目を生かしたナチュラルな雰囲気の玄関ホール。天井にまで木目パネルが使われていて、高級感もあります。
トールタイプのシューズボックスはオープンタイプ。整理整頓は必要ですが、カビの原因となる湿気や匂いが籠らず、メリットの多いシューズボックスです。人感センサーが自動的にライトを点けてくれるので、もう暗い中スイッチを探す必要もありません。なにより、いつでも明るい玄関が迎えてくれるのも嬉しいですよね(^^)
まずは、正面のドアから…
こちらは約6.5帖のダイニング・キッチン+約6帖の洋室。奥の洋室との仕切り戸を開けて二部屋をつなげた様子です。ご家族構成でお部屋に余裕があれば洋室をリビングとして、こんな使い方もアリですね。ライフスタイルや状況に応じて使い分けが出来るのは便利です。
こちらがダイニング・キッチン部分。
仕切りの扉は引込式で開けた時もスッキリ。吊り下げタイプなので床にレールも無く、より一体感を出す事が出来ます。お掃除も楽々ですよ♪ 扉を閉めれば…
本来の洋室に戻ります。ただ、天井にはダインライトや間接照明、シャンデリアなどが設置され、やはりリビングをイメージしているようですね。
南西向きバルコニーに面したお部屋です。ちなみに家具は全て見本だそうですので、お好きな家具をチョイスしましょう!
クローゼットも付いているので、ベッドルームとして使用する時も収納家具を置く必要は無さそうです。
キッチンは壁付けタイプ。場所を取らずに使いやすいキッチンです。ただし、カウンターキッチンなどと違って散らかしていると目立ちますので、整理整頓は必要ですよ^^;)
収納は吊戸棚と調理台下になります。扉タイプの収納は奥の方が出し入れしづらくなりますので、細かい物を入れる時は収納グッズなどを使う事をお勧めします。
コンロは3口、グリルも付いて調理器具も充実!グリルって魚のイメージが強いですが、何を焼いても美味しく仕上がる優れものなんですよ。ご興味のある方は是非一度調べてみて下さい。
調理中は換気扇をお忘れなく!お部屋に匂いを付けないようにするコツはふたつ。調理の少し前から回す事、そして離れた場所の窓を開ける事だそうです。空気の流れを予め作るのが大事なんだとか。
観葉植物が置いてある所は冷蔵庫スペースになります。実は、冷蔵庫ってお料理の時よりそれ以外の時の方が開け閉めする事が多いんですよね。ここなら、どこからでも近くて使いやすそうです。
次は隣のお部屋へ…
こちらは約5.3帖の洋室。やはりバルコニーに面したお部屋です。大きな梁が通っていますが、寝てしまえば気になりませんよね。
収納はクローゼット。幅はありませんが、奥行きがありキャリーバッグやスーツケースなどの嵩張る物も収納可能です。
廊下に戻って、次はトイレです。
白から黒へのグラデーションでまとめたスタイリッシュなトイレ。カウンターやミラー、手洗いボウルが付いて高級感もありますね。もちろん洗浄便座付き。TOTO製のウォシュレットです。
トイレの前は洗面室です。
洗面室には洗面台の他に洗濯機スペースと浴室がまとまっていて、脱衣所も兼ねています。脱いですぐ洗濯出来れば効率的でいいすよね。
オリジナリティのある洒落た洗面台。収納はありませんが、洗面ボウル横のスペースや下を上手く使えば大丈夫、工夫次第で使いやすい洗面台になりそうです。
浴室は木目のアクセントパネルを使った落ち着いた雰囲気。リラックスしたいバスタイムにはピッタリですね。
追い焚き機能付きユニットバスは「自動」ボタンひとつでお風呂を沸かす事が出来ます。沸いたお風呂は追い焚き機能で保温してくれるので、いつでも温かいお風呂に入れますよ。スマホに夢中で長風呂しても安心です^^;)
ゆったり浸かれる1116サイズの浴槽。
浴室換気乾燥機は浴室の換気の他にも、寒い季節の浴室暖房、雨天や花粉の季節のお洗濯物乾燥など様々な使い道があります。中には「涼風」なんてボタンもありますので、きっと暑い季節にも活躍してくれそう。冷房ではないようですが、お風呂で濡れた体には充分涼しいと思いますよ(^^)
それでは、最後はバルコニーのご紹介。どちらの洋室からでも出られます。
広さは5.20㎡、南西向き、すっきりとした形の広々としたバルコニー。物干し金具も付いていてお洗濯物も干せるようになっています。干すならお昼からがチャンスですよ。
目の前には高いビルが並びますが、道幅が広いので開放的な眺めになっています。3階くらいだと、街路樹の緑も感じる事の出来るちょうどいい高さですよね♬
・
以上でヒルズ代官山のご案内を終わります。
いかがでしたでしょうか??
代官山駅から徒歩3分のマンションです。
リノベーション済みという事で室内はとてもキレイですよ (っ・ω・)っ
内見のご予約やご質問などございましたらお気軽にお問い合わせくださいませ。
ご連絡お待ちしております。
弊社、不動産Agent 六棒株式会社では、
□リノベーションマンションはほぼ全て仲介手数料無料!
□その他一般仲介物件は仲介手数料20%~30%OFF!
にてお取り扱いしております!※弊社の「Agent Fee=仲介手数料」についてはご案内、ご面談の際に営業担当者よりご説明いたします!
なるべく沢山のお部屋をホームページに掲載したいと思っておりますが、時間的成約もございますので、残念ながらご紹介できるお部屋の一部しか掲載できておりません。
このホームページに掲載中のお部屋、その他サイト等で気になるお部屋、街を歩いていて気になったマンション等々ございましたら是非、弊社営業部までご相談ください!
~不動産Agent 六棒株式会社の特徴~
・一般仲介物件の仲介手数料は20%~30%OFFにてご案内中です!
・リノベーションマンションについてはほぼ全て仲介手数料無料です!
・住宅ローンに自信あります!
・頭金10万円より購入できます。是非ご相談下さい!
・お部屋のご見学は車で2~3件まとめて案内します!
・物件数3000件以上、新築戸建、リノベ物件も多数ご用意しております!
過去に販売していたお部屋の概要 このお部屋の販売は終了いたしました。
| 価格 | -万円 |
| 面積 | 24.42㎡ |
| 間取り | STUDIO |
| 管理費 | 月額7,686円 修繕積立金:月額4,000円 |
| 所在階 | 10F |
| お問い合わせ・ご内見のご予約はこちらからお気軽にどうぞ | |
間取りは24.42㎡のSTUDIOタイプ。
高層階につき眺望良好!東京タワー、六本木ヒルズ、スカイツリーと東京の名所が一望できます。
室内は只今リノベーション工事中!
一足先に充実のリノベーション内容をご紹介いたします。
■キッチン・・・パナソニック
■浴室・・・ユニットバス(TOTO)、浴室換気乾燥暖房機付き
■洗面所・・・洗面化粧台 、洗濯水栓、防水パン
■トイレ・・・LIXIL、ウォシュレット機能付き
■その他・・・フローリング貼替、壁・天井クロス張替、フロアタイル貼替、建具交換、給湯器交換、エアコン(1基)、カラーTVモニター付きインターホン、新規照明器具取付、棚板新設、スイッチ・コンセント交換、ハウスクリーニング
■アフターサービス保証付き
【内装工事終了予定:2015年5月中旬】
ご内見のご希望・ご質問などございましたら、お気軽にお問い合わせくださいませ♪




































































弊社 公式HP
六棒総合研究所
掲載予定物件
価格変更と販売終了物件
ハザードマップ検索
適合証明書.jp
Facebook
Twitter
Instagram