・
□□□□□□□□□□□□□□□□□□□□□□□□□□□□□□□□□□□□□□□
いつも弊社ホームページをご覧頂き誠にありがとうございます。
メナー代田はお陰様で販売を終了致しました。弊社問合せフォームにてご要望頂けましたら、当お部屋でキャンセル等が発生した場合、他のお部屋が販売になりました際にご紹介させて頂きます。
不動産Agent 六棒株式会社
TEL:03‐5413‐5336
□□□□□□□□□□□□□□□□□□□□□□□□□□□□□□□□□□□□□□□
・
それでは!本日は小田急線「世田谷代田」駅より徒歩4分リノベーションマンション
メナー代田 をご案内致します!
アクセス
小田急線 「世田谷代田」駅 徒歩4分
人気の下北沢までも徒歩14分ですので徒歩圏内♪♪

世田谷代田駅は現在複々線化工事の真っ盛り。工事完了予定は、2018年なので、しばらくはこのような状態です☆
しかし、渋滞の発生する9ヵ所の開かずの踏切が無くなり、交通の便も良くなると思います♪♪
バリアフリー等も設置との事なので、より住みやすくなります。
環七を渡ったところには、スーパーもありますので、助かります♪♪
世田谷代田付近には、商業施設などは無いのですが、『下北沢駅』には徒歩14分で行けて、電車なら1分で行けますよ(●´∀`)
お休みの日は少し足を伸ばして出かけてみるのもいいですね!
環七通りは交通量が多いのですが、歩道橋が掛っているので安心して渡れます
(*´∀`*)
歩道橋を降りる途中で八幡神社へつながる入口があるので、散歩がてら参拝もできます☆
毎年9月にはお祭りが開催されており、溢れんほどの人だかりになる様です。これもここで暮らす楽しみのひとつです☆
こちらが今回ご紹介させていただく『メナー代田』です♪
昭和58年築、地上7階建て、総世帯数24戸の白いタイルの外観のマンションです。
交通量の多い環七通り沿いなので、お子様はご注意ください♫
1階はバイク屋さんが営業しており、マンションの隣に派出所があります。お巡りさんがいるではないですか・・・頼もしい限りです。
こちらがエントランスです☆
綺麗に清掃されていて、管理体制の良さを感じます♪♪
こちらがエレベーター☆
こちらのエレベーターで上がります。
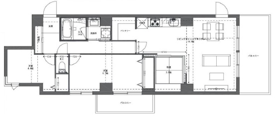
ここで間取り図のご紹介です。
※間取り図は別タブで開きますので、確認しながらご覧いただく事が出来ます。
今回ご紹介するお部屋は5階、間取りは2LDK、専有面積は53.94㎡。おひとり暮らしからファミリーまで幅広くお使いいただけるお部屋です。全体は台形ですがお部屋はほぼ四角になっているんですね。角部屋だけあって全室窓付き♪では、早速行ってみましょう!

お部屋へのドアは廊下を右に曲がった先。戸口からは室内が見えづらくなっています。宅配便やフードデリバリーなどを利用する機会も増えているこの時代、プライバシー的には有難いですね。木目をたくさん使った落ち着いた雰囲気です。

廊下正面のドアは洗面室。洗面室には洗面化粧台の他に、洗濯機スペースと浴室がまとまっています。洗面化粧台は建具とイメージを合わせた木目パネルを使用。トータルにコーディネイトされているんですね。三面鏡付でミラーキャビネットなど収納も豊富です。

浴室もテーマカラーで統一。柔らかい、ホッとするような雰囲気になっています。追い焚き機能や浴室換気乾燥機など、付いてて嬉しい機能も完備♬

トイレはTOTO製の温水洗浄機能付き。トイレットペーパーや掃除道具などを入れておける吊戸棚も付いています。

こちらはリビング・ダイニング・キッチン。
南西二面採光で陽当たり、通風ともに良好なお部屋です。(日が暮れているのでそんな感じがしないと思いますが^-^;)自然の木目を生かした温もりのある雰囲気で、とても居心地が良さそうです。

天井は折り上げ天井を採用。奥行のある解放感と共に、アクセントとしてお洒落な空間を演出しています。折り上げ天井部分にお馴染みの木目パネルを使っているのも統一感があっていいですね。


キッチンは壁付けタイプですが、カウンターを造り付けることでⅡ型のカウンターキッチンのようなイメージになっています。カウンター下には棚が付けられ、カップボードとして使えるようになっているので、収納としても大きな戦力になりますよ。食器洗浄乾燥機や浄水機能一体型水栓など家事をアシストしてくれる機能も充実しています。
・
以上でメナー代田のご案内を終わります。
いかがでしたでしょうか??
世田谷代田駅から徒歩4分のマンションです。
リノベーション済みという事で室内はとてもキレイですよ (っ・ω・)っ
内見のご予約やご質問などございましたらお気軽にお問い合わせくださいませ。
ご連絡お待ちしております。
弊社、不動産Agent 六棒株式会社では、
□リノベーションマンションはほぼ全て仲介手数料無料!
□その他一般仲介物件は仲介手数料20%~30%OFF!
にてお取り扱いしております!※弊社の「Agent Fee=仲介手数料」についてはご案内、ご面談の際に営業担当者よりご説明いたします!
なるべく沢山のお部屋をホームページに掲載したいと思っておりますが、時間的成約もございますので、残念ながらご紹介できるお部屋の一部しか掲載できておりません。
このホームページに掲載中のお部屋、その他サイト等で気になるお部屋、街を歩いていて気になったマンション等々ございましたら是非、弊社営業部までご相談ください!
~不動産Agent 六棒株式会社の特徴~
・一般仲介物件の仲介手数料は20%~30%OFFにてご案内中です!
・リノベーションマンションについてはほぼ全て仲介手数料無料です!
・住宅ローンに自信あります!
・頭金10万円より購入できます。是非ご相談下さい!
・お部屋のご見学は車で2~3件まとめて案内します!
・物件数3000件以上、新築戸建、リノベ物件も多数ご用意しております!
過去に販売していたお部屋の概要 こちらのお部屋の販売は終了いたしました
| 価格 | -万円 |
| 面積 | 70.57㎡ |
| 間取り | 2bedrooms(2LDK+S) |
| 管理費 | 月額17,800円 修繕積立金:月額10,000円 |
| 所在階 | 2階 |
| お問い合わせ・ご内見のご予約はこちらからお気軽にどうぞ | |
こちらが今回ご紹介させて頂くお部屋です。
2つのバルコニーが付いている角部屋ですよ(っ´∀`c)
さっそく参りましょう!!
玄関前にはカメラ付きのインターフォンが付いています。
オートロックの付いていないマンションですが、お部屋の中にいながら外の様子を確認できるのは防犯面でも心強いですね!!
勧誘やセールスなどはキッパリとお断りできますね (`ω´)
玄関ドアを開けると白を基調とした清潔感溢れる室内が迎えてくれます。
右手にはシューズボックスが。大容量な上、中の棚は自由に高さの調節ができるのでブーツなどの背の高い履物でも収納することができますよ(・ω・)b
左手のレンガ調の壁もステキな雰囲気を出しています。
玄関から先は廊下を進みます。
突当りを右にまがって、
長い廊下をまずは奥まで進んで駆け抜けましょう-=≡ヘ(*・ω・)ノ
奥まで来ました!
スリットから漏れる光が神々しいですね!!
これはこの先のお部屋も期待できそうです(・`ω´・ ○)
これは・・・・!?
陽当たりがバツグンの・・・・
リビング・ダイニングです!!!
広さは約14.2帖!!
この広さは素晴らしいですね (´∀`*)ノ
外も気になりますけど、バルコニーは最後にご案内しますよ!!
次はキッチンをご紹介します(○´ω`○)
大きなシンクの付いた水栓、3口のグリル付きガスコンロが付いています。
足元の収納は引き出しタイプになっていますね!!
開き戸タイプのモノと違って奥まで無駄なく使うことができますし、取り出しも上からラクラクなので主婦の方にも大人気ですよヾ(*´∀`*)ノ
キッチンの隣にはパントリーが付いています。
パントリーは・・・簡単に言えば「キッチン回り用収納スペース」ですヽ(´∀`)
食品や飲料だったり、使用頻度の低い調理器具(土鍋・圧力鍋、ミキサーなど)を収納するのに便利ですよ!!
業界の人は食品貯蔵庫や食器室と呼ぶ人もいますね ( ゚ω^ )ゝ
ところで、この部分気になりませんでしたか??
リビング・ダイニングの一部の壁に「何か」が隠れていそうな雰囲気です ( ・`ω・´)
キタ━━━━(゚∀゚)━━━━!!
和室が!!!小さいながらも和室がありますよ!!?
最近のマンションではたまーに遭遇しますけども、やっぱり日本人たるもの家に畳が無いと落ち着かないです( `д´)b
ここで鍋をつつきながら年越しとか!想像するだけでワクワクしますね!!
和室と言えども収納はバッチリです!
ちゃぶ台等の和室グッズも普段はこちらに入れていても良いかもしれませんね!!
それでは廊下に戻って他の場所も見て行きましょうヾ(*≧∀≦)ノ゙
まずはこちらです。
洗面室ですね!
脱衣所も兼ねた洗面室には洗濯機置場も設置してあります。
脱いだお洋服も、すぐに洗うことができるので効率的ですよo(*>Д<)ゝ
大きな洗面ボウルです。
水栓はシャワーヘッドになっているのでこちらで洗髪をすることができますよ (/ω・\)
また、隅々まで水を流すことができるので水廻りのお掃除もカンタンです!
ミラー内部は収納になっています。
歯ブラシや基礎化粧品などの小物はこちらに収納することができますね(・∀・)
足元の収納には洗濯洗剤が良いかもしれません!!
次はお風呂です。
浴室換気乾燥機能が付いているので、洗面室の洗濯機であらった洗濯物をそのまま浴室に干すことができます。重い洗濯物をもって外まで移動する手間が省けるので日々の家事がとても楽に感じられますよ!!
横に長いワイドミラーのおかげもあって浴室内がとても広く感じますね(´∀`)
追い焚きもすることができるので、お休みの日に朝からゆっくりとお風呂を楽しむことができますよ。
帰りが遅くなった深夜でも、熱いお湯にユッタリ浸かれば翌日もなんとか頑張れる気がしてくるハズです!!
それでは次へ向かいましょう。
こちらは北側に位置している約6.7帖の洋室です。
北側と言えども、2つの窓によって明るい室内となっています。
壁紙もオシャレですね!
クローゼットも付いているのでお洋服の収納場所にも困りません。上部は棚になっているので家電なんかも収納できそうです。
冒頭にも触れましたが、2つあるバルコニーの内、1つがこちらの部屋に付いています。
2階という事もあって、絶景!という訳にはいきませんが、「バルコニーがある」ということ自体がなんだか嬉しいです( ゚ω゚ )
次はこちらです。
だんだん玄関に戻ってきていますよ。
こちらはトイレですね。
ウォシュレット付きなのは嬉しいですね(っ´∀`c)
最近では付いていて当たり前になりつつあります。世間的にも、もはや手放せない機能になっているのですね (*’д`*)
最後のお部屋になりました。
こちらは東側の約4.4帖のお部屋です。
水色の壁が可愛いですね。角のお部屋という事でL字の窓が付いていますよ(´∀`)
収納もバッチリです。
ハンガーポールも付いているのでお洋服も掛けることができます。
それでは、本当の最後にバルコニーをご案内します。
バルコニーは西向きです。午前中は太陽の光は届かないかもしれませんね。それでも正午前後からは明るい陽ざしが差し込んできそうですよ!!
リビングのこちらの勝手口?からは共用部のバルコニーに出ることができます。
あくまでも共用部なので、こちらに出る事はあまりしない方がいいかもしれませんね・・・
では、以上でメナー代田のご案内を終わります。
いかがでしたでしょうか??
駅から徒歩4分とアクセスにも恵まれたマンションです。
和室付きのリビング付き、リノベーション済みで新たに生まれ変わったお部屋となっていますよ!!
内見のご予約やご質問などございましたらお気軽にお問い合わせくださいませ。
ご連絡お待ちしております。
弊社、不動産Agent 六棒株式会社では、
□リノベーションマンションはほぼ全て仲介手数料無料!
□その他一般仲介物件は仲介手数料20%~30%OFF!
にてお取り扱いしております!※弊社の「Agent Fee=仲介手数料」についてはご案内、ご面談の際に営業担当者よりご説明いたします!
なるべく沢山のお部屋をホームページに掲載したいと思っておりますが、時間的成約もございますので、残念ながらご紹介できるお部屋の一部しか掲載できておりません。
このホームページに掲載中のお部屋、その他サイト等で気になるお部屋、街を歩いていて気になったマンション等々ございましたら是非、弊社営業部までご相談ください!
~不動産Agent 六棒株式会社の特徴~
・一般仲介物件の仲介手数料は20%~30%OFFにてご案内中です!
・リノベーションマンションについてはほぼ全て仲介手数料無料です!
・住宅ローンに自信あります!
・頭金10万円より購入できます。是非ご相談下さい!
・お部屋のご見学は車で2~3件まとめて案内します!
・物件数3000件以上、新築戸建、リノベ物件も多数ご用意しております!
過去に販売していたお部屋の概要 このお部屋の販売は終了いたしました。
| 価格 | -万円 | |
| 面積 | 47.43㎡ | |
| 間取り |
|
|
| 管理費 | 月額12,000円 修繕積立金:月額6,700円 | |
| 所在階 | 2階 | |
| お問い合わせ・ご内見のご予約はこちらからお気軽にどうぞ | ||
こちらが今回ご紹介させて頂くお部屋です。
シンプルに1LDKのお部屋ですね!
それでは参りましょう-=≡ヘ(*・ω・)ノ
玄関先には・・・・・ブルーシートが!!!?
どうしてブルーシートが敷いてあるのか??答えは簡単、中の工事がまだ終わっていないからです。
どうやら少し早まってしまった模様(゜Д゜)
やっちまった感が全身を襲ってきます・・・
しかしながら、せっかく電車を乗り継いでここまで来たのでとりあえず中に入っていきましょう。。
という事で中に入ってみたのですが、アレ?やっぱり完成してる・・・・??
順番に見ていけば分かるのですが、99.99%くらいは完成しています。多分完成まであと10分かかるかなという感じでした(´°(エ)°`)
玄関の壁には姿見が付いています。
お出かけ前のコーディネートチェックはバッチリですね。
新宿、渋谷へのアクセスはバッチリなマンションです。適当な恰好では外に出れないですよ∠(`・ω・´)
シューズボックスは棚の高さが自由に調整できます。背の低い履物は別途シューズラックを用意すればたくさん収納できそうですよ!!
こうやって見るとやはり高級感がありますね。
先のお部屋も楽しみです。
後光が差しているドアに引き寄せられます・・・
廊下を抜けると、そこはリビング・ダイニング・キッチンでした!!
無いと困りますけどね。雪国でも困りますけどね。
ただただ、ただただ広いです!!
西向きの窓からの光がいい感じに室内を照らしてくれています(☆Д☆)
14.8帖の広さという事ですが、どうでしょう??なかなか贅沢な空間だと思いませんか??
続いてはキッチンです。
大きなシンクの付いた水栓、3口のグリル付きガスコンロが付いた壁付きのクローズドキッチンです。
キッチン回りのスペースも広くとってあるので、ご家族と一緒にお料理を楽しむことができそうですよヽ(´∀`)
収納もご覧の通りです。キッチンで使う調理器具は問題なく収納できそうですね!!
冷蔵庫用のスペースもしっかりと確保されているので安心です!!
一度廊下に出て、こちらは寝室となる約5.3帖の洋室です。
大きなクローゼットが付いているのでお洋服の収納場所には困りませんね!面倒な衣替えも簡単に終わりそうです。
窓の無い部屋にはなりますが、寝室なら問題ないですね!!
玄関すぐの廊下にはこちらの収納も付いています。
個人的には掃除用具入れだと思うのですが、どう思いますか??
次は水廻りをご紹介しましょう。
洗面化粧台は内部が収納になっています。ハブラシや基礎化粧品といった小物から、ドライヤーなどの家電まで収納に困ることは無さそうですね!!
少し横を向けば洗濯機置場が。
脱衣所を兼ねた洗面室なので、脱いだお洋服をすぐに洗濯できるのは本当にありがたいです。
洗濯機置場の隣のドアを開けるとトイレになっています。
ウォシュレット付きのシンプルなトイレですね(´∀`)
正直、便座とウォシュレットさえあればトイレとしては充分な気もします。
実際はこのくらい無駄のない方が落ち着けると思いますよ。
次はお風呂です。
浴室には換気乾燥機能が付いているので、洗い終わった洗濯物をすぐにこちらで干すことができます!!
家事の動線が少しでも短くなるのはありがたいですね!長い目で見ればかなりの労力が節約できます (・`ω´・ ○)
お風呂には追い焚き機能が・・・・・・
ついてないーーーー!!!!?(゚A゚;)
この物件が工事中であることをすっかり忘れていましたが、どうやら追い焚き機能の操作パネルの取付けが終わっていなかったようです。。。
モノもあるのにどうしてここだけ終わらせなかったのかが謎です。。。。
たぶん、この記事を書いてる頃には付いている事でしょう!!
横に長い大きなミラーが付いているので実寸以上に浴室が広く見えますよ!!
ユッタリとお風呂に浸かれば明日への気力も湧いてくるのではないでしょうか??
最後にバルコニーです。
あまり広くはないですが、目の前に共用部があるので空間としてはとても広く感じます。
背の高い建物もないので、空はとても広いですよ!!
では、以上でメナー代田のご案内を終わります。
いかがでしたでしょうか??
世田谷代田から徒歩4分。
リノベーション済みで新たに生まれ変わったお部屋となっています!!
内見のご予約やご質問などございましたらお気軽にお問い合わせくださいませ。
ご連絡お待ちしております。
弊社、不動産Agent 六棒株式会社では、
□リノベーションマンションはほぼ全て仲介手数料無料!
□その他一般仲介物件は仲介手数料20%~30%OFF!
にてお取り扱いしております!※弊社の「Agent Fee=仲介手数料」についてはご案内、ご面談の際に営業担当者よりご説明いたします!
なるべく沢山のお部屋をホームページに掲載したいと思っておりますが、時間的成約もございますので、残念ながらご紹介できるお部屋の一部しか掲載できておりません。
このホームページに掲載中のお部屋、その他サイト等で気になるお部屋、街を歩いていて気になったマンション等々ございましたら是非、弊社営業部までご相談ください!
~不動産Agent 六棒株式会社の特徴~
・一般仲介物件の仲介手数料は20%~30%OFFにてご案内中です!
・リノベーションマンションについてはほぼ全て仲介手数料無料です!
・住宅ローンに自信あります!
・頭金10万円より購入できます。是非ご相談下さい!
・お部屋のご見学は車で2~3件まとめて案内します!
・物件数3000件以上、新築戸建、リノベ物件も多数ご用意しております!
過去に販売していたお部屋の概要 このお部屋の販売は終了いたしました。
| 価格 | -万円 |
| 面積 | 53.94㎡ |
| 間取り | 2bedrooms(2LDK) |
| 管理費 | 月額13,600円 修繕積立金:月額6,060円 |
| 所在階 | 3階 |
| お問い合わせ・ご内見のご予約はこちらからお気軽にどうぞ | |
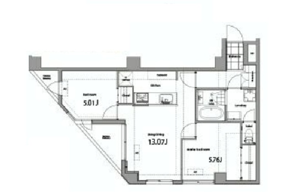
間取りのご紹介です。2LDK、53.94㎡。ゆとりの1人暮らし、もしくはご夫婦でお住いになるイメージでしょうか(●´∀`)![]() 扉を開けると、リノベーション済みでピカピカです(*´˘`*)♡石材風のタイルが高級感を漂わせます♪♪明るくて素敵な玄関で、お部屋も期待できそうです。 |
|
玄関右手の壁には、大きな姿見の鏡☆お出かけ前の身だしなみのチェックに便利ですね♫
玄関左手には、トールサイズのシューズボックスがあります☆棚が可動式になっていますので、ブーツの収納もOK(´∀`*)傘を収納するスペースもあって◎
玄関突き当たりには、サニタリールーム☆
洗面台・洗濯機置場・バスルーム・トイレがまとまっています♪♪清潔感たっぷり♡右からバスルーム、洗面台、トイレ、洗濯機置場の並びになっています。
ワイドなミラーが魅力的なバスルーム☆
ゆっくり大きなバスタブにつかって疲れを癒せそうです♪♪
追い焚きと浴室乾燥機能が付いています。雨の日でも安心してお洗濯ができますよ
(*´∀`*)
三面鏡の付いた洗面台は鏡の裏が収納スペースになっていて、ハブラシから洗顔フォームまでゴチャゴチャ散らかりがちな洗面まわりの物はこちらにお仕舞いただけます。♪♪
シャワーヘッドになっていのるも嬉しいですね♪♪
こちらは、ウォシュレット付きのトイレ☆収納は、ありませんので、後から棚を設置したり、突っ張り棒で収納を作ったりと工夫したいですね(*´∀`*)
洗濯機置場もこちらのお部屋あります。水周りがまとまっていて便利です♪♪
それでは、廊下に戻ってリビングダイニングキッチンへ♪♪
リビングダイニングキッチンは、約13.07帖と広々サイズヽ(*´∀`)ノ
二面採光で明るさも十分です。フローリングも明るい色調で素敵なお部屋です♫
ッチンです☆人造大理石の大きなワークトップが魅力的。
キャビネットはスライド式なのでキッチングッズの収納も楽々(●´∀`●)
3つ口コンロはお料理好きの方には嬉しいですね♪シンクは大きめで使い勝手◎
キッチンからリビングダイニングを見渡せるもの良いですね。冷蔵庫置場もしっかり確保されています。
リビングダイニングのお隣り約5.76帖の洋室です☆細い縄を編み込んだような涼し気な印象の床材とアクセントクロスがポイントのおしゃれなお部屋♪♪ベットルームになるお部屋でしょう(●´∀`)
アクセントクロスには素敵な照明♪♪
こちらのお部屋には大型のクローゼットが設置されています♪
奥行きもしっかりで収納力バツグン☆バーも付いているので、ロングコート等の衣類の収納にも良いですね♪♪収納が大きいと生活スペースが広く使えて◎
お次は、リビングダイニングの反対側、約5.01帖の洋室です。こちらのお部屋も二面採光で採光で明るさ十分(●´∀`)
クローゼットもあり収納もOK♪奥行きもしっかりです♪♪
お部屋の奥にはバルコニー。エアコンの室外機を置いたら、狭いです。でもご安心ください、こちらのバルコニーはメインのバルコニーではありません。もう一つあります(●´∀`)
リビングダイニングからメインのバルコニーに出てみます♪♪こちらのバルコニーも大きくはありませんが、工夫をしてお洗濯物を干しましょう☆浴室の乾燥機が助かります(*´∀`*)
眺望です☆近くに建物が無いので、眺望は、ひらけていますヽ(*´∀`)ノ
周りの視線を気にしなくて良いので、のびのびと生活できます♪♪
駅チカですが、周囲は落ち着いた住宅地。
日当たり良好な角部屋で充実した生活が送れると思います☆
内見のご希望、ご質問などございましたら、![]()
過去に販売していたお部屋の概要 このお部屋の販売は終了いたしました。
| 価格 | – 万円 |
| 面積 | 53.94㎡ |
| 間取り | 2bedrooms(2LDK) |
| 管理費 | 月額13,600円 修繕積立金:月額6,060円 |
| 所在階 | 7F |
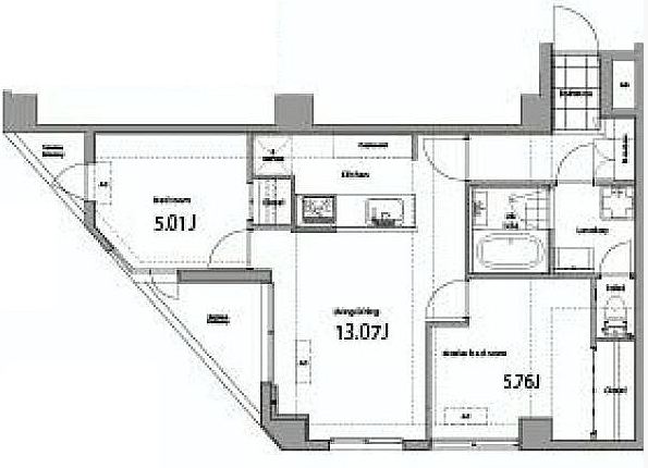
間取りのご紹介です。2LDK、53.94㎡。ゆとりの1人暮らし、もしくはご夫婦でお住いになるイメージでしょうか(●´∀`)
扉を開けると、ピカピカです!
ゆとりのある広々とした玄関です。白を基調とした玄関で素敵です(●´∀`)
右側の壁には大きな姿見の鏡があります。
お出かけ前のチェックもバッチリです(o´∀`ノ
照明は人感センサー機能付ですので、
シューズボックスは、トールサイズなので収納力バツグン!!
家族全員分の靴もスッキリおさまると思います(o´∀`ノ
シューズボックスの奥が洗面台・洗濯機置場・バスルーム・トイレがまとまったサニタリールームです。脱衣スペースが広々としていて、白色でまとめられた空間は清潔感たっぷり♡
左から洗濯機置場、トイレ、洗面台、バスルームの並びになっています♪♪
まずは、洗濯機置き場です☆
棚等は設置されていませんので、後から棚を設置したり、突っ張り棒で収納を作ったりと工夫したいですね♪♪
新規交換済みでピッカピカ(*´ω`*)
嬉しいウォシュレット付になります。
真っ白で清潔感のある洗面台は、大きな鏡が魅力的☆
鏡の裏に収納スペースのありますので、ハブラシから洗顔フォームまでゴチャゴチャ散らかりがちな洗面ま
白で統一されたキレイなバスルームです☆
ゆっくり大きなバスタブにつかって疲れを癒せそうです♪♪
追い焚きと浴室乾燥機能が付いています。
(*´∀`*)
こちらがリビングダイニングキッチンへの扉です☆
リビングダイニングに入ると、光いっぱいのお部屋です(*´∀`*)
ワークスペースは人造大理石トップ☆3つ口コンロはお料理好きの方には嬉しいですね。
キャビネットはスライド式なのでキッチングッズの収納も楽々(●´∀`●)
冷蔵庫置場もしっかり用意されています☆
リビングを見渡しながらお料理ができるのもポイントですよ♪ お料理の時間もご家族団らんの時間になります♪♪
リビングダイニングです☆2面採光で明るさ十分♪♪明るいリビングは家族の集いの場所にピッタリです☆
一番奥のお部屋 約5.01帖の洋室です☆こちらのお部屋も2面採光で明るさ十分♪♪
窓からの景色も最高です☆
クローゼットもあり収納もOK♪奥行きもしっかりです♪♪バーも付いているので、ロングコート等の衣類の収納にも良いですね♪♪収納が大きいと生活スペースが広く使えて◎
お次は、リビングダイニングの反対側のお部屋です。約5.76帖の洋室です♪♪
ベットルームになるお部屋かと思います。窓からの日差しで、朝はすっきり目覚められそうです(*´˘`*)♡
奥行きのある大きめのクローゼットもありますので、収納もGood♪♪
それでは、最後にバルコニーに出てみましょう♪♪
少し小さいでしょうか。工夫をしてお洗濯物を干しましょう☆浴室の乾燥機が助かります(*´∀`*)
バルコニーからの眺望です☆
近くに高い建物がないので、最高の眺望です(*´˘`*)♡方角的には、晴れていれば富士山も見れるのではないでしょうか♪♪
駅チカですが緑も多いエリアです。
最上階の角部屋で充実した生活が送れると思います☆
内見のご希望、ご質問などございましたら、![]()
過去に販売していたお部屋の概要 このお部屋の販売は終了いたしました。
| 価格 | – 万円 |
| 面積 | 55.57㎡ |
| 間取り | 3bedrooms(3LDK) |
| 管理費 | 月額14,000円 修繕積立金:月額6,240円 |
| 所在階 | 5F |
間取りのご紹介です。 55.57㎡ 3LDK
お部屋は角部屋。
玄関を入ると右手にシューズBOXが設置されています。
シューズBOXは扉の半分が鏡になっているのでお出かけ前の身だしなみチェックもサッと出来て便利。
シューズBOXのとなりには物入れもつくられているので、シューズBOXに入りきらない靴やスリッパ、日用品のストックなどもしっかり収納できます。
玄関を上がり、廊下の手前から順番に見ていきます。
こちらは約4.4帖の洋室。
物入れもありますが、ハンガーポールなどはないので収納ケースなどを用意してもいいかも・・・。
窓は2重サッシなので、閉めれば環七の音は気になりません。
洋室の隣りはトイレ。
ウォシュレット付き。上には棚もあるので、トイレットペーパーのストックもこちらに置いておけます。
トイレの隣りの洋室へ。
洋室は約4.5帖の広さ。
こちらには枕棚とハンガーポールのついたクローゼットがつくられています。
引戸は、洗面室です。
三面鏡の裏は、収納スペース付。歯ブラシ、メイク落とし等、小物類も片づけておけます。
いつもキレイにしておきたいところです。
洗濯パンは入って右に用意されています。
上には、棚が設けてあるので手の届くところに洗剤が置けてとても便利。
バスルームは浴室換気乾燥機と追い焚き機能が付いています。
いつでも快適なバスタイムをお過ごしいただけます。
廊下を進んだ突き当り正面の扉の奥、リビングダイニングキッチンへ。
こちらはキッチンスペース。

収納も上下にたっぷり!大きなお鍋やフライパンもすっぽりしまえそうです。

キッチンはリビング側から壁で半分見えなくなっているので、お客様が遊びに来た時でも雑多な手元が丸見えになる心配はありません。冷蔵庫置き場が見えないのもうれしいですね。
リビングダイニングからはバルコニーへ出れます。

バルコニーは北向き、約4.5㎡。
眺めは◎!外は住宅街が広がっています。
リビングに隣接した洋室へ。
約6.1帖の広さ。
壁一面には収納がつくられています。棚もあるので整理整頓もはかどりそうです♪収納が大きいと生活スペースを有効に使えるのがうれしいところです。
窓は二重サッシ。
約6.1畳の洋室と約4.5畳の洋室の引戸を開け放しすと、約18.3帖の大リビングに変身!
生活シーンに合わせて独立させて利用したり、つなげて使ったりとフレキシブルにご利用いただけます。柔軟に使える間取りは長く住む上でも便利ですよ。
以下がリフォーム内容です!
・全建具新規設置
・システムキッチン新規交換
・ユニットバス新規交換
・ガス給湯器新規交換
・TVモニター付きインターホン
・全部屋照明器具付
・エアコン先行配管
・全室クロス・フローリング貼り替え
・玄関人感センサー付き照明
・シャワートイレ・洗面化粧台新規交換
しかも、アフター保証が付いていますので安心です。
ご内見のご希望、その他ご質問などもお気軽にお問合せください![]()
過去に販売していたお部屋の概要 このお部屋の販売は終了いたしました。
| 価格 | -万円 |
| 面積 | 47.43㎡ |
| 間取り | 2bedrooms(2LDK) |
| 管理費 | 月額:12,000円 修繕積立金:月額5,340円 |
| 所在階 | 5階 |
| お問い合わせ・ご内見のご予約はこちらからお気軽にどうぞ | |
それでは目的のお部屋へ。
ブラウンの玄関扉がエレガント。
玄関へ入ると左にニッチカウンター。
人感センサー付き照明なのでお出掛けとお帰りの際にはいつも明るいです。
廊下にウォークインクローゼット・シューズボックス・クローゼットの大容量の収納スペースが!これだけあれば色んなものを仕舞えますね。
~~トイレ~~
シャワートイレ
~~洗面室~~
洗面室はダイニングキッチンから入ります。
鏡の裏に歯ブラシ等の小物をスッキリ収納できます。
洗面台の隣に洗濯機置場
バスルームは、追い焚き機能が付いています!いつでも温めてお風呂に入れます。
そして、浴室乾燥機能も付いてます。
~~LDK~~
約8.6帖 ダイニングキッチン
木調のフローリングが優しさと温かさを演出してます。
キッチンの隣に収納スペースがあります!
システムキッチンも新規交換なので新品です!
~~洋室 約6.0帖~~
3連引戸になっていますので、常に開いていてもゆったりご利用できます。
3連引戸の左を開けると……
こちらにも収納スペースがあります。
開いた状態ですと合計で約14.6帖のLDKになります。
~~洋室 約4.6帖~~
クローゼット付のお部屋
寝室としていかがでしょう!
~~バルコニー~~
バルコニー 4.9㎡
~~眺望~~
気になる眺望は……
残念ながら本日は曇りなので・・・青空が見えていたとしたら・・・
素晴らしいこと間違いなし!
~~~【間取り】~~~
如何でしたでしょうか?
リフォームで新規導入した設備等には、アフターサービス保証書付です。
徒歩4分が何とも魅力で、小田急線の他、井の頭線もご利用できます。
内見のお問合せ、いつでもお電話下さい。
スタッフ一同心よりお待ちしております。














































































































































































































































































弊社 公式HP
六棒総合研究所
掲載予定物件
価格変更と販売終了物件
ハザードマップ検索
適合証明書.jp
Facebook
Twitter
Instagram