・
□□□□□□□□□□□□□□□□□□□□□□□□□□□□□□□□□□□□□□□
いつも弊社ホームページをご覧頂き誠にありがとうございます。
モナーク三軒茶屋はお陰様で販売を終了致しました。弊社問合せフォームにてご要望頂けましたら、当お部屋でキャンセル等が発生した場合、他のお部屋が販売になりました際にご紹介させて頂きます。
不動産Agent 六棒株式会社
TEL:03‐5413‐5336
□□□□□□□□□□□□□□□□□□□□□□□□□□□□□□□□□□□□□□□
・
東急田園都市線「三軒茶屋」駅から徒歩8分。
にぎやかな三茶エリアから『モナーク三軒茶屋』のご紹介です。
□□□□□□□□□□□□□□□□□□□□□□□□□□□□□□□□□□□□□□□
★★★【モナーク三軒茶屋】周辺のハザードマップをCHECK!!★★★
お部屋の記事を読む前に…!周辺のハザードマップをチェックしておきませんか!
モナーク三軒茶屋のハザードマップは★こちらから…どうぞ★
□□□□□□□□□□□□□□□□□□□□□□□□□□□□□□□□□□□□□□□
ハザードマップもご確認いただきましたので、次は街の紹介です!
三軒茶屋駅は、東急田園都市線で渋谷駅から4分という好立地♪
三軒茶屋の駅前も様々開発が進み、ランドマークの「キャロットタワー」をはじめとして、お洒落な街になっています。
「オシャレな街」だけじゃないのが三軒茶屋。1本路地に入れば、昔ながらのレトロな「飲み屋」が軒を連ねる飲み屋街もあって、夜もまた別の楽しみ方ができる、楽しい街です。
路地を散策していると、銭湯がありました。
三茶の駅前に銭湯なんて!!たまには大きなお風呂でゆっくりというのも、良い休日の過ごし方ですよね(#^.^#)
駅前には大きなスーパーSEIYUがあり、一部を除き24時間営業をしているので、残業で、仲間と飲みに行って遅くなっても、安心してお買い物をしてから帰れます。
キャロットタワーの中にも東急ストアが入っていて、こちらも夜11時までの営業なので、安心です♪
目指すマンションはキャロットタワー前の世田谷通りをまっすぐ行けば到着します。
途中にはドラッグストアや商店街、コンビニなどがあり日常のお買い物に困ることはありません。
・
途中、世田谷線の「西太子堂」駅がありました。
世田谷線の駅の中で、一番乗降客数の少ない駅だそうです。それもそのはず、キャロットタワーがまだすぐそこに見えます笑
また、近くには「最勝寺」というお寺があります。
このお寺は「目青不動」として知られています。東京には「目青」の他に「目赤」「目白」「目黒」「目黄」の合わせて5つの「五色不動」があります。
ご存知の通り、「目黒」や「目白」はそのまま地名として残っています。
たまには「へぇ~」というためになる事も言いますよ笑
そうこうしているうちに、世田谷通り沿いに見えてきたのが『モナーク三軒茶屋』です。
エントランスは世田谷通り沿いにあるので、とても分かりやすいですよ。
横には補聴器の店舗が入っています。
補聴器の店舗横にはマンション専用のゴミ置場がありました。
ゴミ置場手前は屋根付きの駐輪場になっています。
マンション裏手にも駐輪スペースがありました。
さて、エントランス内に入ってみましょう。
エントランスを入るとすぐ横が管理人室になっています。
オートロックはありませんが、人がいることで防犯効果になりますね。
(管理は管理会社へ全部委託されています。)
エレベーターはマンションの奥の方にあるので案内に従って歩いて行きます。
監視カメラも目を光らせているので防犯に対する姿勢も安心できます。
エレベーターは2基設置。待ち時間も少なくて済みそうです。
共用廊下は風通しのいい外廊下タイプ。ついたてがついているので外からの視線も気にならずプライバシーも守られます。
今回ご紹介するお部屋は4階、専有面積45.05㎡の1LDK。おひとり暮らしやDINKSの方にお勧めのお部屋です。
間取り図はコチラ ↓ ↓ ↓
※間取り図は別タブで開きますので、確認しながらご覧いただくことができます。
では早速行ってみましょう!
【玄関廊下】
ドア横にはモニター付きインターホン。ドアスコープもありますが、覗いたら向こうからも覗いていそうでなんか苦手なんですよね。怖い映画の見過ぎでしょうか、、、^^;
【玄関廊下】
玄関から伸びる廊下はL字に折れていて、戸口から室内の様子が見えづらくなっています。昨今は宅配便やフードデリバリーなどを使う機会も増えていますので、このような造りは嬉しいですよね。
【玄関廊下】
トータルタイプのシューズボックス。たっぷり収納できるのはもちろん、扉には全身鏡がついておりお出かけ前の身だしなみチェックにも便利です。
【玄関廊下】
廊下に並んだ3つの扉のうち真ん中を開けると洗濯スペースになっています。扉を閉めればきれいに隠れますが、閉めっぱなしだと湿気がこもりそうなので、マメに開けておくようにした方がいいかもしれませんね。
それではお部屋へ・・・
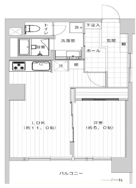
【LDK】
こちらは約12.5帖のリビング・ダイニング・キッチン。西向きのバルコニーに面したお部屋です。家具の配置次第で空間をゆるやかに分けられるつくり。ダイニングとリビングをさりげなく区切ることでそれぞれが落ち着いた雰囲気で過ごせる心地よい空間になります。
【LDK】
リビング部分は折り上げ天井になった解放感のある空間。設置された間接照明が優しく照らす癒しの空間です。色使いがシンプルなので家具やカーテンも合わせやすそうですね。
【キッチン】
キッチンは壁付けタイプ。場所をとらずにお部屋を広く使えるのが特徴です。ただし、キッチン内が目立つのでなるべくキレイにしておきましょう。
【キッチン】
収納は出し入れのしやすいスライドキャビネット。ぎっしり詰めても中身のチェックがしやすいのも嬉しいですね。上部には吊戸棚付き。
【キッチン】
シンクはシームレスでお掃除ラクラク。水栓は浄水機能一体型なので贅沢に美味しいお水を使えますよ。お料理やお茶はもちろんお米を研いだりにも使っちゃいましょう! コンロは3口、グリル付き◎
隣のお部屋へ・・・
【洋室】
こちらは約5.2帖の洋室。リビングに隣接していて引き戸を開けておけばリビングと一体感のある空間に、閉めればプライベートな寝室に使える柔軟性のある間取りです。クローゼット&棚あり◎(どこかの追加工事があったようで…汚くてスミマセン)
廊下に戻って、洗面室へ・・・
【洗面室】
ゆったりとした洗面室には洗面化粧台と浴室がまとまっていて脱衣室も兼ねています。
【洗面室】
洗面化粧台は身だしなみを整えるのに便利な三面鏡付き。裏がキャビネットになっているので、洗面周りに散らかりがちな細々したものもスッキリと片付けることができますよ。浴室との間には窓がありブラインドで目隠しできるようになっています。ただ、目隠しが外に付いていて意味があるのかな・・・?
【浴室】
無駄のないシンプルなデザインが毎日の疲れを癒してくれそうですね♪ 追い焚き機能がボタンひとつでお風呂のお湯張りから保温までしてくれるので、いつでも温かいお風呂に入ることができますよ。子供の頃は「冷めちゃうから早く入っちゃいなさい!」なんて親によく怒られたもの。昔は冷めたお湯を抜いて熱いお湯を足していたんですから、勿体ない話です。
トイレへ・・・
⚠段差が二つ、要注意です⚠
【トイレ】
カウンター付きの広々としたトイレです。窓があるのも広く感じる理由かもしれませんね。
【トイレ】
トイレはINAX製の温水洗浄便座一体型。カウンターの下が、トイレットペーパーや掃除道具を入れておくのに便利な収納になっていました。
【バルコニー】
広さ7.59㎡、西向き。幅も奥行きもあるバルコニーです。物干し金物が付いているのでお洗濯物も干せるようです。
【眺望】
眺めは・・・何もかもという訳にはいきませんよね^^;
・
以上でモナーク三軒茶屋のご案内を終わります。
いかがでしたでしょうか??
三軒茶屋駅から徒歩9分のマンションです。
リノベーション済みという事で室内はとてもキレイですよ (っ・ω・)っ
内見のご予約やご質問などございましたらお気軽にお問い合わせくださいませ。
ご連絡お待ちしております。
弊社、不動産Agent 六棒株式会社では、
□リノベーションマンションはほぼ全て仲介手数料無料!
□その他一般仲介物件は仲介手数料20%~30%OFF!
にてお取り扱いしております!※弊社の「Agent Fee=仲介手数料」についてはご案内、ご面談の際に営業担当者よりご説明いたします!
なるべく沢山のお部屋をホームページに掲載したいと思っておりますが、時間的成約もございますので、残念ながらご紹介できるお部屋の一部しか掲載できておりません。
このホームページに掲載中のお部屋、その他サイト等で気になるお部屋、街を歩いていて気になったマンション等々ございましたら是非、弊社営業部までご相談ください!
~不動産Agent 六棒株式会社の特徴~
・一般仲介物件の仲介手数料は20%~30%OFFにてご案内中です!
・リノベーションマンションについてはほぼ全て仲介手数料無料です!
・住宅ローンに自信あります!
・頭金10万円より購入できます。是非ご相談下さい!
・お部屋のご見学は車で2~3件まとめて案内します!
・物件数3000件以上、新築戸建、リノベ物件も多数ご用意しております!
過去に販売していたお部屋の概要 こちらのお部屋の販売は終了いたしました
| 価格 | -万円 |
| 面積 | 45.05㎡ |
| 間取り | 1bedroom(SLDK) |
| 管理費 | 月額12,386円 修繕積立金:月額11,340円 |
| 所在階 | 1階 |
| お問い合わせ・ご内見のご予約はこちらからお気軽にどうぞ | |
今回ご紹介するお部屋は1階、専有面積45.05㎡のSLDK。ゆったりめのレイアウトで、お一人暮らしの方におすすめのお部屋です。
※間取り図は別タブで開きますので、確認しながらご覧いただくことができます。
では、早速行ってみましょう!
【玄関】
ドア横にはモニター付きインターホン。室内から玄関前の様子を確認することができるのでわざわざ玄関まで来る必要がなく、ちょっと手が離せない時などにはとても重宝します。
【玄関】
シンプルですがナチュラルな雰囲気で、帰ってきたときにホッとするような玄関ですね(^^♪
【玄関】
玄関の照明には人感センサーが付いていていつでも明るい玄関が迎えてくれます。シューズボックスの上にはちょっとした雑貨やグリーンを飾れるスペースがありますので、お好きなものを飾って癒されましょう!
【玄関・廊下】
しっかりとした廊下があって、その途中に洗面・トイレ・浴室がそれぞれ独立して配置されてます。L字に折れているので玄関からお部屋の様子が見えたりすることもありません。
それではLDKへ・・・
【LDK】
こちらは約12.3帖のリビング、ダイニング、キッチンです。この広さがあると、家族や友達が集まっても圧迫感がなくて、自然とくつろげる空間になりますね✨✨
【LDK】
玄関インターホンのモニターはコチラ。
【キッチン】
キッチンは壁付けタイプ。場所をとらずにお部屋を広く使えるのが特徴です。ただし、キッチン内が目立つのでなるべくキレイにしておきましょう。
【キッチン】
収納力はスライドキャビネット。出し入れがしやすく使いやすい収納です。 コンロは3口グリル付き。
【キッチン】
さらに吊戸棚付きで収納力UP〇
サービスルームへ・・・
【サービスルーム】
約4帖のサービスルーム。採光の関係でサービスルームとなっていますが普通に洋室として使える部屋です。ダークトーンのフローリングと白い壁のコントラストがオシャレですね(^▽^)/
【サービスルーム】
限られたスペースをうまく活かしていて、クローゼットが広いのはありがたいポイントです♪
洗面室へ・・・
珍しい独立した洗面室です。浴室や洗濯機と別々だと来客時に気を使う必要がないのがいいですよね。
【浴室】
浴室手前の脱衣室は洗濯機スペースを兼ねています。
浴室は白を基調に木目のアクセントパネルを使用した落ち着いた雰囲気。リラックスしたバスタイムで一日の疲れも洗い流せそうです♬
【浴室】
浴室換気乾燥機は浴室の換気だけでなく、お洗濯物乾燥や浴室暖房など様々な使い方が出来ます。「涼風」なんてボタンもありますのでこれからの暑い季節にも活躍してくれそうですね。
バルコニー付きなのはやっぱり嬉しいポイント。外に洗濯物を干せるスペースがあるのは助かります。
・
以上でモナーク三軒茶屋のご案内を終わります。
いかがでしたでしょうか??
三軒茶屋駅から徒歩9分のマンションです。
リノベーション済みという事で室内はとてもキレイですよ (っ・ω・)っ
内見のご予約やご質問などございましたらお気軽にお問い合わせくださいませ。
ご連絡お待ちしております。
弊社、不動産Agent 六棒株式会社では、
□リノベーションマンションはほぼ全て仲介手数料無料!
□その他一般仲介物件は仲介手数料20%~30%OFF!
にてお取り扱いしております!※弊社の「Agent Fee=仲介手数料」についてはご案内、ご面談の際に営業担当者よりご説明いたします!
なるべく沢山のお部屋をホームページに掲載したいと思っておりますが、時間的成約もございますので、残念ながらご紹介できるお部屋の一部しか掲載できておりません。
このホームページに掲載中のお部屋、その他サイト等で気になるお部屋、街を歩いていて気になったマンション等々ございましたら是非、弊社営業部までご相談ください!
~不動産Agent 六棒株式会社の特徴~
・一般仲介物件の仲介手数料は20%~30%OFFにてご案内中です!
・リノベーションマンションについてはほぼ全て仲介手数料無料です!
・住宅ローンに自信あります!
・頭金10万円より購入できます。是非ご相談下さい!
・お部屋のご見学は車で2~3件まとめて案内します!
・物件数3000件以上、新築戸建、リノベ物件も多数ご用意しております!
過去に販売していたお部屋の概要 こちらのお部屋の販売は終了いたしました
| 価格 | -万円 |
| 面積 | 45.05㎡ |
| 間取り | 1bedroom(1LDK) |
| 管理費 | 月額12,386円 修繕積立金:月額11,340円 |
| 所在階 | 5階 |
| お問い合わせ・ご内見のご予約はこちらからお気軽にどうぞ | |
ここで間取り図のご紹介です。
※間取り図は別タブで開きますので、確認しながらご覧頂く事が出来ます。
□□□□□□□□□□□□□□□□□□□□□□□□□□□□□□□□□□□□□□□
★★★【モナーク三軒茶屋】周辺のハザードマップをCHECK!!★★★
お部屋の記事を読む前に…!周辺のハザードマップをチェックしておきませんか!
モナーク三軒茶屋のハザードマップは★こちらから…どうぞ★
□□□□□□□□□□□□□□□□□□□□□□□□□□□□□□□□□□□□□□□
今回のお部屋は5階、間取りは1LDK、専有面積は45.05㎡。お一人暮らしの方にお勧めのお部屋です。では、早速行ってみましょう!
エレベーターで5階まで上がりお部屋へ向かいます。
玄関ドア横にはTVモニター付きインターホンが設置されて、お部屋の中から訪問者を確認する事が出来ます。映像を見てから応対するかを決められるのは、防犯面でも安心ですね。
広々とした玄関からは廊下が横向きに伸びていました。建具なども白で揃えていて、明るい雰囲気ですね。
玄関に設置された人感センサーが自動的にライトを点けてくれるので、暗い中手探りでスイッチを探す必要はありません。いつでも明るい玄関が迎えてくれるのって嬉しいものですよね(*´▽`*)お出かけ前の身だしなみチェックはシューズボックスの扉に付いた姿見でどうぞ!
シューズボックスはトールタイプとロータイプ。取っ手などの無いスッキリとしたデザインです。トールタイプは天井高まで使えて収納力抜群!可動式の棚を調節すればブーツなどでも収納可能です。ロータイプの上はカウンターになっているので「家の顏」を飾り付ける事も出来ますよ。もちろん、小銭や鍵などを置いて実用的に使うのもありだと思います。洒落たトレイなど使うと一石二鳥になるかもしれませんね。
左方向には廊下、右側には収納棚がありました。
では、まずは正面のドアから…
こちらは約13.6帖のリビング・ダイニング・キッチン。南向きの窓からの光で、とても明るいお部屋です。キッチンが奥まった所にあり、リビングダイニングで四角いスペースを使えるので、レイアウトがしやすそうですね。
梁がありますが、梁の向こう側をダイニングにこちら側をリビングになど、レイアウト次第ではゾーンニングに上手く使う事が出来そうです。
キッチンは半独立タイプ。カウンターキッチンのように開放的ではありませんが、お料理好きな方はこちらの方が集中出来ていいらしいですよ。キッチン横には収納棚。奥行きがあって、棚の手前にはスティッククリーナーのような背の高い物を収納する事も出来ます。
では、キッチンを詳しく見ていきましょう。
収納は調理台下のスライドキャビネットと吊り扉。引き出しタイプのスライドキャビネットは出し入れがしやすく、たくさん詰めても中身の確認が容易という特徴があります。吊り扉は扉が上に開くタイプ。
コンロは3口、タイマーや温度設定も出来る高機能タイプです。いつの間にこんなことが可能に!知らない間にどんどん便利になっていくんですね^^;)
奥まっているといっても臭いはどこまでも広がって行きますから、調理中は換気扇をお忘れなく。早めにスイッチを入れると効果的らしいですよ。是非お試しを。
水栓は浄水機能付きシャワー水栓。切り替えひとつで気軽に美味しいお水を使えます。ヘッドが伸びるので、シンクや大きな鍋などのお掃除も楽々♪
キッチン奥にはオープンの収納棚、調理台後方は冷蔵庫や家電ラックなどを置けるようにスペース、コンセントが設けられていました。収納棚は外からは見えない場所なので、扉がない方が便利ですよね。
では、次のお部屋へ…
こちらは約5.3帖の洋室。LDKと同じ南向きのバルコニーに面したお部屋です。シンプルな内装なので、カーテンや家具のチョイスの幅も広がりそうですね。自分好みに変えていく楽しみがあります。
収納は間口が広くて使いやすそうなクローゼット。奥行きもたっぷりで、キャリーバッグやスーツケースなどの大きな物も楽に入ります。衣装ケースなどで収納力アップもアリですね。
廊下へ戻って…
突き当り右側は洗濯機スペースになっていました。扉などはありませんがご安心を。ブラインドが設置されていますので、洗濯機がむき出しになる事はありません。換気が良く湿気が籠らないなんていうメリットのおまけ付きです。
突き当りはトイレです。
トイレットペーパーなどのストックに便利な吊戸棚が付いています。低めの位置に設置されているのが有難いですね(^^)もちろん洗浄便座付き。TOTO製のウォシュレットです。
左側は洗面室。洗面室には洗面台の他に、浴室、リネン棚がまとまっていて、脱衣所も兼ねています。
洗面台はシンプルなタイプ。すっきりしていてイイ感じですね(^^)洗面台下のスぺ―スにはランドリーBOXなども置けますよ。
収納は鏡の裏のミラーキャビネット。洗面ボウルの周りもいろいろ置けるので、細々した物が多くなりがちな洗面廻りでも安心です。
次は浴室へ…
追い焚き機能付きで「ふろ自動」ボタン一つでお風呂を沸かす事が出来ます。そのまま保温もしてくれるので、いつでも温かいお風呂に入れますよ。
浴室換気乾燥機は浴室の換気の他に、お洗濯物乾燥や浴室暖房など様々な使い方があります。「涼風」ボタンを使えば暑い夏も快適に!残念ながら冷房機能はありませんが、風が濡れた頭を心地良く冷やしてくれますよ。まるで露天風呂気分♬
それでは、最後はバルコニーのご紹介。
LDK、洋室、どちらのお部屋からでも出られます。
広さは7.06㎡、南向き。二部屋分の幅と広い奥行きを持ったゆったりとしたバルコニーです。天井部分には物干し金具も設置され、お洗濯物も干せるようになっていますね。お天気が良ければ陽当り抜群なので、きっと気持ち良く乾きますよ(^^♪
外には、遮る物のない開放的な眺めが広がっています。世田谷通りとは反対側なので音もそれほど気になりませんでしたよ。青空が広がっていればもっときれいだったんですけど残念です^^;)
・
以上でモナーク三軒茶屋のご案内を終わります。
いかがでしたでしょうか??
三軒茶屋駅から徒歩9分のマンションです。
リノベーション済みという事で室内はとてもキレイですよ (っ・ω・)っ
内見のご予約やご質問などございましたらお気軽にお問い合わせくださいませ。
ご連絡お待ちしております。
□□□□□□□□□□□□□□□□□□□□□□□□□□□□□□□□□□□□□□□
★★★【モナーク三軒茶屋】周辺のハザードマップをCHECK!!★★★
お部屋のご購入前に…!周辺のハザードマップをチェックしておきませんか!
モナーク三軒茶屋のハザードマップは★こちらから…どうぞ★
□□□□□□□□□□□□□□□□□□□□□□□□□□□□□□□□□□□□□□□
弊社、不動産Agent 六棒株式会社では、
□リノベーションマンションはほぼ全て仲介手数料無料!
□その他一般仲介物件は仲介手数料20%~30%OFF!
にてお取り扱いしております!※弊社の「Agent Fee=仲介手数料」についてはご案内、ご面談の際に営業担当者よりご説明いたします!
なるべく沢山のお部屋をホームページに掲載したいと思っておりますが、時間的成約もございますので、残念ながらご紹介できるお部屋の一部しか掲載できておりません。
このホームページに掲載中のお部屋、その他サイト等で気になるお部屋、街を歩いていて気になったマンション等々ございましたら是非、弊社営業部までご相談ください!
~不動産Agent 六棒株式会社の特徴~
・一般仲介物件の仲介手数料は20%~30%OFFにてご案内中です!
・リノベーションマンションについてはほぼ全て仲介手数料無料です!
・住宅ローンに自信あります!
・頭金10万円より購入できます。是非ご相談下さい!
・お部屋のご見学は車で2~3件まとめて案内します!
・物件数3000件以上、新築戸建、リノベ物件も多数ご用意しております!
過去に販売していたお部屋の概要 このお部屋の販売は終了いたしました。
| 価格 | -万円 |
| 面積 | 25.50㎡ |
| 間取り | 1bedroom(1K) |
| 管理費 | 月額6,370円 修繕積立金:月額6,420円 |
| 所在階 | 2階 |
| お問い合わせ・ご内見のご予約はこちらからお気軽にどうぞ | |
間取りは1K、25.50㎡。
1人暮らしや投資としてもおすすめです。
間取りはクリックすると別タブで開きますよ!
お部屋は2階です。
□□□□□□□□□□□□□□□□□□□□□□□□□□□□□□□□□□□□□□□
★★★【モナーク三軒茶屋】周辺のハザードマップをCHECK!!★★★
お部屋の記事を読む前に…!周辺のハザードマップをチェックしておきませんか!
モナーク三軒茶屋のハザードマップは★こちらから…どうぞ★
□□□□□□□□□□□□□□□□□□□□□□□□□□□□□□□□□□□□□□□
玄関前に到着です。インターホンはTVモニターがついており、来訪者の顏がバッチリ確認できるので防犯面も安心です。
それでは玄関をあけてお部屋の中へおじゃまします。
室内はリノベーション済みでぴかぴかです。
玄関横には可動棚付きの収納が造作されています。
靴はここにたくさん置いておけますよ。扉がないのでセンスよく並べたいところです。
玄関をあがると廊下がまっすぐのびています。
まっすぐ進んだ正面の扉をあけてお部屋を先に見ていきましょう。
どうぞお入りくださいませ。
お部屋は約6.5帖。間取りは1Kですのでここにベッドやテレビなどを置く感じです。手の届く範囲に色々おける生活が待っています。
エアコンは「にくいねぇ、三菱」でおなじみの三菱霧ヶ峰が設置されています。
窓側からもご覧ください。白い扉の中は何でしょう??
正解はキッチンです。独立しているのでお友達が遊びに来た際に生活感のあるところを見られる心配はありません。
キッチンスペースは一番奥側に冷蔵庫が置けるようになっています。
においがこもりやすそうなのでお料理中の換気はしっかりとした方がよさそうです。
ワークトップ下の収納スペースには鍋やザルなど一通りのキッチングッズが収まりそうです。
LDKを入って左側の扉はクローゼットになっていました。
コートなど畳みたくないお洋服もしっかり管理できますね。
お部屋を出て廊下側を見ていきましょう。
廊下を出て右側の扉の中はバスルームです。
バスルーム手前には洗濯機置場も設置されています。
脱いだ衣類はそのまま洗濯機へ入れられて便利ですね。
バスルーム。ナチュラルな色合いの木目調の壁パネルが使われています。
バスタブもしっかり浸かれる大きさで◎!
お湯はりも自動でできますよ~。
バスルームを出てさらに玄関側へ進むと洗面室があります。
こちらが洗面室。左側がトイレで右側が洗面化粧台です。
洗面化粧台。まあるい洗面ボウルがかわいらしい印象です♡
カウンターも広く身支度もしやすそうですね。
トイレは見た目がスッキリとしたタンクレスタイプ。
後ろに窓があるので自然換気ができるのもうれしいポイントです。
もちろんウォシュレットついていますよ。
最後にお部屋からバルコニーに出てみましょう。
バルコニー単体の広さは分かりませんが、少しコンパクトな印象です。
でも1人分のお洗濯ものを干すには問題なさそうです。
方角は南東向き。
正面の眺望はお隣の建物の壁面です。。。
ちょっと暗い感じがします。
左右も建物に囲まれている感じです。
2階なのでいたしかたないかなぁ、という印象です。
日中あまり家にいない方や眺望にこだわらないけど三茶に住みたい!という方におすすめです。
モナーク三軒茶屋、いかがでしょうか?
内見のご予約やご質問などございましたらお氣軽にお問い合わせくださいませ♪
□□□□□□□□□□□□□□□□□□□□□□□□□□□□□□□□□□□□□□□
★★★【モナーク三軒茶屋】周辺のハザードマップをCHECK!!★★★
お部屋のご購入前に…!周辺のハザードマップをチェックしておきませんか!
モナーク三軒茶屋のハザードマップは★こちらから…どうぞ★
□□□□□□□□□□□□□□□□□□□□□□□□□□□□□□□□□□□□□□□
弊社、不動産Agent 六棒株式会社では、
□リノベーションマンションはほぼ全て仲介手数料無料!
□その他一般仲介物件は仲介手数料20%~30%OFF!
にてお取り扱いしております!※弊社の「Agent Fee=仲介手数料」についてはご案内、ご面談の際に営業担当者よりご説明いたします!
なるべく沢山のお部屋をホームページに掲載したいと思っておりますが、時間的成約もございますので、残念ながらご紹介できるお部屋の一部しか掲載できておりません。
このホームページに掲載中のお部屋、その他サイト等で気になるお部屋、街を歩いていて気になったマンション等々ございましたら是非、弊社営業部までご相談ください!
~不動産Agent 六棒株式会社の特徴~
・一般仲介物件の仲介手数料は20%~30%OFFにてご案内中です!
・リノベーションマンションについてはほぼ全て仲介手数料無料です!
・住宅ローンに自信あります!
・頭金10万円より購入できます。是非ご相談下さい!
・お部屋のご見学は車で2~3件まとめて案内します!
・物件数3000件以上、新築戸建、リノベ物件も多数ご用意しております!
過去に販売していたお部屋の概要 このお部屋の販売は終了いたしました。
| 価格 | -万円 |
| 面積 | 37.92㎡ |
| 間取り | 1bedroom(1LDK) |
| 管理費 | 月額10,505円 修繕積立金:月額9,620円 |
| 所在階 | 8階 |
| お問い合わせ・ご内見のご予約はこちらからお気軽にどうぞ | |
ここで間取り図のご紹介です。
※間取り図は別タブで開きますので、確認しながらご覧いただく事が出来ます。
今回のお部屋は8階、間取りは1LDK、専有面積は37.92㎡となります。
□□□□□□□□□□□□□□□□□□□□□□□□□□□□□□□□□□□□□□□
★★★【モナーク三軒茶屋】周辺のハザードマップをCHECK!!★★★
お部屋の記事を読む前に…!周辺のハザードマップをチェックしておきませんか!
モナーク三軒茶屋のハザードマップは★こちらから…どうぞ★
□□□□□□□□□□□□□□□□□□□□□□□□□□□□□□□□□□□□□□□
では、早速行ってみましょう!
エレベーターを8階で降りて…
風通しのいい外廊下を進むと…
玄関に到着です。
カメラ付きインターホンが設置されていて、お部屋の中から訪問者を確認する事が出来ます。玄関まで来る必要がないのがいいですね。
それではお邪魔します。
玄関ドアを開けると、明るい色使いの玄関が迎えてくれました。廊下はすぐに壁に突き当り、左へ続いています。戸口からお部屋の中が見えないような造りになっているんですね(^^)
振り返って玄関内の様子です。
シューズボックスはトールタイプ。棚板の高さが変えられるので、ブーツなどでも収納可能ですよ。
人感センサーは自動的に照明を点けてくれます。いつでも明るい玄関が迎えてくれるのは嬉しいですよね。
廊下を左に曲がると奥にお部屋が見えてきました。お部屋との間に仕切りはないようですね。さらに進んでいきましょう。
こちらが約10.3帖のリビング・ダイニング・キッチンとなります。
白を基調としたスッキリとした印象のお部屋です。どんな家具でも合いそうですね。
インターホンのモニターが、お部屋入口近辺にありました。キッチンなどにも近くて応対しやすい場所になっています。
窓の外は開放的な風景になってますよ。
では、キッチンを詳しく見ていきます。
壁付けのオープンキッチンですね。落ち着いた雰囲気の調理台です。
コンロは2口。コンロの操作盤には『高温炒め』なるボタンがあり、中華好きの私としては見逃せません(^^)
グリル使用時には換気扇をお忘れなく。
水栓は浄水機能付きシャワー水栓です。
切り替えるだけで水道水が美味しいお水に早変わり。ヘッドが伸びるのでシンクのお掃除などにも便利ですよ。
調理台の下は全て収納になっていました。左側は冷蔵庫スペースです。
では、次のお部屋へ…
リビング内のドアです。
こちらが約6帖の洋室となります。
大きな窓が二面にあるとても明るいお部屋ですね。左の大きい方の窓からはバルコニーへ出られます。
収納は間口が広くて使いやすそうなクローゼットになっていました。ひと目で中が確認出来るのがいいですよね。
窓の外はリビングと同じ眺めですね^^;)
では、次へ…
玄関前にあったドアを開けてみます。
洗面室となります。
真っ白で清潔感のある洗面台です。
収納は鏡横のキャビネットと洗面台下にありました。細かい物はキャビネットへ、大きな物は下へと上手く収まりそうですね。
水栓が少し横に付いているので、顔を洗う時などに邪魔になる事もあありません。
洗濯機スペースには高さ調整可能な棚が付いています。
洗剤や柔軟剤などの洗濯関係の物をまとめておけますね。個人的には、ハンガーが掛けられるようになっている所が高ポイントです(^^)
こんどは、浴室を見てみましょう。
追い焚き機能が付いていますので、いつでも温かいお風呂に入れます。
ゆったり浸かれる広い浴槽。柔らかい曲線が気持ちよさそうですね♬
浴室乾燥機能は浴室のカビ予防だけでなく、雨天のお洗濯物乾燥やヒートショック予防など様々な働きをしてくれます。『涼風』ってずっと気になっていたんですが、扇風機のようなものらしいですよ。ただし、体が濡れているので効果は大です(^^)
次は、洗面室内のドアを開けてみます。
トイレです。
もちろんウォシュレットも完備していますよ。今の時代、無いと困りますよね、TOTOさんお世話になっています(笑)
それでは、最後にバルコニーへ出てみましょう!
洋室の窓から出ます。
4.16㎡のバルコニーです。
幅はあまりありませんが、奥行きがあるので思いのほかゆったりしていますよ。
低い位置まで柵になっているのも、開放感があっていいですね。南向きで陽当りも良好ですので、お洗濯物も気持ち良く乾きそうです♬
正面の眺望は・・・言う事なしです。
左右にも遮る物がなく、さすが8階という眺めです。
夜景にも期待してよさそうですね(^^)
・
以上でモナーク三軒茶屋のご案内を終わります。
いかがでしたでしょうか??
三軒茶屋駅から徒歩8分のマンションです。
リノベーション済みという事で室内はとてもキレイですよ (っ・ω・)っ
内見のご予約やご質問などございましたらお気軽にお問い合わせくださいませ。
ご連絡お待ちしております。
□□□□□□□□□□□□□□□□□□□□□□□□□□□□□□□□□□□□□□□
★★★【モナーク三軒茶屋】周辺のハザードマップをCHECK!!★★★
お部屋のご購入前に…!周辺のハザードマップをチェックしておきませんか!
モナーク三軒茶屋のハザードマップは★こちらから…どうぞ★
□□□□□□□□□□□□□□□□□□□□□□□□□□□□□□□□□□□□□□□
弊社、不動産Agent 六棒株式会社では、
□リノベーションマンションはほぼ全て仲介手数料無料!
□その他一般仲介物件は仲介手数料20%~30%OFF!
にてお取り扱いしております!※弊社の「Agent Fee=仲介手数料」についてはご案内、ご面談の際に営業担当者よりご説明いたします!
なるべく沢山のお部屋をホームページに掲載したいと思っておりますが、時間的成約もございますので、残念ながらご紹介できるお部屋の一部しか掲載できておりません。
このホームページに掲載中のお部屋、その他サイト等で気になるお部屋、街を歩いていて気になったマンション等々ございましたら是非、弊社営業部までご相談ください!
~不動産Agent 六棒株式会社の特徴~
・一般仲介物件の仲介手数料は20%~30%OFFにてご案内中です!
・リノベーションマンションについてはほぼ全て仲介手数料無料です!
・住宅ローンに自信あります!
・頭金10万円より購入できます。是非ご相談下さい!
・お部屋のご見学は車で2~3件まとめて案内します!
・物件数3000件以上、新築戸建、リノベ物件も多数ご用意しております!
過去に販売していたお部屋の概要 このお部屋の販売は終了いたしました。
| 価格 | -万円 |
| 面積 | 48.01㎡ |
| 間取り | 1bedrooms(1LDK) |
| 管理費 | 月額:12,000円 修繕積立金 月額:12,090円 |
| 所在階 | 3階 |
| お問い合わせ・ご内見のご予約はこちらからお気軽にどうぞ | |
1LDK、48.01㎡。
間取りはクリックすると別タブで開くのでゼヒ写真と見比べながらご覧ください♫
お部屋は3階。こちらのお部屋前の共用廊下は内廊下になっています。
外から見えないのでプライバシーも保ちやすいです。
インターホンはTVモニターがついており、来訪者の顏が確認できるので防犯面も安心です。ピンポーン♪が鳴ったら相手をチェックしましょう。
ではうすいピンクの玄関扉をあけて中へおじゃまします。
玄関ホール、広い!!!というのが第一印象。
白いタイル敷きのフロアに窓があり、明るい空間です♫
玄関扉の横にはシューズボックスがあります。
上のカウンター部分にはインテリアなどを飾ってお好みの空間を演出してみてはいかがでしょう?窓際にも棚があるので仕舞い切れない靴はディスプレイしながら収納してもよさそうです。
広い玄関ホールは大きな荷物などの置場としても活躍してくれそうです。
それでは正面に見えるネイビーの扉をあけてリビングダイニングキッチンから見ていきましょう!
ガチャ。
リビングダイニングキッチンは約11.0帖の縦長空間。
東向きのバルコニーに面しています。
照明はダウンライト。お部屋全体をやさしく照らしてくれます。
壁面の間接照明もいい感じです。
窓側からもリビングダイニングキッチンをご覧ください。
縦長空間は家具の配置もしやすそうですね!
キッチンは入口側にあり、壁付けになっています。
窓から離れているのでお料理の際は換気扇をつけるのを忘れずに。。。
吊戸棚に引き出しとキッチンは収納場所が豊富です。
右横は冷蔵庫置場、その横には可動棚もあるのでキッチン用品や食材のストックはこのあたりにまとめて仕舞っておけそうです。
設備はというと、グリル、食洗機、浄水器一体型シャワー水栓と充実しています。
お料理するのが楽しくなりそうなキッチンですね♫
シンクのお掃除時にはホースを伸ばすと隅々まで簡単にキレイにできますよ。
洋室はリビングダイニングに隣接しており、2部屋は3枚の白い可動扉で仕切れるようになっています。
可動扉をあけると。。。約5.0帖の洋室です。
東向きなので朝は気持ちよく目覚めることができそうですね☀
クローゼットは横長でたくさんお洋服がかけておけます♫
洋室とリビングダイニングキッチンはつなげてワンルームのように利用することも可能です。お好みに合わせてお使いください(*´▽`*)
今度はリビングダイニングキッチンを出て玄関ホール側にある洗面室を見ていきましょう。
シューズボックス横の白い扉が洗面室です。
玄関から近いので帰宅後の手洗い・うがいがスムーズにできますね。
風邪の予防には手洗いとうがいが一番いいらしいです( ˘ω˘)
扉は横にスライドして開けます。
洗面化粧台、バスルーム、トイレ、洗濯機置場と水廻りの設備が1箇所にまとまっており、お掃除もまとめてこなしやすそうです。
洗面化粧台は白で清潔感たっぷり♡
鏡の裏や左右の引き出しなど収納スペースが豊富なのがうれしいですね!
カウンターも広々していて身支度がしやすそうです。
水栓はホースを伸ばすとシャワーとしても利用可能です。寝ぐせを直す時はこのシャワーが活躍するはず!!
洗濯機置場とバスルームが同じ空間にあると、脱いだ衣類をすぐ洗濯機に入れられるのがいいですよね。お風呂入っている間に洗濯できますし(*´∀`)b
バスルームとトイレの扉は並んでいます。
※右側の白い扉がトイレです。
トイレはウォシュレット付き。アイアン調のペーパーホルダーとタオル掛けがアーバンな雰囲気です。収納はないので、後から棚などをご自身で設置するのもいいかもしれません。
バスルームは浴室換気乾燥機がついています。
これで雨の日のお洗濯も安心。カラッと乾燥させればカビの発生も抑えられますよ。
白基調の明るいバスルームです(*´▽`*)
シャワーの位置はお好きなところで固定できますよ。
1日の疲れをおとしましょう♪
追い炊き機能もついています。
こころゆくまで温まってください。
最後に洋室とリビングダイニングをつなぐバルコニーに出てみましょう。
どきどき。
バルコニーは約7.41㎡。東向きです。
この日は曇天でしたが晴れた日は午前中に陽ざしが届く感じになるかと思います。広さがあるのでお洗濯物がたくさん干せるのがいいですね。
気になる眺望です。まずは正面。マンションがどーんと建っていますが離れているので陽ざしに影響はなさそうです。左下のオレンジの建物はマンション横のガソリンスタンドです。
左右はこんな感じです。右側は少し抜けた眺めが見えるかな。。。
上を見上げるとこんな感じで建物の間から空が見えます。
ゼヒ実際の見え方等、現地でご確認いただければと思います♫
モナーク三軒茶屋、いかがでしょうか?
内見のご予約やご質問などございましたらお氣軽にお問い合わせくださいませ♪
過去に販売していたお部屋の概要 このお部屋の販売は終了いたしました。
| 価格 | -万円 |
| 面積 | 38.20㎡ |
| 間取り | 1bedroom(1R) |
| 管理費 | 月額:19,200円(修繕積立金含む) |
| 所在階 | 2階 |
| お問い合わせ・ご内見のご予約はこちらからお気軽にどうぞ | |
今回ご案内させていただくお部屋がこちらです。
ワンルームということですが、、、、
さっそく行きましょう!!
こちらが玄関前です。モニター付きのインターフォンが付いているのでお部屋の中からドアの外を確認することができますよ。セールスや勧誘でドアを開けてしまうこともありませんね。
玄関のドアを開けるとまず目に飛び込んでくるのが大きな姿見です。
写真ではしっかり玄関を反射しているので分かりにくいかもしれませんが左手に姿見がありますね。これがあればお出かけ前のコーディネートチェックはバッチリです。
シューズボックスは高さの調整ができます。レインブーツのように背が高くてもしっかり収納できますよ。
シューズボックスの隣に2段の棚があります。小物や観葉植物などでお洒落に飾りたいものですね!
廊下は奥のお部屋へと続いていますが、先に右手のサニタリールームをご紹介します。
まずは洗濯機置場ですね。
上部に棚も付いているので洗剤や柔軟剤、洗濯ネットなどはこちらに置いておくことができますよ。
浴室には乾燥機能が付いているので雨の日は洗い終わった洗濯物をお風呂で乾かすことができます。
お風呂は明るい木目調の壁で爽やかかつ落ち着いた雰囲気です。
追い焚き機能付きなのでオフの日は何回でもお風呂に入ることができますよ。贅沢な充実した休日って感じがしませんか??
先ほどはドアの陰になって見えなかったですが、サニタリールーム入って右側には洗面台が位置しています。
シンプルな洗面台ですがその分、使い勝手は良さそうです。
鏡は内側が収納スペースとなっているのでハブラシなどはこちらにしまっておきましょう。
ちょっとした隙間に見えるタイル貼りの壁が可愛いですね。
洗面台のすぐ隣がトイレになっています。
若干、洗面台が動線を邪魔している気もしますが、小錦や山本山でもなければ気にする必要は無さそうですよ。
トイレはもちろんウォシュレット付き。
扉の影になってましたが棚もしっかりとあるので消耗品などはこちらへ。スペースが余るようなら雑誌やお花を置いても良いかもしれませんね。
ではいよいよ奥のお部屋へ。
その前に、廊下の途中にハンガーポール付きの収納スペースがあるのですよ!
ポールの位置が高いので浴衣くらいならかけられるのではないでしょうか?浴衣って畳んで保存するの面倒ですものね!!
では今度こそ奥へ!!
ワンルームと云えどもこれはかなりの広さがありますよ!
所々がいちいちお洒落な!!
どうもニューヨークのアパートをコンセプトとしているようです。気分は「RENT」ですね。
壁にはスライド式のフックがついていました。センスのいい絵なんか飾ってみたいですね!!
また、ダウンライトはレール式なので位置と向きは自由自在ですよ。写真を撮った時は電球がまだ入ってなかったのですが、それでもとても明るいですよね!!
キッチンはシンプルに仕上がっています。
コンロは2口です。3口がいいと思われるかもしれませんが実際は2口あれば十分なんですよね。3つの料理が同時進行なんてことは年に1回も無いハズですよ!!少なくとも私は!!
シンプルながらにさりげなくとってもお洒落なキッチンです。
ここで恋人に作るべき料理は餃子とか角煮じゃなくてちゃんとした洋食ですよ!!
最後にバルコニーです。
南向きのバルコニーに陽当たりは文句なしに良いです。2階ということで眺望はご覧の通りですが、周辺にも高い建物はないので日中はずっと暖かだと思いますよ。
バルコニーで日向ぼっことかも気持ちよさそうですね。。。
では以上でモナーク三軒茶屋のご案内を終わります。
如何でしたでしょうか?
三軒茶屋は芸能人も数多く住む人気の街です。交通のアクセスも良く、飲食店やスーパーなどのお店も多いので人気があるのも納得ですよ。
内見のご予約やご質問などございましたらお気軽にお問い合わせくださいませ。
過去に販売していたお部屋の概要 このお部屋の販売は終了いたしました。
| 価格 | -万円 |
| 面積 | 43.27㎡ |
| 間取り | 1bedrooms(1LDK) |
| 管理費 | 月額:10,810円 修繕積立金 月額:10,890円 |
| 所在階 | 5階 |
| お問い合わせ・ご内見のご予約はこちらからお気軽にどうぞ | |
では間取りの紹介です。
43.27㎡ 1LDK
建物は昭和53年9月築で、大規模修繕工事を平成25年に行っています。
(外壁塗装、鉄部塗装、バルコニー防水等)
室内は平成27年3月にリノベーション工事を終えたばかりでとても綺麗です☆
ペットの飼育は飼育細則があり、承認が必要です。
5階に上がり、玄関を開けるとオシャレな木目調の扉が見えました。フローリングも張り替えているのでとても綺麗です♪
玄関右側の木目調の扉はシューズボックスです。トールサイズで棚が可動式なので、色々とアレンジして玄関フロアをスッキリとさせてください!(^^)!
玄関には人感センサー付きライトがあります。遅く帰って来た日でも、玄関を開ければパッと明るく照らしてくれます☆
廊下に上がって正面のドアはトイレです。東向きの窓があるのでとても明るく清潔です。
窓の部分にちょっとしたカウンターがあるので、上手に使って収納してください。
トイレの隣に洗濯機置場があります。ちょっとした小部屋です。なので「ランドリースペース」とオシャレに呼びたいと思います笑
ランドリースペースにも東向きの窓があるので、明るく開放的で気持ちのいい空間です。
上部に棚が設置されているので、収納用にお使いください!(^^)!
ランドリースペースの隣がサニタリールームです。どれも新規に交換されたばかりなので、とても清潔でキレイです☆
洗面台はシンクの両側に小さいながらもカウンターが付いているのでとても使いやすく、鏡の裏の収納スペースを使えば、いつも綺麗にしておくことができます。
バスルームは白で統一されたデザイン。毎日のバスタイムが楽しみです(#^.^#)
廊下突き当りのドアはリビングダイニングキッチンです。とてもシンプルなリビングダイニングキッチンですが、とてもオシャレな空間です☆
このオシャレな雰囲気を作っていたのは、キッチンではないでしょうか。まるでドラマに出てくるキッチンの様な、とてもオシャレなキッチンです。
お友達を呼んで、ディナーを振る舞いたくなるキッチンですよね(^_-)-☆
キッチンの下にはちょっとした収納スペースがあります。(引出し等の収納はありません)
また、キッチンの北側にはカウンターがありますので、こちらも上手に活用して収納してください☆
リビングダイニングキッチンは12.1帖あるので、ダイニングテーブル代わりにキッチンのカウンターを使えば、画像の手前のスペースはリビングとしてゆったりお使い頂けます。
大きなソファとテレビを置いて、のんびり映画を見ると「絵」になりますね~(*^^)v
リビングの引戸を開けると、4.7帖の洋室が広がります。
南側と東側に窓があるので、室内はとても明るく開放的です☆
北側にはクローゼットが設置されています。
大きく開いて奥行きがあるので、大きな物も背の高い物もラクラク収納できます☆
バルコニーは南向き。リビング、洋室のどちらからでも出ることができます。
この日は夕方に近い時間に行きましたが、午前中~お昼過ぎまでは陽の光が入り、午後の強い西日は入らないので、とても快適です☆
そして、バルコニーからはとても綺麗な空が見えました。マンションの南側は低層の住宅地なので、5階の高さでもステキな眺望でした☆
いかがでしたでしょうか。
人気のオシャレスポット「三茶」から徒歩9分。せっかくオシャレな街に住むなら、お洒落なお部屋に住まないと!!夜には夜景を楽しみながらお酒を飲むのも良いかもしれませんね♪
皆さまからのお問い合わせ、お待ちしております。















































































































































































































































































































































弊社 公式HP
六棒総合研究所
掲載予定物件
価格変更と販売終了物件
ハザードマップ検索
適合証明書.jp
Facebook
Twitter
Instagram