・
□□□□□□□□□□□□□□□□□□□□□□□□□□□□□□□□□□□□□□□
いつも弊社ホームページをご覧頂き誠にありがとうございます。
トーカンマンション深沢はお陰様で販売を終了致しました。弊社問合せフォームにてご要望頂けましたら、当お部屋でキャンセル等が発生した場合、他のお部屋が販売になりました際にご紹介させて頂きます。
不動産Agent 六棒株式会社
TEL:03‐5413‐5336
□□□□□□□□□□□□□□□□□□□□□□□□□□□□□□□□□□□□□□□
・
東急田園都市線『桜新町』駅より徒歩7分。
リノベーションマンション『トーマンマンション深沢』のご紹介です!
サザエさんの原作者・長谷川町子さんが居住していたことからサザエさんの町
として親しまれている桜新町。
改札をでるとサザエさん一家の銅像がお出迎えしてくれます。
マンションまではサザエさん通りと名前がつけられている商店街を通って
行ってみました。商店のアチラコチラにサザエさん一家の姿を見ることができます。
充実した商店の他、駅前にはスーパーやファーストフード店も。
都心へのアクセスもよく住みやすい環境もオススメポイントです。
商店街を抜け、マンションへ向かう途中には長谷川町子美術館も。
今は『秋深む』という収蔵コレクション展が行われているそうです。
こちらに住んだら一度は足を運んでみてはいかがでしょうか。
玉川通り沿いに佇むタイル貼りの外観のこちらのマンションがご紹介する
トーカンマンション深沢です。昭和60年築、6階建て、総世帯数24戸。
道路の向こう側にはコンビニやレストランのシズラーもあります。
近所でちょっとしたお買いものやお食事も済ますことができて便利です。
エントランスは玉川通りに面しています。
エントランスホールの中はタイル貼りになっています。階段を数段上がった先に管理人室の窓口がありました。(管理は管理会社に全部委託、日勤管理です。)
管理人室の向かい側にエレベーターがあります。
階数表示案内の下には家庭の雑学が表示されていました。緑のピーマンは完熟すると赤くなるそうです。なるほど~。
共用廊下は風通しのよい外廊下です。
共用廊下からは玉川通りとその奥に広がる住宅街が見えました。
車の走行音はそこそこ聞こえます(*‘ω‘ *)
マンションの敷地内には駐車場、駐輪場、バイク置場がございます。なんと、駐輪場とバイク置場は無償で利用できます。駐車場の空き状況はご内見の際にご確認くださいませ。
またマンション専用のゴミ置場もありました。
いつでもゴミが出せて便利です。
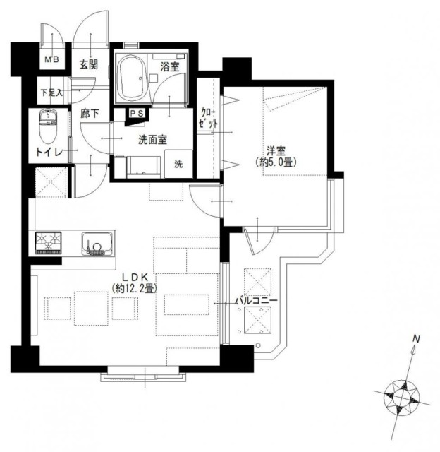
ここで間取り図のご紹介です。
※間取り図は別タブで開きますので、確認しながらご覧頂くことが出来ます。
今回ご紹介するお部屋は2階、間取りは1LDK、専有面積は40.33㎡、おひとり暮らし、又はDINKSの方にお勧めのお部屋です。では、早速行ってみましょう。
エレベーターを2階で降りて外廊下を進むとお部屋に到着です。
玄関ドア横にはモニター付きインターホンが設置されていて、お部屋の中から訪問者を確認する事が出来ます。映像を見てから応対するかを決められるので安心ですね。
白を基調にした明るい廊下。金具の黒がアクセントになっています。リノベーション直後なのでとても綺麗ですよ。
人感センサーが自動的にライトを点けてくれるので、暗い中手探りでスイッチを探す必要はありません。いつでも明るい玄関が迎えてくれるのって嬉しいですよね(*´▽`*)
シューズボックスはトールタイプ。奥行きが深く棚が二列あるので収納力抜群!奥にあまり履かない靴、手前に一軍とかすると使いやすそうですね。棚は可動式なのでブーツなどでも収納可能ですよ。
では、お部屋の中へ…
こちらは約12.2帖のリビング・ダイニング・キッチン。中間調のフローリングに白のクロスのナチュラルテイスト。居心地の良さそうなお部屋ですね。家具も合わせやすそうです。南・東に窓があり陽当り通風共に良好ですよ。
出窓やオープンシェルフなどちょっとした物を飾る場所も豊富。
キッチンは人気のカウンタータイプ。コミュニケーションが取りやすく、調理中でも会話しやすいキッチンです。更に、こちら側からはキッチン内が見えづらいのもメリットのひとつ。ひと目を気にせず、思う存分腕を振るえますよ(^^)
お部屋の雰囲気に合わせた木目パネルの調理台。
調理台に付いたキッチンカウンターは料理を出したり下げ物をしたりに活躍しそう。忙しい朝はここで立ち食いなんて事もあるかもしれませんね(笑)
調理台下は全てスライドキャビネット。スライドキャビネットは引き出し式で開口部が大きく、出し入れがしやすいのが特徴です。ギッシリ詰めても中の確認がしやすいのもいいですよね。後方には冷蔵庫スペースも確保されています。
コンロは3口。温度設定などの出来る高機能タイプです。火加減を目で確認してなんていうのは過去の話しなんですね^^;)
グリル付き。グリルもタイマー機能があるようですよ。忘れて黒焦げなんて心配はもうありません。オープンキッチンなので調理時には換気扇を忘れずに!
では、隣のお部屋へ…
こちらは約5帖の洋室。南・東のコーナーにL字型に窓がある明るいお部屋です。柱などが無く、ドアも外開きなのでお部屋のスペースを無駄なく使えますよ。
左側に付いているルーバーはお隣さんのバルコニーからの視線を遮りながら、陽射しが入るような角度に固定されています。上手く考えましたね(^^)あと、残念ながらここはFIX窓で開きません。
収納は間口が広くて使いやすそうなクローゼット。奥行きもあるのでキャリーバッグなどの嵩張る物も入りますし、衣装ケースなどを置けば収納力を更に上げることも可能です。
廊下へ戻って、次はトイレへ…
洗浄便座はTOTO製のウォシュレット。トイレットペーパーなどのストックに便利な吊戸棚も付いています。ちょっと低めなのがGOOD!
次は洗面室へ…
洗面室には洗面台の他に、リネン棚、洗濯機スペース、浴室がまとまっていて、脱衣所も兼ねています。
洗面台は、身だしなみチェックに便利な三面鏡付き。ミラーの上に付いた照明のおかげで鏡を見る時に影になることもありません。
収納はとにかく沢山!!細々した物が多くなりがちな洗面廻りには、豊富な収納は有り難いですね。様々なタイプの収納で、大きな物から細かい物までスッキリ収まりそうです。
スッキリ収まったビルドインの水栓は、ヘッドが伸びるので洗面ボウルを流したりに便利ですよ。
浴室は優しい色合いでリラックスしたバスタイムを過ごせそう♪♪
窓は外廊下に面していて開きません。その方がかえって安心かも(^^)ノーリツ製追い焚き機能付きのユニットバス。「ふろ自動」ボタンひとつでお風呂を沸かすことが出来ます。保温もしてくれるのでいつでも温かいお風呂に入れますよ。
浴室換気乾燥機は浴室の換気の他に、夏には涼風、冬には浴室暖房、雨の日には洗濯物乾燥など、一年を通して大活躍! 24時間換気とか今のご時世にピッタリですね。
それでは最後はバルコニーのご紹介。
洋室、LDKどちらの窓からでも出られます。あっ、洋室はドアですね^^;)
広さは6.96㎡、南東向き。L字型のバルコニーです。LDKの前の方が奥行きがあって広々とした感じですね。
手摺壁には物干し金具も付いていて、お洗濯物も干せるようになっています。南東向きなので午前中から干すのがお勧め♪♪
外にはゆったりと戸建てが並び、2階としては開放的ないい眺めかと思います。玉川通りの裏側にあたるので、大通り沿いに建つマンションとしては意外と静かですよ。
・
以上でトーカンマンション深沢のご案内を終わります。
いかがでしたでしょうか??
桜新町駅から徒歩7分のマンションです。
リノベーション済みという事で室内はとてもキレイですよ (っ・ω・)っ
内見のご予約やご質問などございましたらお気軽にお問い合わせくださいませ。
ご連絡お待ちしております。
弊社、不動産Agent 六棒株式会社では、
□リノベーションマンションはほぼ全て仲介手数料無料!
□その他一般仲介物件は仲介手数料20%~30%OFF!
にてお取り扱いしております!※弊社の「Agent Fee=仲介手数料」についてはご案内、ご面談の際に営業担当者よりご説明いたします!
なるべく沢山のお部屋をホームページに掲載したいと思っておりますが、時間的成約もございますので、残念ながらご紹介できるお部屋の一部しか掲載できておりません。
このホームページに掲載中のお部屋、その他サイト等で気になるお部屋、街を歩いていて気になったマンション等々ございましたら是非、弊社営業部までご相談ください!
~不動産Agent 六棒株式会社の特徴~
・一般仲介物件の仲介手数料は20%~30%OFFにてご案内中です!
・リノベーションマンションについてはほぼ全て仲介手数料無料です!
・住宅ローンに自信あります!
・頭金10万円より購入できます。是非ご相談下さい!
・お部屋のご見学は車で2~3件まとめて案内します!
・物件数3000件以上、新築戸建、リノベ物件も多数ご用意しております!
過去に販売していたお部屋の概要 このお部屋の販売は終了いたしました。
| 価格 | -万円 |
| 面積 | 41.41㎡ |
| 間取り | 1bedroom(1LDK) |
| 管理費 | 月額15,300円 修繕積立金:月額15,740円 |
| 所在階 | 4F |
| お問い合わせ・ご内見のご予約はこちらからお気軽にどうぞ | |
1LDK、41.41㎡。3方向角部屋です。
間取りはクリックすると別タブで開くのでゼヒ写真と見比べながらご覧ください♪
ご紹介するお部屋は4階。エレベーターでグイグイ昇ってきました。
お部屋は角部屋です。インターホンにはTVモニターがついているので来訪者の顏が事前に確認できて防犯面も安心です。オレオレ詐欺とか妙なセールスには出ないようにしましょう。
では玄関扉をあけて中へおじゃまします。室内はリノベーション済みでピカピカです♪と思っていたら電気がつきました。実は玄関照明には人感センサーがついており、人の動きを感知して自動で照明がするようになっています。スイッチを押す手間が省ける上、節電効果もあります。
玄関横には背の高いシューズボックスがあります。幅もあるので収納力もバッチリ。表扉の半分は鏡がついているのでお出かけ前の身だしなみチェックも忘れず済ませられます。
玄関をあがると廊下がまっすぐのびています。
まずは真正面の扉をあけてリビングダイニングキッチンを先に見ていきましょう。
ガラガラ~。
リビングダイニングキッチンは約12.0帖の縦長空間です。
角部屋なので3面に窓があり風通しバッチリ。
お部屋に置いてある家具はついてきますので、こちらもチェックしてみてくださいね。新生活がスムーズに始められそうです。
窓が多いと部屋のどこにいても自然光を感じられますね。
リビングダイニングの入口横には可動棚付きの収納があります。
日用品のストックなど生活感の出がちなアイテムはこういう扉付の収納場所に入れておくとよさそうです。
つづいてリビングダイニングを入って左方向にあるキッチンを見ていきましょう。
キッチンは吊戸棚、引き出しと収納スペースが豊富。大きなお鍋やザルもサクサク仕舞えそうな雰囲気です。
グリル、浄水器一体型シャワー水栓と設備も◎。
パンを焼く時にグリルって便利ですよね。あっという間に焼けますよ!
キッチン横にも窓があり、換気もスムーズにおこなえます。
窓際のカウンターには調味料を並べてもよさそうです♪
キッチンの向かい側には収納家具が置いてあります。もちろんこれもついてきます!食材のストックを仕舞っておくのに使ってもよさそうです。
洋室はリビングダイニングキッチンに隣接しており、2部屋は3枚の可動扉で仕切れるようになっています。では扉を開けてみましょう。
ススーッと可動扉を横にスライドさせまして。。。洋室は約6.2帖です。
壁面の1面にはグレーのカラークロスが使われています。落ち着いた雰囲気。
こちらのお部屋には収納力のあるウォークインクローゼットがついています。
洋服だけでなく、旅行鞄など大きな物がまるまる入るのもいいですよね。
壁面にはピクチャーレールがついており、お好みの絵や写真などを手軽に飾っておけますよ!
洋室とリビングダイニングはつなげて利用することも可能です。
開放感のある空間がお好きな方は扉をあけたままで生活してみてはいかがでしょう??
今度はリビングダイニングキッチンを出て廊下側を見ていきましょう。
レッツゴー!!
廊下を出て左側の扉はトイレです。
トイレはTOTOのウォシュレット付き。白基調で清潔感のある空間です。
掃除道具やペーパーのストックは吊戸棚の中へ、スティックタイプのおしゃれな芳香剤などは横のカウンターに置けます。毎日使うところなので快適に利用できるよう工夫してみてくださいね。
トイレの斜め向かい側には洗面室の扉があります。
玄関から近いので帰宅後の手洗い・うがいもスムーズにできます。
改めまして、洗面室です。洗面化粧台、バスルーム、洗濯機置場がこの中にまとまっています。
洗濯機置場の上には棚がついています。
洗剤も手の届くところに置いておけますね。
洗面化粧台は鏡の裏、引き出し等、収納スペースが豊富です。
ゴチャゴチャしがちな水廻りもスッキリ片付きそう♡
水栓はホースを伸ばしてシャワーとしても利用可能です。
寝ぐせをなおす時やシンクのお掃除時にはホースを伸ばすと作業が楽ですよ!
バスルームは浴室換気乾燥機がついています。
これがあれば雨の日や花粉の時期のお洗濯も安心です。
バスルームは大理石のような柄のパネルが使われており高級感があります。
窓があるので自然換気ができるのもうれしいところです。
追い焚き機能もついていますよ!冷える季節は何度でも沸かしなおしてあたたまってくださいね。
最後にリビングダイニングの窓からバルコニーに出てみましょう。
わくわく。
ちなみに窓は二重サッシです。
防音、断熱に効果テキメンです。
バルコニーは約5.77㎡、ほぼ南向き。
横長でお洗濯物が干しやすそうです。
気になる眺望です。まずは正面です。
ほどよく抜けたナイスビューですね。この日は曇天でしたが晴れた日は陽ざしがしっかり届きそうです。
左右はこんな感じ。少し高い建物がありますが、圧迫感など気になるものではない、という感想です。ゼヒ現地で実際に見学されてみてくださいね☆
トーカンマンション深沢、いかがでしょうか?
内見のご予約やご質問などございましたらお気軽にお問い合わせくださいませ。
ご連絡お待ちしております。
弊社、不動産Agent 六棒株式会社では、
□リノベーションマンションはほぼ全て仲介手数料無料!
□その他一般仲介物件は仲介手数料20%~30%OFF!
にてお取り扱いしております!※弊社の「Agent Fee=仲介手数料」についてはご案内、ご面談の際に営業担当者よりご説明いたします!
なるべく沢山のお部屋をホームページに掲載したいと思っておりますが、時間的成約もございますので、残念ながらご紹介できるお部屋の一部しか掲載できておりません。
このホームページに掲載中のお部屋、その他サイト等で気になるお部屋、街を歩いていて気になったマンション等々ございましたら是非、弊社営業部までご相談ください!
~不動産Agent 六棒株式会社の特徴~
・一般仲介物件の仲介手数料は20%~30%OFFにてご案内中です!
・リノベーションマンションについてはほぼ全て仲介手数料無料です!
・住宅ローンに自信あります!
・頭金10万円より購入できます。是非ご相談下さい!
・お部屋のご見学は車で2~3件まとめて案内します!
・物件数3000件以上、新築戸建、リノベ物件も多数ご用意しております!
過去に販売していたお部屋の概要 このお部屋の販売は終了いたしました。
| 価格 | -万円 |
| 面積 | 40.33㎡ |
| 間取り | 1bedroom(1LDK) |
| 管理費 | 月額14,900円 修繕積立金:月額15,330円 |
| 所在階 | 6階 |
| お問い合わせ・ご内見のご予約はこちらからお気軽にどうぞ | |
間取りのご紹介です。1LDK、40.33㎡。
玄関入って右手側には鏡とシューズBOXがつくられています。
お出かけ前の身だしなみチェックも玄関前でパパッとできて便利。
シューズBOXの内側にも鏡がついています。
廊下を上がって正面のガラスが入った扉の奥は・・・
約11.5畳のLDK。
ナチュラルな木目のフローリングと白いクロスでシンプルで明るい空間です。
木の手触りが心地いいです。
家具付きでの販売になるので、すぐに新生活がスタートできそうです!
LDKには大型のクローゼットもつくられています。
さらに中には引き出し付きの収納が中央についているので、ハンカチや靴下などの
小物もスッキリしまえそう。
システムキッチンは3口コンロ。向かって右側に冷蔵庫が置けるようになっています。
収納場所も上下につくられています。
LDKと隣接して、洋室が1部屋あります。
真ん中に採光部がある扉で仕切られています。
広さは約4.8畳。窓が2面にあるので明るいです。
枕棚付きのクローゼットもつくられています。
バルコニーへは洋室とLDKのどちらからもでられるようになっています。
約6.96㎡のバルコニーは南西向き。
緑も多く見えて気持ちのいい眺めです。
玉川通り沿いには面していないので静かなのも◎です。
最後に水回りをまとめて紹介します。
洗面室はLDKの中に入口がつくられています。
向かって右手に洗面台、正面にバスルーム、左手に洗濯機置場。
3面鏡の裏に小物が収納できるようになっている洗面化粧台。
ハブラシなどのゴチャゴチャしがちな洗面まわりの小物もスッキリ収納できます。
洗面ボウルも大きくて使いやすそうです。
洗面台の反対側に洗濯機置場。
バスルームは追い焚き機能と浴室乾燥機がついています。
雨の日でも洗濯物が乾かせて便利。
シャンプー類が置けるトレイもついているので洗い場も少し広く使えます。
トイレはLDKの入口手前、廊下にあります。
タンクレスタイプで見た目もスッキリ。
ウォシュレットと手洗い場がついています。
住みやすい桜新町で新生活をはじめてみてはいかがでしょうか。
みなさまのご内見、こころよりお待ちしております!


































































































































































弊社 公式HP
六棒総合研究所
掲載予定物件
価格変更と販売終了物件
ハザードマップ検索
適合証明書.jp
Facebook
Twitter
Instagram