□□□□□□□□□□□□□□□□□□□□□□□□□□□□□□□□□□□□□□□
いつも弊社ホームページをご覧頂き誠にありがとうございます。
四谷軒第5経堂シティコーポはお陰様で販売を終了致しました。弊社問合せフォームにてご要望頂けましたら、当お部屋でキャンセル等が発生した場合、他のお部屋が販売になりました際にご紹介させて頂きます。
不動産Agent 六棒株式会社
TEL:03‐5413‐5336
□□□□□□□□□□□□□□□□□□□□□□□□□□□□□□□□□□□□□□□
・
それでは!本日は小田急線「経堂」駅より徒歩9分
『四谷軒第5経堂シティコーポ』をご案内致します!
その前にこちらをご覧ください!
□□□□□□□□□□□□□□□□□□□□□□□□□□□□□□□□□□□□□□□
★★★【四谷軒第5経堂シティコーポ】周辺のハザードマップをCHECK!!★★★
お部屋の記事を読む前に…!周辺のハザードマップをチェックしておきませんか!
四谷軒第5経堂シティコーポのハザードマップは★こちらから…どうぞ★
□□□□□□□□□□□□□□□□□□□□□□□□□□□□□□□□□□□□□□□
ご案内に戻ります!経堂駅の改札は北口と南口の2か所。マンションまでは北口から出発します。
駅の近くにはショッピングモールの経堂コルティがあります。
スーパーからレストラン、医院や生活雑貨店まで1か所にまとまっているので
なにかと便利です。
世田谷線『松原』駅も徒歩11分でご利用いただけます(=゚ω゚)ノ
北口、南口ともにそれぞれ商店街が形成されており、北口はすずらん通りという
昔ながらの商店が中心の商店街になっています。
ピーコックなどのスーパーも駅近くにあるのでまとまったお買い物も便利。
ピーコックの5Fにはボウリング場もありますよ!
この日は北口を出てたらみずほ銀行の脇の道をまっすぐ進むルートで行ってみました。
途中2回ほど道を曲がるだけなので分かりやすいです。
マンション近くには赤堤小学校や北沢川緑道があります。
緑道は赤堤から池尻まで約4.3キロつづいているそう!
春の新緑や秋の紅葉が楽しめます。
四谷軒第5経堂シティコーポは昭和49年築、5階建て、総世帯数65戸。
白い外観の横長のマンションです。
お部屋ごとにエントランスが分かれており、入口前にはシルバーの案内パネルが貼られています。
建物をぐるりとまわり込むと1階にはからし亭という焼肉屋さんとTAYAという美容院が入っています。
からし亭は毎月11日と29日は一部メニューが半額になるラシイデスヨ!!(この日は予約とカードが使えないらしいです。あとめっちゃ混むらしいです。)

駐輪場は屋根付きで家の前に駐輪が出来ます。
登録制で自転車は100円/月
バイクは排気量に応じて1000-4000円/月です。空き状況は内見の際にご確認ください。
階段の両側にお部屋が二つづつ並んでいます。お部屋に対応した階段を上らないとたどり着けませんので、お気を付け下さい。
1階住居の方も3~4段だけ階段を上がる必要があります。
(オートロックやエレベーターはありません。)
最上階の4階から更に階段が続いているので上ってみると、屋上に出る事が出来ました。映画のワンシーンで見た様な、どこか懐かしい感じがします(^^)
それではお部屋のあるフロアへと向かいましょう。
ここで間取り図のご紹介です。
※間取り図は別タブで開きますので、確認しながらご覧頂くことが出来ます。
□□□□□□□□□□□□□□□□□□□□□□□□□□□□□□□□□□□□□□□
★★★【四谷軒第5経堂シティコーポ】周辺のハザードマップをCHECK!!★★★
お部屋の記事を読む前に…!周辺のハザードマップをチェックしておきませんか!
四谷軒第5経堂シティコーポのハザードマップは★こちらから…どうぞ★
□□□□□□□□□□□□□□□□□□□□□□□□□□□□□□□□□□□□□□□
今回ご紹介するお部屋は5階、間取りは3LDK、専有面積は66.00㎡。収納も豊富なファミリータイプのお部屋です。テレワークにも対応したワークスペースが付いているのも嬉しいですね。では、早速行ってみましょう!
エレベーターはありませんのでエントランスホールから階段を上がります。5階・・・頑張ります(‘◇’)ゞ
階段を上がり切ると広く明るいホールに出ます。そこに並ぶ玄関のひとつが今回のお部屋です。
ドア横にはモニター付きインターホンが設置されていて、お部屋の中から訪問者を確認する事が出来ます。玄関まで来なくてもよく、手が離せない時などに便利ですね。
玄関は上り口が横向きになったタイプ。戸口から中が見えづらく、宅配便やフードデリバリーなどを使うことが増えている、今の時代にピッタリですね。上り口を広くとりやすいいうメリットもあります。
人感センサーが自動的にライトを点けてくれるので、暗い中スイッチを探さなくても大丈夫!消すのも自動なので、消し忘れて怒られる心配もありませんよ(笑)
廊下を正面から…
建具はダークブラウンの光沢仕上げ。やっぱり高級感がありますね(^^)
すぐ右側にはトールタイプのシューズボックス、廊下を進んだ右側には収納棚があります。収納棚は奥行きも深く、棚の手前にはスティククリーナーなどの長物も入りますよ。
では、お部屋の中へ…
こちらは約12.6帖のリビング・ダイニング・キッチン。白を基調とした明るい雰囲気のお部屋です。一番奥がキッチンという珍しいレイアウトですね。家具付きなのでこのままの イメージで生活していただけます。
リビング部分にはキャビネットが造り付けられていて、リビングに散らかりがちな物を収納することが出来ます。建具とお揃いなので統一感があっていいですね。
キッチンは人気のカウンタータイプ。開放的で、調理中でもご家族とのコミュニケーションが取りやすいのがいい所です。リビング側からキッチン内が目立たないのも有難いですね(^^)
まず目に付いたのは食器洗浄乾燥機!食器洗いはやりたくない家事の常連ですからね。特に冬の乾燥した季節にはほんと有難いです♬ 収納はスライドキャビネット。奥の方まで出し入れしやすい優れものです。
コンロは3口、グリルも付いて調理器具も充実。後ろに大きな窓はありますが、調理中は換気扇をお忘れなく。調理前から回し始めると効果的らしいですよ。
水栓は浄水機能付き。切替えひとつで気軽に美味しいお水を使えます。ノズルが伸びてシンクのお掃除も楽々♪
後ろには大きな窓。冷蔵庫や家電ラックのスペースにもなっています。出来れば窓は塞ぎたくないですよね。
次はワークスペースへ…
個室になっていてテレワークに最適のお部屋です。もちろんお仕事以外にも、趣味や家事のお部屋として使うのもアリですよ。
窓にはブラインドが付いているので集中したい時は閉めましょう!
では、次のお部屋へ…
こちらは約5.2帖の洋室。二面採光で明るく風通しの良いお部屋です。シンプルな色使いで家具のチョイスの幅も広そうですね。梁や柱もあまりない綺麗な形なので、レイアウトも自由自在です。
収納はウォークインクローゼット!!ハンガーポールの他に棚も設置されたマルチタイプです。新たに家具を用意する必要がないのがいいですね。
では、次のお部屋へ…
こちらは約4.5帖の洋室。西向きのバルコニーへのガラスドアがあるお部屋です。多少デコボコがありますが、入口に引き戸を使っているのでデッドスペースも出来ず、無駄なくスペースを使えます。
収納はクローゼット。ハンガーポールの下には可動棚も設置されています。
引込式の引き戸なので開けっぱなしでもスッキリ。リビングとつなげて使うことも出来ますよ。
廊下へ戻って、次のお部屋へ…
こちらは約4.5帖の洋室。西向きバルコニーに面した窓のあるお部屋です。アクセントウォールで、今までの洋室とは一味違った雰囲気。
収納は間口が広いマルチクローゼット。収納力ではウォークインクローゼットに敵いませんが、使い勝手では負けてません(‘◇’)ゞ
次は洗面室へ…
洗面台の他に洗濯機スペース、浴室、トイレがまとまっていて、脱衣所も兼ねています。洗濯機スペースの上部には棚も付いていますので、洗剤などはこちらへどうぞ。
三面鏡付きの洗面台は、つや消しの木目パネルで温かい雰囲気。
収納は、ミラーキャビネットをはじめサイドの棚、洗面台下、スライドキャビネットと、とにかく豊富。細々とした物が多くなりがちな洗面周りにこれは助かります!!
ノズルが伸びる水栓は、洗面ボウルを流したりにとても便利。洗面ボウルは継ぎ目のない一体型なのでお掃除も楽ですよ。
次はトイレへ…
トイレットペーパーなどのストックに便利な吊戸棚や、いろいろ飾れるニッチカウンターが付いています。洗浄便座はTOTO製のウォシュレット。
次は浴室へ…
ノーリツ製追い焚き機能付きのユニットバス。「ふろ自動」ボタンひとつ押すだけでお風呂を沸かすことが出来ます。設定しておけば保温もしてくれるので、ご家族のお風呂の時間がバラバラでも、いつでも温かいお風呂に入れますよ。
1216サイズのゆったり浴槽。頭が乗せられるようなこの形状は感動ものです(*´▽`*)
浴室換気乾燥機は浴室の換気の他に、夏には涼風、冬には浴室暖房、雨の日には洗濯物乾燥など、一年を通して大活躍。24時間換気も付いていますので、フルに活用していきましょう!
それでは最後はバルコニーのご紹介。
三つの洋室のどこからでも出られます。真ん中の洋室だけ窓でなくガラスドアになっていました。
広さ8.42㎡、西向き。三部屋にまたがる、幅の広~いバルコニーです!陽当りも抜群でお洗濯物も気持ち良く乾きそうですね♬
外には開放的で気持ちいい眺め。高い所まで上がって来た甲斐があるというものです(^^)
・
以上で四谷軒第5経堂シティコーポのご案内を終わります。
いかがでしたでしょうか??
経堂駅から徒歩7分のマンションです。
リノベーション済みという事で室内はとてもキレイですよ (っ・ω・)っ
内見のご予約やご質問などございましたらお気軽にお問い合わせくださいませ。
ご連絡お待ちしております。
□□□□□□□□□□□□□□□□□□□□□□□□□□□□□□□□□□□□□□□
★★★【四谷軒第5経堂シティコーポ】周辺のハザードマップをCHECK!!★★★
お部屋のお問い合わせ前に…!周辺のハザードマップをチェックしておきませんか!
四谷軒第5経堂シティコーポのハザードマップは★こちらから…どうぞ★
□□□□□□□□□□□□□□□□□□□□□□□□□□□□□□□□□□□□□□□
弊社、不動産Agent 六棒株式会社では、
□リノベーションマンションはほぼ全て仲介手数料無料!
□その他一般仲介物件は仲介手数料20%~30%OFF!
にてお取り扱いしております!※弊社の「Agent Fee=仲介手数料」についてはご案内、ご面談の際に営業担当者よりご説明いたします!
なるべく沢山のお部屋をホームページに掲載したいと思っておりますが、時間的成約もございますので、残念ながらご紹介できるお部屋の一部しか掲載できておりません。
このホームページに掲載中のお部屋、その他サイト等で気になるお部屋、街を歩いていて気になったマンション等々ございましたら是非、弊社営業部までご相談ください!
~不動産Agent 六棒株式会社の特徴~
・一般仲介物件の仲介手数料は20%~30%OFFにてご案内中です!
・リノベーションマンションについてはほぼ全て仲介手数料無料です!
・住宅ローンに自信あります!
・頭金10万円より購入できます。是非ご相談下さい!
・お部屋のご見学は車で2~3件まとめて案内します!
・物件数3000件以上、新築戸建、リノベ物件も多数ご用意しております!
過去に販売していたお部屋の概要 このお部屋の販売は終了いたしました。
| 価格 | -万円 |
| 面積 | 50.43㎡ |
| 間取り | 2bedrooms(2LDK) |
| 管理費 | 月額9,900円 修繕積立金:月額19,340円 |
| 所在階 | 3F |
| お問い合わせ・ご内見のご予約はこちらからお気軽にどうぞ | |
ここで間取り図のご紹介です。
※間取り図は別タブで開きますので、確認しながらご覧いただく事が出来ます。
□□□□□□□□□□□□□□□□□□□□□□□□□□□□□□□□□□□□□□□
★★★【四谷軒第5経堂シティコーポ】周辺のハザードマップをCHECK!!★★★
お部屋の記事を読む前に…!周辺のハザードマップをチェックしておきませんか!
四谷軒第5経堂シティコーポのハザードマップは★こちらから…どうぞ★
□□□□□□□□□□□□□□□□□□□□□□□□□□□□□□□□□□□□□□□
今回のお部屋は2LDK+WIC、50.43㎡、3階。
2015年大規模修繕工事実施済み
●家具付き
●R1住宅
●アフターサービス保証書付
●ペット飼育可
そして最新の設備仕様へ一新する新規内装リノベーション物件!
見どころ盛沢山ですね♬
では、早速行ってみましょう!
階段で3階まで上がります。3階くらいだといい運動ですね。
玄関にはテレビモニター付きインターホンが設置されて、お部屋の中から映像で訪問者を確認する事が出来ます。ドアスコープもありますが、息を止めて覗く感じが苦手です(笑)
廊下は右に曲がっていて、戸口からお部屋の中が見えづらい構造になっています。宅配便やフードデリバリーなどの使用が増えている、この時代に合った造りと言えますね。
人感センサーが付いていて、中に入ると自動的に照明を点けてくれます。もう暗い中、手探りでスイッチを探す必要もありません。
シューズボックスが玄関の両側に三つ!一つは奥行きのあるタイプで、棚の手前には高さのある物も収納可能です。二つ目はトールタイプ。三つ目はロータイプで上がカウンターになっていますので、写真スタンドやお花などで玄関をお洒落に飾れますよ。
まずは、廊下を右に曲がって突き当りの引き戸から開けてみましょう!
こちらは約9.6帖のリビング・ダイニング・キッチン。白とブラウンを基調にしたナチュラルな雰囲気のお部屋です。
天井のシーリングファンライトはお洒落なだけでなく、エアコン使用時に使えば冷暖房効率を上げて省エネにもなるんですよ。壁のアクセントパネルは、エコカラットという機能性の素材を使っています。匂いを吸着してくれたり、湿度を調節してくれたりと正に「縁の下の力持ち」。
窓辺のデスク。リモートワークもここでバッチリですね。家具付きの物件なのでデスクなどは付いてきますよ。ニッチカウンターには電話やFAXを置く事が出来ます。Wifiのルーターなどもいいかもしれませんね。デッドスペースを上手く使って作られています。
では次のお部屋へ…
こちらは約4.8帖の洋室。バルコニーに面した大きな窓のある明るいお部屋です。引き戸使用でデッドスペースが出来ませんので、広さを目いっぱい使えますよ。
収納はウォークインクローゼット。L字型にハンガーポールの設置された約0.9帖の大型収納です。掛けるだけでなく、天板や床部分も使って更に収納力をアップさせましょう!
ちなみに、こちらのお部屋の扉は引込タイプ。壁部分にすっかり収納されます。
この様にリビングとつなげて、広いひとつのお部屋として使う事も出来ます。合わせて約14.4帖のお部屋の出来上がり♬ 状況に応じて選択肢があるのは嬉しいですね。
では、次はキッチンを…
調理台後ろには、冷蔵庫や家電ラックのスペースも確保されています。
調理台は高級感のあるブラウンの鏡面仕上げ。お部屋の雰囲気にもよく合っていますね。
調理台下は収納と食洗機になっていました。食洗機はいいですよね~ 熱いお湯で洗うので汚れもすっかり綺麗になりますし、なにより…楽できるのが最高です(笑)
水栓は浄水機能付きシャワー水栓。ヘッドが伸びてシンクのお掃除に便利です。切替えるだけなので、気軽に美味しいお水を使う事も出来ますよ。
お料理中、お部屋を見渡せるのがカウンターキッチンのいい所♬
グリルと二口コンロが付いています。今は電子レンジなどを駆使したレシピもたくさんありますので、これだけあれば十分だと思いますよ(^^)
お料理中は換気扇をお忘れなく!エコカラットだけでは荷が重いです^^;)コンロの後ろ辺りには収納棚もありますので、食品ストックなどはこちらへどうぞ。
廊下へ戻って最初のドアは…
トイレです。白一色でスッキリした印象ですね。
ニッチカウンターの他に、扉付の収納棚も付いています。トイレットペーパーなど入れておけそうですね。もちろん温水洗浄便座付き。INAX製のシャワートイレです。
次は洗面室。こちらには洗面台、浴室、洗濯機スペースがまとまっています。
まずは三面鏡付きの洗面台。
収納は三面鏡裏のキャビネット、横の棚、洗面台下になります。細かい物を置く所が多くてGOOD!
水栓はハンドシャワータイプ。洗面ボウルも大きめなので寝ぐせくらいなら直せそうですよ(^^)
洗濯機スペースには棚も付いていて、洗剤や洗濯ネットなどのお洗濯グッズを収納可能。すぐ手が届く所に置いておけるのが嬉しいですよね。
浴室はブラウンの鏡面仕上げパネルで落ち着いた雰囲気です。リラックスタイムにはピッタリ♬
追い焚き機能付きで、スイッチ一つでお風呂を沸かす事が出来ます。保温もしてくれるのでいつでも温かいお風呂に入れますし、長風呂して寒くて上がれないなんて事もありません。
ゆったり浸かれる1116サイズの浴槽。
浴室乾燥機能はただの換気扇ではありません。お洗濯物乾燥や浴室暖房など様々な役に立ってくれます。お洗濯物乾燥は雨の日だけでなく、花粉の季節や黄砂の飛ぶ時期などにも使えますので活躍の機会も多そうですね。
こちらは約5.6帖の洋室。北東側のバルコニーに面したドアがあるお部屋です。独立性も高く寝室に良さそうですね。広さ的にもベッド二つは置けそうです。
収納はオープンの収納棚と、マルチクローゼット。クローゼットは間口が広くて中がひと目で確認出来、とても使い易そうです。中が確認しやすい収納を使うと、無駄な買い物が減るらしいですよ(^^)
バルコニーへはドアを開けて出ます。ドアってちょっと珍しいですね。
北東側のバルコニーです。お部屋の両側にバルコニーとは贅沢ですね。二方向に開口部があると10倍近く換気能力が上がるらしいですよ。
外は一軒家が並ぶ開けた眺め。とても静かですよ。
続いてもう一つのバルコニーをご紹介。洋室の窓から出ます。
こちらが南西側のバルコニー。幅はありませんが、奥行きがあってゆったりとしています。物干し金具も付いていてお洗濯物も干せますよ。南西向きなので、午後を中心に陽当りも期待出来ますね。
外の様子です。緑も多く、高い建物も無い気持ちいい眺めですね。もちろん青空もいいんですけど、ここは雨の日の方がしっとりしていていい雰囲気な気がします(^^)
・
以上で四谷軒第5経堂シティコーポのご案内を終わります。
いかがでしたでしょうか??
経堂駅から徒歩7分のマンションです。
リノベーション済みという事で室内はとてもキレイですよ (っ・ω・)っ
内見のご予約やご質問などございましたらお気軽にお問い合わせくださいませ。
ご連絡お待ちしております。
□□□□□□□□□□□□□□□□□□□□□□□□□□□□□□□□□□□□□□□
★★★【四谷軒第5経堂シティコーポ】周辺のハザードマップをCHECK!!★★★
お部屋のお問い合わせ前に…!周辺のハザードマップをチェックしておきませんか!
四谷軒第5経堂シティコーポのハザードマップは★こちらから…どうぞ★
□□□□□□□□□□□□□□□□□□□□□□□□□□□□□□□□□□□□□□□
弊社、不動産Agent 六棒株式会社では、
□リノベーションマンションはほぼ全て仲介手数料無料!
□その他一般仲介物件は仲介手数料20%~30%OFF!
にてお取り扱いしております!※弊社の「Agent Fee=仲介手数料」についてはご案内、ご面談の際に営業担当者よりご説明いたします!
なるべく沢山のお部屋をホームページに掲載したいと思っておりますが、時間的成約もございますので、残念ながらご紹介できるお部屋の一部しか掲載できておりません。
このホームページに掲載中のお部屋、その他サイト等で気になるお部屋、街を歩いていて気になったマンション等々ございましたら是非、弊社営業部までご相談ください!
~不動産Agent 六棒株式会社の特徴~
・一般仲介物件の仲介手数料は20%~30%OFFにてご案内中です!
・リノベーションマンションについてはほぼ全て仲介手数料無料です!
・住宅ローンに自信あります!
・頭金10万円より購入できます。是非ご相談下さい!
・お部屋のご見学は車で2~3件まとめて案内します!
・物件数3000件以上、新築戸建、リノベ物件も多数ご用意しております!
過去に販売していたお部屋の概要 このお部屋の販売は終了いたしました。
| 価格 | -万円 |
| 面積 | 50.43㎡ |
| 間取り | 1bedrooms(1SLDK) |
| 管理費 | 月額9,900円 修繕積立金:月額19,340円 |
| 所在階 | 1階 |
| お問い合わせ・ご内見のご予約はこちらからお気軽にどうぞ | |
今回ご紹介のお部屋は1階、間取りは1SLDK、専有面積は50.43㎡。1SLDKと言ってもサービスルームもお部屋として使えそうですし、収納豊富で暮らしやすそうな印象です。
□□□□□□□□□□□□□□□□□□□□□□□□□□□□□□□□□□□□□□□
★★★【四谷軒第5経堂シティコーポ】周辺のハザードマップをCHECK!!★★★
お部屋の記事を読む前に…!周辺のハザードマップをチェックしておきませんか!
四谷軒第5経堂シティコーポのハザードマップは★こちらから…どうぞ★
□□□□□□□□□□□□□□□□□□□□□□□□□□□□□□□□□□□□□□□
では、早速行ってみましょう!
階段を数段上がると玄関があります。ドア横にはテレビモニター付きインターホンが設置されてお部屋の中から訪問者を確認可能。返事をする前にチェックすればしつこいセールスにつかまる事も無くなりますね。
それではお邪魔します…
まずは玄関。L字型に二方向から上がれるようになっています。上り口が広いと、荷物がたくさんある時や、小さなお子様連れの時などにとても楽なんですよね♬
人感センサーが付いていて、いつでも明るい玄関が迎えてくれます。
トールタイプのシューズボックスは天井まで使えて収納力抜群!棚の高さも調整出来ますので、ブーツなどの背の高い靴でも収納可能ですよ。
戸口からは居室の中が見えづらくなっているのもいいですね。私なんかはリビングのドアとか開けっぱなしなので助かります(^^)
では、玄関ホール右側のドアを…
こちらは約10.3帖のリビング・ダイニング・キッチン。
キッチンは手前の奥まった所にあり、リビング・ダイニングで綺麗な四角いスペースを使う事が出来ます。レイアウトの自由度が高く色々考えるのも楽しそう。
反対側から…
入口近くには収納棚が二つ。リビングを綺麗に保つのにリビング収納は欠かせません。小さい方は奥行きも少し浅いようですので、細かい物はこちらへどうぞ。
次はキッチンを見ていきましょう。
ダークブラウンの調理台は建具と共にお部屋のアクセントにもなっています。横向きなので、濃い色でも圧迫感がありませんね。
収納は調理台下と吊戸棚。調理台下は引き出しタイプで奥の方まで出し入れがしやすくなっています。吊戸棚は少々使いづらいので、あまり使わない物を入れるといいですね。土鍋とか蒸籠なんかが入ってるイメージです(笑)
食器洗浄乾燥機付き!!これで、食後はみんなでのんびり寛げますね♬
水栓は浄水機能付きシャワー水栓。切替えひとつで、気軽に美味しいお水を使えます。お料理なんかに使うと味も変わって来るんでしょうか(^^)
幅が広く作業スペースも十分取れています。
コンロは三口。温度設定やタイマーなども可能な高機能コンロです。いつの間にガスコンロってこんな事が出来るようになったんでしょうか。この仕事をするようになって初めて知りました^^;)
お料理中は換気扇をお忘れなく。グリルを使う時は絶対ですよ!
では、次のお部屋へ…
こちらは約5.9帖の洋室。
南向きの窓のある明るいお部屋です。ベッドが二つは入りそうな十分な広さがあり、ベッドルームに最適ですね。
シンプルな色使いで色々な家具を合わせる事が出来そうです。アクセントウォールも落ち着いた色合いで邪魔にならない感じですね。
窓際の天井からは物干し金具が下がっていました。バルコニーもありますが、1階という事で室内に干せるのは嬉しいですね。もちろん簡単に外れますので、使わない時は邪魔になりませんよ。
ドアを開けると・・・ウォークインクローゼット!!L字型にハンガーポールの設置されたタイプです。ウォークインはテンション上がりますね。
ホールに戻って…
トイレです。床も木目で落ち着ける雰囲気ですね。
もちろん温水洗浄便座付き。INAX製のシャワートイレです。
吊戸棚って便器があってあまり近づけないので、高いと足がつりそうになりません?低い位置に付いているのに優しさを感じます(^^)
次のお部屋へ…
こちらは約3.4帖のサービスルーム。
サービスルームとは、建築基準法で採光などが足りなかったりして居室と認められないお部屋の事です。ただ、法律上の事なので実際の状況とは違っている事も多いんですよね。ここは、少し小さいですが立派に居室として使えるお部屋です。
クローゼットはオープンタイプ。風通しが良く、お掃除も楽々です。整理整頓だけは必要ですけど^^;)窓のすぐ下は自転車置き場の屋根になっていますので、窓には近づけません。高さも道路より少し高くなっていて、視線が気になる事も無さそうです。玄関まで数段上ったのがここで生きてきましたね(笑)
では、次は洗面室へ…
こちらには洗面台、洗濯機スペース、浴室がひとまとめになっていて、脱衣所も兼ねています。
まずは三面鏡付きの洗面台。
上部にライトも付いていて、鏡を使う時に影になる事もありません。
収納は洗面台下と三面鏡裏のキャビネット。
大きな物から細かい物まで上手く納まりそうです。
水栓はハンドシャワータイプ。
洗面ボウルが広めのですし、寝ぐせくらいは直せそうですね。
次は浴室です。
壁には「切替」ボタン。押してみると照明の色が変わりました!今まではスッキリした爽やかな雰囲気だったのが、温かみのある優しい感じに。タイミングや気分によって変えられるのはいいですね。
追い焚き機能付きでボタン一つでお風呂を沸かしてくれます。追い焚きによって保温も出来るので、いつでも温かいお風呂に入れますよ。
ゆったり浸かれる1216サイズの浴槽。
浴室乾燥機能は換気の他に、お洗濯物乾燥や浴室暖房など様々な使い方があります。寒い季節には浴室を温めてから入浴すれば、ヒートショック予防になりますよ。
それでは最後はバルコニーのご紹介。バルコニーへの窓は二重サッシになっていました。防音だけでなく遮熱や防犯などの効果もあります。
広さは2.20㎡。決して広くはありませんが、奥行きがあって数字よりゆったり感じるバルコニーです。
外は緑道になっていて自然がいっぱい。一階なのがかえってイイ感じですね。今日の様なしとしと降る雨もまた素敵です(^^)
・
以上で四谷軒第5経堂シティコーポのご案内を終わります。
いかがでしたでしょうか??
経堂駅から徒歩7分のマンションです。
リノベーション済みという事で室内はとてもキレイですよ (っ・ω・)っ
内見のご予約やご質問などございましたらお気軽にお問い合わせくださいませ。
ご連絡お待ちしております。
□□□□□□□□□□□□□□□□□□□□□□□□□□□□□□□□□□□□□□□
★★★【四谷軒第5経堂シティコーポ】周辺のハザードマップをCHECK!!★★★
お部屋のお問い合わせ前に…!周辺のハザードマップをチェックしておきませんか!
四谷軒第5経堂シティコーポのハザードマップは★こちらから…どうぞ★
□□□□□□□□□□□□□□□□□□□□□□□□□□□□□□□□□□□□□□□
弊社、不動産Agent 六棒株式会社では、
□リノベーションマンションはほぼ全て仲介手数料無料!
□その他一般仲介物件は仲介手数料20%~30%OFF!
にてお取り扱いしております!※弊社の「Agent Fee=仲介手数料」についてはご案内、ご面談の際に営業担当者よりご説明いたします!
なるべく沢山のお部屋をホームページに掲載したいと思っておりますが、時間的成約もございますので、残念ながらご紹介できるお部屋の一部しか掲載できておりません。
このホームページに掲載中のお部屋、その他サイト等で気になるお部屋、街を歩いていて気になったマンション等々ございましたら是非、弊社営業部までご相談ください!
~不動産Agent 六棒株式会社の特徴~
・一般仲介物件の仲介手数料は20%~30%OFFにてご案内中です!
・リノベーションマンションについてはほぼ全て仲介手数料無料です!
・住宅ローンに自信あります!
・頭金10万円より購入できます。是非ご相談下さい!
・お部屋のご見学は車で2~3件まとめて案内します!
・物件数3000件以上、新築戸建、リノベ物件も多数ご用意しております!
過去に販売していたお部屋の概要 このお部屋の販売は終了いたしました。
| 価格 | -万円 |
| 面積 | 42.63㎡ |
| 間取り | 2bedrooms(2LDK) |
| 管理費 | 月額8,400円 修繕積立金:月額16,350円 |
| 所在階 | 4階 |
| お問い合わせ・ご内見のご予約はこちらからお気軽にどうぞ | |
ここで間取り図のご紹介です。
※間取り図は別タブで開きますので、確認しながらご覧いただく事が出来ます。
今回のお部屋は4階、間取りは2LDK、専有面積は42.63㎡となります。
シングル、カップル、DINKSにお勧めですね。
では、早速行ってみましょう!
4階玄関前です。
カメラ付きインターホンが設置されていて、お部屋の中から訪問者を確認する事が出来ます。しっかり見てから応対出来るのがいいですね。
それではお邪魔します。
中に入ると、コンパクトな玄関ホールにドアが並んでいました。落ち着いた色合いで上品な印象です。
振り返って玄関の様子。
人感センサーは、手が塞がっていても自動的に照明を点けてくれて助かります。いつでも明るい玄関が迎えてくれるのは嬉しいですよね(^^)
シューズボックスはトールタイプ。玄関内に出っ張らずにすっきりと設置されています。
まずは、ガラスの入ったドアから開けてみましょう。
こちらは約9.2帖のリビング・ダイニング・キッチンとなります。
ご覧の様にとても陽当りの良いお部屋です。キッチンに広めのスペースをとっているので、ダイニング、リビング両方のセットを置くには狭いかもしれませんね。寛げるダイニングテーブルセットなどがいいかなと思います。
では、お隣のお部屋を…
こちらが約4.6帖の洋室となります。
バルコニーの付いた明るいお部屋です。
バルコニーは広くはありませんが陽当りが良く、お洗濯物も気持ち良く乾きそうですね♪♪南西向きなのでお昼からがお勧めですよ。
外には高い建物も無く、時間で陽射しを遮られる事も無さそうです。
収納は、間口が広くて使いやすそうなクローゼットになっていました。全開になるとお洋服を選ぶ時などに便利ですよね。
このお部屋の仕切り戸は開けていくと壁部分に収納出来るので、洋室をリビングの一部として広々と使う事も可能です。
合わせて約13.8帖のお部屋の出来上がり。余裕があればこんな使い方いいですね♬
今度は、キッチンを見ていきましょう。
お部屋の雰囲気に合わせた、木目のパネルを使用した調理台です。
調理台の下は全て収納になっています。
水栓は浄水機能付きシャワー水栓です。
切り替えるだけで水道水が美味しいお水に早変わり。ヘッドが伸びるのでシンクのお掃除などにも便利です。
コンロは3口。片面焼きグリルが付いています。
コンロ三つも使うかな?と思われるかもしれませんが、お昼にラーメンを作るのでさえ三つあると便利ですよ。スープ用のお湯を沸かす、麺を茹でる、トッピングの野菜を炒めるを同時に出来ますから(^^)
調理台の後方には冷蔵庫や家電ラック、食器棚などのスペースがありました。
お料理中は換気扇をお忘れなく!
キッチン脇の扉奥には洗濯機スペースが。中には吊戸棚もあり、洗剤などもまとめておけます。日本では洗面室にある事が多い洗濯機ですが、イギリスではキッチンにあるのが普通らしいですよ。家事をする場所をまとめるという意味では良いのかもしれませんね。
では、いちどホールに戻って…
トイレを見てみます。
上部には吊戸棚。もちろんウォシュレットも完備しています。
今度は、洗面室へ…
三面鏡付きの洗面台です。
収納は洗面台下とミラーキャビネットになります。細かい物が多くなりがちな洗面周りには、ミラーキャビネットの様な収納が重宝するんですよね。
水洗はハンドシャワータイプ。洗面ボウルを流したり、寝ぐせを直したりも出来ますよ。
次は浴室へ…
ダークブラウンのアクセントウォールを使用した、落ち着いた雰囲気の浴室です。一日の終わりに、ゆったりとした時間を過ごせそうですね♪♪
追い焚き機能が付いていますので、寒い季節の長風呂も大丈夫(^^)v
浴室乾燥機は浴室の乾燥だけでなく、お洗濯物乾燥やヒートショック予防など様々な働きをしてくれます。どんどん使っていきましょう。
では、次のお部屋へ…
こちらは約4.2帖の洋室となります。
北東側のバルコニーに出られる大きな窓があるお部屋です。
収納はクローゼット。横には小さな窓も付いています。
それでは、バルコニーへ出てみましょう。
引き戸ではなく、外開きのドアになっています。
北東側のバルコニーです。
方角的に陽射しは期待出来ませんが、暗いわけではないですよ。
物置かな?と思って開けたドアは給湯器置場でした^^;)何か入りそうですが、危なくないか確認してからにしましょうね。
外の様子です。
正面の白い建物がレフ板みたいですね(笑) 開放的で気持ちいい眺めです♬
住宅地という事で音に関しても問題ナシ、とても静かでしたよ。
・
・
以上で四谷軒第5経堂シティコーポのご案内を終わります。
いかがでしたでしょうか??
経堂駅から徒歩7分のマンションです。
リノベーション済みという事で室内はとてもキレイですよ (っ・ω・)っ
内見のご予約やご質問などございましたらお気軽にお問い合わせくださいませ。
ご連絡お待ちしております。
弊社、不動産Agent 六棒株式会社では、
□リノベーションマンションはほぼ全て仲介手数料無料!
□その他一般仲介物件は仲介手数料20%~30%OFF!
にてお取り扱いしております!※弊社の「Agent Fee=仲介手数料」についてはご案内、ご面談の際に営業担当者よりご説明いたします!
なるべく沢山のお部屋をホームページに掲載したいと思っておりますが、時間的成約もございますので、残念ながらご紹介できるお部屋の一部しか掲載できておりません。
このホームページに掲載中のお部屋、その他サイト等で気になるお部屋、街を歩いていて気になったマンション等々ございましたら是非、弊社営業部までご相談ください!
~不動産Agent 六棒株式会社の特徴~
・一般仲介物件の仲介手数料は20%~30%OFFにてご案内中です!
・リノベーションマンションについてはほぼ全て仲介手数料無料です!
・住宅ローンに自信あります!
・頭金10万円より購入できます。是非ご相談下さい!
・お部屋のご見学は車で2~3件まとめて案内します!
・物件数3000件以上、新築戸建、リノベ物件も多数ご用意しております!
過去に販売していたお部屋の概要 このお部屋の販売は終了いたしました。
| 価格 | -万円 |
| 面積 | 50.43㎡ |
| 間取り | 2bedrooms(2LDK) |
| 管理費 | 月額9,900円 修繕積立金:月額19,340円 |
| 所在階 | 3階 |
| お問い合わせ・ご内見のご予約はこちらからお気軽にどうぞ | |
間取り図をご紹介しておきます。
バルコニーが二つありますね。
いろいろ付いてるうえに、ペットもOKです!(^^)!
今回ご紹介するお部屋は3階になります。
エレベーターはありませんので階段で上がります。
お部屋によって階段がわかれてますので、お気を付けください。
こちらが玄関になります。
カメラ付きインターフォンが設置されていますね。
やはりカメラ付きは安心です(*^^*)
中はこんな感じです。
新築の匂いがして、テンションがあがります(笑)
左側にはシューズインクローゼットがあります。
靴だけでなく、スポーツ用品なども収納可能とのこと。
右側には小物置きが…
お花や写真を飾ったり、トレイを置いてカギとか小銭を入れたり、いろいろ使えそうですね。
廊下を右に曲がると、ドアが3つ…
まずは、正面の引戸から行ってみましょう!
リビング、ダイニング、キッチンです…
エアコンも初めから付いているので、安心です。
時期によってはすぐに工事出来なかったりしますからね。
左の引戸はのちほど開けますので、もう少しお待ちください^^;
奥には南向きの窓、その前にオシャレなデスクがありますね。
少し奥まっていて集中出来そうです。
天井にはシーリングファンライト…
これを見ると、リゾートを思い出してしまいます(笑)
こちらの壁のオブジェみたいなものはエコカラットと言って、湿度を快適に調整したり、気になるニオイや有害物質を軽減したりしてくれるそうです。こんなものがいつの間にか出来てたんですね!日本家屋の砂壁みたいなものですかね(^^)
入ってすぐ左にカウンターとその下に収納があります。
この
カウンターには何かステキなものを置きたいですね。
では、キッチンのご紹介を…
コンロは2口ですが、グリルが付いてます。
グリルはお魚だけでなく、野菜やお肉も焼けますよ。
食洗機付きは嬉しいですね。
一度使うとやめられないらしいです ^^;
水栓は、浄水機能付きのハンドシャワータイプです。
シンクや大きいお鍋など洗う時に活躍しますね。
オープンキッチンですから、お料理する時にはしっかりと換気扇をまわしましょう。
エコカラットにあまり負担をかけないように!!(笑)
お待たせしました。
リビング引戸を開けてみましょう!
うん、やっぱり広々としてていいですね(*^^*)
出来れば解放して使いたいところです。
洋室に移動してみましょう。
こちらの洋室からバルコニーに出るようです。
ウォークインクローゼットです。
では、いちど廊下に出てもうひとつの洋室へと向かいます。
リビングからは突き当り、玄関からは入ってすぐ左のドアですね。
独立性の高いお部屋になっています。
こちらの洋室にもバルコニーがあります。
正面のドアですね、チョット出てみましょう。
すぐ前には高い建物がありませんので、開けた感じですね(^^)
中に戻って…
左には棚があります。
何か飾るのもよし、実用的に収納するのもよしですね。
そのお隣りの扉を開けると…
システム収納です。
真ん中には棚があるので、収納ボックスなどを上手く使って収納しましょう。
また廊下に戻って…
右のドアの向こうは、トイレになります。
飾り棚がありますね。
お花を飾ったり、最近はオシャレな消臭剤などがありますのでいかがですか。
上には収納を備えてます。
もちろんウォシュレットも付いてますよ。
TOTOさん、いつもお世話になってます(笑)
今度は、トイレを出て正面の引戸を開けてみると・・・洗面室です。
洗面台の下と鏡の裏が収納になってます。
鏡の裏は、細々したものを収納するのにホントに助かりますよね。
洗面台脇と洗濯機置場脇に棚があって便利そうです。
ちょっと置けてすぐ使えるところがポイントです。
水栓はハンドシャワータイプなので、シャンプーとかもできますよ。
洗面台の反対側が浴室です。
幅いっぱいに鏡が設置されいてます。
浴室乾燥機や追い焚き機能もぬかりなく…
浴室乾燥は、浴室のカビ予防、雨が続く梅雨などの洗濯乾燥、寒い季節のヒートショック防止など、何役にも立ってくれる優れものですよ。
目一杯活用してくださいね(^^)/
最後は南側のバルコニーに出てみましょう。
こちらも開放感のある眺めですね。
下は緑道になっていて、とても静かでした。
晴れていれば陽射しが気持ち良かったのでしょうが、小雨だったことでかえって癒された気がします(*^^*)
では、以上で四谷軒第5経堂シティコーポのご案内を終わります。
いかがでしたでしょうか??
経堂駅から徒歩7分のマンションです。
リノベーション済みという事で室内はとてもキレイですよ (っ・ω・)っ
内見のご予約やご質問などございましたらお気軽にお問い合わせくださいませ。
ご連絡お待ちしております。
弊社、不動産Agent 六棒株式会社では、
□リノベーションマンションはほぼ全て仲介手数料無料!
□その他一般仲介物件は仲介手数料20%~30%OFF!
にてお取り扱いしております!※弊社の「Agent Fee=仲介手数料」についてはご案内、ご面談の際に営業担当者よりご説明いたします!
なるべく沢山のお部屋をホームページに掲載したいと思っておりますが、時間的成約もございますので、残念ながらご紹介できるお部屋の一部しか掲載できておりません。
このホームページに掲載中のお部屋、その他サイト等で気になるお部屋、街を歩いていて気になったマンション等々ございましたら是非、弊社営業部までご相談ください!
~不動産Agent 六棒株式会社の特徴~
・一般仲介物件の仲介手数料は20%~30%OFFにてご案内中です!
・リノベーションマンションについてはほぼ全て仲介手数料無料です!
・住宅ローンに自信あります!
・頭金10万円より購入できます。是非ご相談下さい!
・お部屋のご見学は車で2~3件まとめて案内します!
・物件数3000件以上、新築戸建、リノベ物件も多数ご用意しております!
過去に販売していたお部屋の概要 このお部屋の販売は終了いたしました。
| 価格 | -万円 |
| 面積 | 66.00㎡ |
| 間取り | 3bedrooms(3LDK) |
| 管理費 | 月額:13,000円 修繕積立金:月額25,320円 |
| 所在階 | 4階 |
| お問い合わせ・ご内見のご予約はこちらからお気軽にどうぞ | |
間取り図は3LDK、66.00㎡。
家具付きのお部屋です(´▽`*)
クリックすると別タブで開くことも出来ます!
ご紹介するお部屋は一番端のこちらのエントランスから入ります。(号室ごとに入口は何か所かに分かれています。)
エントランスを入ると広々とした空間になっています。
エレベーターはありません。階段でお部屋へむかいます。
4階へ到着。ここの共用廊下フロアも広いですね!
お隣とお部屋の距離もありプライバシーを大切に暮らしたい方によさそうです。
お部屋は角部屋。玄関前は壁ですが、奥は外が見えるようにあいており、いい風が入ってきます。
インターホンはTVモニターがついており、来訪者の顏も事前にバッチリ確認できます。防犯面も安心安全です。
ではブラウンの玄関扉をあけてお部屋の中へおじゃまします。
室内はリノベーション済みでぴかぴかです♪
玄関を入ると正面はカウンターが造作されています。
インテリアや観葉植物を飾ってお好みの空間を演出できますね♪
また玄関には人感センサーがついており、人の動きを感知して自動で照明が消灯します。暗い中スイッチを手探りで探して押す、なんていうちょっとした生活のストレスからも解放される上に節電効果もある優れものです。
玄関をあがると廊下が横にのびています。
廊下をあがってすぐ正面にはシューズインクローゼットがありました。
背が高いので家族全員の靴もここにまとめて収まりますね。棚の高さを調節すればブーツなども仕舞っておけます。
では廊下を奥まで進み、採光部のある扉をあけてLDKから見ていきましょう。
レッツゴー!
please come in(●´∀`)ノ
LDKは約15.0帖とゆとりのある空間になっています。
エアコンが設置されているので新生活も快適にスタートできそうです。
お部屋に置いてある家具もついてきますよ♪ゼヒ家具もよくよくご覧くださいませ。
リビング内にはマルチカウンターが造作されています。
ここの壁面には調湿、消臭効果のあるエコカラットという壁材が使われています。見た目がおしゃれなだけでなく機能面も優秀です。
家電の説明書とかこういうところに入れませんか?
私だけですかね・・・(*‘ω‘ *)
つづいてキッチンを見ていきましょう。
対面式なのでリビングにいる家族と会話を楽しみながらお料理ができますよ。
キッチン奥には窓がありバルコニーに出られるようになっています。
お料理中の換気もすばやくできそうです。
(バルコニーは最後にご紹介いたします。)
キッチンは浄水機能付き水栓、食洗機、グリルと設備が充実☆
お料理好きな方でもきっとご満足いただけるはず。
大きなお鍋にお水を入れる時は水栓のホースを伸ばして入れると楽ですよ♪
キッチン上の照明もデザインがかわいらしいですね♡
3部屋ある洋室のうち2部屋はLDKを介して行けるようになっています。
写真左側、2枚の可動扉をあけると・・・
約6.0帖の洋室です。2面に窓のある風通しのいいお部屋です。
小さいほうの窓は半透明になっているのでカーテンをつけなくても外からお部屋の中は見せません。
こちらのお部屋には約0.5帖のマルチウォークインクローゼットがついています。収納が大きいと居住スペースを有効的に使えるのがうれしいですね。
もう1部屋の洋室は・・・
約5.5帖の広さ。こちらの窓も半透明なので外からお部屋の中は見えません。
約1.0帖と収納力のあるウォークインクローゼットがついています。
荷物はここにどんどん仕舞ってお部屋は広く使いましょう♪
可動扉側の洋室はLDKの延長としても利用することが可能です。
扉をあけておくとLDKの中も一層明るくなりました(*´▽`*)
今度はLDKを出て廊下側を見ていきましょう。
廊下を出てすぐ右側の扉は洋室です。
こちらの洋室は約4.6帖。
壁面の一部には落ち着いた色合いのカラークロスが使われています。おしゃれですね。
収納はというと、オープンシェルフとクローゼットがついています。
これだけあれば大きな収納家具は用意する必要なさそうですね。
洋室の斜め向かいの扉は洗面室です。
洗面室。ここにはトイレ、洗面化粧台、洗濯機置場、バスルームがまとまっています。水まわりの設備がまとまっているとお掃除もまとめてこなしやすいですね♪
洗面化粧台と洗濯機置場はお隣同士。洗剤はシンク下の収納スペースに入れておくとよさそうです。
水栓はホースを伸ばすとシャワーとしても利用可能です。
寝ぐせがひどい日でもこのシャワーでザーッとぬらしてセットすれば、多分、バッチリ!
洗面化粧台の横の木目調の扉はトイレです。
トイレはウォシュレット付き。
おしりだって洗ってほしい。んです!
掃除道具やサニタリー用品は吊戸棚の中へ入れれば見た目もトイレ内の見た目もスッキリ。
トイレのお隣にはリネン棚がありました。
タオルや着替えを置いておくところがあるとホントに助かりますよね!!
バスルームの扉の横には浴室換気乾燥機の操作パネルがついています。
乾燥機があれば雨の日のお洗濯も安心です。
バスルームは天然石のような柄の壁パネルが使われています。
アーバンな雰囲気。カッコイイです。
追い焚き機能もついていますよ。女性には冷える季節、何かいも使いたい設備ですよねー。
最後に洋室2部屋とリビングをつなぐ約11mのワイドスパンバルコニーに出てみましょう!どきどき。
ちなみに全室二重サッシになっています。(目線と防音対策です。)
バルコニーは約8.96㎡、西向き。
この日は曇天でしたが晴れた日は陽ざしが期待できます。
高い建物はあたりにありません。快適快適。
左右も同じ感じの風景です。二重サッシでしたが、特に車の走行音等は気になりませんでした。音の感じ方は個人差がございますので、ゼヒ現地でご確認されることをおすすめいたします。
四谷軒第5経堂シティコーポ、いかがでしたでしょうか?
内見のご予約やご質問などございましたらお気軽にお問い合わせくださいませ。
ご連絡お待ちしております。
過去に販売していたお部屋の概要 このお部屋の販売は終了いたしました。
| 価格 | -万円 |
| 面積 | 50.43㎡ |
| 間取り | 2bedrooms(2LDK) |
| 管理費 | 月額:9,900円 修繕積立金:月額19,340円 |
| 所在階 | 2階 |
| お問い合わせ・ご内見のご予約はこちらからお気軽にどうぞ | |
間取りは2LDK、50.43㎡。家具付きのお部屋です。
クリックすると別タブで開きますよ!
ご紹介するお部屋のエントランスはこちらです。
階段で2階へあがります。
玄関扉は鮮やかなグリーン。
こちらの入口側はワンフロアに2部屋づつの配置されているようです。
ピンポーン♪が押されるとTVモニターで来訪者の顏が確認できます。
防犯面も安心安全です。
ではお部屋の中へおじゃまします。
室内はリノベーション済みでぴかぴかです♫
玄関横には木目調のシューズBOXが設置されています。
手持ちの靴が入りきらない場合は普段履く靴をここに仕舞って、その他はお部屋で管理するとよさそうです。
玄関をあがると廊下が横にのびています。
廊下を左側へ進み、最初にリビングダイニングキッチンを見ていきましょう♪
まあるいドアのぶが可愛らしいですね♡
ドラえもんの手みたいです。
じゃじゃん。
リビングダイニングキッチンは約9.1帖の縦長空間。
窓はほぼ南向きです。お部屋に置いてある家具もついてくるのでじっくりご覧くださいませ。
窓側からもリビングダイニングキッチンをご覧ください。
キッチンは対面式なのでリビングにいる家族と会話を楽しみながらお料理ができますよ♪
エアコンは「にくいねぇ、三菱」でおなじみの三菱霧ヶ峰が設置されています。
つづいてキッチンを見ていきましょう。
キッチン上の天井とついている照明、ステキですね!
冷蔵庫は一番奥に置けるようになっています。
スライド収納は物が見やすく出し入れもしやすそう!
ファイルBOXなどを使うと隙間なくキレイに収納できるそうです。(ネット情報)
浄水機能付き水栓はホースを伸ばしてシャワーとしても利用可能です。
大きなお鍋に水を入れる時はホースを伸ばしてザーッと入れると簡単ですよ♪コンロまでお鍋を運ばなくても済みますし!
リビング内には扉&棚付きの収納スペースも設けられています。
日用品のストックなど生活感のでがちなアイテムもここに仕舞えば見た目もすっきり。
2部屋ある洋室のうち1部屋はリビングに隣接しています。
リビングお隣の洋室は約5.1帖。こちらも南西向きの明るいお部屋です。
壁には木の棚が造作されています。
お気に入りの小物やインテリアなどをディスプレイしてお好みの空間に仕上げましょう♫
ウォークインクローゼットもあり収納スペースもバッチリ確保されています。
今度はリビングダイニングキッチンを出てまだ見ていない廊下側を見ていきましょう。
廊下を出てすぐ右側の扉はトイレです。
トイレが何気に広い!!ゆったりしたりところなので、これはこれでありがたいですね。葬儀用具などは上の吊戸棚へどうぞ♪
もちのろんでウォシュレットがついています。
アイアン調のペーパーホルダーとタオルホルダーもおしゃれです。
トイレの斜め向かい側は洗面室です。玄関から近いので帰宅後の手洗い・うがいもスムーズに済ませられますね。
扉を横にスススとスライドさせまして・・・
洗面室。洗濯機置場、洗面化粧台、バスルームがまとまっています。
洗面室を入って左側が洗濯機置場です。
吊戸棚があるので手の届くところに洗剤が置いておけます。
洗面化粧台は鏡の裏が一面収納になっており、ゴチャゴチャ散らかりがちな小物類も整理整頓しながらスッキリ収納できそう♡鏡の間にライトがつくのでメイクもしやすそうです。
カウンター部分も物を置く余裕があります。
洗面室を入って左側はバスルーム。
扉の横には浴室換気乾燥機の操作パネルがついています。
こちらのお部屋、バルコニーが少しコンパクトなのですが乾燥機があればお洗濯物も安心です。
バスルームはグレーのボーター柄の壁パネルで落ち着いた雰囲気です。
追い焚き機能もついています。
冷える季節はこころゆくまで温まってくださいませ。
廊下を出てまっすぐ進んだ先は洋室の扉です。
玄関から一番近いお部屋になります。
こちらの洋室は約6.0帖。
クローゼットが大きいですね!隣は棚もあるので大きな収納家具は用意する必要はまずないでしょう。
こちらの洋室の窓の外はバルコニーになっています。(バルコニーは2面にあります。)出てみましょう。
こちらは北東向きのバルコニーになります。
正確は広さは分かりませんが、コンパクトな印象です。
正面の眺望です。ちょうど戸建てがたっています。
ちょっと向かいの窓が気になるかなーー?という感想です。
左右も住宅が続く風景です。
住宅街ビューですね。
もう1つのバルコニーはリビング横の洋室から出られます。
こちらは南西向き。広さは同じくコンパクトな印象です。
お洗濯物が干しきれない時はバスルームの乾燥機が頼りになりますね。
外はマンション脇の緑道をはさんでマンションが立ち並ぶ風景です。
なんだかこちらの方が落ち着いた感じで私は好きです。みなさまどうですか?
左右も同じ風景です。
下は緑道。緑も目に入ってけっこういいかも・・・。
ゼヒ現地で実際にご確認いただければと思います。
四谷軒第5経堂シティコーポ、いかがでしたでしょうか?
内見のご予約やご質問などございましたらお気軽にお問い合わせくださいませ。
ご連絡お待ちしております。
弊社、不動産Agent 六棒株式会社では、
□リノベーションマンションはほぼ全て仲介手数料無料!
□その他一般仲介物件は仲介手数料20%~30%OFF!
にてお取り扱いしております!※弊社の「Agent Fee=仲介手数料」についてはご案内、ご面談の際に営業担当者よりご説明いたします!
なるべく沢山のお部屋をホームページに掲載したいと思っておりますが、時間的成約もございますので、残念ながらご紹介できるお部屋の一部しか掲載できておりません。
このホームページに掲載中のお部屋、その他サイト等で気になるお部屋、街を歩いていて気になったマンション等々ございましたら是非、弊社営業部までご相談ください!
~不動産Agent 六棒株式会社の特徴~
・一般仲介物件の仲介手数料は20%~30%OFFにてご案内中です!
・リノベーションマンションについてはほぼ全て仲介手数料無料です!
・住宅ローンに自信あります!
・頭金10万円より購入できます。是非ご相談下さい!
・お部屋のご見学は車で2~3件まとめて案内します!
・物件数3000件以上、新築戸建、リノベ物件も多数ご用意しております!
過去に販売していたお部屋の概要 このお部屋の販売は終了いたしました。
| 価格 | -万円 |
| 面積 | 50.43㎡ |
| 間取り | 1bedroom(1LDK) |
| 管理費 | 月額:9,900円 修繕積立金:月額19,340円 |
| 所在階 | 1階 |
| お問い合わせ・ご内見のご予約はこちらからお気軽にどうぞ | |
こちらが今回ご紹介させて頂くお部屋の間取りです。
50.43㎡の1LDK。ネクタイの様な形のお部屋ですね。
間取り図はクリックして頂ければ別タブで開くので、見比べながら進んで行くのもアリだと思いますよ!
それではお部屋へと参りましょう!
玄関の前にはモニター付きのインターフォンが付いています。
お部屋の中から外の様子を確認することが出来るのは、防犯的にも安心できます。
オートロックは無いので、チャイムが鳴ったらまずは相手の顔を確認しましょうね!
それではお部屋の中に入って行きましょう!!
お部屋はフルリノベーション済みなので中は新築のようにピカピカですよ!
玄関の左手にはシューズボックスが付いています。
中の棚板は高さの調節をすることが出来るので、ブーツの様な背の高い履物でも収納することが出来ますよ。
それでは廊下を奥まで進んで行きましょう。
こちらはリビング・ダイニング・キッチンです。
広さは約15.1帖。家具付きの物件になるので、既に設置してあるテーブルやソファーなどはお引渡し後もそのままご使用いただけます。
リビングは南向きの窓に面しているので、自然の光で室内は明るくなっています。
レール上を自由に動かすことのできるダウンライトが付いていますね。レールに取り付けるタイプのダウンライトは様々な種類のものが売っていますので、ご自分のお好きな物でカスタマイズしても良いかもしれませんよ。
次はキッチンです。
水栓は浄水機能付きです。シャワ―ヘッドになっているので、大きなシンクの隅々まで水を流すことが出来ます。洗い物やお掃除の際などには大活躍してくれることでしょう。
コンロは3口のグリル付きガスコンロ。グリルは強力なオーブンの様なものなので、お魚を焼いているだけでは勿体ないですよ!トーストから始まり、揚げ物の温め直し、ピザやグラタン、鉄鍋を使えばアヒージョの様なシャレオツ料理にも対応可能ですよ。
収納スペースはご覧の通りタップリです!
このままだと仕切りが大きすぎるので、カゴや箱等を使って細かく分けていきたいですね。フライパンはファイルボックスを使って立てて置けば見た目もスッキリ、取り出しも簡単になりますよ。
窓も付いているので、換気性も良さそうですね。
リビング側の窓も開ければ南北に風が通り抜けるので、部屋の中にお料理の臭いが籠るような事も防げそうです。
北側なので太陽の光が直接差し込むことはありませんが、自然の光が入ってくるだけで開放感を感じることが出来ますよ。
キッチンの隣には洗濯機置場がありました。
扉が付いているので、来客時には生活感を隠すこともできますね。ずっと閉じているとカビの原因にもなってしまうので、定期的な換気を忘れないようにしてくださいね。
次はキッチンのお隣のこちらです。
こちらは洗面室です。
カワイイ洗面ボウルですね。
ミラーもシンプルなものが付いています。内部はキャビネットになっているので、歯ブラシなどの小物はこちらに収納してくださいね。
奥はお風呂になっています。
深さのあるオーソドックスなタイプの浴槽が付いています。洋式の浴槽も随分一般的にはなりましたが、やはり肩までお湯に浸かる事の出来るのは大きなメリットです。
浴室乾燥機能は付いていませんが、窓が付いているので入浴後はこちらを開けておきましょう。カビは建材の寿命を縮めてしまうので、湿気は小まめに取り除きましょうね!
現代的な光沢のあるパネルが付かれている浴室も良いですが、タイルが貼り付けてあるのもなかなかいいものですよ。個人的に見た目は味のあるタイル貼りの方が好みですかねぇ。。
それでは一度玄関方面へと戻りましょう。
リビングとは別のドアを開けるとトイレになっています。
LIXIL製のウォシュレット機能付きです。もはやウォシュレットは付いていて当たり前の機能になってしまいましたね。リノベーション済みの物件なら付いていて当たり前かもしれません。
収納スペースとして吊戸棚がついているので、トイレットペーパー等の消耗品はこちらに収納してくださいね。
それではまたリビングに戻ってきて、
こちらの洋室です。
広さは約7.3帖。寝室としては充分な広さだと思います。
クローゼットが付いているので、お部屋の中にタンスなどの収納家具を置く必要もなさそうですね。空間を広く使う事ができるのはありがたいです。
窓際は剣先の様な形をしていますが、基本的には四角く使っていけば不自由に感じることもないと思います。
それではバルコニーへ出てみましょう。
ガラス越しに見えている通り、バルコニーはあまり広くありません。
両サイドを壁に挟まれているので、プライバシーは保たれますが、人によっては圧迫感を感じるかもしれません。
南向きなので日中は明るいバルコニーになりそうです。
では、以上で四谷軒第5経堂シティコーポのご案内を終わります。
いかがでしたでしょうか??
経堂駅から徒歩8分のマンションです。
リノベーション済みという事で室内はとてもキレイですよ (っ・ω・)っ
内見のご予約やご質問などございましたらお気軽にお問い合わせくださいませ。
ご連絡お待ちしております。
弊社、不動産Agent 六棒株式会社では、
□リノベーションマンションはほぼ全て仲介手数料無料!
□その他一般仲介物件は仲介手数料20%~30%OFF!
にてお取り扱いしております!※弊社の「Agent Fee=仲介手数料」についてはご案内、ご面談の際に営業担当者よりご説明いたします!
なるべく沢山のお部屋をホームページに掲載したいと思っておりますが、時間的成約もございますので、残念ながらご紹介できるお部屋の一部しか掲載できておりません。
このホームページに掲載中のお部屋、その他サイト等で気になるお部屋、街を歩いていて気になったマンション等々ございましたら是非、弊社営業部までご相談ください!
~不動産Agent 六棒株式会社の特徴~
・一般仲介物件の仲介手数料は20%~30%OFFにてご案内中です!
・リノベーションマンションについてはほぼ全て仲介手数料無料です!
・住宅ローンに自信あります!
・頭金10万円より購入できます。是非ご相談下さい!
・お部屋のご見学は車で2~3件まとめて案内します!
・物件数3000件以上、新築戸建、リノベ物件も多数ご用意しております!
過去に販売していたお部屋の概要 このお部屋の販売は終了いたしました。
| 価格 | -万円 |
| 面積 | 50.43㎡ |
| 間取り | 2bedrooms(2LDK) |
| 管理費 | 月額9,900円 修繕積立金:月額19,340円 |
| 所在階 | 1階 |
| お問い合わせ・ご内見のご予約はこちらからお気軽にどうぞ | |
さて今回のお部屋は1階になります。
間取り図はこちら↓ (図面と現況が異なる場合は現況を優先します。)
クリックすると別タブで開くことも可能です。
間取り図とお部屋比較すると見やすいですよ
では、営業部小倉が【 四谷軒第五経堂シティコーポ1階】
お部屋一緒にご案内させて頂きます(o*。_。)oペコッ
各フロアに2戸です。
緑が印象的な扉!色が鮮やかでいいですね(/・ω・)/
玄関先にはTVモニタ付きインターホン完備。
オートロックなどないのでこちらで来訪者が確認出来ますね
玄関は少し広め。
可愛いラグがお出迎えです♪
左手にシューズボックスがありました。
トールタイプなので玄関に靴が散らばず整理整頓出来そうですね!
玄関廊下はこちらの3枚の扉が続いています。
今回のお部屋は2LDKですよ(/・ω・)/
先に左手のリビングからご紹介
ε=(。ノ・ω・)ノ
カウンターキッチンのあるリビング
白基調で素敵なお部屋☆
約11.1帖あるリビングを介して隣の洋室にも行けます。
開き戸なので普段は閉めてプライバシーも守られますね◎
洋室約7帖。南西向きで陽当り良好!
小窓がある面は梁があり、なんちゃってサンルームのような形
南西向きですが、撮影は午前中☀
太陽が入って気持ちのいい朝を迎えられそうですね
7帖の洋室にはクローゼットもあります。
奥行が少しあり、収納力も高いですね!
上段も使えるので洋室はそのままタンスなど置かず広く使えそうです。
また、リビングにはエアコンもついていました。
次はキッチンへご案内します。
対面式ではありませんがカウンターがあり、半独立してみえるキッチン
下には収納も出来そうです。
炊飯器や電子レンジの置く場所にも困りませんね!
奥にはもちろん冷蔵庫置場もありました。
また、キッチン自体にも収納がたくさん出来ます。
上段は開き戸タイプ。
普段なかなか使わないものをしまってもいいですね( ´∀`)b
下はスライド式と開き戸のミックスでした。
整理整頓すればかなり入りそうですね(*´ω`*)
また、こちらのキッチンスペックも◎
浄水機能内蔵型で水栓部分はシャワーヘッド
ノズルが伸びてシンクの隅々までお手入れが出来ますね。
先程みた洋室7帖のお隣にはお手洗いがあります。
戸棚もあるウォシュレット機能付きトイレ
アクセントクロスが落ち着いた空間にしてくれています。
続いて洗面室です。
正面には室内洗濯機置き場
右手には洗面化粧台があります。
鏡は一面タイプで裏に収納などはないですが、その分収納がサイドにありました。
下には開き戸タイプの収納があります。
続いて浴室は浴室乾燥機完備\(^o^)/
除湿だけではなく、暖房や冷風機能もあります
また浴室は追い焚き機能完備。
窓があるので換気もしやすいですね!!
窓を開けて大きな声で歌うと外に筒抜けなので気をつけてください (*^艸^)
浴室乾燥機もあるし窓もあるので換気がきちんと行えそうですね
玄関廊下に戻り、右の扉いってみましょう
ε=(。ノ・ω・)ノ
洋室約4.3帖のお部屋
開口部は北東向き(/・ω・)/
開けると窓の外はエントランス側ですね!
ちょうどお向かいさんが見えます|д゚)
窓はモザイクガラスになっています。
夏はレースカーテンをして網戸を取り付ければ風通しもいいですね
クローゼットもありますよ
幅は狭いですがハンガーパイプもあるし奥行もきちんとあります( ´∀`)b
さて、四谷軒第五経堂シティコーポ1階のお部屋はいかがでしたか?
最後に南西向きバルコニーご案内していきます。
ε=(。ノ・ω・)ノ
目の前は緑道ですね(*´ω`*)
お天気もよく緑も見えて休日の様な時間が流れていました
非常用のつき破るパーテンションがわりと狭いです。
ちょっとのぞきこめば見えてしまうような。。💦
お天気が気持ちよくて上ばっか見ていましたがふと下を見ると緑道が
お洗濯干すのに気になる方は気になるのでしょうか。
私はあんまり気なりませんが(^^♪
赤堤小学校がこの先にあるので朝は賑やかそうです☀
【四谷軒第五経堂シティコーポ 1階】はいかがでしたでしょうか?
六棒株式会社なら四谷軒第五経堂シティコーポ1階が
仲介手数料無料でご案内可能!!
▼平成25年内装フルリフォーム済み
▼平成30年8月室内クリーニング実施済
▼ペット飼育可能
▼北沢川緑道に面した閑静な住環境
他にも詳細が知りたい!!実際に見学をしたい!!などありましたら
仲介手数料最大無料の当社
お電話ください(^-^*)/
TEL 03-5413-5336
お気軽にお問い合わせください。
スタッフ一同お待ちしております。
弊社、不動産Agent 六棒株式会社では、
□リノベーションマンションはほぼ全て仲介手数料無料!
□その他一般仲介物件は仲介手数料20%~30%OFF!
にてお取り扱いしております!※弊社の「Agent Fee=仲介手数料」についてはご案内、ご面談の際に営業担当者よりご説明いたします!
なるべく沢山のお部屋をホームページに掲載したいと思っておりますが、時間的成約もございますので、残念ながらご紹介できるお部屋の一部しか掲載できておりません。
このホームページに掲載中のお部屋、その他サイト等で気になるお部屋、街を歩いていて気になったマンション等々ございましたら是非、弊社営業部までご相談ください!
~不動産Agent 六棒株式会社の特徴~
・一般仲介物件の仲介手数料は20%~30%OFFにてご案内中です!
・リノベーションマンションについてはほぼ全て仲介手数料無料です!
・住宅ローンに自信あります!
・頭金10万円より購入できます。是非ご相談下さい!
・お部屋のご見学は車で2~3件まとめて案内します!
・物件数3000件以上、新築戸建、リノベ物件も多数ご用意しております!
過去に販売していたお部屋の概要 このお部屋の販売は終了いたしました。
| 価格 | -万円 |
| 面積 | 50.43㎡ |
| 間取り | 2bedrooms(2LDK) |
| 管理費 | 月額9,900円 修繕積立金:月額19,340円 |
| 所在階 | 2階 |
| お問い合わせ・ご内見のご予約はこちらからお気軽にどうぞ | |
また、エレベーターがないので階段でお部屋まで
クリックすると別タブで開くことも可能です。
間取り図とお部屋比較すると見やすいですよ
では、営業部小倉が【四谷軒第5経堂シティコーポ 2階】
お部屋一緒にご案内させて頂きます(o*。_。)oペコッ
こちら今回のお部屋玄関前になります!
緑のレトロな可愛い扉ですね|ω・`)ちら
TVモニタ付きインターフォンがで来訪者もばっちり確認◎
セキュリティ面も安心ですねφ(`д´)メモメモ…
では♡早速お部屋いってみましょう
お邪魔しまーす┏○ペコ
玄関入って左はトールタイプのシューズボックス!
高さ調節も出来るのでブーツなども立てて収納出来ます(((uдu*)ゥンゥン
靴の多いお洒落さんも安心の大容量\(^o^)/
反対側はカウンターになっています。
写真や緑など置いて明るい玄関に
また、玄関照明は人感センサー付きです!
買い物などで重い荷物で手がふさがっている方でも
手の届かないお子さんでも
おっちょこちょいですぐ電気を消し忘れる方も!!!
玄関廊下を進むとリビングがありますよ!
早速行ってみましょう
(((((((((((っ・ω・)っ
人気のカウンターキッチンがあるリビング、
南西向き約9帖、隣にスライド式で仕切られている洋室約5.1帖があります。
普段は開け放してリビングとして使ってみては(/・ω・)/?
こちらの物件は家具付きになります!
生活空間が想像出来て、そのまま家具が使用出来ます◎
サンルームのような一角ですね( ゚д゚)♡
パソコンを置いても良いですね!
私はアメショの猫ちゃんがいるので、私だったらキャットタワー置こうかな♡
こちらペット可なんですよ((ノェ`*)っ))タシタシ
猫さんとかわんちゃんは日向ぼっこ好きですよね♡
こ~んな天気の良いポカポカ陽気の時は日向ぼっこして窓眺めてるので
ペットたちに最適な場所かな (*^艸^)な~んて想像しちゃいますね!
勉強や仕事もはかどりそう
お隣の洋室はバルコニーがあります。
その為閉めても開けても圧迫感特にありませんね(*´・ω・)(・ω・`*)ネー
お部屋リビングと分けられるのでこちら寝室としても勿論使えますよ!
寝室に絶対欲しい収納もあります
マルチWIC!!なんと約0.9帖
高さ調節の出来る棚とハンガーレールですね!
棚があるので洋服だけではなく他も保管が出来ますね(((uдu*)ゥンゥン
奥行もあるのでシーズンオフの物もしまえます
ダイニングスペースがなんかお洒落なことになっています
(・_・D フムフム

この下の写真がアップのエコカラットです!
最近バスマットやコースターに珪藻土が使われていますが、
エコカラットの調湿能力は珪藻土の6倍、調湿壁紙の30倍もあります。
梅雨時期のお部屋のジメジメや、窓廻りの結露などを緩和してくれます( ゚д゚ )

シーリングファン付きの照明!!
インテリアとしてもお洒落に見えますが、
空気をかき混ぜてくれる実用的な部分も\(´°v°)/んぴッ

キッチン見てみましょう
カウンターキッチンの唯一のデメリットとしては上に収納が少ないことでしょうか?
このキッチンも吊り棚をなくしてスッキリさせ、
リビングでくつろぐご家族の顔を見えるようにしています。
リビングから見て見た目もこちらの方が個人的に好きです(〃▽〃)ポッ
また、冷蔵庫の横にスペースが確保されています。
そこに食器棚が置けるのでデメリットも解消ですね(((uдu*)ゥンゥン
浄水機能がついた水栓はシャワーヘッドになっていますよ!
びよよよよよ~~~~んと伸びます。
普段そこまで使わないかもしれませんがシンクのお掃除に便利です。
私はケトルに水入れるときなんかも片手で持つの重いので
脇に置いてびよーんとしてお水入れています (*^艸^)
そんな使い方も出来ますね
3口ガスコンログリル付きのシステムキッチンです!
ガスコンロもフラットで掃除がしやすいですね!
なんとー!食洗機もついています。
食後はポチっとな凸とスイッチを押してゆっくりとドラマを見ましょう( ´∀` )
下部収納はスライド式です
何が良いって色々入れても奥が見やすい事ですね!
重いものなんかも出し入れがしやすく( ´∀`)bグッ
キッチンの横には電話台があります\(´°v°)/んぴッ
ちょっとした棚も嬉しいですね(((uдu*)ゥンゥン
いま固定電話がないご家庭が多いので飾り棚としても良いですね!
玄関廊下に戻り、、、ε=(ノ゚Д゚)ノ ∥WC∥
温水洗浄機能付き!そう、ウォシュレット機能トイレ\(^o^)/
冬は温めてもくれる優れ物ですね(((uдu*)ゥンゥン
棚もちゃんとついてますよー!
扉もついているので人目にもつきません (*^艸^)
ペーパーなどしまえますねφ(`д´)メモメモ…
続いて洗面所へε=ε=(ノ≧∇≦)ノ
ビルトインタイプの水栓シャワーヘッド!!
お店のものみたいですね°˖✧◝(⁰▿⁰)◜✧˖°
気になる水垢もつきにくく、掃除もしやすそうです
右手にはニッチカウンターがあり、鏡裏の収納と、下にも収納があります。
洗面所周りは以外としまいたい物たくさんありますからね、
洗濯機置場の横にも棚が設置さてリネン類も置けるようになっています(`・ω・´)b
続いて浴室は浴室乾燥機能
湿気知らず、悪天候知らず~♪な主婦の味方\( ´・ω・`)┐
暖房機能を使えば冬のヒートショック防止にもなりますよ
追い焚き機能もついていますよ[壁]・。)ジー
帰宅が遅くなり入浴のタイミングがずれても、
いつでも暖かいお風呂に浸かることが出来ます
横なが~~~い鏡は浴室内を広く見せてくれますヾ(o´∀`o)ノワァーィ♪
玄関入ってシューズボックスの横は洋室になります。
北東向き洋室約6帖、2面バルコニーで
こちらにもバルコニーがあるんです((ノェ`*)っ))タシタシ
と、バルコニーご紹介の前に見えているこの凄い収納をご覧ください。
(っ・ω・)っ どうぞ
使い勝手が良いシステム収納ですね(゚д゚)!
プライベート用と仕事用に贅沢に使っても良いですねo(^O^*=*^O^)o ワクワク
アクセントクロスで落ち着いた空間にしています。
明るいですねー
バルコニー見てみましょうε=ε=ε=ε=ε=┏(*´∀`)┛
住宅街ですね (*^艸^)
隣の方もほどよい距離。。
家庭菜園とかプランター置いたりして楽しめますね(((uдu*)ゥンゥン
さてさてお部屋いかがでしたか?
最後に!南西向き日当たり良好、
本命バルコニーへいってみましょう♪
(((((((((((っ・ω・)っ
バルコニーは大人1人分といったところでしょうか?
この広さにあった物干し台みたいなのを購入する必要がありそうですね!
ただ、物干し金物はついていますよ( ´∀`)bグッ!
正面の気が良い感じに目隠ししてくれそうです☆

さて、【四谷軒第5経堂シティコーポ 2階】はいかがでしたでしょうか?
平成27年大規模修繕工事実施済みのビッグコミュニティマンションです!
他にも詳細が知りたい!!実際に見学をしたい!!などありましたら
仲介手数料最大無料の当社
お電話ください(^-^*)/
TEL 03-5413-5336
お気軽にお問い合わせください。
スタッフ一同お待ちしております。
過去に販売していたお部屋の概要 このお部屋の販売は終了いたしました。
| 価格 | -万円 |
| 面積 | 66.00㎡ |
| 間取り | 2bedrooms(2LDK) |
| 管理費 | 月額13,000円 修繕積立金:月額25,320円 |
| 所在階 | 2階 |
| お問い合わせ・ご内見のご予約はこちらからお気軽にどうぞ | |
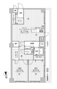
ここで間取りのご紹介です。2LDK、66.00㎡。
お部屋は角部屋です。
玄関の右手にはシューズクロークがつくられています。
半分は枕棚とハンガーポールがついているのでコートなどのお洋服もしまって
おけます。収納の中もアクセントクロスが貼られていてステキです。
玄関上がって、廊下の正面の壁にはエコカラットがあしらわれており、
上質な空間を演出しています。
シューズクロークと反対側のガラスの入った扉をあけてみます。
扉をあけるツルリとしたしっかり木目のフローリングと白いクロスで明るい
約17.0畳のリビングダイニングキッチン。
ダイニングテーブルもソファもゆとりを持って置ける広さです。
お部屋のアクセントに壁の一部にはカラークロスも貼られています。
キッチンはお部屋のほぼ中心。オープンタイプなのでリビングにいる家族と
会話を楽しみながらお料理の支度ができます。
すぐ横が窓なのでお料理のにおいもすぐ換気できるのもうれしいです。
下のスライド収納にはザルやフライパンもサクサク入りそう。
キッチンの真後ろには洗面室への扉があります。水まわりの設備をまとめて
ご紹介します。
扉の手前には洗濯機置場。
ロールスクリーンがついているので使わない時は降ろしておけば見た目も
スッキリです。
カウンター一体型洗面ボウルでお掃除もしやすそうな洗面化粧台。
すぐ左となりには高さが変えられる棚もつくられています。
タオルを置いておくのにちょうどいい場所です。
ホワイトを基調に明るい木目色のパネルが使われたぬくもりが感じられる
バスルーム。追い焚き機能付き。
窓があるので自然換気もできます。
いつでもカラリと気持ちのいい空間を保つことができていいですね。
トイレは洗面室を出てすぐ横に位置しています。白一色で清潔感たっぷり。
ウォシュレットとトイレットペーパーのストックなどの収納にご利用いただける
壁面収納がついています。
リビングダイニングからはさらに廊下が伸びています。
廊下の途中には納戸があるので掃除機や使わない季節家電などの大きな物
も収納できます。
廊下の一番奥まで進む洋室2部屋の入口が並んでいます。
こちらは約6.0畳の広さ。
収納力大のウォークインクローゼットがつくられています。
お洋服からスーツケース、小物まで1か所にまとめておけば物が行方不明に
なることもなくお部屋の片づけも楽になりそうです。
ちなみに窓は2重サッシ。
もう1部屋の洋室も約6.0畳と広さは同じ。
幅広のクローゼットがつくられています。
こちらのお部屋とリビングからはバルコニーにでられます。
約8.4㎡、西向きのバルコニー。
長さは約11.7mもあるワイドスパンです。この日は曇っていますが、
陽当たり・風通しともに◎です。
四谷軒第5経堂シティコーポはペットの飼育、事務所利用も相談できます。
みなさまのご内見、こころよりお待ちしております!














































































































































































































































































































































































































































































































































































































































































