・
□□□□□□□□□□□□□□□□□□□□□□□□□□□□□□□□□□□□□□□
いつも弊社ホームページをご覧頂き誠にありがとうございます。
秀和目黒駅前レジデンスはお陰様で販売を終了致しました。弊社問合せフォームにてご要望頂けましたら、当お部屋でキャンセル等が発生した場合、他のお部屋が販売になりました際にご紹介させて頂きます。
不動産Agent 六棒株式会社
TEL:03‐5413‐5336
□□□□□□□□□□□□□□□□□□□□□□□□□□□□□□□□□□□□□□□
・
JR「目黒」駅から徒歩4分のリノベーションマンション『秀和目黒駅前レジデンス』をご紹介します。 目黒駅はJRの他にも、東京メトロ南北線、都営三田線、東急目黒線が通っているので、目黒を起点として東に西に、北に南にどこへでもスイーっと行けてしまう、アクセス◎な環境なんですよ(*^^)v
目黒駅前は駅直結の商業施設「アトレ」を中心に様々な店舗が立ち並び、いつも活気に溢れています♪オシャレなお店から、フラッと立ち寄れる気軽なお店までいろいろあるので、お仕事帰りにちょっと一杯ご夫婦で、なんて事ができる顔なじみのお店を作りたいでね。
目黒通りを白金方面に歩いて4分ファミリーマートが見えたら右折してください。
見えてききました! この佇まい、間違いありません。 これぞ秀和シリーズ 秀和目黒駅前レジデンスです!
昭和47年築ですが、エレベーターは二基設置してあり朝のラッシュ時も大丈夫です。 共用部分は綺麗に清掃されておりピカピカです。
管理は、平日は8:00~17:00 土曜は8:00~13:00までですが、管理人さんは住み込みですので常に目を光らせております(☆_☆)
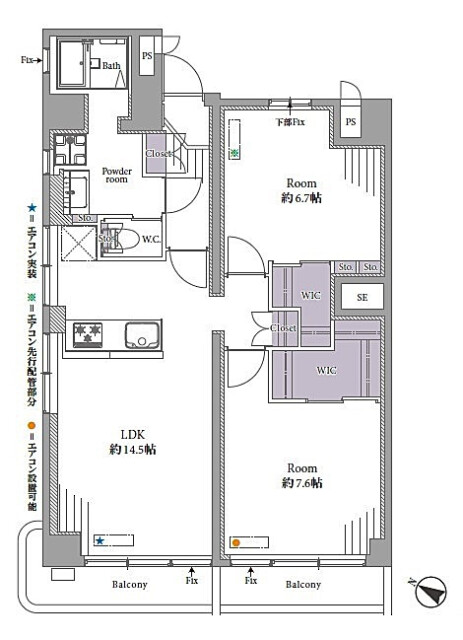
ここで間取り図のご紹介です。
※間取り図は別タブで開きますので、確認しながらご覧頂く事が出来ます。
今回ご紹介するお部屋は最上階の11階、角部屋、69.72㎡の2LDK。DINKSの方やファミリーにお勧めのお部屋です。約70㎡で2LDKだとかなりゆったりとした間取りですね。では、早速行ってみましょう。

エレベーターを最上階の11階で降りると、広いエレベーターホールへ出ます。目の前には案内図がありましたが、さすが200戸オーバー!いろいろな方向に廊下が伸びているんですね。酔っぱらっていたら迷子になりそうです(笑)エレベーターは2基あるので朝のラッシュ時も安心ですよ。

明るい外廊下を進むと…

玄関に到着です。
綺麗なブルーの玄関ドアですね♪ ドア横にはモニター付きインターホンが設置されていて、お部屋の中から訪問者を確認する事が出来ます。話す前に映像で確認出来ますし、玄関まで来る必要がないのもいいですよね(^^)
それではお邪魔します!

真っすぐ伸びた廊下は木目を生かした建具で落ち着いた雰囲気。上り口が斜めにカットされ、広く使いやすい玄関になっています。

人感センサーが自動でライトを付けてくれるので荷物で両手が塞がっていても大丈夫!暗い中手探りでスイッチを探すなんてこともありません。なにより、いつでも明るい玄関が迎えてくれるのは嬉しいですよね(^^)

シューズボックスはトールタイプ。収納力抜群で、可動式の棚を調節すればブーツなども収納可能です。扉に付けられた姿見もお出かけ前に活躍しそう。シューズボックス横にはフックも付けられているので、コートや帽子などをかけたりも出来ます。プレートなどをかけてインテリアに使うのもアリですね。

ではお部屋へ…

こちらが約14.5帖のリビング・ダイニング・キッチン。
手前からキッチン、ダイニング、リビングと使えるオーソドックスなタイプのお部屋です。さすが角部屋、窓がたくさんあって明るいですね♬ 風通しも良さそうです。

約14.5帖もあればダイニングテーブルやソファーなどもある程度自由に選べそうですね。

天井には室内物干し用の物干し金具が設置されていました。設置済みのエアコンとの位置関係もバッチリ。併用すればお部屋の乾燥も防げて一石二鳥ですよ!使わない時は簡単に外れるのでご安心ください。北西向き窓の外には、目黒通り越しに見晴らしの良い眺めが広がっています。

キッチンは人気のカウンタータイプ。コミュニケーションが取りやすく、調理中でも会話しやすいキッチンです。、更に、リビング側からはキッチン内が見えづらいのもメリットのひとつ。ひと目を気にせず、思う存分腕を振るえますよ(^^)

調理台の下にはスライドキャビネットと食器洗浄乾燥機。
引き出しタイプのスライドキャビネットは出し入れがし易く、たくさん詰めても中に何が入っているかの確認がしやすいのが特徴です。食器洗浄乾燥機!!やりたくない家事の常連、食器洗いから解放されるなんて夢のようです。食後をみんな揃ってのんびり過ごせるのも最高ですね(*´▽`*)

コンロは3口、グリル付き。温度設定やタイマーが使える高機能タイプです。グリルは魚グリルと呼ばれるくらい魚のイメージが強いですが、どんなお料理にも使える便利な調理器具なので、たまには野菜や肉も焼いてみて下さい。

調理の際は換気扇をお忘れなく。少し前から回しておくと効果的らしいですよ。水栓は浄水機能付きシャワー水栓。切替えるだけで気軽に美味しいお水を使う事が出来ます。ノズルが伸びてシンクを流したりにも便利ですよ。

カウンター付の大きな窓。右のスペースには冷蔵庫が入るので半分くらいは塞がってしまいますが、それでも採光通風面で有難いです。

キッチン横の扉のない入口のような所へ入ると、廊下になっていて、左右に洋室へのドア、正面にはクローゼットがありました。みんなでアウター専用に使えば、ベッドルームまでアウターを持ち込まなくて済みますね。

まずは右側から…

こちらは約7.6帖の洋室。
南西向きバルコニーに面したお部屋です。大きい方の洋室でメインのベッドルームに最適ですね。この広さならキングサイズのベッドも楽に置けますし、ダブル二つだって寝るだけのお部屋なら十分いけそうです。

収納は大きなウォークインクローゼット!!中にチェストや衣装ケースを置けば外に収納家具を置く必要もありません。キャリーバッグなどの嵩張るものも収納出来て、納戸の役目も果たしてくれます。

子供時代、かくれんぼをしたら真っ先に隠れそうなところですね(^^)

次は左側のお部屋へ…

こちらは約6.7帖の洋室。
北東向きの窓のあるお部屋です。先程の洋室とは1帖くらいしか変わらないはずですが、柱のせいか結構小さく感じます。

収納はオープンの収納棚とウォークインクローゼット。
収納棚はあまり深さはありませんが、棚は可動式で調節可能です。

窓は上下に分かれていて下はFIX窓で開きません。外は先程歩いてきた外廊下。設置されている格子がまたオシャレですね。

次は洗面室へ…
入口は少々段差があるので足元にお気を付けください。こちらには洗面台の他に、洗濯機スペース、浴室がまとまっていて、脱衣所も兼ねています。広いのでランドリーボックスなどを置くスペースも十分ありますよ。

洗面台は身だしなみチェックに便利な三面鏡付き。鏡の間に付いた照明で影にならずに鏡を使えます。

収納は洗面台下とサイドの棚、三面鏡裏のミラーキャビネット。細々した物が多くなりがちな洗面周りには豊富な収納が有り難いですね。大きな物から細かい物までバランスよく収まりそうです。

水栓はハンドシャワータイプ。ヘッドが伸びて洗面ボウルのお掃除も楽々♪
・・
次はトイレへ…


洗浄便座はINAX製のシャワートイレ。トイレットペーパーのストックに便利な吊戸棚も付いています。ちょっと低めが嬉しいですね。

浴室ですが、この洞窟を抜けたところにあります(笑)高さは160cmくらいしかありませんので頭にご注意を!
浴室換気乾燥機は浴室の換気乾燥はもちろんのこと、暑い季節は涼風、寒い季節は浴室暖房、雨の日には洗濯物乾燥など、いろいろな使い方があります。24時間換気も付いているので積極的に使っていきましょう。

窓からの光で明るい浴室です。

ノーリツ製追い焚き機能付きのユニットバス。「ふろ自動」ボタンひとつ押すだけでお風呂を沸かすことが出来ます。ご家族でお風呂の時間がバラバラになっても、そのまま保温してくれるのでいつでも温かいお風呂に入れますよ。

残念ながら窓はFIX窓。開けることは出来ません。涼しい風に吹かれてのお風呂は気持ちいいんですけどね(^-^;

それでは最後はバルコニーのご紹介。
洋室とLDKから出られます。普通同じバルコニーへ出ることが多いのですが、ここは独立した2つのバルコニーになっています。こちらは洋室のバルコニー。

今度はLDKから出てみましょう。窓には防音性遮熱性の高い合わせガラスを使用!

こちらはLDKに面した南西向きバルコニー。
足元まで柵になっていてとても解放感がありますね。柵はヴィンテージ感がある素敵なデザイン。ただし、若干高所恐怖症気味の私としては、もう少し頑丈に見えると有難いな~なんて思ったりもします(笑)

正面には建物の壁がそそり立っていますが、そこはこちらも最上階。何とか空は見えています。さらに左右が抜けているので、実際は写真で見るより解放感ありますよ。
特に南方向はこの眺め。遠くにはビル、手前には緑も見えていい感じです♬
・
以上で秀和目黒駅前レジデンスのご案内を終わります。
いかがでしたでしょうか??
目黒駅から徒歩4分のマンションです。
リノベーション済みという事で室内はとてもキレイですよ (っ・ω・)っ
内見のご予約やご質問などございましたらお気軽にお問い合わせくださいませ。
ご連絡お待ちしております。
弊社、不動産Agent 六棒株式会社では、一般仲介物件は仲介手数料20%~30%OFF!
にてお取り扱いしております!
なるべく沢山のお部屋をホームページに掲載したいと思っておりますが、時間的成約もございますので、残念ながらご紹介できるお部屋の一部しか掲載できておりません。
このホームページに掲載中のお部屋、その他サイト等で気になるお部屋、街を歩いていて気になったマンション等々ございましたら是非、弊社営業部までご相談ください!
~不動産Agent 六棒株式会社の特徴~
・一般仲介物件の仲介手数料は20%~30%OFFにてご案内中です!
・住宅ローンに自信あります!
・頭金10万円より購入できます。是非ご相談下さい!
・お部屋のご見学は車で2~3件まとめて案内します!
・物件数3000件以上、新築戸建、リノベ物件も多数ご用意しております!
過去に販売していたお部屋の概要 このお部屋の販売は終了いたしました。
| 価格 | -万円 |
| 面積 | 58.30㎡ |
| 間取り | 3bedroom(3DK) |
| 管理費 | 月額10,500円 修繕積立金:月額9,100円 |
| 所在階 | 2階 |
| お問い合わせ・ご内見のご予約はこちらからお気軽にどうぞ | |
ここで間取り図のご紹介です。
※間取り図は別タブで開きますので、確認しながらご覧頂く事が出来ます。
今回ご紹介のお部屋は2階、間取りは3DK、専有面積は58.30㎡となっています。
では、早速行ってみましょう!
エレベーターで2階まで。そこからは内廊下を進みます。内廊下は天候などにも左右されず、防犯的にも優れています。
玄関ドア横にはテレビモニター付きインターホンが設置されていて、お部屋のモニターで訪問者を確認する事が出来るようになっています。返事をする前にチェックをすれば、セールスなどを断る必要もありませんよね。
廊下はダークブラウンのフローリングに白のクロス。メリハリの付いたスッキリとした雰囲気です。リフォームしたてでとても綺麗ですよ。
玄関ドアにはダブルロックが設置されていて防犯面でも安心(^^)
シューズボックスはトールタイプ。棚板の高さが変えられてブーツなど背の高い靴でも収納可能です。天井の照明には人感センサーが付いていて、中に入っただけで自動的にライトを点けてくれます。もう暗い中手探りでスイッチを探したりしなくても済みますね。
では、まずは正面のドアから…
こちらはダイニングキッチン+約6帖の洋室。洋室の仕切り扉を開けて二つの部屋をつなげた様子です。ダイニングキッチンには窓がありませんので、昼間は開けておくと明るくていいと思います。
壁付けのキッチンで正方形に近い形のお部屋です。ダイニングテーブルだけだとだいぶ余裕があるので、寛げるタイプの少し大きめのテーブルでも良いかもしれませんね。
洋室の仕切り扉を閉めれば…
本来の洋室に戻ります。リビングにしたりご家族構成によっては寝室にしたり。ある程度自由に使えるお部屋です。収納などはありません。
では、次はキッチンへ…
ダークブラウンのパネルを使用した調理台。お部屋の雰囲気によく合っています。
収納は調理台下と吊戸棚。下は引き出しタイプで、奥の方まで出し入れしやすく助かります。吊戸棚は使用頻度が低い物を収納したり、収納グッズを使ったりとちょっと工夫が必要ですね。我が家では土鍋やホットプレート、蒸籠などの定位置になっています^^;)
水栓は簡単な部品交換で浄水器一体型に変わります。
調理台下には食洗機。私なんかは楽をする事ばかり考えてしまいますが、高温で洗浄する事によって手洗いより清潔に洗い上げたりする効果もあるらしいですよ。とはいえ、やっぱり楽できるのは最高ですよね(笑)
三口コンロに片面焼きグリルも付いていて調理器具も充実。グリルはお魚だけでなく、様々な素材を調理する事が出来ます。ガスの直火でどんな物も美味しく焼き上げてくれますよ。
オープンキッチンですので、調理中は換気扇をお忘れなく!冷蔵庫は調理台斜め後ろに設置スぺ―スがありました。
次のお部屋へ…
こちらは約6帖の洋室。やはりバルコニーに面した明るいお部屋です。広さ的にはベッド二つくらいなら余裕で置けそうですね。メインのベッドルームにいかがでしょう?
収納は、間口が広くてとても使い易そうなクローゼットが付いていました。奥行きも深いので嵩張る物も難なく置く事が出来そうです。衣装ケースなどで更なる収納力アップも狙えそうですよ。
では、一度廊下へ戻って…
出てすぐの扉の奥は洗濯機スペースになっていました。
次のお部屋へ…
こちらは玄関に近い洋室。4.5帖くらいですかね。収納はありませんが、正方形のお部屋で家具を置いたりもし易そうです。
窓の外は外廊下。しっかり面格子も付いていました。このマンションは面格子一つとっても無味乾燥じゃなのがいいですよね。
次は洗面室へ…
浴室、洗面台、トイレがまとまっています。
まずは洗面台。三面鏡付きでゆったり幅の洗面台です。
収納は洗面台下と三面鏡裏のキャビネット。キャビネットは、細かい物の多くなりがちな洗面周りにはピッタリの収納ですよね。
水洗はハンドシャワータイプ。ヘッドが伸びて洗面ボウルを流したりに便利です。
次はトイレへ…
白とグレーのシンプルなトイレです。毎日使う物はシンプルが一番ですよね。もちろん温水洗浄便座付き。INAX製のシャワートイレです。
次は浴室へ…
追い焚き機能はスイッチ一つでお風呂を沸かしてくれたり、お湯を温かいまま保ってくれたり。一度使うと止められない便利さです♪♪
ゆったり浸かれる1216サイズの浴槽。
浴室乾燥機能は浴室の換気はもちろんの事、お洗濯物乾燥やヒートショック予防など様々な役に立ってくれます。どんどん使っていきましょう!
それでは最後にバルコニーのご紹介。
どちらの洋室からでも出られます。バルコニーへの窓は防音、遮熱性に優れた複層ガラスになっていました。
広さは6.50㎡、南向きの陽当り抜群のバルコニー。秀和のマンションお馴染みの手摺柵でお洒落な雰囲気ですね。
外の様子です。大きな道からは一本中に入っていて静かですよ。お部屋の中が静かなのは分厚いガラスのおかげかと思っていましたが、そうじゃなかったんですね(^^)道幅もあるので2階なのにとても開放的です。
前には桜の木もあってお部屋からお花見も楽しめますよ。だいぶ散ってしまっていましたが、葉桜もいいいものですね。
・
以上で秀和目黒駅前レジデンスのご案内を終わります。
いかがでしたでしょうか??
目黒駅から徒歩4分のマンションです。
リノベーション済みという事で室内はとてもキレイですよ (っ・ω・)っ
内見のご予約やご質問などございましたらお気軽にお問い合わせくださいませ。
ご連絡お待ちしております。
弊社、不動産Agent 六棒株式会社では、
□リノベーションマンションはほぼ全て仲介手数料無料!
□その他一般仲介物件は仲介手数料20%~30%OFF!
にてお取り扱いしております!※弊社の「Agent Fee=仲介手数料」についてはご案内、ご面談の際に営業担当者よりご説明いたします!
なるべく沢山のお部屋をホームページに掲載したいと思っておりますが、時間的成約もございますので、残念ながらご紹介できるお部屋の一部しか掲載できておりません。
このホームページに掲載中のお部屋、その他サイト等で気になるお部屋、街を歩いていて気になったマンション等々ございましたら是非、弊社営業部までご相談ください!
~不動産Agent 六棒株式会社の特徴~
・一般仲介物件の仲介手数料は20%~30%OFFにてご案内中です!
・リノベーションマンションについてはほぼ全て仲介手数料無料です!
・住宅ローンに自信あります!
・頭金10万円より購入できます。是非ご相談下さい!
・お部屋のご見学は車で2~3件まとめて案内します!
・物件数3000件以上、新築戸建、リノベ物件も多数ご用意しております!
過去に販売していたお部屋の概要 このお部屋の販売は終了いたしました。
| 価格 | -万円 |
| 面積 | 58.3㎡ |
| 間取り | 2bedroom(2SLDK) |
| 管理費 | 月額9100円 修繕積立金:月額8700円 |
| 所在階 | 5F |
| お問い合わせ・ご内見のご予約はこちらからお気軽にどうぞ | |
ここで間取りのご紹介です。 58.30㎡ 南向き 2LDK+S 室内リフォームと大規模修繕で外観も
内装もピッカピッカです。
大規模修繕で玄関ドアも交換されており、お部屋の中も、共用部分も綺麗に生まれ変わりました。
ナチュラルカラーのフローリングとブラウンの建具のコントラストが素敵な廊下です。
玄関の右手にはトールサイズのシューズボックスがあります。棚は可変式で高さを変えられる上、
取り外して丸洗いもOK!!これだけあれば靴もちの方にもご満足頂けそうです。
また、扉はに大きな姿見が付いていますので、出勤前の最終チェックにもバッチリですね(*^。^*)
洋室とはスライドドアで区切られておりますので、1LDKにも2LDKにもできます。
その日の気分や来客予定で使い分けてみてはいかがでしょうか。
光の差し込むリビングダイニング 窓を開けると、ご覧の通り 陽の光が差し込みます。
キッチンは食洗機付!
これ、一度使うと手放せません(^_^;)
食器を入れてスタートボタンを押せば、その間に掃除、洗濯といろいろが家事をこなせますね。
キッチンの扉はコーティングされているので汚れがついてもサッと一拭きでピカピカです!
ご覧の通り、吊戸棚もついて大容量の収納です。
これだけあれば、散らかりがちなキッチンもきれいに保てそうですね(;一_一)
水廻りのご紹介です。
洗面台はボウルが深くシャワーヘッドタイプですので、忙しい朝はこちらで洗髪もできます。
三面鏡の裏側も収納になっていますので、化粧品、歯ブラシ、ドライヤー等いろいろ仕舞えて、
とっても便利です。
無駄なくスッキリとしたトイレは使い勝手も良さそうでうね。
上部には棚がありますので、トイレットペーパーや掃除用具の置き場所にも困りません。
勿論、ウォシュレット付きです。
5.6帖の洋室は、陽当り抜群で、冬は電気代が安く抑えられそうですね
収納は奥行きたっぷりのウォークインタイプ!
カラーボックなどで、好みの収納に仕上げて下さい(*^。^*)
続いてはお隣の洋室
こちらは扉を開けてリビングと繋げることができます。
勿論、5.1帖で収納もあるので、寝室や子供部屋などいろいろな用途に使えます
バルコニーも修繕されており大変きれいです。
この鉄柵がまたレトロな雰囲気で素敵ですね(^_-)-☆
目黒駅徒歩4分という抜群の立地のヴィンテージマンション
「秀和目黒駅前レジデンス」いかがでしたでしょうか。
ご内見のご希望・ご質問などございましたら、お気軽にお問い合わせください。
皆様からのお問い合わせお待ちしております。





















































































弊社 公式HP
六棒総合研究所
掲載予定物件
価格変更と販売終了物件
ハザードマップ検索
適合証明書.jp
Facebook
Twitter
Instagram