・
□□□□□□□□□□□□□□□□□□□□□□□□□□□□□□□□□□□□□□□
仲介手数料無料でご好評頂いております不動産Agent 六棒株式会社です。
弊社ではリノベーションマンションはほぼ全て仲介手数料無料にてお取り扱いして
おります。気になるお部屋がございましたら是非お問い合わせください!
シャンボール恵比寿は…
正規仲介手数料をお支払いの場合と比べ約220万円お得にご購入頂けます!
□□□□□□□□□□□□□□□□□□□□□□□□□□□□□□□□□□□□□□□
・
本日は、山手線・日比谷線・埼京線・湘南新宿ライン
4沿線利用が可能なあの駅!!!!!
「恵比寿駅」より徒歩3分
リノベーションマンション【シャンボール恵比寿】のご紹介です。
駅まで徒歩3分、恵比寿ガーデンプライズまで徒歩3分という好立地!!
恵比寿駅から歩いてご案内していきます。
営業部 おぐらです( `・∀・´)ノヨロシク
物件に一番近いのは東口になります!
西口にはアトレなどが入っているので違う駅に行かなくても
休日のショッピングにも困りません♡♡
東口に戻りますε=┏(・ω・)┛
恵比寿駅東口の交差点、キンコーズの道に向かいます
トコトコ(((((*´・ω・)

キョロ ((o(・x・ )o( ・x・)o)) キョロ
Σ(・ω・ノ)ノ!着いちゃった!!!
この茶色の建物です!お隣にはドミノピザがありました
なんかあっという間に着いてしまったので、
恵比寿ガーデンプレイスにでもお散歩へいきましょう!!
駅からビューーーンとスカイウォークで歩いていけば
雨の日でも濡れずに、風の強い日でも髪が乱れないで辿り着けます (*^艸^)♡
ちなみに物件からは真っ直ぐ歩いてれば着きます(((uдu*)ゥンゥン
この日は3月中旬で20度もあった日なのでベンチでランチしてる人が多かったです
1人でも全然歩けますね!さんぽにうってつけです(((uдu*)ゥンゥン
外でランチしても良し、
レストランでランチしても良し。
お散歩にきても良いロケーションが最高なガーデンプレイス!!
そんなところに徒歩3分で行ける好立地
はい\(^o^)/シャンボール恵比寿
SRC・RC造 11階建て
昭和58年8月
安心の新耐震基準物件°˖✧◝(⁰▿⁰)◜✧˖°
【施工:大林組】
総戸数126戸のビッグコミュニティです
駐車場は月額3.5万円~4万円で借りれるみたいですφ(`д´)メモメモ…
お部屋と一緒で日々進捗変わりますので必要な方はご確認ください┏○ペコ
では、エントランス入ってみましょうo(^o^)o ワクワク
オートロック完備
管理人は住込式でセキュリティ充実!
【管理:㈱秀英興産】
エレベーターは真っ赤な2基♡♡
忙しい朝もすんなり降りれそうε=┏(・ω・)┛
エレベーターの横は非常階段になります。
外廊下ですね|ω・`)ちら
共有廊下は内廊下タイプ
カーペットなので帰宅が遅くなっても足音が響かなくていいですね!!
今回ご紹介するお部屋は3階、専有面積35.35㎡の1DK。おひとり暮らしの方にお勧めのお部屋です。
間取り図はコチラ ↓ ↓ ↓
※間取り図は別タブで開きますので、確認しながらご覧いただくことができます。
只今写真準備中
しばらくお待ちください
・
以上でシャンボール恵比寿のご案内を終わります。
いかがでしたでしょうか??
恵比寿駅から徒歩3分のマンションです。
リノベーション済みという事で室内はとてもキレイですよ (っ・ω・)っ
内見のご予約やご質問などございましたらお気軽にお問い合わせくださいませ。
ご連絡お待ちしております。
弊社、不動産Agent 六棒株式会社では、
□リノベーションマンションはほぼ全て仲介手数料無料!
□その他一般仲介物件は仲介手数料20%~30%OFF!
にてお取り扱いしております!※弊社の「Agent Fee=仲介手数料」についてはご案内、ご面談の際に営業担当者よりご説明いたします!
なるべく沢山のお部屋をホームページに掲載したいと思っておりますが、時間的成約もございますので、残念ながらご紹介できるお部屋の一部しか掲載できておりません。
このホームページに掲載中のお部屋、その他サイト等で気になるお部屋、街を歩いていて気になったマンション等々ございましたら是非、弊社営業部までご相談ください!
~不動産Agent 六棒株式会社の特徴~
・一般仲介物件の仲介手数料は20%~30%OFFにてご案内中です!
・リノベーションマンションについてはほぼ全て仲介手数料無料です!
・住宅ローンに自信あります!
・頭金10万円より購入できます。是非ご相談下さい!
・お部屋のご見学は車で2~3件まとめて案内します!
・物件数3000件以上、新築戸建、リノベ物件も多数ご用意しております!
過去に販売していたお部屋の概要 こちらのお部屋の販売は終了いたしました
| 価格 | -万円 |
| 面積 | 35.10㎡ |
| 間取り | 1bedrooms(1LDK+WIC) |
| 管理費 | 月額12,020円 修繕積立金:月額4,260円 |
| 所在階 | 8階 |
| お問い合わせ・ご内見のご予約はこちらからお気軽にどうぞ | |
今回ご紹介するお部屋は8階、専有面積35.10㎡の1LDK。おひとり暮らしの方にお勧めのお部屋です。
間取り図はコチラ ↓ ↓ ↓
※間取り図は別タブで開きますので、確認しながらご覧いただくことができます。
では早速行ってみましょう!
【玄関廊下】
ドア横にはモニター付きインターホン。ドアスコープもありますが、覗いたら向こうからも覗いていそうでなんか苦手なんですよね。怖い映画の見過ぎでしょうか、、、^^;
【玄関廊下】
玄関はシンプルで上品なデザインになっており、木目とグレー系の床が落ち着いた雰囲気を演出しています。ベンチが設けられていて、荷物を置いたりや靴の脱ぎ履きに便利♬
【玄関廊下】
玄関横にはシューズインクローゼット!靴だけでなく、キャリーケースやゴルフバッグなど室内に持ち込むのはちょっと・・・という物を置いておくのにも使えますよ。玄関の照明には人感センサーが付いていて、いつでも明るい玄関が迎えてくれます。
それではお部屋へ・・・
【LDK】
こちらは約8.6帖のリビング・ダイニング・キッチン。西向きバルコニーに面したお部屋です。ガラス扉など、数字以上に広く感じられる工夫が随所にあり快適に過ごせそうですね。
【LDK】
白と木目でコーディネートした幅広い家具を合わせられるシンプルな内装。ディスプレイのようにモダンに寄せるのもよし、木目の家具でナチュラルに全振りするのも良さそうです。
【キッチン】
広めの壁付きキッチンは、調理スペースをしっかり確保しており使い勝手抜群◎木の質感がインテリア性も高めています。
【キッチン】
みんなの憧れ食器洗浄乾燥機!!!「やりたくない家事ランキング」には必ずと言っていいほど顔を出す「食器洗い」。誰だってお腹一杯で幸せな時に洗い物なんてしたくないですよね。空いた時間はのんびり過ごしましょう♬
【キッチン】
収納は出し入れのしやすいスライドキャビネット。ぎっしり詰めても中身のチェックがしやすいのも嬉しいですね。ずらりと並んだ吊戸棚も頼もしいですね!
【キッチン】
揃いのカップボードは収納に作業スペースにと活躍してくれそうです✨ちゃんと冷蔵庫スペースも確保されています。冷蔵庫のサイズには気を付けましょう。
BEDROOMへ・・・
【ベッドルーム】
こちらは約4.8帖のベッドルーム。西向きバルコニーに面したお部屋です。間接照明がいい感じですね♬ エアコン付き。
【ベッドルーム】
ガラス戸で仕切られているためリビングとのつながりも感じられます。
【ベッドルーム】
ウォークインクローゼットは扉のないオープンタイプ。風通しが良く湿気がこもりづらい収納です。目立たないとはいえ中が見えるので整理整頓が大事ですよ。
【ベッドルーム】
見た目はほとんど変わりませんが、引き戸を開けるとこのような感じです。
洗面室へ・・・
【洗面室】
洗面室には洗面化粧台の他に洗濯機スペース、トイレ、浴室がまとまっていて脱衣室も兼ねています。洗面台は無駄を省いたミニマルタイプ。個人的にとても好みです♬
【洗面室】
洗濯機スペースには吊り戸棚が付いているので、洗濯洗剤などのランドリー用品はこちらへどうぞ。
【洗面室】
浴室脇のリネン棚にタオルなどを置けて便利です◎♪
【浴室】
1216サイズの浴室はモノトーンでまとめられたスタイリッシュ空間。ゆったりと湯舟に浸って明日への活力をチャージしましょう!
【浴室】
浴室内には小物置場(シャンプー台・ラック)がないのでお掃除楽々。必要ならマグネットラックなど用意すればOKです。
【浴室】
追い焚き機能でお風呂の準備もボタンひとつ!保温もしてくれるのでいつでも温かいお風呂に入ることができますよ。雨が続く季節に嬉しい浴室換気乾燥機付き。
トイレへ・・・
【トイレ】
シンプルで清潔感のあるトイレです✨✨
【トイレ】
INAX製の洗浄便座付きトイレです。トイレットペーパーや掃除道具などの収納に便利な吊り戸棚も付いています。
【 バルコニー】
広さは5.40㎡、西向き。手すりが下まで柵になった開放感のあるバルコニーです。
高い建物が建ち並ぶエリアですが、こちらも8階なので晴れた日は気持ちよく過ごせそうですね☀(^▽^)/
・
以上でシャンボール恵比寿のご案内を終わります。
いかがでしたでしょうか??
恵比寿駅から徒歩3分のマンションです。
リノベーション済みという事で室内はとてもキレイですよ (っ・ω・)っ
内見のご予約やご質問などございましたらお気軽にお問い合わせくださいませ。
ご連絡お待ちしております。
弊社、不動産Agent 六棒株式会社では、一般仲介物件は仲介手数料20%~30%OFF!
にてお取り扱いしております!
なるべく沢山のお部屋をホームページに掲載したいと思っておりますが、時間的成約もございますので、残念ながらご紹介できるお部屋の一部しか掲載できておりません。
このホームページに掲載中のお部屋、その他サイト等で気になるお部屋、街を歩いていて気になったマンション等々ございましたら是非、弊社営業部までご相談ください!
~不動産Agent 六棒株式会社の特徴~
・一般仲介物件の仲介手数料は20%~30%OFFにてご案内中です!
・住宅ローンに自信あります!
・頭金10万円より購入できます。是非ご相談下さい!
・お部屋のご見学は車で2~3件まとめて案内します!
・物件数3000件以上、新築戸建、リノベ物件も多数ご用意しております!
過去に販売していたお部屋の概要 こちらのお部屋の販売は終了いたしました
| 価格 | -万円 |
| 面積 | 33.82㎡ |
| 間取り | 1bedrooms(1LDK+WIC) |
| 管理費 | 月額11,710円 修繕積立金:月額4,120円 |
| 所在階 | 3階 |
| お問い合わせ・ご内見のご予約はこちらからお気軽にどうぞ | |
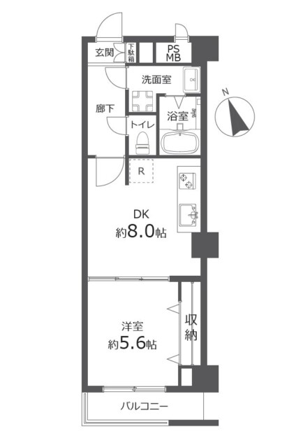
さて今回のお部屋は3階になります。
間取り図はこちら↓ (図面と現況が異なる場合は現況を優先します。)
クリックすると別タブで開くことも可能です。
間取り図とお部屋比較すると見やすいですよ
では、営業部小倉が【シャンボール恵比寿 3階】
お部屋一緒にご案内させて頂きます(o*。_。)oペコッ
ご紹介するお部屋はエレベーターの真横でした!
せっかちさんには嬉しいかな? (*^艸^)
クロムハーツっぽい頑丈そうな扉ですねo(^O^*=*^O^)o ワクワク
TVモニタ付きインターホン付きのお部屋です!!
では♡お邪魔しまーす┏○ペコ
入ると足元を照らしてくれています♡
ダウンライト使いがお洒落ですね!
トールタイプのシューズボックスがあり、
靴の多いお洒落さんでも安心安心o(^O^*=*^O^)o ワクワク
玄関照明は人感センサー!
感知してくれてつくのでスイッチを探さなくてもいいんですね
節電にもなるので、お財布にも環境にも優しい☆-(ノ゚∀゚)八(゚∀゚ )ノイエーイ☆
玄関廊下からは洗面所にも行けますが、先にリビング見ていきましょう!!
トコトコ(((((*´・ω・)
白基調の明るい室内に建具と併せたキッチンの色味が
スタイリッシュな仕上がりになっていますね°˖✧◝(⁰▿⁰)◜✧˖°
家具をあわせるのが楽しみです(〃▽〃)ポッ
リビングにも収納があります|ω・`)ちら
洗濯機置場と、可動式の棚があります!!
高さ調節が可能なので収納もしやすいですね( ´艸`)

さてキッチン見ていきましょう☆-(ノ゚∀゚)八(゚∀゚ )ノイエーイ☆
キッチンの横にもパントリーがありますね!
主に食品や飲み物のストック類を置いたり、調味料を置いたりなんでもござれ
キッチンは食洗機付きの2口コンロ、グリル付き!!
ホームパーティーをしても後片付けに丸一日かかることはなさそうですね(`・ω・´)b
シンクも広く調理がしやすそうφ(`д´)メモメモ…
シャワー水栓式なのでビヨンと伸びます!!
シンクの隅々までお掃除が出来ます。
オープンになっているので毎日綺麗にしていきたい所ですね(((uдu*)ゥンゥン
冷蔵庫置場にもぬかりがありません♡
キッチンの収納もばっちりですね!!
引き戸なので重い鍋も出し入れがしやすく、
奥に入れても何が入っているか一目瞭然Σ(゚Д゚)
洋室ご案内する前にまとめて水回りいきましょう(”◇”)ゞ
玄関廊下に戻りこちらの引き戸をあけると( ^ω^)・・・
|ω・`)ちら
脱衣所がトイレと洗面所になっていますね!!
一応水はね防止なのか腰までの仕切りがありますキョロ ((o(・x・ )o( ・x・)o)) キョロ
上の鏡は可動式です。
後ろ一面収納出来るのも嬉しいところφ(`д´)メモメモ…
洗面台の下にも収納が出来ますよ!
人目につきたくない掃除用品など入れても◎
トイレは嬉しいウォシュレット機能付き!
見やすく操作しやすいパネル式。
リクシルのデザインは可愛いのでいきなりトイレでもあんま嫌悪感感じませんね
【個人の見解です】\_(・ω・`)ココ重要!
続いて浴室見ていきましょう
浴室乾燥機完備で忙しい朝はおさらば( ´Д`)ノ~バイバイ
夜洗濯回して浴室に干してしまえば梅雨しらず(`・ω・´)b
嬉しい追い焚き機能も完備、
1日何回でも温かい湯舟につかることが出来ますよ (*^艸^)♡
ゆっくり浸かって1日の疲れを洗い流してください(*´・ω・)(・ω・`*)ネー
鏡は縦タイプ!( ゚д゚)
毎日全身チェックが出来ますね(/ω\)イヤン♡♡
最後に洋室へ
トコトコ(((((*´・ω・)
あえての開き戸でプライベート重視!
デッドスペースはアクセントクロスでお洒落に演出!
もちろんクローゼットもありますよキョロ ((o(・x・ )o( ・x・)o)) キョロ
引き戸タイプで空間を邪魔しません!
棚付きのウォークインクロゼットヾ(o´∀`o)ノワァーィ♪
ここがあればタンスも必要ないですね♡♡
洋室をそのまま広く使うことが出来ます☆-(ノ゚∀゚)八(゚∀゚ )ノイエーイ☆
バルコニーはリビングからも、洋室からもいけます!
さてお部屋いかがでしたか?
最後に!南東向き日当たり良好、
バルコニーへいってみましょう♪
(((((((((((っ・ω・)っ
前面の建物とは少し離れてますが、
眺望は◎とは言えません。。(´;ω;`)
でも目の前に緑があり、圧迫感はそこまでなかったです!
さて、【シャンボール恵比寿 3階】はいかがでしたでしょうか?
◆当社限定キャンペーンで仲介手数料が無料
◆フラット35s適合物件
◆R1住宅適合
◆新規内装リノベーション済み
L給排水・ガス管保証10年付き
◆管理人住み込みにつき管理良好
◆安心の新耐震基準物件
◆LDK8.2帖・洋室4.9帖+WIC
他にも詳細が知りたい!!実際に見学をしたい!!などありましたら
仲介手数料最大無料の当社
お電話ください(^-^*)/
TEL 03-5413-5336
お気軽にお問い合わせください。
スタッフ一同お待ちしております。
弊社、不動産Agent 六棒株式会社では、
□リノベーションマンションはほぼ全て仲介手数料無料!
□その他一般仲介物件は仲介手数料20%~30%OFF!
にてお取り扱いしております!※弊社の「Agent Fee=仲介手数料」についてはご案内、ご面談の際に営業担当者よりご説明いたします!
なるべく沢山のお部屋をホームページに掲載したいと思っておりますが、時間的成約もございますので、残念ながらご紹介できるお部屋の一部しか掲載できておりません。
このホームページに掲載中のお部屋、その他サイト等で気になるお部屋、街を歩いていて気になったマンション等々ございましたら是非、弊社営業部までご相談ください!
~不動産Agent 六棒株式会社の特徴~
・一般仲介物件の仲介手数料は20%~30%OFFにてご案内中です!
・リノベーションマンションについてはほぼ全て仲介手数料無料です!
・住宅ローンに自信あります!
・頭金10万円より購入できます。是非ご相談下さい!
・お部屋のご見学は車で2~3件まとめて案内します!
・物件数3000件以上、新築戸建、リノベ物件も多数ご用意しております!

















































































































