・
□□□□□□□□□□□□□□□□□□□□□□□□□□□□□□□□□□□□□□□
いつも弊社ホームページをご覧頂き誠にありがとうございます。
ライオンズマンション広尾第2はお陰様で販売を終了致しました。弊社問合せフォームにてご要望頂けましたら、当お部屋でキャンセル等が発生した場合、他のお部屋が販売になりました際にご紹介させて頂きます。
不動産Agent 六棒株式会社
TEL:03‐5413‐5336
□□□□□□□□□□□□□□□□□□□□□□□□□□□□□□□□□□□□□□□
・
リノベーションマンション『ライオンズマンション広尾第2』のご紹介です!
アクセス
東京メトロ南北線・都営三田線「白金台」駅徒歩11分
JR山手線「恵比寿」駅より徒歩14分
東京メトロ日比谷線「広尾」駅徒歩14分
街をご案内する前に、まずはこちらをご覧ください!
□□□□□□□□□□□□□□□□□□□□□□□□□□□□□□□□□□□□□□□
★★★【ライオンズマンション広尾第2】周辺のハザードマップをCHECK!!★★★
お部屋の記事を読む前に…!周辺のハザードマップをチェックしておきませんか!
ライオンズマンション広尾第2のハザードマップは★こちらから…どうぞ★
□□□□□□□□□□□□□□□□□□□□□□□□□□□□□□□□□□□□□□□
3駅複数路線利用可能とアクセス良好なライオンズマンション広尾第2。
最寄の白金台駅は、平成12年に東京メトロ南北線、都営地下鉄三田線が開通し、日比谷、大手町、永田町など都心にも出やすく、通勤・通学も便利です。
白金台駅前の目黒通り沿いにはファミレスやスーパー、ドラッグストアなど日常生活に便利なお店が点在しています。なんとプラチナ色したドンキホーテもありました。白金台と聞くとオシャレなお店がズラリならんでいるイメージでしたが、暮らしやすそうな雰囲気です。
マンションはおしゃれなお店が並ぶ、外苑西通り、通称「プラチナストリート」を通っていくことができます。緑の多い並木道は毎日お散歩したくなる雰囲気です(人´∀`)
プラチナ通り沿いにはブティックやカフェ、レストラン、ヘアサロンなどを中心とした店舗が集まっています。なんだか歩いているだけでセレブになった気分・・・!?(シ、シロガネーゼ?)散策するのも面白そうです。
目黒通り沿いにもマルエツプチがありましたが、マンションから徒歩4分ほどのところにもまたまたマルエツプチがあります。お買い物はここを利用するのが一番多くなりそうです。
サッポロビール工場跡の再開発に建てられた恵比寿ガーデンプレイスも徒歩8分程度。レストラン、デパート、美術館に高級ホテルなど大人が楽しめるスポットが多く入っています。ショッピングや外食が日常で楽しめるなんてなんだか贅沢ですね!(うらやましい環境です。)
ライオンズマンション広尾第2は昭和56年築 地上8階建て 総戸数55戸。
こちらがエントランスへ続く階段になります。凹凸のある壁面があり何だかアートのようです☆
周囲には緑もあり癒されます。
階段を上がりきると緑の門があります。扉の向こうがエントランス内になります。
エントランスは安心のオートロック。右手に管理室、正面に集合ポストです。
オートロックの先のホールは、ガラス貼りになっている部分があり、自然の光が射し込み開放感を感じます。ガラスの向こうにも緑がみえ、管理の行き届いている様子が伝わります。
エレベーターでお部屋へ。
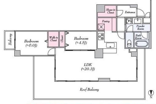
ここで間取り図のご紹介です。
※間取り図は別タブで開きますので、確認しながらご覧いただく事が出来ます。
□□□□□□□□□□□□□□□□□□□□□□□□□□□□□□□□□□□□□□□
★★★【ライオンズマンション広尾第2】周辺のハザードマップをCHECK!!★★★
お部屋の記事を読む前に…!周辺のハザードマップをチェックしておきませんか!
ライオンズマンション広尾第2のハザードマップは★こちらから…どうぞ★
□□□□□□□□□□□□□□□□□□□□□□□□□□□□□□□□□□□□□□□
今回ご紹介するお部屋は3階、間取りは2LDK、専有面積は72.83㎡。ルーフバルコニー付。ファミリータイプのお部屋です。現在はゆとりの2LDKですが、無償にて3LDKへの間取り変更も可能だそうですよ!では、早速行ってみましょう。
エレベーターで3階まで上がり…
内廊下を進むとお部屋に到着です。
玄関は上り口が横向きのタイプ。宅配便やフードデリバリーなどの受け取り時に、お部屋の中を覗かれる心配がありません。入って右側にはトールタイプのシューズボックスが並んでいます。天井まで使えて収納力は抜群!可動式の棚を調節すれば、ブーツなどの背の高い靴でも立てたまま収納可能ですよ。
人感センサーが自動的にライトを点けてくれるので、夜暗い中手探りでスイッチを探す必要はありません。いつでも明るい玄関が迎えてくれるのは嬉しいですよね(^^)
廊下はナチュラルカラーでまとめられた上品な雰囲気。フローリングや建具の手触りもいい感じですよ。
では、お部屋の中へ…
こちらは約19.2帖のリビング・ダイニング・キッチン。北西二面の大きな窓に囲まれた明るいお部屋です。北向きって暗いイメージがありますが、陽が射し込まないだけで意外と明るいんですよ。
キッチンは奥まった所にある半独立タイプ。リビングダイニングで四角いスペースを使えるので、かなり自由に家具のレイアウトを楽しむことが出来そうです。
奥の扉はクローゼット、手前の扉は洗濯機スペース。洗濯機スペースがリビングの真ん中って珍しいですね!扉が閉まっていればここに洗濯機があるなんて絶対分かりませんから、場所的には便利なのかもしれませんね。中には棚が付いているので、洗剤などの洗濯グッズをまとめておくことが出来ますよ。
ちなみに、3LDKに変更する場合はこの部分を仕切って洋室に変更します。先程のクローゼットも洋室内になりますし、廊下へ直接出られるドアも付いているので、使い勝手は他の洋室と変わりませんよ。
次はキッチンへ…
壁付けタイプの調理台の後ろにキッチンカウンターを設置した、Ⅱ型のようなキッチンです。ただの壁付けタイプと比べると、キッチン内が目立たないのが魅力ですね。
収納は吊戸棚と調理台下のスライドキャビネット。スライドキャビネットは引き出し式で出し入れがしやすく、大きな鍋なども楽に収納出来ます。びっしり詰めても中の確認がしやすいのも嬉しいですね。
食器洗浄乾燥機付!!!洗い物から解放されるなんて夢のようですね。余った時間でじっくりコーヒーを淹れたり・・・とか妄想が広がります(*´▽`*)水栓は浄水機能付きシャワー水栓。切替えるだけで気軽に美味しいお水を使う事が出来ますよ。
コンロは3口。タイマーや温度設定が可能な高機能タイプです。いつの間にかガスコンロでもこんな事が出来るようになっていたんですね!慣れるまでは、任せるのにちょっとドキドキしそうです^^;)
コンロの下にはグリルも付いています。「魚焼きグリル」と呼ばれるくらい魚イメージが強いですが、実はなんにでも使える優れもの。魚はあまり食べないから、という方も是非一度使ってみて下さい。調理中は換気扇をお忘れなく!
調理台後ろには、作業スペースとして使ったりお料理の出し下げなどに便利なキッチンカウンターを設置。下の部分は空いているので、ゴミ箱を置いたりも出来ますね。ゴミの分別化が進みゴミ箱の数も増える一方なので、こういうスペースがあると助かります。調理台横には冷蔵庫スペース。
では、隣のお部屋へ…
こちらは約7.1帖の洋室。LDKと同じ北西二面採光のお部屋です。余裕のある広さで、ベッドも二つくらいなら楽に入りそうですね。
収納は間口が広くて使いやすそうなクローゼット。奥行きもあるのでキャリーバッグなどの大きな物も入ります。衣装ケースなどを置けば収納力をアップさせることも可能ですよ。
廊下へ戻って…玄関近くには収納棚。
次のお部屋へ…
こちらは約6.1帖の洋室。北向きの窓のあるお部屋です。柱があって形が不規則なので、ベッドを置く位置などレイアウトには工夫が必要そうですね。
収納は西側の洋室と同タイプ。窓の外は緑がいっぱいでした(^^)
次は洗面室へ…
段差があるので足元にお気を付け下さい。
洗面室には洗面台の他に浴室、リネン棚、トイレがまとまっていて、脱衣所も兼ねています。
重厚感のある洗面台は三面鏡付き。鏡の間に付いた照明のおかげで、鏡を見る時に影になることもありません。小さなお子様でも見れるよう、低い位置にも鏡が設置されています。
収納は洗面台下と三面鏡裏のキャビネット。細々した物が多くなりがちな洗面廻りには豊富な収納が有り難いですね。大きな物から細かい物までバランスよく収まりそうです。
大きな洗面ボウルはシームレスでお掃除も楽々。水栓はヘッド部分が伸びるので、流したりにも便利です。
次はトイレへ…
トイレはタンクレスでスッキリ!
洗浄便座はTOTO製のウォシュレット。トイレットペーパーなどのストックに便利な吊戸棚も付いています。
浴室は、ブラウンの鏡面仕上げパネルで高級感のある雰囲気。リッチなバスタイムを過ごせそう♬
ノーリツ製の追い焚き機能付きユニットバス。「ふろ自動」ボタンひとつでお風呂を沸かすことが出来ます。ご家族でお風呂の時間がバラバラになっても、そのまま保温もしてくれるのでいつでも温かいお風呂に入れますよ。
ゆったり浸かれる1317サイズの浴室。
浴室換気乾燥機は浴室の換気乾燥はもちろんのこと、梅雨の季節は洗濯物乾燥、暑い季節は涼風、寒い季節は暖房など、一年を通して大活躍!
それでは、最後はバルコニーをまとめてご紹介します。
まずはLDKに面した北向きのバルコニー。LDKの北向きの窓から出られます。
ワイドスパンのLDKに面した幅の広いバルコニー。レンガの色に合わせたオレンジ色の手すり壁がオシャレですね。
外は見晴らしがいいわけではありませんが、緑が豊富で庭付きのお部屋に住んでいるような気分になります。椿?サザンカかな?綺麗な花をたくさん咲かせていましたよ。
次は、西側の洋室から出られる西向きのバルコニー。ややコンパクトですが日射しがあり、お洗濯物も干せるようになっています。
こちらは少し開けていますね。大きな木があり、木漏れ日が気持ち良さそうです。
最後は、西側の洋室とLDKの窓から出られるルーフバルコニーへ…
綺麗にデッキタイルが敷かれた、4~5帖くらいのルーフバルコニーです。広~い!というわけではありませんが、個人的には居心地の良いちょうどいい広さだと思います。ルーフバルコニーって憧れなんですよね。いつか、こんな所で昼間っからビールを飲んでやろうと狙っています(笑)
こちらの眺めもいい感じですね。大通りからは反対側になるので、意外と静かですよ。
・
以上でライオンズマンション広尾第2のご案内を終わります。
いかがでしたでしょうか??
白金台駅から徒歩11分のマンションです。
リノベーション済みという事で室内はとてもキレイですよ (っ・ω・)っ
内見のご予約やご質問などございましたらお気軽にお問い合わせくださいませ。
ご連絡お待ちしております。
□□□□□□□□□□□□□□□□□□□□□□□□□□□□□□□□□□□□□□□
★★★【ライオンズマンション広尾第2】周辺のハザードマップをCHECK!!★★★
お部屋のご購入前に…!周辺のハザードマップをチェックしておきませんか!
ライオンズマンション広尾第2のハザードマップは★こちらから…どうぞ★
□□□□□□□□□□□□□□□□□□□□□□□□□□□□□□□□□□□□□□□
弊社、不動産Agent 六棒株式会社では、
□リノベーションマンションはほぼ全て仲介手数料無料!
□その他一般仲介物件は仲介手数料20%~30%OFF!
にてお取り扱いしております!※弊社の「Agent Fee=仲介手数料」についてはご案内、ご面談の際に営業担当者よりご説明いたします!
なるべく沢山のお部屋をホームページに掲載したいと思っておりますが、時間的成約もございますので、残念ながらご紹介できるお部屋の一部しか掲載できておりません。
このホームページに掲載中のお部屋、その他サイト等で気になるお部屋、街を歩いていて気になったマンション等々ございましたら是非、弊社営業部までご相談ください!
~不動産Agent 六棒株式会社の特徴~
・一般仲介物件の仲介手数料は20%~30%OFFにてご案内中です!
・リノベーションマンションについてはほぼ全て仲介手数料無料です!
・住宅ローンに自信あります!
・頭金10万円より購入できます。是非ご相談下さい!
・お部屋のご見学は車で2~3件まとめて案内します!
・物件数3000件以上、新築戸建、リノベ物件も多数ご用意しております!
過去に販売していたお部屋の概要 こちらのお部屋の販売は終了いたしました
| 価格 | -万円 |
| 面積 | 74.32㎡ |
| 間取り | 2bedrooms(2LDK) |
| 管理費 | 月額17,600円 修繕積立金:月額17,600円 |
| 所在階 | 4階 |
| お問い合わせ・ご内見のご予約はこちらからお気軽にどうぞ | |
ここで間取り図のご紹介です。
※間取り図は別タブで開きますので、確認しながらご覧いただく事が出来ます。
□□□□□□□□□□□□□□□□□□□□□□□□□□□□□□□□□□□□□□□
★★★【ライオンズマンション広尾第2】周辺のハザードマップをCHECK!!★★★
お部屋の記事を読む前に…!周辺のハザードマップをチェックしておきませんか!
ライオンズマンション広尾第2のハザードマップは★こちらから…どうぞ★
□□□□□□□□□□□□□□□□□□□□□□□□□□□□□□□□□□□□□□□
今回ご紹介するお部屋は4階、間取りは2LDK、専有面積は74.32㎡。20帖超のLDK、グルリと囲むルーフバルコニー、ワクワクポイントがてんこ盛りです♬
では、早速行ってみましょう!
エレベーターで4階まで…
無駄な装飾の無いシンプルな内廊下を進んで、お部屋の前へ到着です。お引越しでしょうか、養生シートが貼ってありますね。それではお邪魔します。
広~い玄関が迎えてくれました。これだけ広いと、どうしても靴を脱ぎっぱなしにしちゃいそうです^^;)
戸口からはお部屋の中が見えないタイプです。正面のドア?ご心配なく・・・
ここはシューズインクローゼット!靴はもちろんの事、ベビーカーやキャリーケースなど、お部屋の中には入れづらい物も置いておく事が出来ますよ。
中に入った時に照明を点けてくれたのはこの人感センサー。いつでも明るい玄関が迎えてくれるのは嬉しいものです(*‘ω‘ *)
玄関を中まで入ると、左手にお部屋へと続く廊下が現れます。
では、正面のドアから…
キッチンの脇を抜けて…
こちらが約20.3帖のリビング・ダイニング・キッチン。ほんとに窓が多いんですね!とても明るいお部屋です。
キッチンはリビングサイドからは目立たない、少し奥まった所に。
天井にはお部屋を取り囲むように間接照明が設置されていて、柔らかい光を投げかけています。ソファーが置いてある辺りにはダウンライトもあり、読み物をするのに暗いなんて事もありません。アクセントになっているグレーの柱。クロスなどではなくペイントされているんですよ。
リビング…
ダイニング…
窓に囲まれている感が少しでも伝わればいいんですけど(^^)
では、次のお部屋へ…
と言ってももう見えてますけどね(笑)ガラス張りのお部屋です。
こちらは約4.5帖の洋室。お部屋自体には窓がありませんが、全面ガラス張りでLDKの光を全て取り込んでいます。
収納はクローゼット。間口が広くて使い易そうです。
今度はキッチンを…
広いキッチンカウンター。お料理を出す時や下げ物の時などに大活躍ですね。下はダイニングサイドから開ける収納になっていました。食器棚?ここだと使いづらいですかね?入れる物って、使い易いように自然と収まっていくんですよね(^^)
調理台はL字型。作業スペースが広くなるとか、移動が少なくて済むとかいろいろメリットがあります。
調理台の下には収納多数。コーナー部分の扉は、広く開いて出し入れがし易いように工夫されていますよ。
ちょっと見落としそうですが、食洗器も付いています。こんな所に高級感を感じますよね(^^)これで食後はのんびりさせてもらいます♬
コンロは3口。温度設定やタイマーなどの機能が付いた優れものです。
お料理中は換気扇をお忘れなく!グリルで忘れたら大惨事ですよ(笑)
作業台上部には吊戸棚。
キッチン奥にはパントリー。左側は冷蔵庫スペース、右側は可動棚になっていました。ここがあれば、カウンター下に食器をしまう事もないですね。
では、次のお部屋へ…
こちらは約6帖の洋室。ベッドが二つは置けそうな広さ、ベッドルームにピッタリですね。
収納はウォークインクローゼット!L字型にハンガーポールが設置されています。先程の洋室のクローゼットもそうだったんですけど、扉がいい感じなんですよね(^^)
こちらの洋室には、ルーフバルコニーとは別に2.35㎡のバルコニーが付いています。
正面はビルですが、左と右には建物の間から遠くが見えますよ。
次は洗面室…
お~っ、ここまで真っ白も珍しいですね。
こちらには洗濯機スペース、洗面台、浴室、トイレがまとまっています。
先ずは三面鏡付きの洗面台。清潔感いっぱいです。
収納は洗面台下と三面鏡裏のキャビネットです。キャビネットは細かい物が多い洗面周りの必需品!
次は浴室へ…
スマホに夢中で長風呂とかありますよね^^;)そんな時ももう安心!追い焚き機能が自動的に温度を保ってくれます。寒くて上がれない、なんて事ももうありません。
浴室を換気してくれる浴室乾燥機、お洗濯物乾燥もお任せ下さい。梅雨時期だけではなく、花粉の季節にも活躍してくれますよ!
次はトイレへ…
予備のトイレットペーパーの定位置、吊戸棚。低い位置に設置されているのが嬉しいですよね。自宅のは高くて、たまに足がつりそうになります(笑)温水洗浄便座付き。TOTO製のウォシュレットです。
それでは、最後はルーフバルコニーのご紹介。
LDKを取り囲む5つの窓、どこからでも出る事が出来ます。
広さは28.6㎡のバルコニー。まるでペントハウスのようですね♬
まずは東側。短いですが奥行きがあります。外は洋室のバルコニーから見えるのとほぼ同じ風景ですね。
次は西側。短く奥行きも狭めですが、物干し金具が付いています。お洗濯物はこちらでほしましょう。西向きなので午後がチャンスですよ。
最後は北側。幅も奥行きもあるメインの部分です。北向きといっても、奥行きがあって屋根のないルーフバルコニーの場合、太陽が真上にくれば陽当りも期待出来るんですよ。
実際、2月の11:00頃でも太陽が見えましたからね。
正面には抜けた風景が!眺めながら昼間っからビールなんてたまりませんね(笑)
・
以上でライオンズマンション広尾第2のご案内を終わります。
いかがでしたでしょうか??
白金台駅から徒歩11分のマンションです。
リノベーション済みという事で室内はとてもキレイですよ (っ・ω・)っ
内見のご予約やご質問などございましたらお気軽にお問い合わせくださいませ。
ご連絡お待ちしております。
□□□□□□□□□□□□□□□□□□□□□□□□□□□□□□□□□□□□□□□
★★★【ライオンズマンション広尾第2】周辺のハザードマップをCHECK!!★★★
お部屋のご購入前に…!周辺のハザードマップをチェックしておきませんか!
ライオンズマンション広尾第2のハザードマップは★こちらから…どうぞ★
□□□□□□□□□□□□□□□□□□□□□□□□□□□□□□□□□□□□□□□
弊社、不動産Agent 六棒株式会社では、
□リノベーションマンションはほぼ全て仲介手数料無料!
□その他一般仲介物件は仲介手数料20%~30%OFF!
にてお取り扱いしております!※弊社の「Agent Fee=仲介手数料」についてはご案内、ご面談の際に営業担当者よりご説明いたします!
なるべく沢山のお部屋をホームページに掲載したいと思っておりますが、時間的成約もございますので、残念ながらご紹介できるお部屋の一部しか掲載できておりません。
このホームページに掲載中のお部屋、その他サイト等で気になるお部屋、街を歩いていて気になったマンション等々ございましたら是非、弊社営業部までご相談ください!
~不動産Agent 六棒株式会社の特徴~
・一般仲介物件の仲介手数料は20%~30%OFFにてご案内中です!
・リノベーションマンションについてはほぼ全て仲介手数料無料です!
・住宅ローンに自信あります!
・頭金10万円より購入できます。是非ご相談下さい!
・お部屋のご見学は車で2~3件まとめて案内します!
・物件数3000件以上、新築戸建、リノベ物件も多数ご用意しております!
過去に販売していたお部屋の概要 このお部屋の販売は終了いたしました。
| 価格 | -万円 |
| 面積 | 52.63㎡ |
| 間取り | 2bedrooms(2SDK) |
| 管理費 | 月額12,400円 修繕積立金:月額12,400円 |
| 所在階 | 4階 |
| お問い合わせ・ご内見のご予約はこちらからお気軽にどうぞ | |
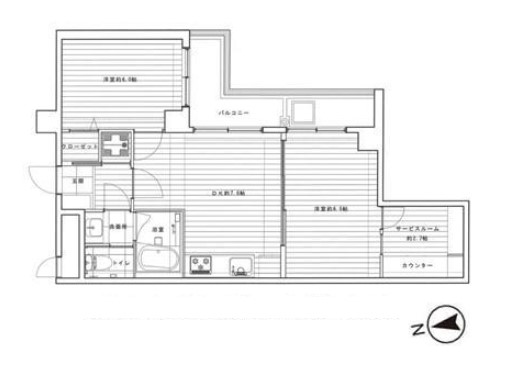
※間取り図は別タブで開きますので、確認しながらご覧いただく事が出来ます。
□□□□□□□□□□□□□□□□□□□□□□□□□□□□□□□□□□□□□□□
★★★【ライオンズマンション広尾第2】周辺のハザードマップをCHECK!!★★★
お部屋の記事を読む前に…!周辺のハザードマップをチェックしておきませんか!
ライオンズマンション広尾第2のハザードマップは★こちらから…どうぞ★
□□□□□□□□□□□□□□□□□□□□□□□□□□□□□□□□□□□□□□□
今回ご紹介するお部屋は4階、間取りは2SDK、専有面積は52.63㎡。サービスルームが気になりますね。では、早速行ってみましょう!
エレベーターで4階まで上がり…
内廊下を進むとお部屋に到着です。内廊下は天候に左右されないのがいいですよね。外は35°もあるのに中はひんやり感じます♪
玄関ホールはナチュラルカラーのフローリングに黒の建具の組み合わせ。スタイリッシュな印象です。
シューズボックスはロータイプ。上がカウンターになっていて、インテリアを飾ったり出来るようになっています。「玄関は家の顏」って言いますから綺麗に飾りたいものですね。人感センサーは自動的にライトを点けてくれるので、もう暗い中スイッチを探す必要もありません。なにより、いつでも明るい玄関が迎えてくれるのが嬉しいです(^^)
では、お部屋の中へ…
こちらはダイニング・キッチン+洋室。奥に見える洋室の仕切りを開けて二部屋をつなげ、リビング・ダイニング・キッチンのようにしています。ご家族構成次第では、このような使い方もいいですね。
洋室側から。バルコニーに面した大きな窓が二つ並ぶ、明るいお部屋になりますね。
仕切り戸は引込式なので開けた時もスッキリ。扉を閉めれば…
本来の洋室に戻ります。収納はありませんが…
ドアの奥にはサービスルームがあります。
サービスルームとは法律上、居室と認められないお部屋のこと。あくまでも法律上なので、実際には普通に居室として使えることがほとんどです。このお部屋なら、物置きや家事スペース、書斎、ホビールームなど何にでも使えそうですね。テレワークなどに如何ですか?
コンセントはもちろんの事、充電用のUSB端子やアンテナ端子など各種端子が揃っています。
キッチンは壁付けタイプ。省スペースで使いやすい一方、キッチン内が丸見えなので整理整頓が必要です。
フローリングに合わせたパネルを使用した調理台。
調理台下にはスライドキャビネットと食器洗浄乾燥機。引き出しタイプは出し入れがしやすく、大きな鍋なども簡単に収納可能です。憧れの食洗機♬ 洗い物はお任せして、食後の時間をみんなでのんびり過ごしましょう!
コンロは3口。温度設定やタイマーなども可能な高機能タイプです。ガスコンロもこんなに進化しているんですね。
調理中は換気扇をお忘れなく!グリルは特にです。調理の少し前から回しておくと効果的らしいですよ。
水栓はハンドシャワータイプ。ヘッドが伸びて、シンクを流したり大きな鍋を洗ったりにも便利です。上部には棚を設置。「見せる収納」でお洒落なキッチンにチャレンジしましょう!
調理台の左側には冷蔵庫スペースも確保されていました。スッキリ収まりますが、サイズだけにはご注意を。
では、次のお部屋へ…
こちらは西側の洋室。独立性も高くメインのベッドルームにピッタリです。シンプルな内装で幅広い家具を合わせられそうですね。
収納はクローゼットです。間口が広くて使いやすい上に、奥行きがあって収納力も十分。キャリーバッグやスーツケースなどの嵩張る物も収納可能ですよ。
玄関ホールに戻って右側には、洗濯機スペース。中には棚も付いていて、洗剤や洗濯ネットなどの洗濯グッズもまとめて置いておけます。使う所に置いておけるのが一番ですよね。
反対側には洗面室。
洗面室には洗面台の他に浴室とトイレがまとまっていて、脱衣所も兼ねています。少し段差があるので足元にお気を付け下さい。
洗面台は身だしなみチェックに便利な三面鏡付き。上部の照明で鏡を見る時に影になったりもしませんよ。
収納は洗面台下と三面鏡裏のキャビネット。細かく分かれたキャビネットは、細々した物が多くなりがちな洗面周りには絶対欲しい収納です。
水栓はハンドシャワータイプ。洗面ボウルが広めなので寝ぐせくらいなら直せそう。
トイレはTOTO製のウォシュレット付き。トイレットペーパーのストックになどに便利な棚も付いています。
浴室は木目のパネルを使った落ち着いた雰囲気。リラックスしたいバスタイムにピッタリですね(^^)
追い焚き機能付きユニットバスはワンタッチでお風呂を沸かす事が出来ます。保温もしてくれるのでいつでも温かいお風呂に入れますよ。
ゆったり浸かれる広々浴槽。
浴室換気乾燥は浴室乾燥の他に、寒い季節の浴室暖房、雨天や花粉の季節のお洗濯物乾燥など様々な使い方があります。中には「涼風」なんてボタンもありますので、暑い季節にも活躍してくれそう。残念ながら冷房機能はありませんが、お風呂で濡れた体には充分涼しいと思いますよ。涼しい風に吹かれながらゆっくり浴槽に浸かれば、夏バテも吹き飛びそうですね♬
それでは、最後はバルコニーのご紹介。バルコニーへは全てのお部屋の窓から出る事が出来ますよ!二つの洋室の窓には防音、遮熱、防犯に優れたインナーサッシが設置されていました。
広さは7.83㎡、L字型の広々としたバルコニー。物干し金具も付いていて、お洗濯物も干せるようになっています。クラシカルな外壁のタイルがいい感じですね。
バルコニーの外は開放的とは言えませんが、高い建物までは距離もあり、まずまずの眺めかと思います。首都高速2号目黒線からは少し入った所なので、音もそれ程気にはなりませんでしたよ。
・
以上でライオンズマンション広尾第2のご案内を終わります。
いかがでしたでしょうか??
白金台駅から徒歩11分のマンションです。
リノベーション済みという事で室内はとてもキレイですよ (っ・ω・)っ
内見のご予約やご質問などございましたらお気軽にお問い合わせくださいませ。
ご連絡お待ちしております。
□□□□□□□□□□□□□□□□□□□□□□□□□□□□□□□□□□□□□□□
★★★【ライオンズマンション広尾第2】周辺のハザードマップをCHECK!!★★★
お部屋のご購入前に…!周辺のハザードマップをチェックしておきませんか!
ライオンズマンション広尾第2のハザードマップは★こちらから…どうぞ★
□□□□□□□□□□□□□□□□□□□□□□□□□□□□□□□□□□□□□□□
弊社、不動産Agent 六棒株式会社では、
□リノベーションマンションはほぼ全て仲介手数料無料!
□その他一般仲介物件は仲介手数料20%~30%OFF!
にてお取り扱いしております!※弊社の「Agent Fee=仲介手数料」についてはご案内、ご面談の際に営業担当者よりご説明いたします!
なるべく沢山のお部屋をホームページに掲載したいと思っておりますが、時間的成約もございますので、残念ながらご紹介できるお部屋の一部しか掲載できておりません。
このホームページに掲載中のお部屋、その他サイト等で気になるお部屋、街を歩いていて気になったマンション等々ございましたら是非、弊社営業部までご相談ください!
~不動産Agent 六棒株式会社の特徴~
・一般仲介物件の仲介手数料は20%~30%OFFにてご案内中です!
・リノベーションマンションについてはほぼ全て仲介手数料無料です!
・住宅ローンに自信あります!
・頭金10万円より購入できます。是非ご相談下さい!
・お部屋のご見学は車で2~3件まとめて案内します!
・物件数3000件以上、新築戸建、リノベ物件も多数ご用意しております!
過去に販売していたお部屋の概要 このお部屋の販売は終了いたしました。
| 価格 | -万円 |
| 面積 | 66.97㎡ |
| 間取り | 2bedrooms(2SLDK) |
| 管理費 | 月額15,800円 修繕積立金:月額15,800円 |
| 所在階 | 6階 |
| お問い合わせ・ご内見のご予約はこちらからお気軽にどうぞ | |
間取りのご紹介です。2SLDK、66.97㎡。
東南角部屋につき陽当り・眺望良好なお部屋です。
〈充実のリノベーション内容〉
■給湯器交換
■システムキッチン交換、ユニットバス交換、洗面台交換、トイレ交換
■全クロス張替、全フローリング張替、全建具交換、フロアタイル張替
■下足入れ交換
■洗濯水栓器具交換、防水パン交換
■スイッチパネル設置、照明器具設置
■エコカラット設置(LD)、玄関人感センサー設置、ハウスクリーニング
幅がありゆったりとした玄関ホール。
右側に可動棚のシューズBOXがあります。
廊下にはアクセントクロスの貼られたニッチ。
可動棚の収納スペースもあります。
廊下の右側、最初のドアはトイレ。
吊戸棚も設置されていて、トイレ周りの備品などの収納に重宝します。
続いて隣のサニタリールーム。
大きなボウルの洗面台は使いやすいシャンプドレッサータイプ。
三面鏡の裏は収納スペースになっています。
ブラウンパネルの落ち着きある色合いのバスルーム。
浴室乾燥機付きです。
玄関左側の最初のお部屋へ。
こちらは4.5帖のサービスルーム。
東向きのお部屋で柱の出っ張りがなく使いやすいく、書斎や子供部屋としてもお使いになれるお部屋です。
クローゼットももちろんあります。
窓は二重サッシになっていて騒音はあまり気になりあせん。
高い建物もなくある程度抜けた眺望です。
廊下突き当たりはLDK。
LDKは13.6帖。
LDKを入りすぐ右側にキッチンがあります。
独立した位置にあり、来客の際にキッチン周りが見られにくいのが嬉しいですね!
奥のスペースには食器棚や電子レンジなどが置けるキャビネットなども設置できそうです。
カウンターも設置されていて可動棚になっています。
キッチン設備は3口ガスコンロ・グリル、浄水器一体型水栓に食洗機も付いていて充実しています。
LDKは南東向き2面採光で大変明るいお部屋です。
バルコニーは南向き。
高速道路に面していますが、こちらも二重サッシになっています。
LDKと引き戸で仕切られた4.5帖のベッドルーム。
東向きに窓があります。
こちらのお部屋の収納はクローゼットとしてももちろん、掃除機や日用品の収納にも重宝しそうです。
間口の広い引き戸で18.1帖の広々としたLDKとしてもお使いになれます。
LDKから隣のベッドルームへ!
こちらのベッドルームは7.3帖。
南向きの大変明るいお部屋です!
クローゼットは2箇所に設置されていて、奥行がありハンガーポールが二重で容量十分!
オシャレなアクセントクロスが貼られています。
こちらのお部屋の二重サッシで騒音は気になりません。
南向きは高速道路に面していますが眺望は抜けていて自然教育園の緑を間近に望みます。
ご内見のご希望・ご質問などございましたら、お気軽にお問い合わせくださいませ♪
過去に販売していたお部屋の概要 このお部屋の販売は終了いたしました。
| 価格 | -万円 |
| 面積 | 76.72㎡ |
| 間取り | 3bedrooms(3LDK) |
| 管理費 | 月額:18,200円 修繕積立金:月額18,200円 |
| 所在階 | 4階 |
間取り図はこちら。
南西角部屋2面採光の3LDK+SIC+WIC、76.72㎡。
高速道路と距離があるお部屋です。
室内はリノベーション済み。
玄関を入ると右側に大きなシューズインクローゼットがあります。
可動棚で高さ調節可能。
玄関を上がりすぐ右側にトイレがあります。
TOTO製のウォシュレットトイレはタンクレスタイプで、手洗い場も設置してあります。
隣はサニタリールーム。
すぐ右側にランドリースペースあります。
LIXIL製の洗面台は幅があり使いやすく、LED照明を鏡の中央に組み込み影が出にくいです。
三面鏡裏の収納やシャンプードレッサータイプで機能的。
ホワイト基調で清潔感のあるバスルーム
LIXIL製のユニットバスは浴槽が1317サイズで追焚きや浴室乾燥機ももちろん付いています。
最初のお部屋は独立した洋室です。
南向きの窓の付いた明るい洋室は6.3帖。
L字のハンガーポールが設置された容量十分なウォークインクローゼットです。
窓の向こうに高速道路がありますが、距離があるので騒音はあまり気になりません。
そしてLDKへ!
南向き16.3帖のLDK。
シックな色合いで統一された落ち着きある空間になっています。
オープンキッチンで開放感があります。
ワークトップもウッド調で統一されたTJM製のオープンキッチン。
設備は3口ガスコンロ、グリル、食洗機や蛇口一体型水栓も付いていてシンクも深く使いやすいです。
キッチンにも窓があり大変明るくお料理がしやすそうです。
キャビネットやカウンターもお部屋の色合いのとマッチしてます!
LDKからドアで仕切られた洋室へ。
西向きの明るい洋室は5.7帖
こちらのクローゼットも奥行があり十分な容量があります。
続いてLDKと間仕切りで仕切られた6.3帖の洋室
南西向き角部屋で大変明るく、3枚の引き戸で間口が広くLDKまで明るい日差しが差し込みます。
洋室2部屋をつなぐ西向きのバルコニーは5.37㎡。
視界を遮る建物がなく眺望は抜けています。
正面に恵比寿ガーデンプレイスが見えますね!
皆様からのお問い合わせお待ちしております。
過去に販売していたお部屋の概要 このお部屋の販売は終了いたしました。
| 価格 | -万円 |
| 面積 | 33.09㎡ |
| 間取り | 1bedroom(1DK) |
| 管理費 | 月額:7,800円 修繕積立金:月額7,800円 |
| 所在階 | 2階 |
間取りのご紹介です。1DK、33.09㎡。
南西向きにつき陽当たり良好なお部屋です。
室内はリノベーション済み!
ご内見のご希望・ご質問などございましたら、お気軽にお問い合わせくださいませ♪
過去に販売していたお部屋の概要 このお部屋の販売は終了いたしました。
| 価格 | -万円 |
| 面積 | 69.12㎡ |
| 間取り | 3bedrooms(3LDK) |
| 管理費 | 月額:16,400円 修繕積立金:月額16,400円 |
| 所在階 | 3階 |
ここで間取りのご紹介です。(3LDK+SIC 69.12㎡)
玄関ホールです。広々とゆったりとした空間です。
玄関左手にある扉をあけますと、シューズインクローゼットがあります。
沢山のシューズが置けるのは確かです!!棚の調整も可能なので、高さのあるブーツもスッポリ~置き場所に困るゴルフバックも置けそうです!シューズ以外にも大活躍してくれそうですね。
お部屋に続いている廊下を進みたいと思います。
廊下右手にある洋室4.8帖です。木の暖かさを感じるフローリングに、窓から光が射し込み明るいお部屋です。大きなクローゼットも設置されています。
廊下右手にあるTOTO製ウォシュレット付トイレです。上部には吊戸棚もありますので、トイレットペーパーやお掃除道具はこちらに仕舞えそうです。窮屈間を感じない空間でした。
トイレお隣にあるこちらは引き戸の扉、サニタリールームです。
正面に洗面化粧台、並びに洗濯機置き場、浴室となっています。
ノーリツ製洗面化粧台です。4面あるミラーはみやすく!朝の準備もしやすいでしょうね!
おしゃれな洗面ボウルはスクエア型でスタイリッシュ!サイドにスペースがあるのでアクセントに緑を置いてみたりと使い勝手も良さそうですね。
洗濯機置き場です。吊戸棚もありますので、洗剤などはこちらに置けそうですね。
取りやすい高さにあり、負担なく出し入れができそうです。
TOTO製追炊き機能付き浴室です。(浴室換気乾燥機付き)家族の帰宅時間がバラバラでも大丈夫!追炊き機能があればいつでも温かい入浴タイムに!浴槽サイドに手すりがあります。
少し力をかけられる場所があると本当に助かり滑り防止になりますね。
廊下正面にあるこちらの扉を開くと~。。。
このような景色がみえます。正面にはLD、右手にはキッチンやお部屋になります。
クリナップ製システムキッチンです。窓から明るい光が照らされているスペース、
ワイドに広がりゆとりある、ホワイト一色のキッチンです。
調理スペースは広々といていて、お料理の段取がスムーズにこなせそうです。
そして、家事の時短になる嬉しい食器洗浄機付き、家族との会話の時間が増えそうですね。
上下収納も充実しています。
リビングダイニングキッチン12.4帖です。東向きバルコニーに面している明るいお部屋です。
縦に広々のお部屋、家具の配置もしやすいでしょうね~
東向きバルコニーです。洗濯物もしっかり干せそうです♪
3階からの東向きからの眺望です。周囲には建物がありますが、抜ける青空もみえます。
キッチン並んである洋室5.5帖です。南向きバルコニーに面しているお部屋です。
クローゼットも設置されています。ポールハンガーには衣類をかけ、枕棚にはかさばるものを~
収納うまく活用しお部屋をめいいっぱい使いたいですね♪
並んである洋室のお部屋です。4.5帖の2面採
3光の風通しの良いお部屋です。
こちらにもクローゼット設置されています。
続いている2部屋の洋室に面しているバルコニーです。こちらにはお好きなお花を置いてみてはいかがでしょう~
収納豊富なファミリータイプのお部屋「ライオンズマンション広尾第2」いかがでしたか~
みなさまのご内見、心よりお待ちしております!

















































































































































































































































































































































弊社 公式HP
六棒総合研究所
掲載予定物件
価格変更と販売終了物件
ハザードマップ検索
適合証明書.jp
Instagram