・
□□□□□□□□□□□□□□□□□□□□□□□□□□□□□□□□□□□□□□□
いつも弊社ホームページをご覧頂き誠にありがとうございます。
ライオンズプラザ恵比寿はお陰様で販売を終了致しました。弊社問合せフォームにてご要望頂けましたら、当お部屋でキャンセル等が発生した場合、他のお部屋が販売になりました際にご紹介させて頂きます。
不動産Agent 六棒株式会社
TEL:03‐5413‐5336
□□□□□□□□□□□□□□□□□□□□□□□□□□□□□□□□□□□□□□□
・
恵比寿エリアより総世帯数125戸の大規模マンション
「ライオンズプラザ恵比寿」のご紹介です。

☆アクセス
JR山手線・湘南新宿ライン・埼京線・東京メトロ日比谷線「恵比寿」駅徒歩3分

渋谷も徒歩圏!どこへ行くにもアクセス良好です。多路線が利用できるので、万が一いつも利用している電車が停まってしまっても、何とかなる(であろう)ナイスなロケーション!

恵比寿駅周辺には駅と直結しているアトレをはじめ、飲食店がわんさかあり、いつも多くの人でにぎわっています。ちょっと路地裏に入ると隠れ家的なお店もあったりするようで、散策しがいも十分です。マンションとちょっと反対方向ですが、恵比寿ガーデンプレイスも徒歩圏。レストラン、デパート、美術館に高級ホテルなど大人が楽しめるスポットが多く入っており、1日楽しい時間が過ごせるハズ♥

ライオンズプラザ恵比寿は昭和58年築、13階建て、総世帯数125戸。
鹿島建設施工の大規模マンションです。
☆ライフインフォメーション
ローソン・・・徒歩1分
大丸ピーコック・・・徒歩4分
ココカラファイン・・・徒歩3分
アトレ恵比寿店・・徒歩3分
渋谷区役所恵比寿駅前出張所・・・徒歩4分
恵比寿駅ビル内郵便局・・徒歩4分
恵比寿ガーデンプレイス・・・徒歩10分
エントランスは安心のオートロック。留守時に便利な宅配BOXも設置されています。
条件はありますが事務所利用も可能となっています。
ここで間取り図のご紹介です。
※間取り図は別タブで開きますので、確認しながらご覧いただく事が出来ます。
今回のお部屋は8階、間取りは1LDK、専有面積は42.15㎡。お一人暮らしの方にお勧めのお部屋です。おっ、キッチンに窓!と思いましたが、よく見ると塞いでいるようですね。残念(^-^; では、お邪魔します…
玄関正面に扉が無く戸口から室内の様子が見えづらい造り。宅配便やフードデリバリーなどで知らない人が訪ねてくる機会が増えた、今の時代にマッチしたレイアウトといえますね。シューズボックスは収納力のあるトールタイプなので、玄関もすっきり保てそうですよ。

廊下を左に進んだ突き当りは洗面室。
洗面室には洗面化粧台の他に、洗濯機スペース、浴室、リネン庫がまとまっていて、脱衣所も兼ねています。ゆったりサイズの洗面化粧台は三面鏡付き。ミラー間に照明が付いているので影になることもありません。鏡裏のキャビネットには洗面周りに散らかり勝ちな細々としたものを収納しておけます。

浴室は木目の鏡面仕上げパネル使用。照明の映り込みが奥行を感じさせ実際より広く感じますね。高級感もたっぷり♬ 浴室換気乾燥機が付いているので、天気を気にすることなく洗濯ができますよ。

廊下へ戻って…
トイレはINAX製の洗浄機能一体型。トイレットペーパーのストックや掃除道具を置いておくのに便利な棚も付いています。壁に貼られたアクセントタイルもイイ感じ!

最後のドアは約11.7帖のリビング・ダイニング・キッチン。
キッチンは少し奥まったところにあり、残りの四角いスペースをリビングダイニングとして使えるようになっています。広くはないもののこじんまりとした居心地良さそうなお部屋ですね。ちなみに家具付販売ではありません。今はバランスよく配分されているリビングとダイニングですが、ライフスタイルによってバランスを変えるのもアリですね。

キッチンは壁付けタイプ。
イメージとしては独立型に近いですかね。このサイズのお部屋にしては充実したキッチン!作業スペースも十分確保されていますし、調理台後ろに調理台と揃いのカップボードが設置され収納場所に困ることもなさそうです。食器洗浄乾燥機や浄水機能一体型水栓などの便利機能も完備され、お料理好きな方でも満足していただけると思いますよ。

LDK自体には窓はナシ。隣の洋室との仕切り扉を開ければ外光も入りますので、通常は約16帖のワンルームとして使い必要に応じて閉めるなんて感じになりそうです。

扉を閉めれば約4.4帖の洋室に…
入口が引き戸なのでデッドスペースもなく、ベッドなどの家具もギリギリまで置くことができますよ。クローゼットは間口が広くフルオープンになるタイプ。これって中が見やすくて使いやすいんですよね。

部屋幅いっぱいに窓が付いた明るいお部屋です。南西向きのバルコニーに面しているのですが、ちょっと変わっているのがバルコニーが2/3しかないこと。左1/3は足元までのFIX窓になっていて解放感いっぱいです。タワーマンションなどで見かけますが、高い所が得意ではない私にとってはこの高さでも足がすくみます(^-^; 手すりが付いているので安心なんですけどね。
・
以上でライオンズプラザ恵比寿のご案内を終わります。
いかがでしたでしょうか??
恵比寿駅から徒歩3分のマンションです。
リノベーション済みという事で室内はとてもキレイですよ (っ・ω・)っ
内見のご予約やご質問などございましたらお気軽にお問い合わせくださいませ。
ご連絡お待ちしております。
弊社、不動産Agent 六棒株式会社では、一般仲介物件は仲介手数料20%~30%OFF!
にてお取り扱いしております!
なるべく沢山のお部屋をホームページに掲載したいと思っておりますが、時間的成約もございますので、残念ながらご紹介できるお部屋の一部しか掲載できておりません。
このホームページに掲載中のお部屋、その他サイト等で気になるお部屋、街を歩いていて気になったマンション等々ございましたら是非、弊社営業部までご相談ください!
~不動産Agent 六棒株式会社の特徴~
・一般仲介物件の仲介手数料は20%~30%OFFにてご案内中です!
・住宅ローンに自信あります!
・頭金10万円より購入できます。是非ご相談下さい!
・お部屋のご見学は車で2~3件まとめて案内します!
・物件数3000件以上、新築戸建、リノベ物件も多数ご用意しております!
過去に販売していたお部屋の概要 こちらのお部屋の販売は終了いたしました
| 価格 | -万円 |
| 面積 | 27.72㎡ |
| 間取り | 1bedroom(1DK) |
| 管理費 | 月額10,730円 修繕積立金:月額7,180円 |
| 所在階 | 11階 |
| お問い合わせ・ご内見のご予約はこちらからお気軽にどうぞ | |
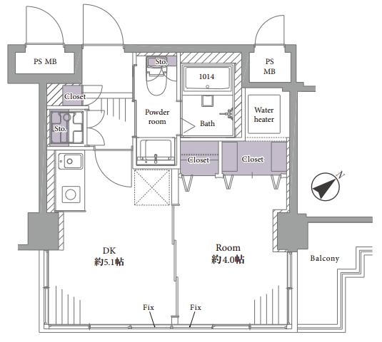
間取りのご紹介です。1DK、専有面積は27.72㎡。
11階・南東向きにつき陽当り・眺望ともに良好です☀
【リノベーション内容】
■キッチン・・・システムキッチン(パナソニック)
■浴室・・・ユニットバス(TOTO)、浴室換気乾燥暖房機付き
■洗面所・・・洗面化粧台 、洗濯水栓、防水パン
■トイレ・・・LIXIL、ウォシュレット付き
■その他・・・フローリング貼替、建具・玄関収納交換、壁・天井クロス貼替、フロアタイル貼替、電気温水器交換、エアコン(1基)、新規照明器具取付、収納棚新設、スイッチ・コンセント交換、ハウスクリーニング
■アフターサービス保証付き
ご内見のご予約・ご質問などございましたら
お気軽にお問い合わせください。




