・
□□□□□□□□□□□□□□□□□□□□□□□□□□□□□□□□□□□□□□□
いつも弊社ホームページをご覧頂き誠にありがとうございます。
中野坂上マンションはお陰様で販売を終了致しました。弊社問合せフォームにてご要望頂けましたら、当お部屋でキャンセル等が発生した場合、他のお部屋が販売になりました際にご紹介させて頂きます。
不動産Agent 六棒株式会社
TEL:03‐5413‐5336
□□□□□□□□□□□□□□□□□□□□□□□□□□□□□□□□□□□□□□□
・
本日は都営大江戸線「西新宿五丁目」駅より徒歩5分リノベーションマンション
「中野坂上マンション」 のお部屋をご案内致します!
アクセス
都営大江戸線『西新宿五丁目』駅 徒歩5分
東京メトロ丸ノ内線・都営大江戸線『中野坂上』駅 徒歩8分
マンションまでご案内させていただく前に、まずはこちらをご覧ください!
□□□□□□□□□□□□□□□□□□□□□□□□□□□□□□□□□□□□□□□
★★★【中野坂上マンション】周辺のハザードマップをCHECK!!★★★
お部屋の記事を読む前に…!周辺のハザードマップをチェックしておきませんか!
中野坂上マンションのハザードマップは★こちらから…どうぞ★
□□□□□□□□□□□□□□□□□□□□□□□□□□□□□□□□□□□□□□□
こちらは、都営大江戸線『西新宿五丁目』駅☆西新宿五丁目は、大江戸線ターミナル駅の『都庁前』駅のお隣の駅。新宿駅までは約4分です!!マンションの最寄駅です。
駅から地上へ出ると目の前には方南通り。方南通り沿いには、飲食店やコンビニ、レンタルビデオショップ、ドラッグストアがあります。駅前に商店街のようなものはありませんので、あまり栄えているといった印象はありませんが充分ではないでしょうか(●’∀’●)
駅から、逆方向に進むとそこは新宿副都心♫『新宿中央公園』もマンションから徒歩12分です(o´∀`ノ新宿中央公園は、高層ビル群の中にある大都会のオアシス♪♪

駅から方南通りを西に進むと山手通りとの交差点『清水橋』☆こちらから山手通りを北に少し進んだところが今回ご紹介させていただくマンションです♫
方南町通りをもう少し進んだところに『サミット』とドラッグストアがあります。徒歩7分ほど、こちらが最寄りのスーパーです。
マンション北側の最寄り駅は、東京メトロ丸ノ内線・都営大江戸線の『中野坂上』駅☆徒歩8分です。

中野坂上駅の近くには、『ライフ』や『オリンピック』などのスーパーや、ドラッグストアに100円ショップと充実のラインナップです。こちらの方面にお買い物に行くことも多そうです♪♪
こちらが今回ご紹介させていただく『中野坂上マンション』です♪♪
昭和45年築、地上11階建て、山手通り沿いに佇む白い外観のマンションです。
マンションの前面道路は、山手通りですので交通量は多めです。しっかりした歩道がありますので、歩きやすい道です。
こちらがエントランスです(o´∀`ノ綺麗に改修されていて実際の築年数よりだいぶ新しいマンションの印象を受けます。
こちらは、エントランスホール♪♪オートロックはありませんが、防犯カメラが目を光らせています。管理形態は日勤の管理人さんがいらっしゃいます。管理人さんは、月~金9:00~17:00、土9:00~12:00です。
エレベーターは1基、こちらのエレベーターでお部屋へと向かいます♪♪
エレベーターを降りると内廊下。内廊下なので雨の日も安心ですよ♪
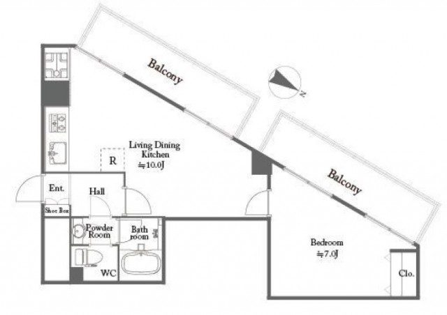
ここで間取り図のご紹介です。
※間取り図は別タブで開きますので、確認しながらご覧いただくことができます。
□□□□□□□□□□□□□□□□□□□□□□□□□□□□□□□□□□□□□□□
★★★【中野坂上マンション】周辺のハザードマップをCHECK!!★★★
お部屋の記事を読む前に…!周辺のハザードマップをチェックしておきませんか!
中野坂上マンションのハザードマップは★こちらから…どうぞ★
□□□□□□□□□□□□□□□□□□□□□□□□□□□□□□□□□□□□□□□
今回ご紹介するお部屋は4階、専有面積48.14㎡の2LDK。ファミリーからおひとり暮らしの方まで幅広くお使いいただけるお部屋です。では、早速行ってみましょう!
玄関にはトールタイプのシューズボックス。棚板の高さが調節できるのでブーツやヒールなどの背の高い靴もスッキリ収納可能です。
玄関ホールの収納はハンガーパイプも棚も付いていないフリースペース。大きさや長さに縛られずに使えます。ご自身のニーズに合わせてアレンジしていきましょう。
トイレはINAX製の洗浄機能一体型。トイレットペーパーストックや掃除道具を入れておくのに便利な吊り戸棚も付いています。
こちらは約10.8帖のリビング・ダイニング・キッチン。
入ってすぐにキッチンがあり、その向こうにリビングダイニングが続く細長いお部屋です。明るめのフローリングと白いクロスというシンプルな色使いで、カーテンや家具なども合わせやすそうですね。サイズ的にリビングダイニング兼用にするのもアリだと思います。
LDKからは横に向かって通路のようなスペースがあり、奥には洋室が二つ並んでいます。左側手前の扉は一見リビング収納のように見えますが実は洗濯機スペース。まさかこんなところに洗濯機があるとは思いませんよね。では奥の洋室を順番に見てみましょう。
手前側は約5帖の洋室1。
南東向きバルコニーに面したお部屋です。広さは十分ですが、バルコニーへ出るにはここを通るしかないのでプライバシー的には今ひとつ。お年頃だと嫌がるかもしれませんね。私も子供時代バルコニーへの通り道の部屋を使っていたことがあるので気持ちわかります^^;)
突き当りは約6.4帖の洋室2。
余裕のあるサイズでメインの寝室にピッタリのお部屋です。間口が広くて使いやすいクローゼット付き。
LDKに戻って…
キッチンはスペースをとらない壁付けタイプ。フローリングに合わせたパネルを使いお部屋によく馴染んでいますね。吊り戸棚も付いていて収納も豊富です。
洗面室には洗面化粧台と浴室があり脱衣スペースも兼ねています。
洗面化粧台は身だしなみチェックに便利な三面鏡付き。上部に照明が付いているので鏡を開けたときに影になることもありません。裏がキャビネットになっているので洗面周りの細々とした物もすっきり収納可能です。
浴室は白を基調にダークブラウンのアクセントパネル。落ち着いた雰囲気でリラックスできそうですね。浴室換気乾燥機が付いているのでお天気を気にすることなく洗濯機を回せますよ。
最後はバルコニーへ…
奥行きがなくコンパクトですが物干し金具が付いていてお洗濯物は干せそうです。ただし正面の建物が近いのでプライバシーが気になるかも。そんな時に浴室換気乾燥機のありがたみを感じますね♪
・
以上で中野坂上マンションのご案内を終わります。
いかがでしたでしょうか??
西新宿五丁目駅から徒歩5分のマンションです。
リノベーション済みという事で室内はとてもキレイですよ (っ・ω・)っ
内見のご予約やご質問などございましたらお気軽にお問い合わせくださいませ。
ご連絡お待ちしております。
□□□□□□□□□□□□□□□□□□□□□□□□□□□□□□□□□□□□□□□
★★★【中野坂上マンション】周辺のハザードマップをCHECK!!★★★
お部屋のご購入前に…!周辺のハザードマップをチェックしておきませんか!
中野坂上マンションのハザードマップは★こちらから…どうぞ★
□□□□□□□□□□□□□□□□□□□□□□□□□□□□□□□□□□□□□□□
弊社、不動産Agent 六棒株式会社では、
□リノベーションマンションはほぼ全て仲介手数料無料!
□その他一般仲介物件は仲介手数料20%~30%OFF!
にてお取り扱いしております!※弊社の「Agent Fee=仲介手数料」についてはご案内、ご面談の際に営業担当者よりご説明いたします!
なるべく沢山のお部屋をホームページに掲載したいと思っておりますが、時間的成約もございますので、残念ながらご紹介できるお部屋の一部しか掲載できておりません。
このホームページに掲載中のお部屋、その他サイト等で気になるお部屋、街を歩いていて気になったマンション等々ございましたら是非、弊社営業部までご相談ください!
~不動産Agent 六棒株式会社の特徴~
・一般仲介物件の仲介手数料は20%~30%OFFにてご案内中です!
・リノベーションマンションについてはほぼ全て仲介手数料無料です!
・住宅ローンに自信あります!
・頭金10万円より購入できます。是非ご相談下さい!
・お部屋のご見学は車で2~3件まとめて案内します!
・物件数3000件以上、新築戸建、リノベ物件も多数ご用意しております!
過去に販売していたお部屋の概要 こちらのお部屋の販売は終了いたしました
| 価格 | -万円 |
| 面積 | 52.30㎡ |
| 間取り | 1bedroom(1LDK) |
| 管理費 | 月額14,300円 修繕積立金:月額14,000円 |
| 所在階 | 5階 |
| お問い合わせ・ご内見のご予約はこちらからお気軽にどうぞ | |
こちらが今回ご紹介のお部屋の間取り図(少し実際のお部屋と違いがあります)
※間取り図は別タブで開きますので、確認しながらご覧いただく事が出来ます。
□□□□□□□□□□□□□□□□□□□□□□□□□□□□□□□□□□□□□□□
★★★【中野坂上マンション】周辺のハザードマップをCHECK!!★★★
お部屋の記事を読む前に…!周辺のハザードマップをチェックしておきませんか!
中野坂上マンションのハザードマップは★こちらから…どうぞ★
□□□□□□□□□□□□□□□□□□□□□□□□□□□□□□□□□□□□□□□
お部屋は5階、間取りは1LDK、専有面積は52.30㎡。ゆったりとした造り、収納豊富な印象ですね。では、早速行ってみましょう。
エレベーターを5階で降りると、内階段のホールに出ました。エレベーターを待ちきれない時は階段を駆け下りる事になりそうです(^^;)
廊下は内廊下。天候にも左右されず、防犯的にもGOODです♪♪
それではお邪魔します…
中に入ると正面のドアまで廊下が伸びていました。薄い色のフローリングや白木のような建具を使っていて、明るくナチュラルな印象です。
振り返って玄関の様子。
外側は黒っぽいドアも内側は白く塗られていました。床も黒い保護シートが貼ってありますが、その下は白に近い色ですよ。
姿見の付いた扉を開けると、そこはシューズインクローゼット!靴だけでなく、ゴルフバッグなどの大きい物も置いておく事が出来ますね。人感センサーは、中に入っただけで自動的にライトを点けてくれる優れもの。いつも明るい玄関に帰って来られるって、いいものですよね(^^)
廊下の扉を開けると、今度はウォークインクローゼット!このまま使うのはもったいない広さなので、衣装ケースやラックを使って更なる収納力のアップを目指しましょう!
では、正面ドアを開けてお部屋の方へ…
こちらはリビング・ダイニング・キッチン+洋室。
洋室とLDKの仕切り戸を開けて、ひとつながりのお部屋にしています。大きな窓がずらりと並ぶ、明るいお部屋です。
色使いがシンプルで、家具やカーテンなど選べる幅が広がりそうです。自分好みにしていく過程が楽しいんですよね♬
奥の洋室は寝室になると思いますので、普段は広いワンルームのような使い方をして来客時には扉を閉める。そんな使い方が良さそうです。
天井にはダクトレールが設置されていて照明の位置を移動出来ますので、レイアウトが照明に制約される事もありません。ニッチカウンターは、PCデスクとしても使えそうです。
壁部分に収納された仕切り扉を閉めれば…
本来の洋室に戻ります。
窓の外には、間取り図によればバルコニーがあるはずなんですが・・・ありませんでした^^;)収納は部屋幅いっぱいを使った大きなクローゼット。全面が開くのでとても使い易そうです。
ちなみに、仕切り戸を閉めた時のLDK。落ち着けるいい感じの広さです。
今度はキッチンを…
L字型の調理台。作業スペースがとり易かったり、作業効率が良かったりといろいろメリットがあります。
調理台の下全てを使っていて収納も豊富。
コーナーは出し入れがしやすいように、扉が広く開くようになっていました。使う側に立って考えてくれているんですね。
水栓は浄水機能付きシャワー水栓。お料理にお茶にと、気軽に美味しいお水を使う事が出来ます。ただし、氷は水道水の方がいいらしいですよ。
コンロの右側にもスペースがあるのが嬉しいですね。スペースに余裕があるとほんと効率上がります。
三口コンロに片面焼きグリルと調理器具も充実。
キッチンには珍しい大きな窓。もちろん採光もありますが、やはり換気での活躍を期待してしまいます。とはいえ換気扇もお忘れなく!
調理台横には冷蔵庫スペース、後方には家電ラックや食器棚などのスぺ―スがたっぷりとってありました。これなら窓を塞いでしまう事もありませんね。
では、いちど廊下に戻って洗面室へ…
こちらには洗面台、浴室、トイレ、洗濯機スペースがまとまっています。
まずは三面鏡付きの洗面台。
収納が洗面台下と三面鏡裏に。細かい物が多くなりがちな洗面周りには、三面鏡裏のキャビネットがピッタリです。
洗面ボウル周りやアクセントのタイルがお洒落ですね。
次は浴室です。
切替?押してみると照明が温かみのある色に変わりました。気分によって雰囲気を変えられるんですね♬
追い焚き機能はお湯を一定の温度に保ってくれたり、もう少し熱く!なんて要望にも応えてくれます。長風呂して湯冷めしたりなんて心配もありません。
浴室乾燥機は浴室の換気の他に、お洗濯物乾燥やヒートショック予防など様々な働きをしてくれます。せっかくですから、どんどん使っていきましょう!
次はトイレへ…
もちろん温水洗浄便座付き。INAX製のシャワートイレです。
それでは最後にバルコニーのご紹介を…
下まで柵になった開放的なバルコニーです。日射しもたっぷりですね。
(間取り図とは少し違っています)
バルコニー正面は隣のマンションが意外と近め。少し気になるかもしれませんね。
左右は開いているので風通しは問題なさそうです。東方向には新宿のビル群も見えますよ。
・
以上で中野坂上マンションのご案内を終わります。
いかがでしたでしょうか??
西新宿五丁目駅から徒歩5分のマンションです。
リノベーション済みという事で室内はとてもキレイですよ (っ・ω・)っ
内見のご予約やご質問などございましたらお気軽にお問い合わせくださいませ。
ご連絡お待ちしております。
□□□□□□□□□□□□□□□□□□□□□□□□□□□□□□□□□□□□□□□
★★★【中野坂上マンション】周辺のハザードマップをCHECK!!★★★
お部屋のご購入前に…!周辺のハザードマップをチェックしておきませんか!
中野坂上マンションのハザードマップは★こちらから…どうぞ★
□□□□□□□□□□□□□□□□□□□□□□□□□□□□□□□□□□□□□□□
弊社、不動産Agent 六棒株式会社では、
□リノベーションマンションはほぼ全て仲介手数料無料!
□その他一般仲介物件は仲介手数料20%~30%OFF!
にてお取り扱いしております!※弊社の「Agent Fee=仲介手数料」についてはご案内、ご面談の際に営業担当者よりご説明いたします!
なるべく沢山のお部屋をホームページに掲載したいと思っておりますが、時間的成約もございますので、残念ながらご紹介できるお部屋の一部しか掲載できておりません。
このホームページに掲載中のお部屋、その他サイト等で気になるお部屋、街を歩いていて気になったマンション等々ございましたら是非、弊社営業部までご相談ください!
~不動産Agent 六棒株式会社の特徴~
・センチュリー21加盟店です!
・一般仲介物件の仲介手数料は20%~30%OFFにてご案内中です!
・リノベーションマンションについてはほぼ全て仲介手数料無料です!
・住宅ローンに自信あります!
・頭金10万円より購入できます。是非ご相談下さい!
・お部屋のご見学は車で2~3件まとめて案内します!
・物件数3000件以上、新築戸建、リノベ物件も多数ご用意しております!
過去に販売していたお部屋の概要 このお部屋の販売は終了いたしました。
| 価格 | -万円 |
| 面積 | 38.59㎡ |
| 間取り | 1bedroom(1LDK) |
| 管理費 | 月額13,100円 修繕積立金:月額9,500円 |
| 所在階 | 8階 |
| お問い合わせ・ご内見のご予約はこちらからお気軽にどうぞ | |
クリックして頂くと別タブで開きますので、間取り図と見比べながら進んでいきましょう!!
エレベーターからお部屋までは内廊下です。
雨や風の影響を受けないので、雨の日も安心ですね!
外から見えない内廊下は必然的に外部からの視線を遮るので、プライバシーや防犯性も向上します。
外から見られていないという安心感は意外に住んでみると快適に感じられる方が多いようですよ!
玄関先にはモニター付きのインターフォンが付いています。
お部屋の中から廊下の様子を確認できるので、防犯的にも安心できます。オートロック付きのマンションではありますが、念の為にもまずは相手の顔を確認する癖は付けましょう!
それでは中に入っていきましょう。
おじゃましまーす!!
ハーフタイプのシューズボックスは上部を棚として使うことが出来ます。
鍵や帽子を置いておくことが出来ますよ。お花や写真等を飾っても良いかもしれませんね。
照明には人感センサーが付いているので、オンオフは自動です。消し忘れが無いので経済的でもあります。
奥へと進みましょう。
こちらは約10帖のリビング・ダイニング・キッチンです。
三角形のような形をしていますね!
特長てきなお部屋なので、家具の配置などは少し工夫が必要になるかもしれません。
窓の部分が多いのでとても明るいお部屋になっていますよ!
角には洗濯機置場があります。扉が付いているので来客時でも生活感は隠せます。
次はキッチンです。
浄水機能付きの水栓はシャワーヘッドになっています。シンクの隅々まで水を流すことが出来るのでお掃除もラクラクですね。大きなお鍋などに水を注ぐ際にも容器を傾けなくていいので結構助かります。
コンロは3口、グリルが付いています。3口あれば大抵のお料理には対応できそうですね。グリルもあるので鬼に金棒です!
収納スペースも十分ですね。
シンク下は棚やカゴ等を使ってスッキリとまとめたいです。
玄関に戻ってこちらのドアを開けましょう。
こちらは洗面室ですね。
大きな洗面ボウルの洗面化粧台です。
水栓はグースネックと呼ばれるタイプですね。ガチョウの首に似ていることが名前の由来で、不同な人気を誇るデザインです!
ミラーの両サイドには小物を入れて置けるカゴも付いているので、散らかりがちな水廻りもすっきりと綺麗に保つことが出来そうです。
洗面台のお隣はトイレです。
もはや無くてはならないウォシュレット付きです。
LIXILのトイレは個人的にデザインが気に入っているので、とてもオススメです。
トイレには吊戸棚も付いているので、トイレットペーパーのような消耗品も掃除用具もまとめて収納することが出来ますよ。
もちろんトイレは新規交換済みですよ!
続いてはお風呂です。
お風呂には浴室換気乾燥機能付きです。
浴室乾燥機には「乾燥」「換気」「暖房」「涼風」の4つの機能が備わっています。「乾燥」と「換気」以外はほとんど使わないという家庭も多いようですが、「暖房」と「涼風」もとても便利な機能です。季節に応じて、ぜひ活用してみてくださいね。
追い焚き機能も付いています。
暑い夏場はシャワーだけで済ませる人でも、涼しくなるとゆっくりと温かいお湯につかりたくなるでしょう。追い炊き機能があればいつでも温かいお風呂に入ることができます。
また、冷え性の女性の場合、帰宅後にお風呂に入っても就寝前にはすっかり身体が冷えていることもあるでしょう。追い炊き機能があれば寝る前にお湯に入って再び身体を温めることもできます。
湯船に浸かっている視点です。何となく撮ってみただけなので、特に意味はありませんよ!
次はリビングの隣のこちら。
約7帖の洋室になっています。
こちらのお部屋も三角形ですね。四角形でないお部屋は角に家具などを置いて、なるべく生活スペースを四角くするのがポイントです。
クローゼットも付いています。
収納用の家具を置かなくても良いので、お部屋の中を広く使うことが出来ますよ!
別途ラック等を入れれば収納力も倍増します。
そのままバルコニーへ出てみましょう。
間取り図よりなんだか狭い気がしますが、、、大丈夫です。バルコニーは2つありますので!!
キッチンの横から出てみましょう。
2重サッシになっていますね。山手通り沿いのマンションですが2重サッシがあれば車の音もかなり軽減されますよ!断熱効果もあるのは嬉しいですよね。
こちらが2つ目のバルコニーです。
奥行はありませんが、幅広いバルコニーです。
西向きなので、晴れていれば午後から太陽の光が当たると思います。
さすが8階!眺望も問題なさそうです。
方角的には富士山が見えても良さそうなのですが。。。。天気のいい日にまた確認してみますね!!
では、以上で中野坂上マンションのご案内を終わります。
いかがでしたでしょうか??
西新宿5丁目駅より徒歩5分、アクセスも良いですよ。
リノベーション済みという事で内装はピカピカです。
内見のご予約やご質問などございましたらお気軽にお問い合わせくださいませ。
ご連絡お待ちしております。
弊社、不動産Agent 六棒株式会社では、
□リノベーションマンションはほぼ全て仲介手数料無料!
□その他一般仲介物件は仲介手数料20%~30%OFF!
にてお取り扱いしております!※弊社の「Agent Fee=仲介手数料」についてはご案内、ご面談の際に営業担当者よりご説明いたします!
なるべく沢山のお部屋をホームページに掲載したいと思っておりますが、時間的成約もございますので、残念ながらご紹介できるお部屋の一部しか掲載できておりません。
このホームページに掲載中のお部屋、その他サイト等で気になるお部屋、街を歩いていて気になったマンション等々ございましたら是非、弊社営業部までご相談ください!
~不動産Agent 六棒株式会社の特徴~
・センチュリー21加盟店です!
・一般仲介物件の仲介手数料は20%~30%OFFにてご案内中です!
・リノベーションマンションについてはほぼ全て仲介手数料無料です!
・住宅ローンに自信あります!
・頭金10万円より購入できます。是非ご相談下さい!
・お部屋のご見学は車で2~3件まとめて案内します!
・物件数3000件以上、新築戸建、リノベ物件も多数ご用意しております!
過去に販売していたお部屋の概要 このお部屋の販売は終了いたしました。
| 価格 | -万円 |
| 面積 | 39.93㎡ |
| 間取り | 1bedroom(1LDK) |
| 管理費 | 月額14,300円 修繕積立金:月額10,100円 |
| 所在階 | 2階 |
| お問い合わせ・ご内見のご予約はこちらからお気軽にどうぞ | |
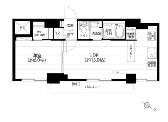
それでは、お部屋の間取りのご紹介です♪
1LDK、39.93㎡。事務所としての利用も可能です。
こちらのお部屋は、家具付きの販売になりますので、お部屋に置いてある家具はいただけます!!ペットの飼育も可能!!
こちらのドアが今回ご紹介させていただくお部屋です。インターフォンはカメラ付き!防犯面もしっかりと。
さっそくお部屋を見ていきましょう♪♪
玄関を開けると、 フルリノベーションを終え綺麗に生まれ変わった玄関がお出迎えです☆玄関スペースには人感センサーがついているので、自動でパッと明かりもつきます。荷物を抱えている時など、助かりますね。
玄関入ってすぐ右手にカウンターが設置されています。お気に入りのインテリアを飾って華やいだ空間にしちゃいましょう♫カウンター下は、傘置場でしょうか。
お隣には、シューズインクローゼット。トールサイズで大容量☆可動式の棚なので、靴のサイズに合わせてご自由にアレンジしてください。
それでは、リビングダイニングへ♪♪
リビングダイニングキッチンは、約13帖。横長の長方形のお部屋です。エアコンも設置済みです。スタイリッシュなお部屋でテンションがあがります (●´∀`)
家具付き販売のお部屋のため、こちらのステキな家具もいただけます!!お部屋にぴったりのステキなインテリア♪♪
木調のパネルで優しい雰囲気の壁付きシステムキッチン。
キッチン横に窓が有りますので、明るいキッチン。
3つ口コンロはお料理好きの方には嬉しいですね♪シンクは大きめで使い勝手◎浄水機能付きの水栓でうれしい設備。
キッチンの横がカウンターになっています。調味料や調理器具置場にいかがでしょうか。
キッチンは上下に収納があり調理道具がたくさん入れられそうです♪
キッチンの後ろにロールスクリーンがあります。開けてみると、洗濯機置場。
洗剤等を置く棚も設置され、充実です。
キッチンには、カウンター☆こちらのカウンターがこのお部屋一番の特徴です♪♪スタイリッシュな雰囲気を作り出す設備。大きなカウンターですので、写真の様にこちらでお食事をいただけます。後片付けも楽ちんです(o´∀`ノ
洋室は、約6帖。ベッドルームにピッタリです。開口部は北東向きです。
壁には、エコカラットで装飾が施された部分があります。やっぱりスタイリッシュですね♪♪
大きな可動式棚の収納も設置されています。お気に入りのDVD、CD、書籍をずらーっと並べて飾りたいですね (●´∀`)
こちらのお部屋の収納は、ウォークインクローゼット!『収納は多くても困らない!!』間違いなしです。
リビングダイニングキッチンと洋室とはスライド式のドアで仕切られているので、開けて使えば、リビングダイニングキッチンと一体化したお部屋としても使えます(´∀`*)
水回りを見ていきます♫
リビングダイニングキッチンから出入りする水回りを集めた洗面室です。段差も無くて、移動もスムーズ♪♪左手にトイレ、正面に洗面台、右手にバスルームの並びになっています。
ウォシュレット付きのトイレです。グレーのクロスでオシャレなトイレ。
上部には扉付きの棚があるので、ストック品の収納や消臭剤を置くスペースとして利用してみて下さい♥♡
真っ白で清潔感たっぷりの洗面台。大きな一枚鏡です(*´˘`*)♡
右の壁には、収納棚。歯ブラシから洗顔フォームまでゴチャゴチャ散らかりがちな洗面まわりの物もスッキリお仕舞いただけます♪♪
バスルームは、やさしい風合いの木調のパネル☆ミラー横のポケットにシャンプーボトルなどの小物をしまえば見た目も使い勝手もバッチリ◎
追焚機能、浴室乾燥機や暖房が付いており、快適なバスタイムを過ごしていただけそうです♬
バルコニーは、3.32㎡。北東向きのバルコニー。少し狭いでしょうか。
2階ですが、バルコニーからの景色はひらけています。お隣が一軒家、お庭の部分です。
いかがでしたでしょうか?
ご質問等ございましたらお気軽にご連絡ください!
皆様のご連絡心よりお待ちしております♪
過去に販売していたお部屋の概要 このお部屋の販売は終了いたしました。
| 価格 | -万円 |
| 面積 | 39.93㎡ |
| 間取り | 1bedroom(1LDK) |
| 管理費 | 月額14,300円 修繕積立金:月額10,100円 |
| 所在階 | 6階 |
| お問い合わせ・ご内見のご予約はこちらからお気軽にどうぞ | |
間取りのご紹介です。1LDK、39.93㎡。6階。夜景がキレイなお部屋です♪♪
ゆとりの1人暮らしといったイメージでしょうか(●´∀`)ペットも一緒に暮らせます。(細則有り)
こちらの物件は、家具付きの販売となる物件です!!家具の方もチェックしてみてくださいね。
扉を開けると フルリノベーションを終え綺麗に生まれ変わった玄関がお出迎えです☆一部すりガラスになっているドアの向こうから光が差し込む玄関。
玄関の右手には天井まで続くトールサイズのシューズボックスがあります。嬉しい大容量♪♪棚は可動式になっていて靴のサイズにあわせて調節できます。ブーツの収納もOK♪♪
お隣は、洗濯機置場です☆しっかりと扉がついていますので、生活感を隠すことができて助かります(*´∀`*)急なご来客も問題なし!!
上部には、収納棚があるので、ストック品の収納も完璧です♪♪
それではリビングダイニングキッチンを見ていきましょう♪♪
お部屋にはTVモニター付きのインターホンが設置されていて、セキュリティもバッチリ♫
リビングダイニングキッチンは、約10.2帖。すらりとした長方形のお部屋です。エアコン設置済みです(o´∀`ノ改めまして、こちらの物件は、家具付きの販売なのでソファもテーブルも含まれています(*´˘`*)♡
開口部は北東向きの窓が2つ♪♪明るさ充分で開放的です。
キッチンを見てみます。キッチンは、お部屋にあわせた清潔感のある白いシステムキッチンです♪♪
キッチンは上下に収納があり調理道具がたくさん入れられそうです♪
コンロは3口。シンプルな造りのキッチンなので、お手入れなどはしやすそうです☆
こちらのお部屋には大型のクローゼットが設置されています♪奥行きもしっかりで収納力バツグン☆長いハンガーパイプにはたくさんの洋服を掛けられそうです(´∀`*)
一番奥の北西の壁は、木調のアクセントクロスになっていてお部屋に優しい印象を与えます♫
リビングダイニングキッチンのお隣は、サニタリールームです。段差もありませんので移動もスムーズです。
左手に洗面台☆洗面台は、鏡の裏が収納になっていて、細かいもので溢れがちな洗面周りがスッキリ片付いて便利です♪シャワーヘッドも嬉しいです (●´∀`)

その奥がトイレです☆上部には、扉付の収納棚があるので、ストック品の収納もバッチリです♪♪トイレと洗面室とは、扉が設置されていません。
バスルームは、優しい木調のパネル☆ゆっくり大きなバスタブにつかって疲れを癒せそうです♪♪追い焚き機能付きでいつでも暖かいお風呂に入れます。
横には棚も付いているので小物を置くスペースもあります☆モザイクパターンの床は、水はけが良く、すばやく乾燥します。
浴室乾燥機能が付いています。雨の日でも安心してお洗濯ができますよ(*´∀`*)
キッチン奥の洋室です♫ベットルームですね。広さは、約4.5帖。こちらのお部屋も北東向きの窓が設置されています。
小さめですが、奥行きのしっかりしたクローゼットがあります♪♪バーも付いているので、コート等の衣類の収納にも良いですね♪♪
それでは、最後にバルコニーに出てみます。北東向きのバルコニーです。ちょっと狭いですが、工夫してお洗濯物を干したいです(´∀`*)
眺望はと言いますと、じゃじゃーん!!副都心がドーン!!夜になると夜景がステキとのこと(*´˘`*)♡
いかがでしたでしょうか。
新宿からほど近くのアクセスの良さ、仕事に遊びにパワフルな方におススメです
(●´∀`)
内見のご希望、ご質問などございましたら、![]()












































































































































































































































弊社 公式HP
六棒総合研究所
掲載予定物件
価格変更と販売終了物件
ハザードマップ検索
適合証明書.jp
Instagram