・
□□□□□□□□□□□□□□□□□□□□□□□□□□□□□□□□□□□□□□□
いつも弊社ホームページをご覧頂き誠にありがとうございます。
サンハイツ両国はお陰様で販売を終了致しました。弊社問合せフォームにてご要望頂けましたら、当お部屋でキャンセル等が発生した場合、他のお部屋が販売になりました際にご紹介させて頂きます。
不動産Agent 六棒株式会社
TEL:03‐5413‐5336
□□□□□□□□□□□□□□□□□□□□□□□□□□□□□□□□□□□□□□□
・
今回ご紹介するのはリノベーションマンション『サンハイツ両国』です。
■アクセス
JR総武中央線「両国」駅徒歩11分
都営大江戸線「両国」駅徒歩6分
両国と言って思いつくのは何と言っても『両国国技館』ではないでしょうか。お相撲はもちろんの事、スポーツ系からゲーム、販売イベントまで幅広い用途で使用される施設です。知っている方もいらっしゃるかもしれませんが、国技館の地下は日本最大級の焼き鳥工場になっているんですよ。焼き鳥なのは、鶏が「二本足で立ち、手を着かない」ことから相撲界で縁起物とされているからだそうです。
・
国技館はJR両国駅の目の前。周辺にはお相撲の街らしくちゃんこ屋さんが多く並んでいます。相撲部屋も多いので街でお相撲さんに出会う事も珍しくありません。
JRの駅から歩く時は国技館横から「江戸東京博物館」横の桜並木を通るのがお勧めです♬
さて、今回のマンションへの最寄り駅は大江戸線の「両国」駅。大江戸線は乗り入れが無いせいか遅延などが少ない印象です。ただ、乗った事がある方はご存知かと思いますが、車両が小さくシートに座っていると前の人が思いのほか近くてビックリした記憶があります(笑)
駅からは清州通りを北へ、蔵前橋通りを東へ曲がればもうすぐです。この辺りは関東大震災後に区画整理をしているので、道が東西南北に碁盤の目の様に走っていてとてもわかり易いですよ。
こちらが『サンハイツ両国』。落ち着いた色合いの外観ですね。スーパーやコンビニも徒歩5分以内ととても便利です。
鉄骨鉄筋コンクリート造8階建て49戸。昭和54年11月築。
平成25年に耐震補強工事済み。『耐震基準適合証明書』取得可能!
・駐車場 月額20,000円 (空き状況はご確認下さい)
・バイク置場 無
・駐輪場 無料 (空き状況はご確認下さい)
管理は管理会社による日勤管理。綺麗に掃除されていて管理が行き届いている感じがします。
ここで間取り図のご紹介です。
※間取り図は別タブで開きますので、確認しながらご覧いただくことができます。
今回ご紹介するお部屋は2階、専有面積37.80㎡の1LDK。お一人暮らしの方にお勧めのお部屋です。では、早速行ってみましょう!
玄関照明は人感センサー付き。中に入るだけで自動的にライトを点けてくれるので、暗い中手探りでスイッチを探す必要もありません。いつでも明るい玄関が迎えてくれるのって 嬉しいですよね。シューズボックスは収納力のあるトールタイプ。
トイレはINAX製の洗浄機能付き。トイレットペーパーや掃除道具を入れるのに便利な吊り戸棚も付いています。
洗面室には洗面化粧台の他に洗濯機スペースと浴室がまとまっていて脱衣所も兼ねています。洗濯機スペースには吊り戸棚が付いているので、洗濯洗剤などのランドリー用品はこちらへどうぞ。
1216サイズの浴室は白を基調にモノトーンでまとめた明るい雰囲気。追い焚き機能や浴室換気乾燥機など便利機能も充実しています!
こちらは約4帖の洋室。
広いわけではありませんが、入口にデッドスペースを作らない引き戸を使用したり、クローゼットや収納棚などを設置したりと、お部屋を無駄なく使う工夫がされています。
こちらは約10.8帖のリビング・ダイニング・キッチン。
西向きのバルコニーに面したお部屋です。横長のリビング・ダイニングにキッチンがくっついたような形。よくある縦一列タイプではないのでレイアウトを考える楽しみもありそうですね。寛ぎの空間をスッキリきれいに保つのに役立つリビング収納付き。
フローリングやクロスの色使いがシンプルなのでカーテンや家具なども合わせやすそう。モノトーンを使ってモダンな感じにしたり、パステルカラーでポップで明るい雰囲気にしてみたり・・・お好きな色をプラスして自分好みのお部屋を創っていきましょう!
キッチンは人気のカウンタータイプ。
解放感がありリビングダイニングとの一体感が特徴のキッチンです。なんといっても嬉しいのは食器洗浄乾燥機!!!誰だってお腹いっぱいで幸せな時に洗い物なんてしたくありませんよね。水栓は浄水機能一体型なので、切り替えるだけで美味しいお水が使いたい放題ですよ♬
・
以上でサンハイツ両国のご案内を終わります。
いかがでしたでしょうか??
両国駅から徒歩6分のマンションです。
リノベーション済みという事で室内はとてもキレイですよ (っ・ω・)っ
内見のご予約やご質問などございましたらお気軽にお問い合わせくださいませ。
ご連絡お待ちしております。
弊社、不動産Agent 六棒株式会社では、一般仲介物件は仲介手数料20%~30%OFF!
にてお取り扱いしております!
なるべく沢山のお部屋をホームページに掲載したいと思っておりますが、時間的成約もございますので、残念ながらご紹介できるお部屋の一部しか掲載できておりません。
このホームページに掲載中のお部屋、その他サイト等で気になるお部屋、街を歩いていて気になったマンション等々ございましたら是非、弊社営業部までご相談ください!
~不動産Agent 六棒株式会社の特徴~
・一般仲介物件の仲介手数料は20%~30%OFFにてご案内中です!
・住宅ローンに自信あります!
・頭金10万円より購入できます。是非ご相談下さい!
・お部屋のご見学は車で2~3件まとめて案内します!
・物件数3000件以上、新築戸建、リノベ物件も多数ご用意しております!
過去に販売していたお部屋の概要 こちらのお部屋の販売は終了いたしました
| 価格 | -万円 |
| 面積 | 33.54㎡ |
| 間取り | 1bedrooms(1LDK) |
| 管理費 | 月額7,250円 修繕積立金:月額7250円 |
| 所在階 | 6階 |
| お問い合わせ・ご内見のご予約はこちらからお気軽にどうぞ | |
ここで間取り図のご紹介です。
※間取り図は別タブで開きますので、確認しながらご覧いただくことが出来ます。
今回ご紹介するお部屋は6階、専有面積33.54㎡の1LDK。お一人暮らしの方にお勧めのお部屋です。では、早速行ってみましょう!
玄関には収納力のあるトールタイプのシューズボックス。下部にはフットライトが付けられ玄関の足元を柔らかく照らしてくれています。このスペースがあると濡れた靴が乾くまで置いておけたりして便利なんですよね。足の付いた網などを使うと乾きやすくていいらしいですよ。
ホールの扉を開けると洗濯機スペース!洗面室のイメージがありますが最近は他の場所でもよく見かけます。ランドリー用品などが置ける収納棚付き。
こちらは約9.2帖のリビング・ダイニング・キッチン。
北東二面をバルコニーに面した明るいお部屋です。
キッチンは人気のカウンタータイプ。
コンロ前にだけ壁があるセミオープンで、解放感と使い勝手のバランスがとれたキッチンです。横の窓は採光とともにキッチンでは重要な換気面でも大いに役立ってくれそうですね。LIXIL製のシステムキッチンは食器洗浄乾燥機付きなので、洗い物はお任せして食後は
のんびり過ごしましょう!
こちらは約4.5帖の洋室。
南・東の二面に窓があるお部屋です。オープンの収納棚とウォークインクローゼット付き!収納家具を置く必要もないのでお部屋を広く使えますね。
こちらは仕切り扉を全開にしてLDKとつなげた様子です。
合わせて約15帖のワンルーム!扉は吊り下げ式なので床にレールもなく一体感がありますね。自然の木目を生かした温かみのある雰囲気で、とても居心地が良さそうです。
3方向を窓に囲まれることになるので、壁際に置くことの多い家具の配置には工夫が必要かもしれません。正直東側は隣の建物が近く採光や眺望があまり望めないので、つぶすならこちらがおススメです。
洗面室には洗面化粧台、トイレ、浴室がまとまっていて脱衣所を兼ねています。洗面化粧台は身だしなみチェックに便利な三面鏡付。鏡の間にLED照明が付けられていて鏡を開いても影になることがありません。よく考えられていますね。裏はキャビネットになっているので洗面周り特有の細々としたものをスッキリ片付けることが出来ますよ。
浴室は白を基調にダークブラウンの木目調パネルをアクセントに使用。清潔感の中に落ち着きと高級感を与えてくれています。追い焚き機能や浴室換気乾燥機などの便利機能も完備!最近は急な雨も多いので、天気を気にせずに洗濯できるのは嬉しいですよね。
トイレはTOTO製の洗浄機能付き。掃除道具の収納やトイレットペーパーのストックなどに便利な吊戸棚も付いています。
それでは最後に北側のバルコニーへ出てみましょう。
北向きということで陽当たりはほぼ期待できませんが眺望は良好!北東方向には「東京スカイツリー」も良く見えます。写真では小さく見えますが直線距離で1.5kmくらいなのでなかなかの迫力。夜になるといろいろな色にライトアップされてとても綺麗ですよ。最近は中止が続いていますが、もしかすると北西方向には隅田川の花火も見えるかもしれません。
・
以上でサンハイツ両国のご案内を終わります。
いかがでしたでしょうか??
両国駅から徒歩6分のマンションです。
リノベーション済みという事で室内はとてもキレイですよ (っ・ω・)っ
内見のご予約やご質問などございましたらお気軽にお問い合わせくださいませ。
ご連絡お待ちしております。
弊社、不動産Agent 六棒株式会社では、
□リノベーションマンションはほぼ全て仲介手数料無料!
□その他一般仲介物件は仲介手数料20%~30%OFF!
にてお取り扱いしております!※弊社の「Agent Fee=仲介手数料」についてはご案内、ご面談の際に営業担当者よりご説明いたします!
なるべく沢山のお部屋をホームページに掲載したいと思っておりますが、時間的成約もございますので、残念ながらご紹介できるお部屋の一部しか掲載できておりません。
このホームページに掲載中のお部屋、その他サイト等で気になるお部屋、街を歩いていて気になったマンション等々ございましたら是非、弊社営業部までご相談ください!
~不動産Agent 六棒株式会社の特徴~
・一般仲介物件の仲介手数料は20%~30%OFFにてご案内中です!
・リノベーションマンションについてはほぼ全て仲介手数料無料です!
・住宅ローンに自信あります!
・頭金10万円より購入できます。是非ご相談下さい!
・お部屋のご見学は車で2~3件まとめて案内します!
・物件数3000件以上、新築戸建、リノベ物件も多数ご用意しております!
過去に販売していたお部屋の概要 こちらのお部屋の販売は終了いたしました
| 価格 | -万円 |
| 面積 | 45.36㎡ |
| 間取り | 2bedrooms(2LDK) |
| 管理費 | 月額9,800円 修繕積立金:月額9,800円 |
| 所在階 | 2階 |
| お問い合わせ・ご内見のご予約はこちらからお気軽にどうぞ | |
ここで間取り図のご紹介です。
※間取り図は別タブで開きますので、確認しながらご覧いただく事が出来ます。
今回ご紹介するお部屋は2階、間取りは2LDK、専有面積は45.36㎡。おひとり暮らしやDINKSの方にお勧めのお部屋です。

玄関を入った所には飾り棚を設置。「家の顔」である玄関をセンス良く飾ってお客様をお出迎えしましょう!玄関から廊下にかけては温かみのある色の大理石が貼られ、高級感のある仕上がりになっています。

洗面室には洗面化粧台の他に、洗濯機スペースと浴室がまとまっていて、脱衣所も兼ねています。洗面化粧台は身だしなみチェックに便利な三面鏡付き。上部に付いた照明のおかげで影になることもありません。三面鏡の裏はミラーキャビネットになっていて、洗面周りに溢れがちな細々としたものもスッキリと片付けられますよ。

浴室に付けられた横長の鏡は浴室内を広く見せるのに一役買っています。追い焚き機能付きユニットバスはボタンひとつでお風呂を沸かし、そのまま保温もしてくれるのでいつでも温かいお風呂に入れますよ。冷めてもお湯を足すわけではないので節水にも!浴室換気乾燥機付きで、天気を気にせず洗濯が出来るのも嬉しいですよね。

トイレはINAX製の洗浄機能一体型。トイレットペーパーなどのストックに便利な吊戸棚も付いています。

こちらはキッチン脇の洋室。
窓の無いお部屋です。窓が無いというとネガティブに捉えがちですが、暗くて静かなので眠るには最適、寝室にピッタリってことですよね♬ 納戸として使うとしても、日が当たらないのはメリットになると思いますよ。クローゼットはオープンタイプ。風通しが良く湿気が籠ったりすることもありません。

こちらは南向きバルコニーに面した洋室。
入口にはデッドスペースを作らない引き戸を使い、部屋の広さを最大に使えるようにしています。ベッドなどの大きな家具を置く際には、その小さな差が置ける置けないの分かれ目になったりしますからね。こちらのクローゼットは引き戸付き。

こちらはリビング・ダイニング・キッチン。
南向きバルコニーに面したお部屋です。キッチン、ダイニング、リビングと並んだ、縦長でオーソドックスなレイアウト。結局この形が使いやすかったりするんですよね。幅も十分あって「テレビが近っ!」なんてこともなさそうです。

南東角部屋の二面採光ですが東側は隣の建物が近く眺望はありません。とはいえ、通風に関しては有ると無いとでは大違い。時節柄、換気って大事ですからね。

キッチンは開放的なカウンタータイプ。リビングダイニングとのコミュニケーションが取りやすく、調理中も会話しやすいキッチンです。ご家族やご友人と一日の出来事やバカ話で盛り上がりながら、ワイワイお料理するのは楽しそうですね♬ 三口コンロ、グリル、食器洗浄乾燥機、浄水機能一体型水栓、十分な作業スペースと設備も充実しています。
・
以上でサンハイツ両国のご案内を終わります。
いかがでしたでしょうか??
両国駅から徒歩6分のマンションです。
リノベーション済みという事で室内はとてもキレイですよ (っ・ω・)っ
内見のご予約やご質問などございましたらお気軽にお問い合わせくださいませ。
ご連絡お待ちしております。
弊社、不動産Agent 六棒株式会社では、
□リノベーションマンションはほぼ全て仲介手数料無料!
□その他一般仲介物件は仲介手数料20%~30%OFF!
にてお取り扱いしております!※弊社の「Agent Fee=仲介手数料」についてはご案内、ご面談の際に営業担当者よりご説明いたします!
なるべく沢山のお部屋をホームページに掲載したいと思っておりますが、時間的成約もございますので、残念ながらご紹介できるお部屋の一部しか掲載できておりません。
このホームページに掲載中のお部屋、その他サイト等で気になるお部屋、街を歩いていて気になったマンション等々ございましたら是非、弊社営業部までご相談ください!
~不動産Agent 六棒株式会社の特徴~
・一般仲介物件の仲介手数料は20%~30%OFFにてご案内中です!
・リノベーションマンションについてはほぼ全て仲介手数料無料です!
・住宅ローンに自信あります!
・頭金10万円より購入できます。是非ご相談下さい!
・お部屋のご見学は車で2~3件まとめて案内します!
・物件数3000件以上、新築戸建、リノベ物件も多数ご用意しております!
過去に販売していたお部屋の概要 このお部屋の販売は終了いたしました。
| 価格 | -万円 |
| 面積 | 45.87㎡ |
| 間取り | 2bedrooms(2LDK) |
| 管理費 | 月額9,900円 修繕積立金:月額9,900円 |
| 所在階 | 5階 |
| お問い合わせ・ご内見のご予約はこちらからお気軽にどうぞ | |
ここで間取り図のご紹介です。
※間取り図は別タブで開きますので、確認しながらご覧頂くことが出来ます。
今回ご紹介するお部屋は5階、間取りは2LDK、専有面積は45.87㎡。おひとり暮らし、又はDINKSの方にお勧めのお部屋です。では、早速行ってみましょう。
エレベーターで5階にきました。共用廊下はこのような昔ながらの雰囲気です。
玄関ドアもどこかノスタルジックな感じです!その雰囲気とは裏腹に、インターホンはカメラ付き!!ドアのカギは一か所ですので、来訪者が「ピンポーン」と鳴らした時の、インターホンのモニターチェックは欠かせませんね!
それでは玄関を開けてお部屋の中をご案内して行きましょう♪
こちらが玄関です。奥に開口部からの明るい光が見えます。
玄関自体も明るい色が用いられていて、実際よりも広い感じがします!
玄関照明には人感センサーが採用されています。玄関の照明の消し忘れ対策に有効です。省エネにもつながります!
お邪魔しまーす!!玄関から中へ入ります。
玄関入って正面が下足入れになります。観音開きの大容量の下足入れです。おひとり住まいでしたら、靴を収納し放題ですね!下足入れが小さいマンションが多い中、こちらのお部屋は珍しいですよ。
廊下を進んで行きます。
こちらのお部屋は玄関とリビングダイニングの間に扉がない設計です。
こちらがリビングダイニングです。広さ約7.5畳。2つの洋室にはリビングダイニングを通って出入りするかたちです。
現在のこのお部屋の家具レイアウトからはリビングダイニングをダイニングのみ、引戸で接しているお部屋をリビングとして想定していることが伺えます。
リビングダイニングの天井にはダクトレールが設置してあり、お好きな照明を簡単に増設可能です。
リビングダイニングと引戸で隣り合っている洋室に行ってみましょう!
約4.5畳の広さです。2人掛けのソファーと小さ目のテーブル、そしてテレビ台が置いてありました。こんな感じでリビングとして使うのもありですね!!
洋室側からリビングダイニングを見るとこのような感じです。
キッチンの色が空間のアクセントになっています。
キッチンはブルーっぽい木目調と白っぽい木目調の2色使いです。
ワークトップ下は引出し収納です。引出しだと奥の物が取り出しやすくて便利です。
吊戸棚も設置されておりますので、食器棚替わりに使えそうです。
コンロはガラストップでお掃除楽々。
右コンロは温度調節機能付き、左コンロは高温炒めが可能です!魚焼きグリルもありますよ♬
水栓は浄水機能付き。定期的にカートリッジの交換が必要ではありますが、ミネラルウォーターを買わなくてもよいのはとても楽です。
食器洗浄乾燥機も設置されています。
家事があまり…という方はフル活用しましょう!食器洗浄乾燥機を使って食器を洗うほうが、節水にもなるそうですよ。
こちらのお部屋は冷蔵庫をどこに置くのか選択肢が2つあります。
キッチンの左側のリビングダイニングスペースに置くか、キッチン内の凹の部分に置くか。器好きの方ならキッチン内の凹の部分に食器棚を置いて、リビングダイニング側に冷蔵庫を置く感じでしょうか…
もう一つの洋室をご案内しましょう♪♪
ドアが設置されている洋室は広さ約5.7畳。太陽の光が降り注ぐ、明るいお部屋です。
よーく見ると天井と壁でクロスの色が変えてあります。
建具も床も薄いグレー色です。金物の黒が良い仕事してます![]()
クローゼットは壁一面に設置されていて、洋服をしっかりと収納できます。
それではリビングダイニングに戻り、水廻りをご案内して行きます。
玄関側にある扉を開けると、そこはトイレです。
水廻り部分は、居室部分より床が一段高くなっています。リビングダイニング側から入る時は大丈夫かと思いますが、リビングダイニング側に出る時はうっかり段差があることを忘れないように注意しましょう!!
トイレです。床はグレー、壁はタイル調のクロスが貼られています。
ご覧の通りトイレ上部には吊戸棚が設置されており、トイレットペーパーの収納場所には困りません。温水暖房便座も完備です。
続いて洗面室をご案内します!
トイレの右側にあるのが洗面室の扉です。ドアをオープンしてみます!
内装はトイレと同じ床材とクロスで統一されています。
こちらが洗面化粧台です。白を基調にすると明るくて綺麗にみえます。
洗面化粧台下は開き戸収納と引出し収納が組み合わせてあり、デッドスペースができにくい造りになっていました。
三面鏡裏もしっかりと収納があります。
オーラルケアグッズや化粧品などなどがバッチリ納まります。
洗面の水栓は蛇口が引き出せるタイプです。
洗面化粧台右側にはちょっとしたものが置けるスペースが確保されています。
続いて浴室です。なんとTV付です。最近流行っているからかもしれませんが、浴室内が鬼滅カラーに見えてしまいます(^_^;)
浴槽は追い炊き機能付き。帰宅時間が違うお二人が住まうことになっても、追い炊き機能で入りたい時に温かいお風呂に入れますよ!
シャワーはスライドバーに設置されているので設置高さを変えられます。
鬼滅ファンにはたまらない、鬼滅カラー♡♡♡
浴室には浴室暖房乾燥機が設置されています。
外に干せない梅雨時や花粉の時期、洗濯物は浴室で乾かせますよ!!
最後にリビングダイニングに戻ってバルコニーを見てみましょう!
お部屋の幅と同じ幅のバルコニー。広さ約6.24㎡。格子手摺で通風も採光も最高!
高所恐怖症の方はちょっとつらいでしょうか…
目の前には建物がありますが、距離があり、高さも抜けてはいるので空が広く感じられます。晴れた日は気持ちよさそうです!!
以上でサンハイツ両国のご案内を終わります。
いかがでしたでしょうか??
両国駅から徒歩6分のマンションです。
リノベーション済みという事で室内はとてもキレイですよ (っ・ω・)っ
内見のご予約やご質問などございましたらお気軽にお問い合わせくださいませ。
ご連絡お待ちしております。
弊社、不動産Agent 六棒株式会社では、
□リノベーションマンションはほぼ全て仲介手数料無料!
□その他一般仲介物件は仲介手数料20%~30%OFF!
にてお取り扱いしております!※弊社の「Agent Fee=仲介手数料」についてはご案内、ご面談の際に営業担当者よりご説明いたします!
なるべく沢山のお部屋をホームページに掲載したいと思っておりますが、時間的成約もございますので、残念ながらご紹介できるお部屋の一部しか掲載できておりません。
このホームページに掲載中のお部屋、その他サイト等で気になるお部屋、街を歩いていて気になったマンション等々ございましたら是非、弊社営業部までご相談ください!
~不動産Agent 六棒株式会社の特徴~
・一般仲介物件の仲介手数料は20%~30%OFFにてご案内中です!
・リノベーションマンションについてはほぼ全て仲介手数料無料です!
・住宅ローンに自信あります!
・頭金10万円より購入できます。是非ご相談下さい!
・お部屋のご見学は車で2~3件まとめて案内します!
・物件数3000件以上、新築戸建、リノベ物件も多数ご用意しております!
過去に販売していたお部屋の概要 このお部屋の販売は終了いたしました。
| 価格 | -万円 |
| 面積 | 64.17㎡ |
| 間取り | 2bedrooms(2LDK) |
| 管理費 | 月額13,750円 修繕積立金:月額13,750円 |
| 所在階 | 4F |
| お問い合わせ・ご内見のご予約はこちらからお気軽にどうぞ | |
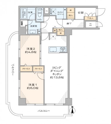
ここで間取り図とリノベーション内容のご紹介です。
間取り図は別タブで開きますので、確認しながらご覧頂く事が出来ます。
今回のお部屋は4階、間取りは2LDK、専有面積は64.17㎡。南西角部屋で陽当りも良さそうですね♬
■リノベーション内容
・フローリング新規張替え
・壁、天井クロス新規貼替
・建具、玄関収納等新規交換
・給水管、給湯管新規交換(専有部分)
・給湯器新規交換
・照明器具新規設置
・ノーリツ製洗面化粧台新規交換
・エアコン1基新規設置
・TOTO製洗浄便座付トイレ新規交換
・TOTO製追い焚き機能付きユニットバス新規交換(浴室換気乾燥機付き)
・クリナップ製システムキッチン新規交換(食器洗浄乾燥機付)
・TVモニター付きインターホン新規交換 …等
まずは玄関の様子です。入ってすぐ左にはフットライト付きのトールタイプのシューズボックスが設置され、散らかりがちな玄関もスッキリ使う事が出来ます。戸口から奥が見えないのも嬉しいですね(^^♪
上り口から廊下を…
白い扉は大型の物入、右側手前のブラウンのドアはランドリースペースになっていて、洗濯機置場や棚が設置されています。
右奥のドアはトイレです。グレーを基調とした落ち着いた雰囲気。もちろん温水洗浄便座付き、TOTO製のウォシュレットです。
隣のドアは洗面室です。三面鏡付きの洗面台は広々としていて、朝のラッシュ時も安心♪♪ ミラーキャビネットや収納棚などもあって、細かい物から大きな物まで上手く収納出来そうです。
浴室へは洗面室から…
TOTO製のユニットバスは高級感のあるブラウンのパネル仕上げで癒しの雰囲気。追い焚き機能や浴室換気乾燥機も付いて使い心地もバッチリですよ。
廊下左奥のドアから約13.8帖のリビング・ダイニング・キッチンへ…手前からキッチン、ダイニング、リビングと並ぶ、オーソドックスで使いやすい縦長のお部屋になっています。奥の窓は南側のバルコニーに面していて、明るい光が入ってきていますね。
キッチンはクリナップ製システムキッチン。食器洗浄乾燥機付きなので食後はみんなでのんびりしちゃいましょう♬
こちらはLDK隣の約4.8帖の洋室。西側のバルコニーに面した大きな窓があります。入口は引き戸なのでデッドスペースも作りませんし、クローゼット設置で家具を置く必要もないのでお部屋を広く使う事が出来ますよ。
引き戸は開放すれば、洋室をリビングの一部として使う事も可能。床にレールもありませんので一体感抜群です!
こちらは約6帖の洋室。南西二面採光で陽当り、通風共に良好、とても快適なお部屋です。クローゼットは間口が広くて使い易そうなタイプ。
バルコニーは南と西を向いたL字型。広さは、なんと15.43㎡もあるんですよ!隅田川の花火大会の会場は北西方向なので、もしかすると西側のバルコニーからちらっと見えるかもしれませんね。要確認です!
・
以上でサンハイツ両国のご案内を終わります。
いかがでしたでしょうか??
両国駅から徒歩6分のマンションです。
リノベーション済みという事で室内はとてもキレイですよ (っ・ω・)っ
内見のご予約やご質問などございましたらお気軽にお問い合わせくださいませ。
ご連絡お待ちしております。
弊社、不動産Agent 六棒株式会社では、
□リノベーションマンションはほぼ全て仲介手数料無料!
□その他一般仲介物件は仲介手数料20%~30%OFF!
にてお取り扱いしております!※弊社の「Agent Fee=仲介手数料」についてはご案内、ご面談の際に営業担当者よりご説明いたします!
なるべく沢山のお部屋をホームページに掲載したいと思っておりますが、時間的成約もございますので、残念ながらご紹介できるお部屋の一部しか掲載できておりません。
このホームページに掲載中のお部屋、その他サイト等で気になるお部屋、街を歩いていて気になったマンション等々ございましたら是非、弊社営業部までご相談ください!
~不動産Agent 六棒株式会社の特徴~
・一般仲介物件の仲介手数料は20%~30%OFFにてご案内中です!
・リノベーションマンションについてはほぼ全て仲介手数料無料です!
・住宅ローンに自信あります!
・頭金10万円より購入できます。是非ご相談下さい!
・お部屋のご見学は車で2~3件まとめて案内します!
・物件数3000件以上、新築戸建、リノベ物件も多数ご用意しております!





































































































弊社 公式HP
六棒総合研究所
掲載予定物件
価格変更と販売終了物件
ハザードマップ検索
適合証明書.jp
Facebook
Twitter
Instagram