・
□□□□□□□□□□□□□□□□□□□□□□□□□□□□□□□□□□□□□□□
いつも弊社ホームページをご覧頂き誠にありがとうございます。
日興初台スカイマンションはお陰様で販売を終了致しました。弊社問合せフォームにてご要望頂けましたら、当お部屋でキャンセル等が発生した場合、他のお部屋が販売になりました際にご紹介させて頂きます。
不動産Agent 六棒株式会社
TEL:03‐5413‐5336
□□□□□□□□□□□□□□□□□□□□□□□□□□□□□□□□□□□□□□□
・
初台駅徒歩5分。リノベーションマンション『日興初台スカイマンション』のご紹介です。
アクセス
京王線「初台」駅徒歩5分
京王線「幡ヶ谷」駅徒歩7分
小田急線「参宮橋」駅徒歩13分
JR各線「新宿」駅徒歩25分
ご案内の前に、いざという時のためのこちらをご確認ください⬇️
□□□□□□□□□□□□□□□□□□□□□□□□□□□□□□□□□□□□□□□
★★★【日興初台スカイマンション】周辺のハザードマップをCHECK!!★★★
お部屋の記事を読む前に…!周辺のハザードマップをチェックしておきませんか!
日興初台スカイマンションのハザードマップは★こちらから…どうぞ★
□□□□□□□□□□□□□□□□□□□□□□□□□□□□□□□□□□□□□□□
それではご案内に戻りましょう!
最寄駅は新宿のひとつお隣の初台駅。電車で新宿へすぐ行けるのももちろんですが、少し頑張れば歩いても行けます。その他初台、参宮橋駅も利用でき通勤も便利。
初台のランドマークといえば東京オペラシティ。コンサートホールやアートギャラリー、オフィスなどが入った複合文化施設です。その他レストランや書店、コンビニ、ドラッグストア、スーパーなど暮らしに便利なお店も入っています。駅に直結しているのでお仕事帰りに寄るのにピッタリですね。
近代的な建物がドーンと建っている初台ですが、下町情緒を感じさせるような商店街も駅すぐそばに形成されています。
100ものお店が並ぶ初台商店街。お休みの日は商店街までのんびりお買い物に訪れるのもよさそうです。美味しそうな飲食店や気になる感じのスイーツのお店もあるので散策してお気に入りのお店を見つけるのもここで暮らす楽しみになりそう♪
幡ヶ谷方面にも雰囲気の似た商店街があるのでたまには足を伸ばして訪れてみるのもいいかも。
駅からマンションへは甲州街道沿いを幡ヶ谷方面へまっすぐ歩いていくと到着します。
甲州街道沿いにも飲食店が点々とあったりします。
駅⇔マンションの道のりには代々木警察もあるので帰り道も何かと安心です。
日興初台スカイマンションは昭和55年築、7階建て、総世帯数51戸。
外観は赤みがかったタイル貼りです。
実は現在大規模修繕工事中。現在は足場が組んであったり、黄色いネットかぶったりした状態になっていますが、2月中旬に終了する予定です。
マンションは甲州街道沿いに建っていますが、ご紹介するお部屋は甲州街道に面していないので静かにお過ごしいただけます。
エントランス。2か所に分かれていますが、向かって右側のエントランスの奥は店舗などが入っています。居住される方は左側から入ります。
日中は管理人さんがいらっしゃり、さらに夜間はオートロックになるので防犯面も安心。
エレベーターは管理人室の前を通過してさらに奥。
共用部内もタイル貼りになっています。
エレベーターでお部屋へ!
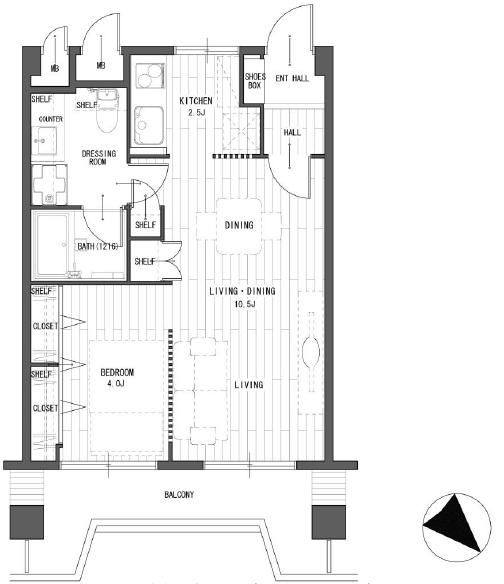
ここで間取り図のご紹介です。
※間取り図は別タブで開きますので、確認しながらご覧いただく事が出来ます。
□□□□□□□□□□□□□□□□□□□□□□□□□□□□□□□□□□□□□□□
★★★【日興初台スカイマンション】周辺のハザードマップをCHECK!!★★★
お部屋の記事を読む前に…!周辺のハザードマップをチェックしておきませんか!
日興初台スカイマンションのハザードマップは★こちらから…どうぞ★
□□□□□□□□□□□□□□□□□□□□□□□□□□□□□□□□□□□□□□□
今回ご紹介のお部屋は2階、間取りは3LDK、専有面積は63.83㎡。ファミリータイプのお部屋です。では、早速行ってみましょう!
エレベーターを2階で降りて、2階ならたまには階段もいいかな?なんて思ったりしながら静かな内廊下を進みます。
玄関に到着!玄関横にはテレビモニター付きインターホンが設置されていて、お部屋の中から訪問者を確認する事が出来ますよ。ドア越しに覗くのって怖い時ありますよね。もう安心です。
ドアを開けると正面は壁。廊下は右側の上り口から続いています。戸口で応対すればお部屋の中を見られなくて済むんですね(^^)
振り返って玄関の様子。ロックにはサムターンカバーも付いています。
シューズボックスはロータイプ。上はいろいろ飾れるカウンターになっています。玄関は『家の顏』っていいますからね。
廊下を進むと収納棚。棚の高さが変えられるので、工夫次第でいろいろ入れられますよ。
ではお部屋の方へ…
こちらは約11.7帖のリビング・ダイニング・キッチン+約5.7帖の洋室。奥の洋室との仕切り扉を開け、リビングの一部として使った時の様子です。
約17.4帖、窓いっぱいのとても明るいお部屋になります。二面採光で風通しもバッチリ。
仕切り扉を閉めれば…
本来の約5.7帖の洋室に戻ります。寝室などにするのもいいですし、お部屋に余裕があれば開けて広いお部屋として使うのもいいですね。
LDKに戻って…
リビングの窓は二重サッシ。防音性を始めとして遮熱性、防犯面にも有効です。窓の外はすぐ壁なんて事もなく、採光、通風ともに確保されていますよ。
お部屋のコーナーには収納棚。エアコンもここに付いていました。初めからエアコンが付いているのは嬉しいですね。新生活を快適に始められます。梁の、少しアーチのようになっている所が気に入りました。ちょっと変化があるだけで印象違いますよね。
キッチンはリビングからはあまり目立たないようになっていますので、多少散らかっても大丈夫(笑)
白をベースにした調理台。
調理台の下は全て収納になっていました。それでも足りない場合は、後ろのスペースに冷蔵庫や家電ラックと共に食器棚を置きましょう。
水栓は浄水機能付きシャワー水栓です。切替えるだけで水道水が美味しいお水に早変わり。ヘッドが伸びるのでシンクのお掃除などにも便利ですよ。
コンロは3口。温度設定やタイマー機能の付いた高機能なコンロです。
お料理中は換気扇をお忘れなく!グリル使用時は特にですよ!
では、次のお部屋へ…
ここだけじゃないんですけど、建具の質感がいいんですよね♪♪
こちらは約5帖の洋室。バルコニーに面した大きな窓があるお部屋です。
収納はクローゼット。間口が広くて使い易そうですね。
次は、いちど廊下に戻ってトイレへ…
廊下へは少し段差がありますのでお気を付け下さい。
ゆったりとしたサイズのトイレです。棚も付ていてトイレットペーパーのストックなどもこちらへどうぞ。もちろん温水洗浄便座付き。TOTO製のウォシュレットです。
次は洗面室へ…
こちらには洗面台、洗濯機スペース、浴室がまとまっています。
洗面台は既成ではなく造り付け。シンプルでいい感じです。収納がないので洗面ボウルの下や横のスペースを上手く使いましょう。
次は浴室へ…
追い焚き機能が付いていますので、いつでも温かいお風呂に入れます。お風呂って自分のタイミングで入りたいですよね。
浴室乾燥機をただの換気扇だと思ったら大間違い。洗濯物の乾燥やヒートショックの予防など様々な働きをしてくれるんですよ。
では次のお部屋へ…
約5.9帖の洋室です。さすが角部屋!こちらも二面採光のお部屋になっています。洋室の中では一番広く独立性も高いので、寝室にお勧め(^^)
窓は全て二重サッシ。
北西側の窓には頑丈な面格子が設置されています。外は普段人が立ち入らないような屋根部分になっていましたが、念のためという事でしょうか。北東側の窓の外はリビングの窓と同じ眺めでした。
収納はやはり間口が広くて使いクローゼット。先程のものより奥行きがあって容量がありそうです。
それでは、最後はバルコニーへ…
二重サッシの窓から出ます。
広さは5.35㎡。ご覧の通り陽当り抜群の南東向きバルコニーです。
前には甲州街道と首都高速4号線が通っていますが、二重サッシがあるのでご安心を。お部屋の中は静かなものです。
・
以上で日興初台スカイマンションのご案内を終わります。
いかがでしたでしょうか??
初台駅から徒歩5分のマンションです。
リノベーション済みという事で室内はとてもキレイですよ (っ・ω・)っ
内見のご予約やご質問などございましたらお気軽にお問い合わせくださいませ。
ご連絡お待ちしております。
□□□□□□□□□□□□□□□□□□□□□□□□□□□□□□□□□□□□□□□
★★★【日興初台スカイマンション】周辺のハザードマップをCHECK!!★★★
お部屋のお問い合わせ前に…!周辺のハザードマップをチェックしておきませんか!
日興初台スカイマンションのハザードマップは★こちらから…どうぞ★
□□□□□□□□□□□□□□□□□□□□□□□□□□□□□□□□□□□□□□□
弊社、不動産Agent 六棒株式会社では、一般仲介物件は仲介手数料20%~30%OFF!にてお取り扱いしております!
なるべく沢山のお部屋をホームページに掲載したいと思っておりますが、時間的成約もございますので、残念ながらご紹介できるお部屋の一部しか掲載できておりません。
このホームページに掲載中のお部屋、その他サイト等で気になるお部屋、街を歩いていて気になったマンション等々ございましたら是非、弊社営業部までご相談ください!
~不動産Agent 六棒株式会社の特徴~
・一般仲介物件の仲介手数料は20%~30%OFFにてご案内中です!
・住宅ローンに自信あります!
・頭金10万円より購入できます。是非ご相談下さい!
・お部屋のご見学は車で2~3件まとめて案内します!
・物件数3000件以上、新築戸建、リノベ物件も多数ご用意しております!
過去に販売していたお部屋の概要 このお部屋の販売は終了いたしました。
| 価格 | -万円 |
| 面積 | 39.96㎡ |
| 間取り | 1bedroom(1LDK) |
| 管理費 | 月額11,050円 修繕積立金:月額9,790円 |
| 所在階 | 7階 |
| お問い合わせ・ご内見のご予約はこちらからお気軽にどうぞ | |
間取りのご紹介です。1LDK、39.96㎡。最上階の7階。
リビング、ベッドルームをはじめ、各所に収納場所も豊富につくられています。
すっきり片付いた空間で快適な生活が送れそうです。
お部屋は最上階。ネットがかかっているのでわかりにくいですが、玄関前からは開放的な眺めが!遠くに山々が連なっているところまで見えます。
インターホンはTVモニター付き。安心安全な暮らしをサポートしてくれます。
玄関ホール。右側にトールサイズのシューズBOXが設置されています。
1、2名分の靴ならこの中に充分収まるのではないでしょうか。
玄関をあがると目の前はリビングダイニングの扉。
壁面のブリックタイルが目を引きますね!カッコイイです。
ではリビングダイニングへ。
リビングダイニングは約10.5帖。
ダウンライトがお部屋全体をほんのり照らしており、落ちついた雰囲気です。
隣接する洋室とは格子でゆる~く仕切られています。
壁の一面には廊下と同じくブリックタイルが施されています。
このタイルに合わせて家具とかファブリック、選んでみたくなるのではないでしょうか?
クリックすると写真拡大になるのでゼヒじっくりご覧ください。
キッチンはリビングダイニングの扉のすぐお隣。窓がついているスペースです。
こちらも格子でスペースがゆるく仕切られています。
キッチンスペースは約2.5帖。お部屋の雰囲気に合わせてシステムキッチンはダークな色合い、まわりはツルンとした黒のタイル貼りになっています。見た目オシャレなだけではなく、浄水機能付き水栓、コンロは2口、上下に収納たっぷりと設備も充実しています。
つづいて洗面室へ。キッチンのお隣です。
洗面室の扉のまわりには棚付きの収納スペースが2つ設置されています。
日用品のストックや掃除機などの生活用品はこの中へ入れておけば生活感も隠せて見た目もスッキリ。棚の高さも変えられます。
洗面室。床はお部屋と同じくしっかりとした木目柄のフローリングになっています。脱衣スペースを囲むようにバスルーム、洗濯機置場、洗面化粧台、トイレが設置されています。
ちなみに・・・洗面室の入口は段差があるのでお気を付けください。
洗面化粧台はしっかりと厚みのある木のカウンターが印象的。
雰囲気に合わせてオシャレなソープボトルとか小物を並べておきたい感じです。
鏡の上の棚、カウンターの下とさりげなく収納スペースも豊富で、使い勝手もよさそうです。
トイレはウォシュレット付き。
落ち着いた雰囲気のバスルーム。壁面パネルはよく見るとボーダー柄になっています。
追い焚き、浴室換気乾燥機能付きでスペックも◎。暖房・涼風も入るので季節を問わず快適なバスタイムをお過ごしいただけます。
つづいてリビングダイングに隣接している洋室へ。
キッチンの格子から覗いてみました。こんな感じに見えます。
洋室は約4.0帖。
格子になっている分、音や光がスーッと抜けます。
音楽など家のどこにいても楽しめるのがいいですね。
洋室は広くはないものの、壁面一面には大きな収納が設置されているので生活スペースは有効的に使えそうです。
時間帯や照明の加減次第で格子の陰がフローリングにスーッとのびて更にカッコよくなります。写真にうまく写らなかったのですが、ご内見の際にはこちらも合わせてチェックしてみてください。
最後にバルコニーへ出てみます。
リビングダイニング、洋室に面したバルコニーは約7.51㎡、北東向き。
修繕中で足場が組まれていますが、取れれば大分見た目がスッキリするはず。
ネット越しの眺望。高層ビル群が見える!
ネットをとった時の眺望がコチラ。朝は高層ビル群と空を眺めながらゆっくり珈琲を、夜はきらめく夜景を見ながら一杯、なんてステキな毎日がここなら送れますね。
































































































































弊社 公式HP
六棒総合研究所
掲載予定物件
価格変更と販売終了物件
ハザードマップ検索
適合証明書.jp
Facebook
Twitter
Instagram