・
□□□□□□□□□□□□□□□□□□□□□□□□□□□□□□□□□□□□□□□
いつも弊社ホームページをご覧頂き誠にありがとうございます。
メガロン御殿山はお陰様で販売を終了致しました。弊社問合せフォームにてご要望頂けましたら、当お部屋でキャンセル等が発生した場合、他のお部屋が販売になりました際にご紹介させて頂きます。
不動産Agent 六棒株式会社
TEL:03‐5413‐5336
□□□□□□□□□□□□□□□□□□□□□□□□□□□□□□□□□□□□□□□
・
今回ご紹介するのは、JR山手線をはじめ京浜東北線や東海道線、横須賀線さらには新幹線まで乗り入れている品川駅より徒歩9分。『メガロン御殿山』のご紹介です♪
品川駅から徒歩9分という立地の良さに加え、東海道品川宿の名残を残す情緒ある町並が魅力的なエリアです♪♪
アクセス
JR山手線・東海道線・横須賀線・京浜東北線、「品川」駅 徒歩9分
京浜急行線「北品川」駅 徒歩1分
マンションへご案内する前に、まずはこちらをご覧ください!
□□□□□□□□□□□□□□□□□□□□□□□□□□□□□□□□□□□□□□□
★★★【メガロン御殿山】周辺のハザードマップをCHECK!!★★★
お部屋の記事を読む前に…!周辺のハザードマップをチェックしておきませんか!
メガロン御殿山のハザードマップは★こちらから…どうぞ★
□□□□□□□□□□□□□□□□□□□□□□□□□□□□□□□□□□□□□□□
品川駅は、東京の西の玄関口。多くの路線が乗り入れるターミナル駅です☆
新幹線も停まりますし、出張が多い方にはウレシイ駅ですね♪♪また、2027年に開業する予定のJR東海中央リニア新幹線の首都圏側の始発駅になりますので、ますます発展していくエリアです☆
品川駅は、エキナカも充実♪♪お惣菜やスイーツがたくさん売られています☆
品川駅の港南口からマンションに向かう道は、品川インターシティ☆ずぅーっと屋根があります♪♪屋根が無い道は約350mほど、雨の時期には本当にありがたいです
(●´∀`)
品川インターシティには、飲食店、コンビニ、ドラッグストア、銀行ATM、クリニックなどなど、たくさんのお店が入っていてとても便利です♪♪
また、最寄駅としては、徒歩1分のところに京浜急行線「北品川」駅もありますので、京浜急行をご利用の方には最高の立地です♪♪
マンションの裏手は、東海道品川宿です☆
品川宿は、江戸からでる諸街道のうち最も重要視された東海道の1番目の宿場で、今でも江戸時代と同じ道幅でひっそりと宿場まちは活きています。どこか懐かしい風情があります
(●´∀`●)
和菓子屋さんに、八百屋さん、食堂♪♪品川駅方面とはまた違った魅力があります☆
天丼の名店『三浦屋』さん☆『漁師町の天丼』と書いてありました。そうです、今は海に面していませんが、江戸時代はこのあたりが海岸線です♪♪
スーパーもコンビニもありますのでありがたいです♪
第一京浜沿いに佇むブラウンの外観のマンションがメガロン御殿山です。
昭和54年築、総世帯数91戸、12階建てになります。
マンションの隣りは、京浜急行の線路です☆
こちらからマンションに入ります☆
スロープも設置されていますので、車イスやベビーカーには助かります (●´∀`)
オートロックはありませんが、管理は安心の住込管理。エントランス入って右側に管理人室があります。
こちらのエレベーターでお部屋へ向かいます♪♪
ここで間取り図のご紹介です。
※間取り図は別タブで開きますので、確認しながらご覧いただくことができます。
今回ご紹介するお部屋は最上階12階、専有面積46.21㎡の2LDK。お一人暮らしやDINKSの方にオススメのお部屋です。最上階の角部屋!眺めも楽しみですね。それでは、さっそく行ってみましょう。
ゆったりとした玄関からは短い廊下が横向きに続いています。玄関ドアとお部屋へのドアを一直線にしないことによって、戸口から室内の様子が見えづらいようにしているんですね。宅配サービスの増加によって知らない人が訪ねて来ることが増えた、今の時代にぴったりのレイアウトです。シューズボックスは収納力のあるトールタイプ。
こちらはリビング・ダイニング・キッチン。
西側にバルコニーに面した窓、南側に二つの窓が付いたお部屋です。二面採光で明るいのはもちろん風通しもよさそうですね。縦長のお部屋にキッチン、ダイニング、リビングと並ぶオーソドックスなタイプ。普通ならレイアウトに困ることはないのですが、窓が多い分なるべく窓を生かそうとすると工夫が必要かもしれません。
キッチンは人気のカウンタータイプ。
解放感いっぱいのフルオープンではなく、腰板などで一部目隠ししたセミオープンタイプです。油跳ねや匂いを軽減したり、お料理中の手元を隠したりとオープンキッチンのデメリットをカバーしてくれるバランスのとれたキッチンです。調理台背後にはカップボードが造り付けになっているので収納力も抜群ですよ。食器洗浄乾燥機付き!!!
こちらは西側の洋室。
LDKと同じ西向きバルコニーに面した明るいお部屋です。入口には扉の開け閉めに空間がいらない引き戸を使用。無駄なくお部屋のスペースを使えるようになっています。
こちらは東側の洋室。
入口にはやはり引き戸を使用。加えて柱の出っ張りなどのない使いやすいお部屋です。窓はありませんが、寝室にすると思えば暗くて静かなのはプラスポイントでしかないですよね。二つの洋室にはどちらもクローゼットが付いています。
洗面室には洗面化粧台の他に洗濯機スペース、トイレ、浴室がまとまっていて、脱衣所も兼ねています。洗面化粧台は大きな一枚鏡。サイドにメディシンボックスが付いているので洗面周りの細々したものもスッキリですよ。
トイレはINAX製の洗浄機能一体型。掃除道具やトイレットペーパーを入れておくのに便利な吊戸棚も付いています。
新規交換のユニットバスは白を基調にした明るい雰囲気。広く見せる効果のあるワイドミラーのおかげもあって実際より広々と感じます。追い焚き機能や浴室換気乾燥暖房機など便利な機能も完備!雨が続く憂鬱な季節でもお天気を気にせずお洗濯ができますね♪
最後にバルコニーからの眺望をご紹介。
さすが最上階!見事な眺めですね!広々とした道路や線路の中、旧岩崎家高輪邸を取り囲む緑に癒されます。
・
以上でメガロン御殿山のご案内を終わります。
いかがでしたでしょうか??
品川駅から徒歩9分のマンションです。
リノベーション済みという事で室内はとてもキレイですよ (っ・ω・)っ
内見のご予約やご質問などございましたらお気軽にお問い合わせくださいませ。
ご連絡お待ちしております。
弊社、不動産Agent 六棒株式会社では、一般仲介物件は仲介手数料20%~30%OFF!
にてお取り扱いしております!
なるべく沢山のお部屋をホームページに掲載したいと思っておりますが、時間的成約もございますので、残念ながらご紹介できるお部屋の一部しか掲載できておりません。
このホームページに掲載中のお部屋、その他サイト等で気になるお部屋、街を歩いていて気になったマンション等々ございましたら是非、弊社営業部までご相談ください!
~不動産Agent 六棒株式会社の特徴~
・一般仲介物件の仲介手数料は20%~30%OFFにてご案内中です!
・住宅ローンに自信あります!
・頭金10万円より購入できます。是非ご相談下さい!
・お部屋のご見学は車で2~3件まとめて案内します!
・物件数3000件以上、新築戸建、リノベ物件も多数ご用意しております!
過去に販売していたお部屋の概要 こちらのお部屋の販売は終了いたしました
| 価格 | -万円 |
| 面積 | 46.21㎡ |
| 間取り | 1bedroom(1LDK) |
| 管理費 | 月額:10,310円 修繕積立金:13,320円 |
| 所在階 | 2階 |
| お問い合わせ・ご内見のご予約はこちらからお気軽にどうぞ | |
ここで間取り図のご紹介です。
※間取り図は別タブで開きますので、間取り図と記事や写真を照らし合わせながらご覧いただくことができます。
お部屋は2階、専有面積46.21㎡の1LDK。9.97㎡のバルコニーに加え、8.25㎡のルーフバルコニーまで付いたお部屋です。お一人暮らしやDINKSの方にオススメ!
玄関には収納力抜群のシューズボックス。扉に付いた姿見が出かける前の身だしなみチェックに便利ですよ。廊下が玄関から横向きに伸びているので、戸口から室内が見えづらいのも嬉しいですね。
廊下突き当りのドアを入るとまずはキッチンが目に入ります。セミオープンのカウンタータイプ。コンロ前が壁で仕切られ、油跳ねなどを気にしなくていい個室感と程よい解放感が両立しています。食器洗浄乾燥機や浄水機能一体型水栓など嬉しい機能付き!
キッチン奥のドアは洗面室。洗面化粧台、トイレ、浴室がひとまとめになった脱衣所を兼ねたスペースです。洗面化粧台は三面鏡付。裏はキャビネットになっているので洗面周りの細々としたものもすっきり片付けられますね。
トイレはINAX製の温水洗浄機能一体型。トイレットペーパーのストックや掃除道具を入れるのに便利な吊戸棚も付いています。
モノトーンでまとめられた浴室は明るい雰囲気。広見え効果のあるワイドミラーを採用しています。追い焚き機能が付いているのでお風呂の準備もワンタッチ!いつでも温かいお風呂に入ることができますよ。浴室換気乾燥機付き。
お部屋へ戻って、こちらは約12.4帖のリビング・ダイニング・キッチン。
東向きバルコニーと南向きルーフバルコニーに面した明るいお部屋です。シンプルな内装でお好みの雰囲気にカスタマイズしていくことが出来そうですね。エアコン付きなのですぐに快適な生活を始められますよ。
こちらは約5.6帖の洋室。
北東二面採光のお部屋で明るく風通しも良さそうです。近くには線路が通っていますが、窓には二重サッシが設置され防音対策もバッチリ!
収納は大きなウォークインクローゼット!衣類はもちろんのことスーツケースや季節家電などを入れておくのにも使えます。衣装ケースで収納力アップなんていうのもよさそうですね。
・
以上でメガロン御殿山のご案内を終わります。
いかがでしたでしょうか??
品川駅から徒歩9分のマンションです。
リノベーション済みという事で室内はとてもキレイですよ (っ・ω・)っ
内見のご予約やご質問などございましたらお気軽にお問い合わせくださいませ。
ご連絡お待ちしております。
弊社、不動産Agent 六棒株式会社では、一般仲介物件は仲介手数料20%~30%OFF!
にてお取り扱いしております!
なるべく沢山のお部屋をホームページに掲載したいと思っておりますが、時間的成約もございますので、残念ながらご紹介できるお部屋の一部しか掲載できておりません。
このホームページに掲載中のお部屋、その他サイト等で気になるお部屋、街を歩いていて気になったマンション等々ございましたら是非、弊社営業部までご相談ください!
~不動産Agent 六棒株式会社の特徴~
・一般仲介物件の仲介手数料は20%~30%OFFにてご案内中です!
・住宅ローンに自信あります!
・頭金10万円より購入できます。是非ご相談下さい!
・お部屋のご見学は車で2~3件まとめて案内します!
・物件数3000件以上、新築戸建、リノベ物件も多数ご用意しております!
過去に販売していたお部屋の概要 こちらのお部屋の販売は終了いたしました
| 価格 | -万円 |
| 面積 | 52.40㎡ |
| 間取り | 2bedroom(2LDK) |
| 管理費 | 月額:11,690円 修繕積立金:15,100円 |
| 所在階 | 3階 |
| お問い合わせ・ご内見のご予約はこちらからお気軽にどうぞ | |
ここで間取り図のご紹介です。
※間取り図は別タブで開きますので、確認しながらご覧頂く事が出来ます。
今回ご紹介するお部屋は3階、間取りは2LDK、専有面積は52.40㎡。南西角部屋で、ゆったりとしたお一人暮らしからファミリーまで幅広くお使いいただけるお部屋です。では、早速行ってみましょう!
□□□□□□□□□□□□□□□□□□□□□□□□□□□□□□□□□□□□□□□
★★★【メガロン御殿山】周辺のハザードマップをCHECK!!★★★
お部屋の記事を読む前に…!周辺のハザードマップをチェックしておきませんか!
メガロン御殿山のハザードマップは★こちらから…どうぞ★
□□□□□□□□□□□□□□□□□□□□□□□□□□□□□□□□□□□□□□□
エレベーターで3階まで上がり、内廊下を進んでお部屋へ向かいます。内廊下は天候の影響も受けず、防犯面でも安心なのがいいところ。
カメラ付きインターホンが設置されていて、モニターで玄関前の訪問者を確認する事が出来ます。わざわざ玄関まで来なくてすむのがいいですよね。
玄関からはゆったりとした幅の廊下が伸びていました。広い上り口は、小さなお子様連れや荷物が多い時などにはとても助かります。
玄関ドアはダブルロック。開けづらいのはもちろんのこと、狙われづらくなる効果もあるらしいですよ。それはそうですよね、わざわざ時間がかかる所は狙わないですもんね^^;
玄関には人感センサーを設置。自動的にライトを点けてくれるので、暗い中手探りでスイッチを探す必要はありません。いつでも明るい玄関が迎えてくれるのも嬉しいものです(^^)シューズボックスはトールタイプ。棚は高さが変えられるので、ブーツなどでも収納可能ですよ。
照明付きのニッチカウンター。いろいろ飾ってインテリアを楽しむことが出来ます。廊下突き当り左はガラスのドアになっていて…
なんとバルコニーになっていました!!廊下からバルコニーに出られるのはかなり珍しいですね。物干し金具が設置されているのでお洗濯物も干せるようです。東向きになるので午前中がチャンスですよ。
では、お部屋の中へ…
こちらは約11.4帖のリビング・ダイニング・キッチン。南向きのバルコニーに面しています。手前からキッチン、ダイニング、リビングと使えるオーソドックスなタイプのお部屋で、家具のレイアウトもしやすそうですね。
なんと!お部屋のダウンライトにはスピーカーが内蔵されていて、スマートフォンからBluetooth経由で音楽などを聴く事が出来ますよ。便利な時代になりました(^^)
キッチンは人気のカウンタータイプ。コミュニケーションが取りやすく、調理中でも会話が途切れることがありません。もう一つのメリットはリビング方向から生活感のあるキッチン内が見えないこと。それでこそ、心置きなく腕を振るえるってものですよね(笑)では、キッチンを詳しく見てみましょう。
調理台の下にはスライドキャビネットと食器洗浄乾燥機。引き出しタイプのスライドキャビネットは大きな鍋などでも楽に出し入れが可能です。びっしり詰めても中が確認しやすいのも嬉しいですよね。憧れの食洗機!!これからの乾燥の季節、食器洗いは手に厳しいですからね。お任せ出来るならとても助かります。食後をみんなでのんびり過ごせるのも最高♬
水栓は浄水機能付きシャワー水栓。切替えるだけで気軽に美味しいお水を使う事が出来ます。ヘッドが伸びてシンクを流したりにも便利ですよ。
コンロは3口、グリルも付いています。三つもコンロがあると、少し手の込んだお料理にも挑戦してみようかなとか思ったりします^^;)
オープンキッチンですから調理中は換気扇をお忘れなく! 調理台の後方には冷蔵庫や家電ラックのスペースが確保されていました。
では、次のお部屋へ…
こちらは約5.2帖の洋室。LDKと同じ南向きのバルコニーに面しています。シンプルな内装で家具も合わせやすそうですね。
入口に引き戸を使用することによりデッドスペースを作らず、お部屋のスペースを無駄なく使うことが出来ます。クローゼットも付いているので別に収納家具を置く必要もありませんよ。クローゼットは間口が広くて使いやすそうなフルオープンになるタイプ。
状況に応じてこのように二部屋をつなげて使うことも可能です。大勢の来客時や、ご家族構成が変わった時など、短期、長期に関わらず選択肢があるのは有り難いですね。
では、次のお部屋へ…
こちらは約6帖の洋室。
東・北の二方向に大きな窓のあるお部屋です。明るいのはもちろん風通しも抜群ですよ。
北側の窓の外に見えるのは先程廊下から出たバルコニー。他のお部屋ではないのでご安心ください。気になるとすれば正面の窓ですかね。東側は見晴らしが良く遮るものはありません。朝も、朝日で気持ち良く目覚められそうですね♬
収納は先程と同じタイプのクローゼット。大きさもほぼ同じです。
次は洗面室へ…
洗面室には洗面台の他に、洗濯機スペース、浴室、リネン棚、トイレがまとまっていて、脱衣所も兼ねています。
真っ白で清潔感のある洗面台は三面鏡付き。鏡の上に付いた照明のおかげで鏡を使う時に影になることもありません。
収納は洗面台下と三面鏡裏のキャビネット。様々なタイプの収納で、大きな物から細かい物までバランスよく収まりそうですね。
水栓はビルドインのハンドシャワータイプ。引っ張り出せば洗面ボウルのお掃除も楽々です。洗面ボウル両脇もハンドソープなどを置くのに丁度いい広さですね。
さすが角部屋、こんな所にも窓がありますよ。湿気の多い場所ですから窓は有り難いですね。ちなみに、外は東向きバルコニーでした。
次はトイレへ…
洗浄便座はTOTO製のウォシュレット。トイレットペーパーなどのストックに便利な吊戸棚も付いています。低めに付いているのが優しいですね。たまに、奥の物を取ろうとして足がつったりしています^^;)
次は浴室へ…
追い焚き機能付きユニットバスは「自動」ボタンひとつでお風呂を沸かすことが出来ます。。ご家族でお風呂の時間が揃わなくても、そのまま保温もしてくれるのでいつでも温かいお風呂に入れますよ。
浴室換気乾燥機は浴室の換気やお洗濯物乾燥、浴室暖房など様々な使い方が出来ます。「涼風」なんてボタンもありますので暑い季節にも活躍してくれそうですね。残念ながら冷房機能はありませんが、濡れた体には十分涼しく感じますよ。
それでは、最後はバルコニーへ出てみましょう。窓には防音や遮熱に優れたペアガラスが使用されていて、余分な物をカットしてくれていますよ。
二部屋にまたがる幅の広いバルコニーです。奥行きも広いのでとても広々としていますね。南向きのバルコニーはお天気が良ければ陽当り抜群!今日は残念なお天気でしたが、お天気の良い時に日射しを体験してみてください。
バルコニーの前はこの通り、開放的な眺めが広がっていますよ♬
・
以上でメガロン御殿山のご案内を終わります。
いかがでしたでしょうか??
品川駅から徒歩9分のマンションです。
リノベーション済みという事で室内はとてもキレイですよ (っ・ω・)っ
内見のご予約やご質問などございましたらお気軽にお問い合わせくださいませ。
ご連絡お待ちしております。
□□□□□□□□□□□□□□□□□□□□□□□□□□□□□□□□□□□□□□□
★★★【メガロン御殿山】周辺のハザードマップをCHECK!!★★★
お部屋のご購入前に…!周辺のハザードマップをチェックしておきませんか!
メガロン御殿山のハザードマップは★こちらから…どうぞ★
□□□□□□□□□□□□□□□□□□□□□□□□□□□□□□□□□□□□□□□
弊社、不動産Agent 六棒株式会社では、
□リノベーションマンションはほぼ全て仲介手数料無料!
□その他一般仲介物件は仲介手数料20%~30%OFF!
にてお取り扱いしております!※弊社の「Agent Fee=仲介手数料」についてはご案内、ご面談の際に営業担当者よりご説明いたします!
なるべく沢山のお部屋をホームページに掲載したいと思っておりますが、時間的成約もございますので、残念ながらご紹介できるお部屋の一部しか掲載できておりません。
このホームページに掲載中のお部屋、その他サイト等で気になるお部屋、街を歩いていて気になったマンション等々ございましたら是非、弊社営業部までご相談ください!
~不動産Agent 六棒株式会社の特徴~
・一般仲介物件の仲介手数料は20%~30%OFFにてご案内中です!
・リノベーションマンションについてはほぼ全て仲介手数料無料です!
・住宅ローンに自信あります!
・頭金10万円より購入できます。是非ご相談下さい!
・お部屋のご見学は車で2~3件まとめて案内します!
・物件数3000件以上、新築戸建、リノベ物件も多数ご用意しております!
過去に販売していたお部屋の概要 このお部屋の販売は終了いたしました。
| 価格 | -万円 |
| 面積 | 45.78㎡ |
| 間取り | 2bedrooms(2LDK) |
| 管理費 | 月額:10,200円 修繕積立金:13,190円 |
| 所在階 | 8階 |
| お問い合わせ・ご内見のご予約はこちらからお気軽にどうぞ | |
ここで間取り図のご紹介です。
※間取り図は別タブで開きますので、確認しながらご覧頂く事が出来ます。
今回ご紹介するお部屋は8階、間取りは2LDK、専有面積は45.78㎡。ゆとりのお一人暮らし、またはDINKSの方にお勧めのお部屋です。では、早速行ってみましょう!
□□□□□□□□□□□□□□□□□□□□□□□□□□□□□□□□□□□□□□□
★★★【メガロン御殿山】周辺のハザードマップをCHECK!!★★★
お部屋の記事を読む前に…!周辺のハザードマップをチェックしておきませんか!
メガロン御殿山のハザードマップは★こちらから…どうぞ★
□□□□□□□□□□□□□□□□□□□□□□□□□□□□□□□□□□□□□□□
エレベーターを8階で降り、静かな内廊下を進むとお部屋に到着です。
玄関ドア横にはモニター付きインターホンが設置されていて、お部屋の中から訪問者を確認する事が出来ます。映像を見てから応対するかを決められるので安心ですね。ドアスコープもありますが、向こうからも見られている気がしてなんか苦手です^^;)
玄関ホールは正面にドアのない、お部屋の中が見えづらいタイプ。最近は宅配やフードデリバリーなどを使う機会も増えていますので、プライバシー的には嬉しい造りですね。
人感センサーが自動的にライトを点けてくれるので、真っ暗な中手探りでスイッチを探すなんてことももうありません。荷物が多くて両手が塞がっていても大丈夫!いつでも明るい玄関が迎えてくれるのも嬉しいですよね(*´▽`*)
シューズボックスは上がカウンターになったロータイプとトールタイプの二つ。カウンターにはコインやキーなどを置いたり、小物や写真などを飾ってインテリアを楽しんだり出来ますよ。ホールの突き当りには収納棚。左側には棚などが付いていないので、大きな物や背の高い物など自由に使うことが出来ます。
では、お部屋の中へ…
こちらはリビング・ダイニング・キッチン+洋室。奥の洋室との仕切りを開けて二部屋をつなげた様子です。ライフスタイルや状況に応じて自由に使えるのは嬉しいですね。ナチュラルカラーのフローリングに白のクロス。シンプルな色使いで家具も合わせやすそうです。
洋室から…
仕切りの扉は引込式で壁部分に収納。吊り戸なので床にレールもありません。だから一体感があるんですね! 閉めれば…
本来の洋室に。西向きのバルコニーに面した大きな窓がある、とても明るいお部屋です。
収納は間口が広くて使いやすそうなクローゼット。三枚扉で、真ん中の扉も端に寄せて全開にすることが出来ます。中が確認しやすい収納は無駄な買い物を減らしてくれるそうですよ(^^)
お部屋が広く感じるのは壁付けタイプのキッチンのおかげ。省スペースでお部屋を広く使うことが出来ます。広く空いた後ろのスペースにテーブルなどを持って来れば、みんなでワイワイお料理出来ますよ♬ では、キッチンを詳しく見てみましょう。
収納は調理台下のスライドキャビネットと吊戸棚。スライドキャビネットは引き出し式で出し入れがしやすく、ギッチリ詰めても収納物の確認がしやすいのがポイントです。出し入れしづらい吊戸棚上段にはあまり使わない物を入れましょう。
コンロは3口。温度設定やタイマーが使える高機能タイプです。いつの間にこんな事が!って感じですね^^;)
コンロは3口、グリル付きで調理器具も充実!オープンキッチンなので調理中は換気扇を忘れずに回しましょう。調理の臭いって後になってから気になりますからね^^;)調理を始める少し前から回すと効果的らしいですよ。
水栓は浄水機能付き。切替えひとつで気軽に美味しいお水を使えます。調理台右側には冷蔵庫、左側には家電ラックなどが置けるようになっていました。
では、隣のお部屋へ…
隣の洋室と同じ西向きのバルコニーに面した洋室です。入口が引き戸なのでデッドスペースも出来ず、お部屋のスペースを無駄なく使えますよ。
収納はウォークインクローゼット!!!L字型にハンガーポールが設置された大きな収納です。キャリーバッグやスーツケースなどの大きな物も楽に入りますし、衣装ケースなどで収納力をアップさせるのもいいですね。
次は洗面室へ…
洗面室には洗面台の他に、洗濯機スペース、浴室、トイレがまとまっていて、脱衣所も兼ねています。洗濯機スペースの上には窓もあり、換気や採光に活躍しそうですね。ちなみに外はバルコニーなので開けておいても安心ですよ。
収納は鏡裏のキャビネットと洗面台下。大きな物から細かい物まで無理なく収めることが出来そうです。洗面ボウルの水切りも便利ですよね。
水栓ハンドシャワータイプ。洗面ボウルを流したり、朝のシャンプーくらいならお任せ下さい。
次はトイレへ…
トイレットペーパーなどのストックに便利な棚も付いています。梁の下で低い位置なのが嬉しいですね。洗浄便座はTOTO製のウォシュレット。
浴室は白とベージュの優しい雰囲気。リラックスしたバスタイムを過ごせそうです♬
ノーリツ製の追い焚き機能付きユニットバスは「ふろ自動」ボタンひとつでお風呂を沸かかすことが出来ます。そのまま保温もしてくれるのでいつでも温かいお風呂に入れますよ。長風呂してもお湯が冷めずに安心です。
浴室換気乾燥機は浴室の換気乾燥はもちろんのこと、暑い季節には涼風、寒い季節には浴室暖房、梅雨の季節には洗濯物乾燥などなど、一年を通して大活躍!!これからの季節だと浴室暖房ですかね。ヒートショック予防にもなるのでどんどん使っていきましょう。
それでは、最後にバルコニーをまとめてご紹介。
まずはLDKから出られる北側のバルコニーからです。出入口はちょっと珍しいガラスドア。
左右の見晴らしの利かない、奥まった位置にあるバルコニーです。正面はいい眺めなんですけどね^^;)ただ、お洗濯物を干すには目立たなくていいかもしれません。物干し金具も付いていますよ。西向きなのでお昼からがチャンスです。
次は西側のバルコニーへ…
二つの洋室のどちらからでも出られます。両方共インナーサッシが設置されていて、防音対策もバッチリ!
二部屋にまたがる広々としたバルコニーですね。奥行きがあり、手すりも下まで柵になっているので開放感もあります。
外の眺めはご覧の通り!!文句なしの眺めですね。緑も豊富で季節感を感じられるのもステキです♬
・
以上でメガロン御殿山のご案内を終わります。
いかがでしたでしょうか??
品川駅から徒歩9分のマンションです。
リノベーション済みという事で室内はとてもキレイですよ (っ・ω・)っ
内見のご予約やご質問などございましたらお気軽にお問い合わせくださいませ。
ご連絡お待ちしております。
□□□□□□□□□□□□□□□□□□□□□□□□□□□□□□□□□□□□□□□
★★★【メガロン御殿山】周辺のハザードマップをCHECK!!★★★
お部屋のご購入前に…!周辺のハザードマップをチェックしておきませんか!
メガロン御殿山のハザードマップは★こちらから…どうぞ★
□□□□□□□□□□□□□□□□□□□□□□□□□□□□□□□□□□□□□□□
弊社、不動産Agent 六棒株式会社では、
□リノベーションマンションはほぼ全て仲介手数料無料!
□その他一般仲介物件は仲介手数料20%~30%OFF!
にてお取り扱いしております!※弊社の「Agent Fee=仲介手数料」についてはご案内、ご面談の際に営業担当者よりご説明いたします!
なるべく沢山のお部屋をホームページに掲載したいと思っておりますが、時間的成約もございますので、残念ながらご紹介できるお部屋の一部しか掲載できておりません。
このホームページに掲載中のお部屋、その他サイト等で気になるお部屋、街を歩いていて気になったマンション等々ございましたら是非、弊社営業部までご相談ください!
~不動産Agent 六棒株式会社の特徴~
・一般仲介物件の仲介手数料は20%~30%OFFにてご案内中です!
・リノベーションマンションについてはほぼ全て仲介手数料無料です!
・住宅ローンに自信あります!
・頭金10万円より購入できます。是非ご相談下さい!
・お部屋のご見学は車で2~3件まとめて案内します!
・物件数3000件以上、新築戸建、リノベ物件も多数ご用意しております!
過去に販売していたお部屋の概要 このお部屋の販売は終了いたしました。
| 価格 | -万円 |
| 面積 | 32.82㎡ |
| 間取り | 1bedroom(1DK) |
| 管理費 | 月額:7,320円 修繕積立金:9,460円 |
| 所在階 | 3階 |
| お問い合わせ・ご内見のご予約はこちらからお気軽にどうぞ | |
エレベーターに乗ってる間に間取り図のご紹介です。
今回ご紹介のお部屋は3階、間取りは1DK、専有面積は32.82㎡。バルコニーが二つも付いたお部屋ですよ。お一人暮らしの方にお勧めです。
では、早速行ってみましょう!
□□□□□□□□□□□□□□□□□□□□□□□□□□□□□□□□□□□□□□□
★★★【メガロン御殿山】周辺のハザードマップをCHECK!!★★★
お部屋の記事を読む前に…!周辺のハザードマップをチェックしておきませんか!
メガロン御殿山のハザードマップは★こちらから…どうぞ★
□□□□□□□□□□□□□□□□□□□□□□□□□□□□□□□□□□□□□□□
エレベーターを3階で降りて、静かな内廊下を進みます。どこか工事中なのか養生されていますが、本来はもっと綺麗で明るい廊下なんですよ。
玄関ドア横にはテレビモニター付きインターホンが設置されて、お部屋の中から訪問者を映像で確認する事が出来ます。対応するかを見てから決められて便利ですよね。
コンパクトな玄関ホール。その分、お部屋が広くなっていると考えればGOODです。ドアが横向きで、戸口からお部屋の中が見えづらいのもいいですね。
ドアには安心のダブルロック。三和土部分もそれ程広くないので脱いだ靴はまめにしまいたいものです。玄関内のちょっとした窪みには傘立てなんかが置けそうですよ。
人感センサー設置で、暗い中スイッチを探す必要もありません。なにより、いつでも明るい玄関が迎えてくれるのが嬉しいですよね(^^)シューズボックスはトールタイプ。棚の高さが変えられてブーツなどでも収納可能です。扉の一枚は姿見になっていますので、お出かけ前の身だしなみチェックもお任せ下さい。
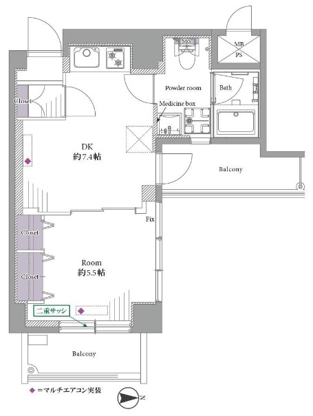
ではお部屋の中へ…
こちらは約7.4帖のダイニング・キッチン+約5.5帖の洋室。洋室との仕切り戸を開けてワンルームのようにした様子です。お一人暮らしならこんな使い方が多くなりそうですね。白と木目でナチュラルな雰囲気のお部屋です。
どちらにも窓があって明るいですね。更に二面採光なので風通しも抜群。二か所以上に開口部があると一つの時より10倍近く換気性能が上がるらしいですよ。
洋室側から。
引込式の引き戸を閉めれば…
こんな感じの約5.5帖の洋室に戻ります。見せたくない物を全部こちらに寄せたり来客時などに大助かり(笑)
エアコンも初めから付いているんですね。引っ越してすぐ快適な生活を送れるのは嬉しいです。時期によっては結構待たされたりしますからね^^;)
収納は間口が広くて使いやすそうなクローゼットが二つ。パッと見て中身が把握出来ると無駄な買い物も減らせそう♪♪
調理台は壁付け。お部屋の雰囲気に合わせてベージュの木目調パネルを使用しています。
収納は調理台下と吊戸棚になります。調理台下は引き出しタイプになっていて奥の方まで出し入れ楽々。普通は高くて大変な吊戸棚も、少し低めに設置されていてとても助かります。
コンロは二口。グリルも付いています。最近は電子レンジを駆使したレシピなども多いですが、直火の良さは捨てがたいですよね。
オープンキッチンですので、お料理中は換気扇をお忘れなく! 匂いってお料理の最中はあまり気にならなくても、後からきますからね。水栓は浄水機能付きシャワー水栓。切替えるだけで気軽に美味しいお水を使う事が出来ますよ。
次は洗面室へ…
少し段差がある上に、ドア枠が低くなっていますので足元頭上共に要注意です!!実際私も足元に気を取られて頭をぶつけてしまいました(笑)
洗面室にはトイレ、洗面台、洗濯機スペース、浴室がまとまっています。
トイレは扉などのないオープンなタイプ。広々としていていいですね。
INAX製のシャワートイレを完備。INAXさんはトイレの形もスタイリッシュで素敵ですね。低めに設置された吊戸棚に優しさを感じます。
白一色で清潔感のある洗面台。
収納は洗面台下と横のキャビネット。キャビネットは細かい物が多くなりがちな洗面周りにピッタリです。
水洗はハンドシャワータイプ。寝ぐせくらいなら直せそう。
その横には洗濯機スペース。上部には窓もあり換気もバッチリです。外も自分のバルコニーですから安心ですよ。
浴室は明るい色使いで爽やかな雰囲気。
「切替」ボタンを押してみると、今までは爽やかな雰囲気だった照明が、温かみのある柔らかな雰囲気に変わりました。気分や時間によって変えらるのは嬉しいですね。
追い焚き機能付きでスイッチ一つでお風呂を沸かす事が出来ます。保温もしてくれるので、スマホに夢中で長風呂しても大丈夫!
浴室乾燥機能は浴室の換気をはじめ、お洗濯物乾燥や浴室暖房など様々な機能があります。中には涼風なんてボタンもありますので、暑い季節にも活躍してくれそうですね。
それでは最後に、バルコニーをまとめてご紹介します。
まずはDKのバルコニーから。ドアタイプはちょっと珍しいです。
バルコニーは二つで7.77㎡ですからこちらは4㎡くらいでしょうか。デコボコが少なく広く感じるバルコニーです。物干し金具が付いていてお洗濯物も干せますよ。
少し引っ込んだ所にあるので開放感はあまりありませんが、正面は開けた景色になっています。下に見えるのは北品川駅のホーム。こんなに近いんですね♬
今度は洋室からのバルコニー。こちらは二重サッシになっていて騒音対策もバッチリですよ。
こちらも先程と同じ東向きのバルコニーですが、左右が開けているので陽当りも期待出来そうです。お隣さんも物干し台を置いてこちらに干している様ですね。
南方向…
北方向…
眺めはとても開放的。前は線路ですので目の前に建物が建つなんて事もなく安心です。
・
以上でメガロン御殿山のご案内を終わります。
いかがでしたでしょうか??
品川駅から徒歩9分のマンションです。
リノベーション済みという事で室内はとてもキレイですよ (っ・ω・)っ
内見のご予約やご質問などございましたらお気軽にお問い合わせくださいませ。
ご連絡お待ちしております。
□□□□□□□□□□□□□□□□□□□□□□□□□□□□□□□□□□□□□□□
★★★【メガロン御殿山】周辺のハザードマップをCHECK!!★★★
お部屋のご購入前に…!周辺のハザードマップをチェックしておきませんか!
メガロン御殿山のハザードマップは★こちらから…どうぞ★
□□□□□□□□□□□□□□□□□□□□□□□□□□□□□□□□□□□□□□□
弊社、不動産Agent 六棒株式会社では、一般仲介物件は仲介手数料20%~30%OFF!にてお取り扱いしております!
なるべく沢山のお部屋をホームページに掲載したいと思っておりますが、時間的成約もございますので、残念ながらご紹介できるお部屋の一部しか掲載できておりません。
このホームページに掲載中のお部屋、その他サイト等で気になるお部屋、街を歩いていて気になったマンション等々ございましたら是非、弊社営業部までご相談ください!
~不動産Agent 六棒株式会社の特徴~
・一般仲介物件の仲介手数料は20%~30%OFFにてご案内中です!
・住宅ローンに自信あります!
・頭金10万円より購入できます。是非ご相談下さい!
・お部屋のご見学は車で2~3件まとめて案内します!
・物件数3000件以上、新築戸建、リノベ物件も多数ご用意しております!
過去に販売していたお部屋の概要 このお部屋の販売は終了いたしました。
| 価格 | -万円 |
| 面積 | 45.78㎡ |
| 間取り | 2bedroom(2DK)+WIC |
| 管理費 | 月額:10,200円 修繕積立金:13,190円 |
| 所在階 | 3F |
| お問い合わせ・ご内見のご予約はこちらからお気軽にどうぞ | |
間取りのご紹介です。2DK+WIC、45.78㎡。ゆとりの1人暮らし、もしくはご夫婦でお住いになるイメージでしょうか(●´∀`)
□□□□□□□□□□□□□□□□□□□□□□□□□□□□□□□□□□□□□□□
★★★【メガロン御殿山】周辺のハザードマップをCHECK!!★★★
お部屋の記事を読む前に…!周辺のハザードマップをチェックしておきませんか!
メガロン御殿山のハザードマップは★こちらから…どうぞ★
□□□□□□□□□□□□□□□□□□□□□□□□□□□□□□□□□□□□□□□
エレベーターを降りると明るい内廊下が続きます♪♪内廊下ですので、雨の日も安心です☆
内装は、リノベーション済みですのでピッカピカです☆シックな色合いの木調の清潔感ある落ち着いた玄関です(●´∀`)
シューズボックス上の、アクセントクロスがオシャレです♪♪
照明は人感センサー機能付ですので、玄関を開ければパッと電気がつきます。
玄関入って左手、ロータイプのシューズボックスです♪♪
棚が可動式になっていますので、ブーツの収納もOK☆シューズBOXの上のカウンター部分はちょうどよいディスプレイスペース。インテリアや植物などを置けば華やいだ雰囲気に変わりそうです♪♪
それでは、ダイニングキッチンへ♪♪
約8.9帖のダイニングキッチンです☆
ドア、キッチンキャビネット、パーテンションがブラックの木調で統一されていて大人の雰囲気(*´˘`*)♡
玄関から入って、右手には収納も用意されています♪♪日常使いのものは、こちらにしまって生活感を隠せたら良いですね(´∀`*)
キッチンは、コンパクトなシステムキッチン☆
キャビネットはスライド式なのでキッチングッズの収納も楽々(●´∀`●)
3つ口コンロはお料理好きの方には嬉しいですね♪シンクは大きめで使い勝手◎
冷蔵庫置場もしっかり用意されています☆
サニタリールームの入り口前には作り付けのパーテーションがあります♪♪
キッチン横のお部屋は、洗面台・洗濯機置場・バスルーム・トイレがまとまったサニタリールームです。左手から洗面台・洗濯機置場・バスルーム・トイレの並びになっています。
まずは、オシャレな洗面台♪♪流しの下に収納はありませんが、鏡の裏の収納が大きめです☆ハブラシから洗顔フォームまでゴチャゴチャ散らかりがちな洗面まわりの物もスッキリお仕舞いただけます♪♪
洗濯機置き場です☆
棚等は設置されていませんので、後から棚を設置したり、突っ張り棒で収納を作ったりと工夫したいですね(*´∀`*)
グレーのレンガ模様のパネルと白を基調としたやわらかな雰囲気のバスルーム♪ミラー横にシャンプーなどのボトルもキレイに並べて置ける棚があり、清潔感のある空間を保てますね(*´˘`*)
追い焚きと浴室乾燥機能が付いています。雨の日でも安心してお洗濯ができますよ
(*´∀`*)
トイレは空間に余裕が出来るタンクレスです。もちろんウォシュレット機能が完備されています♪
小さめですが、収納もありますのでストック品の収納や消臭剤を置くスペースとして利用してみて下さい♥♡
ダイニングキッチン反対側の約5.6帖の洋室☆窓は西向きです♪♪第一京浜に面していますので、少し音は気になるかもしれません。
こちらのお部屋には、ウォークインクローゼットがあります!!
上部には棚があったり、下にはバーも付いているので、ロングコート等の衣類の収納にも良いですね♪♪鏡も設置されていて、洋服選びの味方です(*´˘`*)♡
お隣約5.1帖の洋室です☆
ダイニングキッチンとはスライドドアで隔てられています♪♪ライフスタイルにあわせてスライドドアをあけて使っても良いですね♪♪ こちらお部屋を開けるとダイニングキッチンも明るくなります(●´∀`)
それでは、最後にバルコニーに出てみましょう♪♪バルコニーは、第一京浜に面していますので、お洗濯物には工夫が必要です。浴室の乾燥機が助かります(*´∀`*)
アクセスの良いお部屋で充実した生活が送れると思います☆
内見のご希望、ご質問などございましたら、![]()
過去に販売していたお部屋の概要 このお部屋の販売は終了いたしました。
| 価格 | -万円 |
| 面積 | 45.78㎡ |
| 間取り | 1bedroom(1LDK) |
| 管理費 | 月額:10,200円 修繕積立金:13,190円 |
| 所在階 | 6階 |
ここで間取りのご紹介です。1LDK、45.78㎡。
□□□□□□□□□□□□□□□□□□□□□□□□□□□□□□□□□□□□□□□
★★★【メガロン御殿山】周辺のハザードマップをCHECK!!★★★
お部屋の記事を読む前に…!周辺のハザードマップをチェックしておきませんか!
メガロン御殿山のハザードマップは★こちらから…どうぞ★
□□□□□□□□□□□□□□□□□□□□□□□□□□□□□□□□□□□□□□□
玄関ホールです。モニター付きインターフォンが設置されているので
来訪者の顔が確認できて安心です。
玄関をあがったところにシューズBOXがつくられています。
上はカウンターになっているのでインテリアや植物を置いたりしてステキな
玄関を演出できますよ。横にコンセントがついているので電化製品も設置できます。
玄関あがってすぐ右手にある扉の奥は・・・。
約14.0畳のゆとりのあるリビングダイニングキッチン。
エアコン(クリーニング済み)も設置済みです。
2面開口で風通しもよさそうです!
反対側からもご覧ください。
写真左奥の扉は洗面室、左手前はバルコニーの出入り口です。
バルコニーは2か所あるのですが、先にこちら方から出てみます。
ほぼ西向き。
建物と建物の間から外をみるような眺めです。
視界は広くないものの、眺めはグーです。
真っ白のシステムキッチンは上下に収納場所もたっぷりあります。
3口コンロでお料理の支度もはかどりそう♪
キッチン横には棚の高さが変えられる収納もあります。
食材のストックを保管するのにちょうどいいですね。
つづいて洗面室。洗面化粧台、洗濯機置場、バスルーム、トイレと
1か所にまとまってます。
洗面化粧台は鏡の裏が収納になっており、散乱しがちな洗面グッズもスッキリ
収納いただけます。鏡をしめれば生活感も隠せます。
洗面化粧台のすぐ隣は洗濯機置場。窓もあるので自然換気もバッチリできます。
ホワイト基調の明るいバスルーム。鏡の横にシャンプーやボディソープが
置けるトレイがついているので洗い場を少し広く使えますよ。
トイレはウォシュレット付き。
つづいて洋室のご紹介です。入口はリビング内(写真一番右の扉)にあります。
入口手前には幅の広いクローゼットがつくられています。
シューズBOXに入りきらない靴や掃除機などを入れて置いたりと活躍しそうです。
ちなみに一番左の扉の中は給湯器が入っています。
約6.0畳の広さ。一部にカラークロスが使われ、リビングとはまた違う雰囲気でステキ
ですね。こちらのエアコンは新規で設置されています。
収納力バツグンのウォークインクローゼットも設置されています。
収納が大きいと生活スペースを広く使えるのでいいですね。
最後にもう1か所のバルコニーに出てみます。ほぼ西向きで陽当たりグーです。
(リビングと洋室どちらからも出られます)
眺望はもう1か所のバルコニーとほぼ同じですが、視界が広いです!
モサモサ緑と広い空が見えて快適です♪眼下に線路が走っているので
電車好きの方は思う存分、走っているのが見れますよ。
ゼヒ現地を一度ご見学されてみては、いかがでしょうか。
みなさまのご内見、こころよりお待ちしております!
過去に販売していたお部屋の概要 このお部屋の販売は終了いたしました。
| 価格 | -万円 |
| 面積 | 45.78㎡ |
| 間取り | 2bedrooms(2DK) |
| 管理費 | 月額:10,200円 修繕積立金:月額13,190円 |
| 所在階 | 6階 |
間取り図はこちら。
南東角部屋の2DK 45.78㎡
□□□□□□□□□□□□□□□□□□□□□□□□□□□□□□□□□□□□□□□
★★★【メガロン御殿山】周辺のハザードマップをCHECK!!★★★
お部屋の記事を読む前に…!周辺のハザードマップをチェックしておきませんか!
メガロン御殿山のハザードマップは★こちらから…どうぞ★
□□□□□□□□□□□□□□□□□□□□□□□□□□□□□□□□□□□□□□□
シューズBOXのほか、正面に収納もあります。
玄関ホール入ってすぐにダイニングキッチン8.5帖。
南東向きの陽当りの良いお部屋は、ダイニングまで明るい日差しが差し込みます。
幅の広いI型キッチンは、収納も大変豊富です。
キッチン脇にはここにも収納スペースがあり、可動棚なので背の高いものも楽々収納できます。
ダイニングから出れるバルコニーもあります。
こちらはサニタリールーム。窓もあり換気もばっちり!
もちろん追炊き付のバスルーム。トイレもウォシュレットです。
窓が大きく大変陽当りの良いベッドルームは6.0帖。
リビングとしてもお使いになれる間取りです!
こちらは隣の6.0帖のベッドルーム。
クローゼットはこちら側のみですが、十分な大きさです。
ベッドルームを繋ぐ長いバルコニー。洗濯物もよく乾きそうです!
バルコニーからの眺望は抜けています。
すぐ下は線路で音は若干…。
平成26年3月頃に大規模修繕工事予定とお部屋も玄関ドア窓アルミサッシ新規交換予定(平成26年9月頃)ですので安心ですね!
みなさまのご内見、こころよりお待ちしております!
過去に販売していたお部屋の概要 このお部屋の販売は終了いたしました。
| 価格 | -万円 |
| 面積 | 46.21㎡ |
| 間取り | 2bedrooms(2LDK) |
| 管理費 | 月額10,310円 修繕積立金:月額13,320円 |
| 所在階 | 9階 |
| お問い合わせ・ご内見のご予約はこちらからお気軽にどうぞ | |
ここで間取りをご紹介します。2LDK、46.21㎡。
コンパクトながら2部屋しっかりあります。
□□□□□□□□□□□□□□□□□□□□□□□□□□□□□□□□□□□□□□□
★★★【メガロン御殿山】周辺のハザードマップをCHECK!!★★★
お部屋の記事を読む前に…!周辺のハザードマップをチェックしておきませんか!
メガロン御殿山のハザードマップは★こちらから…どうぞ★
□□□□□□□□□□□□□□□□□□□□□□□□□□□□□□□□□□□□□□□
内廊下なので道路沿いとはいえ、ここは静かです。
白と水色でさわやかな感じです。
玄関ドアも水色。角部屋になります。
玄関入ると右手シューズBOX、左手にニッチがつくられています。
玄関+廊下のスペースはそんなに広さはありませんが、
ニッチにお好きなインテリア小物や写真を飾れば
ステキな玄関を演出できますね!
シューズBOXは片面に鏡がついていて、お出かけ前の全身チェックも
ここでサッと済ませられます。
収納量も◎!となりには物入れもつくられています。
室内はまずはリビングからご紹介です。
約10.0畳のLDK。うすい木目調のフローリングに白いクロスで
明るい空間になっています。
家具付きでの販売になるので、置いてある家具はもらえますよ!
ちょっと物が入ってしまっていますが・・・LDKには物入れもつくられています。
3口コンロのシステムキッチンは上下にたっぷり収納場所がつくられています。
下には大きなお鍋やフライパンもサクサクしまえそうです。
水栓には浄水器もついています。
水廻りはコンパクトに1か所にまとまっています。
洗面所入って、右手前に洗面台、右手置くに洗濯機置場、正面にバスルーム、
左手にトイレの並びになっています。
三面鏡のついたシャンプードレッサーは、鏡の裏に小物が収納できるように
なっています。ここにハブラシや洗面まわりで使う小物はガッチリ収納できます。
洗濯機置場の上側には窓がありました。
水廻りの自然換気ができるっていいですね。
浴室乾燥機と追焚機能のついたバスルーム。
木目柄のパネルでナチュラルな雰囲気。リラックスできそうです。
ウォシュレット付きのトイレ。上に棚がついているので、
トイレットペーパーなどのトイレまわりの用品はこちらに置いていただけます。
つづいて洋室を2部屋ご紹介します。
約6.1畳の広さ。西向きになります。
収納力抜群のウォークインクローゼットがつくられています。
2部屋目はLDK奥の可動式トビラの向こうです。
約4.5畳の広さ。ピクチャーレールがついているので写真のようにお好み
の絵なんかを飾ることができますよ。
季節によって飾るものを変えれば簡単にお部屋の雰囲気も変えられそうです。
最後にバルコニーに出てみます。
2か所あり、左写真が洋室2部屋から出られるバルコニー、
右写真がLDKから出られるバルコニーとなっています。
10階の高さがあるので、ながめは◎!モサモサと緑も見えて快適です。
ただ・・・線路と道路が近いので電車と車の走る音はします。
気にならない方は全く気にならないと思いますので、
是非現地をご覧いただいてご確認されることをお勧めします。
ちなみにトビラは2重サッシになっているので閉めれば室内はモチロン静かです。
みなさまのご内見を心よりお待ちしております!

























































































































































































































































































































































弊社 公式HP
六棒総合研究所
掲載予定物件
価格変更と販売終了物件
ハザードマップ検索
適合証明書.jp
Instagram