・
□□□□□□□□□□□□□□□□□□□□□□□□□□□□□□□□□□□□□□□
いつも弊社ホームページをご覧頂き誠にありがとうございます。
戸山ハイツはお陰様で販売を終了致しました。弊社問合せフォームにてご要望頂けましたら、当お部屋でキャンセル等が発生した場合、他のお部屋が販売になりました際にご紹介させて頂きます。
不動産Agent 六棒株式会社
TEL:03‐5413‐5336
□□□□□□□□□□□□□□□□□□□□□□□□□□□□□□□□□□□□□□□
・
本日は学生で賑わう西早稲田にやってまいりました。
リノベーションマンション『戸山ハイツ』のご紹介です!
早稲田大学理工キャンパスの近くです!
東京メトロ副都心線「西早稲田」駅からスタート。地上に出ると明治通りです。
「戸山ハイツ」は駅から徒歩4分という便利な立地。なお、都営大江戸線「東新宿」
駅徒歩10分、東西線「早稲田」駅は徒歩11分。
明治通りには早稲田大学理工学部キャンパス、その向かいにはユニクロ&マクド
ナルド&ビッグボーイ。最近は大学キャンパスの中にタリーズがあるんですねえ。
マクドナルドの横の道を入っていきます。通りに沿って遊歩道?が整備されており、
桜がはらはらと舞い散る中、チューリップが咲き乱れております。ちょっと進むと
右側に、戸山アパート群の敷地が広がっています。どこを見ても花と緑に彩られ、
まるで絵の中のような感じがします。
「戸山ハイツ」昭和48年1月築、総戸数215戸、 14階建て。
築年数は経過していますが、平成22年に大規模修繕工事を実施しているからでしょうか、
非常に綺麗な外観です。
エントランス側からみた外観。大きいですねぇ!
戸山ハイツ27。ちなみにまわりに24、25、26・・・とたくさん建っています。
エントランス前にも花壇&大きいハナミズキの木がありました。
エントランス横にはマンション専用のゴミ置場がありました。
いつでもゴミが出せると思うとストレスも減りそうです。。。
エントランスを通り抜け、ロの字型の共用廊下の中心にあるモニュメント。
1階の中央あたりに管理事務所、その横に集会室がありました。
さすが大規模コミュニティ、エレベーターが3基設置されています。
そしてエレベーター中にも椅子が置いてありました。

共用廊下にも、ちょっとしたスペースを利用して木の切り株を模した椅子発見。
敷地内には駐車場、駐輪場もありました。
空き状況は変動するのでご内見の際にご確認くださいませ。
共用廊下は風通しの良い外廊下です。
中央部分は吹き抜けになっていて開放感があります。
道路など外に面していないのでプライバシーも保ちやすいですね!
廊下から下を覗いてみると・・・1階のモニュメントが小さく見えてちょっと足がすくみました(;^ω^)
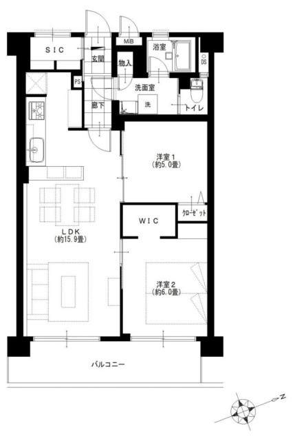
ここで間取り図のご紹介です。
※間取り図は別タブで開きますので、確認しながらご覧いただくことができます。
今回ご紹介するお部屋は14階、専有面積62.32㎡の1SLDK。ファミリーでも十分な広さですが、間取り的にはお一人暮らしやDINKSの方がゆったり暮らすイメージのような気もします。では、さっそく行ってみましょう!
玄関入ってすぐの所には約1.3帖のシューズインクローゼット!
靴がたくさん置けるのはもちろん、キャリーバッグやベビーカー、ゴルフバッグなどお部屋の中にはチョット…といったものを入れておくのにも便利です。
さらに隣には約2帖のウォークインクローゼット!!!
ハンガーパイプや棚、引き出しなどが設置されたマルチタイプなので、吊るす物も畳む物もバランス良く収納することができますよ。シーズンオフの家電などの置き場にも使えそうですね。
廊下の反対側には洗面室。
洗面化粧台の他に洗濯機スペース、リネン棚、トイレ、浴室がまとまっていて脱衣室も兼ねています。最近は洗濯機をキッチンや廊下などいろいろなところに置くようになりましたが、個人的にはやっぱり洗面室がしっくりくるような気がします。帰って来て手を洗った後やお風呂へ入る前など、洗濯物がでるタイミングって洗面室だと思いませんか?
トイレは洗浄機能一体型。トイレットペーパーのストックや掃除道具を入れておくのに便利な吊戸棚も付いています。
マンションでは貴重な窓付きの浴室!
「休みの日は朝風呂だ~♪」とか、なぜか窓が付いたお風呂と出会うとテンションが上ってしまうんですよね(^-^; たぶん温泉をイメージしちゃうんだと思います。白を基調にした優しい色使いでリラックスした気分でバスタイムを過ごせそうですね。追い焚き機能付き。
こちらは約15.5帖のリビング・ダイニング・キッチン。
縦長のお部屋にキッチン、ダイニング、リビングと並べるオーソドックスなレイアウト。ディスプレイの家具(小物は除く)は付いてきますので、このままのイメージで新生活をスタートしていただくことができますよ。TVボードやインテリアカウンターなどが設置されたオシャレなお部屋です。
南東向きバルコニーに面した大きな窓からの光が明るいリビング部分。
夜になれば柔らかい間接照明の光にダウンライトやスポットライトのアクセントが加わり、また違った表情を見せてくれそうです。
キッチンは人気のカウンタータイプ。
見晴らしが良くお料理中でも会話しやすいのが特徴です。食器洗浄乾燥機や浄水機能一体型水栓など便利機能も充実!!広さがあってしっかりお料理が出来るキッチンです。
こちらは約5.4帖の洋室。
LDKと同じ南東向きバルコニーに面したお部屋です。朝起きてカーテンを開ければ朝日で気持ち良く目覚められそうですね。収納はウォークインクローゼット!L字型にハンガーパイプが付いた約0.8帖のスペースです。
こちらは約4.5帖のサービスルームと約1.9帖のワークスペース。
サービスルームとは、採光などの関係で法律上「洋室」と呼べないお部屋のこと。あくまでも法律上なので居室として使えることがほとんどです。こちらのお部屋もクローゼットの付いた立派な洋室なのでご心配なく。
ワークスペースはデスクや棚が造り付けになった即戦力のお部屋。在宅ワークなどに重宝します。解放感のあるガラス張りですから、集中したい方はロールスクリーンなどを付けるのもアリかもしれませんね。
・
以上で戸山ハイツのご案内を終わります。
いかがでしたでしょうか??
西早稲田駅から徒歩4分のマンションです。
リノベーション済みという事で室内はとてもキレイですよ (っ・ω・)っ
内見のご予約やご質問などございましたらお気軽にお問い合わせくださいませ。
ご連絡お待ちしております。
弊社、不動産Agent 六棒株式会社では、
□リノベーションマンションはほぼ全て仲介手数料無料!
□その他一般仲介物件は仲介手数料20%~30%OFF!
にてお取り扱いしております!※弊社の「Agent Fee=仲介手数料」についてはご案内、ご面談の際に営業担当者よりご説明いたします!
なるべく沢山のお部屋をホームページに掲載したいと思っておりますが、時間的成約もございますので、残念ながらご紹介できるお部屋の一部しか掲載できておりません。
このホームページに掲載中のお部屋、その他サイト等で気になるお部屋、街を歩いていて気になったマンション等々ございましたら是非、弊社営業部までご相談ください!
~不動産Agent 六棒株式会社の特徴~
・一般仲介物件の仲介手数料は20%~30%OFFにてご案内中です!
・リノベーションマンションについてはほぼ全て仲介手数料無料です!
・住宅ローンに自信あります!
・頭金10万円より購入できます。是非ご相談下さい!
・お部屋のご見学は車で2~3件まとめて案内します!
・物件数3000件以上、新築戸建、リノベ物件も多数ご用意しております!
過去に販売していたお部屋の概要 こちらのお部屋の販売は終了いたしました
| 価格 | -万円 |
| 面積 | 58.79㎡ |
| 間取り | 2bedrooms(2LDK) |
| 管理費 | 月額9,800円 修繕積立金:月額15,000円 |
| 所在階 | 9階 |
| お問い合わせ・ご内見のご予約はこちらからお気軽にどうぞ | |
ここで間取り図とリノベーション内容のご紹介です。
※間取り図は別タブで開きますので、確認しながらご覧頂くことが出来ます。
◆リノベーション内容◆ (2020年1月)
・給湯器交換 ・全室クロス張替 ・洗濯水洗器具交換
・システムキッチン交換 ・全フローリング張替 ・防水パン交換
・ユニットバス交換 ・全建具交換 ・スイッチパネル設置
・洗面台交換 ・CF張替 ・スポットライト設置
・トイレ交換 ・下足入れ交換 ・ダウンライト設置
・照明器具設置 ・インターホン交換 ・玄関人感センサー設置
・ライティングレール設置 ・・・等
今回ご紹介するお部屋は9階、間取りは2LDK+WIC+SIC、専有面積は58.79㎡。15帖超のLDK、豊富な収納が要チェックですね。早速行ってみましょう!
玄関ドアには安心のダブルロック!ダブルロックには入り難くすると同時に、狙われづらくする効果があるそうですよ。人感センサーが設置され、もう暗い中スイッチを探す必要もありません。いつでも明るい玄関が迎えてくれるのも嬉しいですよね(^^)
玄関横には奥行きのある大型シューズインクローゼット。この広さだと靴だけ入れとくのは勿体ない。キャリーバッグやスーツケース、ゴルフバッグなど嵩張る物もまとめて入れておきましょう!窓もあるので湿気や匂いも籠りませんよ。
洗面室には洗面台の他に、洗濯機スペース、浴室、物入、トイレがまとまっていて、脱衣所も兼ねています。脱いですぐ洗濯出来れば便利ですね。白一色の清潔感のある洗面台はキャビネット付き。細々した物が多くなりがちな洗面廻りに収納が多いのは助かります。
トイレにはトイレットペーパーなどの収納に便利な棚も付いていました。もちろん、洗浄便座付き。今は当たり前の設備で、無かった時代があったなんて不思議な感じがします。
浴室は白を基調にした明るい雰囲気。気分も明るく明日への活力も湧いて来そう♬ 窓があるので換気もバッチリですね。
こちらは約15.9帖のリビング・ダイニング・キッチン。南東向きバルコニーに面した窓が明るいですね。縦長で、奥にリビング、手前にダイニングキッチンとレイアウトがしやすいタイプのお部屋です。ナチュラルカラーの室内は、ホッとするような温かみのある雰囲気がありますよ♬
ゆとりのある広さで「バルコニーへ行くのが大変」なんて事もありません。アクセントウォールもお洒落ですね。
一見カウンターキッチンのようですが、調理台は横向きに設置された壁付けタイプ。LDの方を向いたカウンターが設置され、L字型のキッチンになっています。とはいえ、キッチン内も見えづらくなっていますし、お料理中のコミュニケーションも取りやすそう。カウンターキッチンのいい所は全部備えているんですね。ナイスアイデア♪♪
キッチン内を見ていきましょう。
調理台下にはスライドキャビネット、壁には造作棚が設置されていました。スライドキャビネットは、引き出し式で大きな鍋などもスムースに入ります。ぎっしり詰めても出し入れがしやすいのもいいですよね。棚での収納は上手く使えばキッチンをセンスアップ可能!「見せる収納」に挑戦です(^^)
こちらは約6帖の洋室。リビングと同じバルコニーに面したお部屋です。お部屋にはクローゼットやデスクが造り付けられていて家具は最小限で済みますよ。ワーキングスペースなどに最適なデスクですが、ダイニングテーブルなどで代用してわざわざ用意する方って少ないような気がします。初めから付いているのは有難いですね。
クローゼットは扉の無いタイプのウォークインクローゼット。両側にハンガーポールが設置されています。キッチンと同じで整理整頓が必要ですが、湿気が籠らないというメリットもありますよ。
こちらは約5帖の洋室。引き戸使用でデッドスペースも出来ず、お部屋のスペースを無駄なく使う事が出来ますよ。窓の無いお部屋ですが、すりガラスの扉からはLDKからの光が入って暗い感じはありません。プライバシーが欲しい時はロールカーテンなどを設置しましょう!
・
以上で戸山ハイツのご案内を終わります。
いかがでしたでしょうか??
西早稲田駅から徒歩4分のマンションです。
リノベーション済みという事で室内はとてもキレイですよ (っ・ω・)っ
内見のご予約やご質問などございましたらお気軽にお問い合わせくださいませ。
ご連絡お待ちしております。
弊社、不動産Agent 六棒株式会社では、
□リノベーションマンションはほぼ全て仲介手数料無料!
□その他一般仲介物件は仲介手数料20%~30%OFF!
にてお取り扱いしております!※弊社の「Agent Fee=仲介手数料」についてはご案内、ご面談の際に営業担当者よりご説明いたします!
なるべく沢山のお部屋をホームページに掲載したいと思っておりますが、時間的成約もございますので、残念ながらご紹介できるお部屋の一部しか掲載できておりません。
このホームページに掲載中のお部屋、その他サイト等で気になるお部屋、街を歩いていて気になったマンション等々ございましたら是非、弊社営業部までご相談ください!
~不動産Agent 六棒株式会社の特徴~
・一般仲介物件の仲介手数料は20%~30%OFFにてご案内中です!
・リノベーションマンションについてはほぼ全て仲介手数料無料です!
・住宅ローンに自信あります!
・頭金10万円より購入できます。是非ご相談下さい!
・お部屋のご見学は車で2~3件まとめて案内します!
・物件数3000件以上、新築戸建、リノベ物件も多数ご用意しております!
過去に販売していたお部屋の概要 このお部屋の販売は終了いたしました。
| 価格 | -万円 |
| 面積 | 58.99㎡ |
| 間取り | 3bedrooms(3LDK) |
| 管理費 | 月額9,800円 修繕積立金:月額15,000円 |
| 所在階 | 2F |
| お問い合わせ・ご内見のご予約はこちらからお気軽にどうぞ | |
今回ご紹介のお部屋は2階となりますので高所恐怖症の方もご心配なく(^^)
ではここで、間取り図をご紹介いたします。
間取り図は別タブで開きますのでご覧になりながらがお勧めですよ。
階数は2階、間取りは3LDK、専有面積は58.99㎡のお部屋となっています。
では、さっそく行ってみましょう!
開放感のある外廊下を進むと…
玄関に到着です。
玄関にはカメラ付きインターホンだけでなくダブルロックも設置されていて、防犯面でとても心強いです(^^)
それではお邪魔します…
廊下の床は大理石が貼られていています!天井のライトが映り込んでいてキラキラと綺麗ですね。廊下まで大理石は珍しく高級感があります。
振り返って玄関内の様子です。
人感センサーがありますので玄関に入るだけで自動的にライトが点きます。荷物がいっぱいで手が塞がっていても安心ですね。
扉横に飾り棚、その隣にはシューズボックスがありました。
シューズボックスはトールタイプですので収納力はバッチリです。棚は高さが変えられるのでブーツなどでも問題なく収納出来ますよ。
まずは、正面のスリットガラス入りのドアから開けてみましょう。
こちらがリビング・ダイニング・キッチンとなります。
ナチュラルな雰囲気の明るいお部屋ですね。バルコニーに面した窓から光が射しています。
リビング部分です。
家具は付いている訳ではありませんが、置いてあると実際の生活のイメージがつかみやすくて助かります。エアコンは付いていますのでご安心下さい(^^)
天井には間接照明、ダウンライト、スポットライトなど様々なライトが…照明へのこだわりを感じますね。
ダイニングテーブルもここに置けばキッチンから手渡しでお料理を受取る事が出来ていいですね。
ではキッチンを見ていきましょう。
コンロは3口、片面焼きグリルが付いています。
コンロが3つもあると、手の込んだお料理にも挑戦したくなりませんか(^^)
食洗機も完備されています。
洗い物は食洗機にお任せして、食後はみんなでのんびりしちゃいましょう。
水栓は浄水機能付きシャワー水栓になっています。
ヘッドが伸びるのでシンクを流したりに便利ですよ。シンクもつなぎ目の無いタイプでお掃除がしやすくなっています。
オープンキッチンですので、お料理中は換気扇をお忘れなく。
では次のお部屋へ…
リビング部分の引き戸になります。
こちらが南側の洋室となります。
やはりバルコニーに面していますので、とても明るいお部屋です。
白い引き戸を開けるとクローゼットがありました。
パイプがL字に設置された広いクローゼットになっています。床面が広いので大きなスーツケースなども楽々置けそうですよ。
次はキッチン部分の引き戸を開けてみます。
こちらが真ん中の洋室となります。
真ん中という事でこのお部屋には窓がありませんが…
引き戸は壁部分に全て引き込む事が出来ますので、お部屋をつなげて使う事が出来ます。
これなら明るくていいですね。
しかもキッチンからも良く見えますので、小さいお子様などのプレイルームにしても安心ですよ。
それではいちど廊下に出ます。
廊下にも収納がありました。
間口は狭いですが奥行きがあって真四角に近い形ですので、意外とたくさん入りそうです。
こんどは、廊下のドアを開けてみます。
洗面室となります。
真っ白で清潔感のある洗面台ですね。
水栓はハンドシャワータイプですので、朝のシャンプーはこちらでいかがですか?洗面ボウルも大き目ですので水跳ねも気になりませんよ。
洗濯機スペースはこちらにありました。上部には収納も付いています。
洗面室の入口には5㎝ほどの段差がありました。慣れるまではお気を付け下さい。
では、浴室を見てみましょう。
ん??違和感が・・・
なるほど、こういう事ですか。
浴槽が小さいと思ったら縦になっていたんですね、ビックリしました^^;
追い焚き機能ではありませんが、お湯はりというボタンがありますので自動的にお風呂を張ってくれるようです。
個人的に窓のある浴室が大好物なんですよ。朝風呂なんかいいですよね♬
窓はありますが、カビ予防の為にも浴室乾燥機を活用しましょう。
洗面室内の引き戸を…
トイレです。
タンクレスタイプのスッキリとしたデザインですね。
もちろんウォシュレットも完備されています。TOTOさんお世話になってます(^^)
次のお部屋へ…
廊下の引き戸です。
こちらが西側の洋室となります。
窓は外廊下に面していますので面格子が設置されています。外廊下には開放感がありましたので窓も明るいですよ。換気の為のルーバーも付いていました。
このお部屋のクローゼットは間口が広くて使いやすそうなタイプでした。
それでは最後にバルコニーへ出てみましょう。
幅も広く、奥行きもある広々としたバルコニーになります。
物干し竿受けも手摺と天井の二か所にありますので、お天気のいい日には思いっきりお洗濯が出来ますね。床もデッキパネルが引かれていてとても綺麗になっていました。
低い段差がありますのでそこだけは気を付けて下さいね。
2階とは思えない素晴らしい眺めです♬
今日は樹木の剪定作業をしているようで、きちんと手入れもしているんですね。
とても静かで聞こえて来るのはセミの声だけ…都心にいる事を忘れてしまいそうです。気候が良い季節にはイスを持ち出してバルコニーでのんびりなんて良いかもしれませんね♬
・
・
以上で戸山ハイツのご案内を終わります。
いかがでしたでしょうか??
西早稲田駅から徒歩4分のマンションです。
リノベーション済みという事で室内はとてもキレイですよ (っ・ω・)っ
内見のご予約やご質問などございましたらお気軽にお問い合わせくださいませ。
ご連絡お待ちしております。
弊社、不動産Agent 六棒株式会社では、
□リノベーションマンションはほぼ全て仲介手数料無料!
□その他一般仲介物件は仲介手数料20%~30%OFF!
にてお取り扱いしております!※弊社の「Agent Fee=仲介手数料」についてはご案内、ご面談の際に営業担当者よりご説明いたします!
なるべく沢山のお部屋をホームページに掲載したいと思っておりますが、時間的成約もございますので、残念ながらご紹介できるお部屋の一部しか掲載できておりません。
このホームページに掲載中のお部屋、その他サイト等で気になるお部屋、街を歩いていて気になったマンション等々ございましたら是非、弊社営業部までご相談ください!
~不動産Agent 六棒株式会社の特徴~
・一般仲介物件の仲介手数料は20%~30%OFFにてご案内中です!
・リノベーションマンションについてはほぼ全て仲介手数料無料です!
・住宅ローンに自信あります!
・頭金10万円より購入できます。是非ご相談下さい!
・お部屋のご見学は車で2~3件まとめて案内します!
・物件数3000件以上、新築戸建、リノベ物件も多数ご用意しております!
過去に販売していたお部屋の概要 このお部屋の販売は終了いたしました。
| 価格 | -万円 |
| 面積 | 58.79㎡ |
| 間取り | 2bedrooms(2LDK) |
| 管理費 | 月額9,800円 修繕積立金:月額15,000円 |
| 所在階 | 12階 |
| お問い合わせ・ご内見のご予約はこちらからお気軽にどうぞ | |
2LDK、58.79㎡。リノベーション済みです。
12階、南東向きにつき陽当り・眺望良好です。
間取りはクリックすると別タブで開くのでゼヒ写真と見比べながらご覧ください♫
お部屋は12階。エレベーターでグイグイ昇ってきました。
インターホンはTVモニターがついており、来訪者の顏が確認できるので防犯面も安心です。
ではグリーンの玄関扉をあけて室内へおじゃまします。
昭和48年築と築年数は経過していますが、室内はリノベーション済みで新築同様ピカピカです。玄関ホール、ゆとりがありますね!
玄関横の扉の中はシューズインクローゼットです。これなら靴集めが趣味の方も靴ってなかなか捨てられないのよねぇ、なんて方も大丈夫。まとめて収納できますよ!
玄関ホールは靴が散らからず、キレイに片付きそうですね!
玄関をあがると廊下がまっすぐのびています。
ちなみに玄関ホールと廊下はつるつるの大理石です。高級感がありますねぇ!
では廊下をまっすぐ進んだ正面にある扉をあけてリビングダイニングキッチンから見ていきましょう!
リビングダイニングキッチンは南東向きの縦長空間です。
もう少し窓際へ進んで。。。リビングダイニングです。
家具が置いてあるので実際の生活イメージもわきやすいですね!
エアコンが設置されているので引っ越したその日から快適な生活が送れます。
横から見るとこんな感じです。大きな家具も余裕を持っておけます。
窓側からもリビングダイニングキッチンをご覧ください。
キッチンは対面式。リビングにいる家族と会話を楽しみながらお料理ができますよ~。明るい窓向かってお料理するとなんだか気分も上がりそうです♡
キッチンの収納は物の出し入れがしやすいスライド収納です。
ファイルボックスなどを利用するとデッドスペースを作らずキレイに収納できるようです。(ネット情報)
設備はというと、浄水器一体型シャワー水栓、食洗機、グリル、コンロ3口と充実しています。キッチンにはこだわりたい!なんて方もこれなら満足いただけるのではないでしょうか(*´∀`)大きなお鍋にお水を入れる時はホースを伸ばすと便利ですよ。
2部屋ある洋室はリビングダイニングキッチンを介していけるようになっています。
1部屋目、キッチン横の2枚の可動扉側の洋室を見てみましょう。
キッチン横の洋室です。こちらのお部屋には窓はありませんが、エアコンが設置してあります。
そして収納にウォークインクローゼットがついています。
収納が大きいと居住スペースを有効的に利用できるのがうれしいですね!
扉をあけておくとキッチン側から洋室内がよく見えます。
お隣の洋室で遊ぶお子様の様子を見ながらお料理をする、なんて時に便利に使えそうですね(*‘ω‘ *)
洋室の扉の間には2人並んで座れるくらいのデスクが造作されています。
上に本を並べてちょっとした書斎のように使ったりするのもいいかも♡
デスクの右隣にもう1部屋の洋室の扉があります。
こちらの洋室は南東向きのバルコニーに面している明るいお部屋です。
壁面の一部には落ち着いた色合いのカラークロスが使われています。
こちらのお部屋にもウォークインクローゼットがついています。
今度はリビングダイニングキッチンを出て廊下側を見ていきましょう。
レッツゴー!!
廊下を出て右側の扉は洗面室です。
洗面室。脱衣スペースを囲むように洗面化粧台、洗濯機置場、トイレ、バスルームがここにまとまっています。お掃除もまとめてこなしやすそうですね。
洗面化粧台と洗濯機置場はお隣同士。
洗剤はシンク下の収納スペースに仕舞っておくと生活感が隠せて見た目もスッキリしそうです。
水栓はホースを伸ばしてシャワーとしても利用可能です。
シンクのお掃除をする時はホースを伸ばすと便利ですよ!
洗面化粧台の向かい側には可動棚付きの収納が造作されています。
タオルなどのリネン類から洗面周りの小物、ドライヤー、などなどまとめてここに仕舞っておけそうです。扉がついているので見た目もスッキリ。
洗面室一番奥の扉はトイレです。
トイレはウォシュレット付き。
トイレ内に収納はないので後から棚などを設置してもいいかもしれません。
DIYがお好きな方は腕がなりそうです。
バスルームの扉の横には浴室換気乾燥機の操作パネルがついています。
乾燥機があれば雨の日や夜のお洗濯物も安心ですね+.゚(*´∀`)b
バスルームはナチュラルな色合いの木目調の壁パネルが4面に使われています。
癒される雰囲気だ(´▽`人)
バスタブはしっかり浸かれるサイズ。
余談ですが、1日の疲れをとるにはお湯に浸かるのが一番いいらしいですよ。
洗面室の向かい側の扉はなんと、ウォークインクローゼットです。
この住戸内、3個もウォークインクローゼットがあるんです!
荷物が多い方にはうれしい限り。片付いた空間で快適な毎日が過ごせそうですね。
最後にリビングとお隣の洋室をつなぐバルコニーに出てみましょう。
わくわく。
バルコニー単体の広さは不明ですが、ご覧のとおりお洗濯物がたくさん干せそうな広さです。南東向きで陽当りも文句ありません!
そして眺望も文句なし!!スパーンと抜けた眺めが真正面です。
スカイツリーも見えました。これはきらめく夜景も拝みたいところです。
左右も同じ風景が続きます。陽ざしを遮る高い建物はありません。
眼下は緑がたくさんみえますが・・・桜の木っぽい気がする。
春はバルコニーからお花見が楽しめるかも!
戸山ハイツ、いかがでしたでしょうか?
内見のご予約やご質問などございましたらお気軽にお問い合わせくださいませ。
ご連絡お待ちしております。
過去に販売していたお部屋の概要 このお部屋の販売は終了いたしました。
| 価格 | -万円 |
| 面積 | 58.79㎡ |
| 間取り | 2bedrooms(2LDK) |
| 管理費 | 月額9,800円 修繕積立金:月額15,000円 |
| 所在階 | 3階 |
| お問い合わせ・ご内見のご予約はこちらからお気軽にどうぞ | |
それでは今回ご紹介させて頂くお部屋の間取りです。
さっそく参りましょう!!
エレベーターからは外廊下になっています。
雨、風の影響を受けますが、その代わり湿気や臭いが籠らないという利点もあります。
ペット可のマンションは外廊下の方がいいと思いますよ(*・д・)
玄関の外にはカメラ付きのインターフォンが付いています。
オートロックは付いていませんが、お部屋の中から外を確認できるので防犯面でも安心できますね∠(`・ω・´)
それでは玄関です。
白で統一された清潔感のある玄関です。玄関廊下は大理石貼りなのでホテルのような高級感も漂っています。
玄関左手のドアを開けるとシューズインクローゼットがあります。
これだけの容量があれば、ご家族全員分の靴も余裕をもって収納できそうですね(´∀`)
棚の高さは調節できるので靴以外の物でも大丈夫ですよ。
隣りにはウォークインクローゼットもあります。
ウォークインクローゼットに季節もののお洋服を掛けておけば、面倒な衣替えもすぐに終わりますね!!
湿気が籠らないように適度な換気は必要ですよ!!
玄関右手には洗面室があります。
水栓はシャワーヘッドになっています(*^艸^)
簡単な洗髪もできますし、洗面ボウルの隅々まで水を流すことができるので掃除も楽になりますよ!
3枚のミラーの内部はキャビネットになっているので、歯ブラシや基礎化粧品、髭剃りなどはこちらに収納出来ます。
特に水廻りはなるべく綺麗に整頓できるように心がけたいです。
背後には収納が付いています。
扉がついているので人目につくことも無いですね。こちらの棚も高さの調節ができるので下部には掃除機なども入りそうです。
隣りには洗濯機置場があります。
脱いだ服をそのまま洗濯機に入れることができるので、お部屋が服で散らかることもないですよヽ(゚▽゚*)乂(*゚▽゚)ノ
続いてはお風呂です。
浴室乾燥機能が付いているので、洗濯機であらったお洋服をすぐ干すことができます。
雨の日もお風呂に洗濯物を干せると梅雨の時期でも助かりますね。
アイボリーの優しい雰囲気の壁には、縦に長いミラーが付いています。
横長のミラーも良いですが、オーソドックスな縦長ミラーはやはり使いやすく安定感があります。掃除もしやすいですしね!
窓が付いているので自然の光が入ってきますよ。
追い焚き機能を使えばいつでも熱いお風呂に入ることができます。
帰りが遅くなっても、熱いお風呂に浸かることができると週末まで頑張れる気がしてきます(・`ω´・ ○)
洗面室に戻ると次はトイレです。
ウォシュレットが付いているのは嬉しいですね。最近では付いていて当たり前の機能になりつつあります!
TOTOのトイレはかなり計算されて設計されているようです。
古いものに比べると使用する水の量は4分の1に、汚れの付きにくい特殊素材も使っているので環境にもお財布にも優しいトイレです(*ノД`*)
廊下を抜ければキッチンがあります。
水栓には浄水器能が付いています。
重いお水を買ってこなくてもいいので積極的に使うことができますね。
簡単なお料理でも浄水を使って作ると全然味が違ってくるらしいですよ!!
食器洗浄機もあります。ボタン1つで乾燥まで終わらせてくれます。
食後の後片付けの事を考えなくていいと、お料理へのモチベーションも上がってきますね(*^艸^)
コンロは3口のグリル付きガスコンロです。
このコンロがあればほとんどの家庭料理は問題なく作ることができそうです。
グリルで焼いた秋刀魚なら毎日でも食べられそうです。秋が待ち遠しいですね!!
では次は、リビング・ダイニングです。
ここは写真を見て頂けば伝わるかと思いますね!! 。゜+.(o´∀`o)゜+.゜
窓は東向きです。午前中に太陽の光が入って来るのは良いですね。
気持のいい朝を迎えられそうです。
レール上のダウンライトは位置と向きを自由に調節できますよ!
それでは先に進みましょう。
スライド式のドアで仕切られているので、開けたまま使っても良さそうですよ。
クローゼットが付いています ( ・∀・)
ハンガーポールがL字に付いているので意外と大量のお洋服を掛けられそうです。
和室も付いています。
最近は畳を見かけることも少なくなってきました。畳の井草の香りってなんだか落ち着きますよね(っ´∀`c)
畳は「琉球畳」と呼ばれる縁なし正方形です。
素材や織り方、カラーバリエーションも様々なものが売っていますので、カスタマイズして楽しむのも良いかもしれませんよ。
東向きの窓からは朝日が差しこんで来るので、気持ちのいい目覚めで朝を迎えられそうです(☆Д☆)
クローゼットが付いていますね。
寝室にクローゼットがあると、余計な家具を置かなくて済むので部屋が広く使えます。
最後にバルコニーです。
2部屋にまたがる長いバルコニーは、洗濯物を干してもまだ余裕がありそうです。
少し高台になっているので、見える景色は6階くらいからの景色に見えますね!
公園も近く、緑の多い地区ですので夏でも涼しげですよヾ(*´∀`*)ノ
以上で、戸山ハイツのご紹介を終わります。
如何でしたでしょうか?
西早稲田駅より徒歩4分。都会の中の緑に囲まれたマンションです。
リフォーム済み、ペット可のお部屋でした。
内見のご予約やご質問などございましたらお気軽にお問い合わせくださいませ。
ご連絡お待ちしております。
過去に販売していたお部屋の概要 このお部屋の販売は終了いたしました。
| 価格 | -万円 |
| 面積 | 58.79㎡ |
| 間取り | 2bedrooms(2LDK) |
| 管理費 | 月額9,800円 修繕積立金:月額15,000円 |
| 所在階 | 13階 |
| お問い合わせ・ご内見のご予約はこちらからお気軽にどうぞ | |
はい、今回ご紹介するのはこちらのお部屋!!
さっそく行ってみましょう!!
こちらが玄関です。
入って左手にシューズボックスがありますね。
姿見が付いているのでお出かけ前のコーディネートチェックはこちらでバッチリです!!
白い壁に足元の間接照明がゴージャスな雰囲気を出していますよ(☆Д☆)
さて、玄関右手にサニタリールームがあるのでそちらにご案内いたしますね!
洗面台の横に洗濯機置場がありますね。
シンクは奇をてらう事もなく馴染み深いスタンダードなものが採用されています。
ミラー裏の収納とシンク下をうまく使ってサニタリールーム周辺で使う消耗品などは片付けてしまいたいですね!小さな棚を置いたりしてもいいと思いますよ(・ω・)b
トイレは洗濯機置き場のお隣に。
きちんとウォシュレットは付いていますよ!!
ただ、トイレには収納が無いのでトイレットペーパーの予備は市販のホルダーなどが必要かもしれませんね(`ω´)
お風呂は浴室乾燥機能付きなので雨の日でも洗濯には困りませんね。
また、小さな窓がついているのでお風呂に入った後は湿気を出してしまえますよ!
手すりも付いているので深めの浴槽への出入りも助かります。
では、リビングダイニングへ。
13帖もあればとても広く感じますよ!!
壁にはエコカラットという素材が使われています。
エコカラットは空気を整えるインテリア壁材で、カビやダニを抑制して快適な湿度に保ちつつ、ニオイや有害なホルムアルデヒドさえも低減させる現代版の土壁です。とりあえずなんかすごいやつですね。(゚A゚;)
見えていたキッチンです。
3口のグリル付きガスコンロ、浄水機能付きの水栓、食器洗浄機が付いています。
あと、聞きなれないかもしれませんが「ミセスコーナー」という場所がキッチン横に設けられています。
ミセスコーナーとは主婦のための書斎とでも言いましょうか、パソコンを置いても良し、読書のスペースにしても良し、お子さんの宿題はここで、、、なんていうのもありかもしれませんね。つまりどう使うかは自由なのです。
ミスターが使ってもいいですしね(*^艸^)
こちらはリビングダイニングの横にあるサービスルームです。
窓が付いていればベッドルーム、なければサービスルームと名前が変わるだけですのでベッドルームとしてご利用いただいても構いませんし、引き戸を開ければリビングダイニングが更に広くなりますよ。
こちらはリビングからみてバルコニー側にあるお部屋です。
こちらもリビングとは引き戸で仕切られているので、戸を開けておけばリビングの一部としてもお使い頂けます。
ハンガーポール付きのクローゼットがあるのも嬉しいですねヽ(´∀`)
こちらは先程のお部屋の隣に位置している、約6帖の洋室です。
大きめのクローゼットがあると衣替えが楽でいいですよね(*・д・)
おそらくは寝室としてお使いになるのではと思います。13階、東向きのバルコニーから朝日を浴びて目が覚める、なかなか贅沢ですよ??
ということで、バルコニーです。
バルコニーは思っていたより広く感じるかもしれませんね。洗濯物を干場所は十分にあります。外が心地よい季節はイスを出してカフェタイムはいかがでしょうか?
晴れていればもっといい感じなのですが、そこは想像力で補ってください。
遠くに押上のスカイツリーが見えるのが分かりますか?
視界を邪魔する建物がないので夜景もとてもきれいだと思いますよ!! ヾ(*≧∀≦)ノ゙
以上で戸山ハイツのご案内を終わります。
いかがでしたでしょうか?
東側には緑が多く、西側すぐ近くには新宿という本当に恵まれた立地だと思います。
内見のご予約やご質問などございましたらお気軽にお問い合わせくださいませ!!
過去に販売していたお部屋の概要 このお部屋の販売は終了いたしました。
| 価格 | -万円 |
| 面積 | 62.37㎡ |
| 間取り | 3bedrooms(3LDK) |
| 管理費 | 月額:9.800円 修繕積立金:月額15.000円 |
| 所在階 | 7階 |
| お問い合わせ・ご内見のご予約はこちらからお気軽にどうぞ | |
お部屋は7階。落ち着いたグリーンのドアです。
ここで間取りのご紹介。62.37㎡、3LDK。南西向きなので、日当たり良さそうです!
玄関の床タイルは、かすかに光沢を帯びたダークグレイともダークブラウンとも
つかない微妙な、しかし洗練された色合い。入って右手にはトール型のシューズ
ボックスが配されています。傘や靴べらなどを置くためでしょうか、玄関ドアとの間に
ちょっとしたスペースが設けてありました。
約10.6帖のリビングダイニングキッチン。フローリングがほぼクリーム色で明るい
ので、より広々明るく感じます。
リビングダイニングの一角にキッチン。フローリングと対照的な、ほぼブラックの
ダークブラウンに人造大理石トップのホワイトが映えて美しいです。
シンクの水栓は浄水器一体型。
キッチンとなりには洗濯機置き場があります。家事動線が短くて、忙しい時に
助かりそうですね。窓は外部廊下に面していますが、カーテンレールが設置されて
いるのでお好みのカーテンをかけるもよし、換気を考えてブラインドをつけるのも
いいかもしれません。
大きな一枚鏡が特徴的な洗面化粧台。無駄のない機能美を感じさせます。
継ぎ目のない洗面ボウルは、ドライエリアとウェットエリアが分けられているので
濡れたものの置き場所に困ることもありません。
洗面化粧台となりには、棚板が可動式の収納が設けられています。バスタオルや
シャンプー・リンスなどのストックをしまっておくのにちょうどいいですね。
ダークブラウンの壁面パネルがスタイリッシュな印象のバスルーム。窓があります
ので、お風呂上がりの換気がバシッとできます。小さめですがカウンターや、小物
を置いておけるトレイ×2も設置されています。
トイレは洗面室の奥にあります。もちろんウォシュレット付。上部には配管をよけつつ
吊戸棚が設置されているので、トイレットペーパーのストックや掃除用品はこちらに
片付ければ床スッキリです。
リビングダイニングから引き戸で二部屋につながっているわけですがまずこちら、
窓がないほうの4.3帖の洋室。一面には異なるクロスが貼り分けられ、もう一面はま
るまるクローゼットになっています。クローゼット部分も引き戸ですので、普段は
家具など前に置いてても大丈夫ですね。
バルコニー側の洋室。小さめですがしっかりクローゼットも設置されています。
バルコニーは南西向き。日当たりとっても良いです!目の前には公園があるほか、
敷地内は緑が豊かで癒される風景が広がっています。7階ですので抜け感も
バッチリ。
リビングダイニングからドアでつながっている、約6.4帖の洋室。こちらからも
バルコニーに出られます。
宜しければ動画もぜひぜひご覧ください!
YouTubeはこちら↓
https://www.youtube.com/watch?v=BownTwxiNrw
Dailymotionはこちら↓
http://www.dailymotion.com/video/x1n7mjs
「戸山ハイツ」、いかがでしたか?どこに出るにも便利な副都心線・駅徒歩4分、
さらに敷地内には緑がいっぱい、公園もあり、桜もあちこちにあります![]()
さらなる緑とマイナスイオンを求める方は、お近くの戸山公園を熱くおすすめします。
なお、ペットの飼育も可能です(犬猫OK、ただし細則あり)
皆様のご内見、心よりお待ちしております!























































































































































































































































































弊社 公式HP
六棒総合研究所
掲載予定物件
価格変更と販売終了物件
ハザードマップ検索
適合証明書.jp
Facebook
Twitter
Instagram