・
□□□□□□□□□□□□□□□□□□□□□□□□□□□□□□□□□□□□□□□
いつも弊社ホームページをご覧頂き誠にありがとうございます。
目黒グレースマンションはお陰様で販売を終了致しました。弊社問合せフォームにてご要望頂けましたら、当お部屋でキャンセル等が発生した場合、他のお部屋が販売になりました際にご紹介させて頂きます。
不動産Agent 六棒株式会社
TEL:03‐5413‐5336
□□□□□□□□□□□□□□□□□□□□□□□□□□□□□□□□□□□□□□□
・
□□□□□□□□□□□□□□□□□□□□□□□□□□□□□□□□□□□□□□□
★★★【目黒グレースマンション】周辺のハザードマップをCHECK!!★★★
お部屋の記事を読む前に…!周辺のハザードマップをチェックしておきませんか!
目黒グレースマンションのハザードマップは★こちらから…どうぞ★
□□□□□□□□□□□□□□□□□□□□□□□□□□□□□□□□□□□□□□□
ハザードマップもご確認いただきましたので、次は街をご紹介していきます!
今回は、JR山手線『目黒駅』から徒歩9分の場所に位置する『目黒グレースマンション』のご紹介です!因みに目黒駅は山手線以外に「東急目黒線」・「都営三田線」・「東京メトロ南北線」と、1駅で4路線もご利用できます!
駅には「商業施設 アトレ」が併設していて、ついつい寄り道してしまいますね
まずは、白金台方面へ目黒通りを進みます!
目黒駅周辺はコンビニ・飲食・銀行など、生活するのに必要なものが一通り揃っていますので、とても住みやすい街だと思います(*^。^*)
上大崎の信号を右折し、首都高速2号線沿いを進みます!
交差点までおいしそうなお店がいっぱいです。
これは帰りの寄り道に注意です(;一_一)
交差点を右折し、まっすぐ進めば目的地です(*^。^*)

重厚な館銘板とオレンジの幌が特徴的な目黒グレースマンションに到着です。
こちらはサブエントランスでメインエントランスは手前の道から入ります。
広々としたエントランスです。
外壁のレンガ調タイルと両サイドに植えられた植栽が味わい深い雰囲気で、とても素敵です(^_-)-☆
エントランスの手前には平置きの駐車場があります。
奥へ進むとレンガ調タイル貼りの立派な駐輪場がありました(*^。^*)屋根付がうれしいですね!
共用部はこんな感じです。
オートロックはありませんが、入口には管理人室があり、管理人さんが目を光らせています。
エントランスや廊下もピカピカで管理が行き届いていていました\(◎o◎)/!

エントランスホールにはソファ、丸テーブルが設置されていますので、たまにはこちらで管理人さんと談笑するのも良いかもしれません!
エレベーターは全部で3基。
窓がなくてまるで壁のようですね(^_^;)

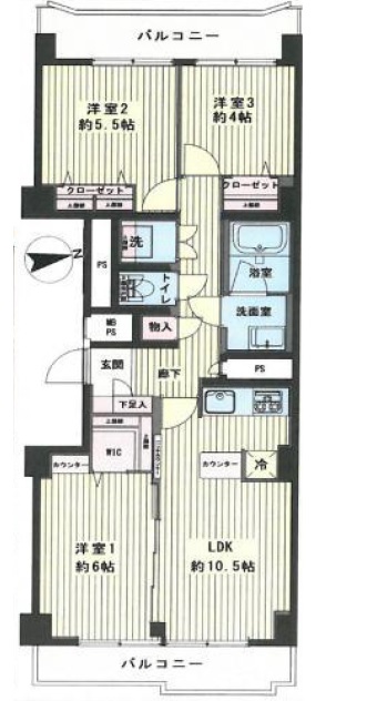
まずは間取り図からご紹介します。
※間取り図は別タブで開きますので、間取り図と記事や写真を照らし合わせながらご覧いただくことができます。
今回のお部屋は8階、間取りは3LDK、専有面積は66.96㎡。角部屋&ダブルバルコニーの窓がいっぱいのお部屋です。
□□□□□□□□□□□□□□□□□□□□□□□□□□□□□□□□□□□□□□□
★★★【目黒グレースマンション】周辺のハザードマップをCHECK!!★★★
お部屋の記事を読む前に…!周辺のハザードマップをチェックしておきませんか!
目黒グレースマンションのハザードマップは★こちらから…どうぞ★
□□□□□□□□□□□□□□□□□□□□□□□□□□□□□□□□□□□□□□□
では、さっそく行ってみましょう!

ガラス張りの扉からリビングの光が届く明るい玄関。夜間も、人感センサーが設置されているのでいつでも明るい玄関が迎えてくれます。暗い中手探りでスイッチを探す必要はもうありません。消し忘れも防げて一石二鳥ですよ♬

こちらは約12.3帖のリビング・ダイニング・キッチン。
角部屋ならではの二面採光!!!明るいのはもちろんのこと、風通しも良好なお部屋です。温もりを感じるナチュラルカラーのフローリングにシンプルな白を組み合わせ、とても居心地が良さそうですね。フローリングには抗ウイルス・抗菌性能があるそうですよ。

LDKはキッチン、ダイニング、リビングと並ぶ、縦長のオーソドックスなお部屋ですが、隣の洋室との仕切り扉が素通しガラスになっていることによって広々とした印象になっています。

こちらが約4.6帖の洋室側からの様子。
大きなウォークインクローゼットが付いたお部屋です。ウォークインクローゼットはハンガーポールや収納棚などが設置されたマルチタイプ。室内に収納家具の必要はなさそうです。プライバシーが欲しい時はロールカーテンなどがおススメ!

キッチンはL字型のカウンタータイプ。通常は壁に面することの多いコンロ部分も、大きな窓のおかげで明るく開放的になっています。こんなキッチンに立ったらテンションが上がって、ますますお料理が好きになりそうですね♬ 食器洗浄乾燥機など料理のサポートも充実しています。
廊下へ戻って、次のお部屋へ…

こちらは約5.5帖の洋室。
西向きバルコニーに面したお部屋です。リビングから離れた独立性の高さや、洋室の中では一番大きいということからメインのベッドルームにお勧め。間口が広くて使いやすそうなクローゼットも付いていますよ。

こちらは約4.4帖の洋室。
お隣に比べると少し小さめですが、こちらには窓が二つ!!明るさと解放感では負けていませんよ。ややコンパクトながらクローゼット付き。

トイレはTOTO製ウォシュレット付。いろいろ飾れるカウンターや、トイレットペーパーのストックに便利な吊戸棚も付いています。

白とシルバーでまとめられた清潔感のある洗面化粧台。身だしなみを整えるのに便利な三面鏡や、お子様でも使いやすい低い位置のミラーなど有難いポイントがたくさん。収納も様々なタイプがあって、細かいものから大きめのものまでバランスよく収まりそうですね。

浴室は木目のアクセントパネル使用で落ち着いた雰囲気。横長のミラーが実際より広く感じさせてくれます。追い焚き機能と浴室換気乾燥機付き。浴室換気乾燥機は換気だけでなく、暖房、涼風、浴室乾燥と一年を通してお風呂を快適に過ごす機能がたくさん!洗濯物乾燥も出来るので天気を気にせず洗濯機を回せますよ。

最後にバルコニーへ…
こちらはLDKに面した東向きのバルコニー。午前中を中心に陽当たりは良好ですよ。大通り側なので車の音が気になるかもしれませんね。私はあまり気にしない方なので、ご自身で一度ご確認をお願いします。

こちらは反対側の西向きバルコニーからの眺め。
うん、言うこと無いですね♬ 程よく緑もあって季節感も感じられそうです。この方向は大使館なども建ち並ぶ閑静な住宅街。東側と違ってとても静かですよ。
・
以上で目黒グレースマンションのご案内を終わります。
いかがでしたでしょうか??
目黒駅から徒歩9分のマンションです。
リノベーション済みという事で室内はとてもキレイですよ (っ・ω・)っ
内見のご予約やご質問などございましたらお気軽にお問い合わせくださいませ。
ご連絡お待ちしております。
弊社、不動産Agent 六棒株式会社では、
□リノベーションマンションはほぼ全て仲介手数料無料!
□その他一般仲介物件は仲介手数料20%~30%OFF!
にてお取り扱いしております!※弊社の「Agent Fee=仲介手数料」についてはご案内、ご面談の際に営業担当者よりご説明いたします!
なるべく沢山のお部屋をホームページに掲載したいと思っておりますが、時間的成約もございますので、残念ながらご紹介できるお部屋の一部しか掲載できておりません。
このホームページに掲載中のお部屋、その他サイト等で気になるお部屋、街を歩いていて気になったマンション等々ございましたら是非、弊社営業部までご相談ください!
~不動産Agent 六棒株式会社の特徴~
・一般仲介物件の仲介手数料は20%~30%OFFにてご案内中です!
・リノベーションマンションについてはほぼ全て仲介手数料無料です!
・住宅ローンに自信あります!
・頭金10万円より購入できます。是非ご相談下さい!
・お部屋のご見学は車で2~3件まとめて案内します!
・物件数3000件以上、新築戸建、リノベ物件も多数ご用意しております!
過去に販売していたお部屋の概要 このお部屋の販売は終了いたしました。
| 価格 | -万円 |
| 面積 | 66.96㎡ |
| 間取り | 3bedrooms(3LDK) |
| 管理費 | 月額20,000円 修繕積立金:月額17,000円 |
| 所在階 | 13F |
| お問い合わせ・ご内見のご予約はこちらからお気軽にどうぞ | |
まずは間取り図からご紹介します。
※間取り図は別タブで開きますので、間取り図と記事や写真を照らし合わせながらご覧いただくことができます。
今回のお部屋は13階、間取りは3LDK、専有面積は66.96㎡。全部屋バルコニー付きのファミリータイプのお部屋です。
□□□□□□□□□□□□□□□□□□□□□□□□□□□□□□□□□□□□□□□
★★★【目黒グレースマンション】周辺のハザードマップをCHECK!!★★★
お部屋の記事を読む前に…!周辺のハザードマップをチェックしておきませんか!
目黒グレースマンションのハザードマップは★こちらから…どうぞ★
□□□□□□□□□□□□□□□□□□□□□□□□□□□□□□□□□□□□□□□
では、さっそく行ってみましょう!
エレベーターで13階に到着しました。
玄関扉はベージュのレトロ感漂うものですが、インターホンは最新のものが設置されています。モニター付きなので、お部屋にいながら来訪者の確認ができて防犯面で安心感があります。
それでは、お邪魔しまーす♪
玄関扉を開けるととても明るいインテリアがお迎えしてくれます。
真っ白な空間に木目調の扉が映えますね
シューズボックスの扉には姿見が設置されており、お出かけ前の身だしなみチェックに便利にお使いいただけます。
玄関はレトロながらダブルロック!ダブルロックになるだけで防犯性もかなり高まります。
シューズボックスはトール型。シューズボックス下にはフットライトが設置されていて、何だか高級感を醸し出していますね!
玄関の照明は人感センサー付き。人の動きを感知して照明をONしてくれるので、夜暗闇の中スイッチを探さなくてもOK![]()
どんどん行きましょう!玄関を上がってすぐ右手にある扉をご案内します。
こちらは約10.2帖のリビングダイニングキッチンです。
バルコニー側の掃き出し窓は東向き、腰高窓は北向きとなります。
とても明るいリビングダイニングです。
北側の腰高窓からは首都高速を見下ろせます。クルマ好きなお子様にはうれしい窓かもしれませんが、覗き込みすぎて落下しないようにご注意ください!
インターホンのモニターはコンパクトでスッキリとしたデザインですね。
インターホンの下にはカウンターがあり、お掃除ロボットの基地としてお使いいただくことができるように工夫されています。電源もあり、至れり尽くせりですよ!!
カウンターの右側にはウォークインクローゼットがあります。可動棚が設置されており、ファミリーライブラリーとしてもお使いいただけそうです。どんどん増えていく本は収納場所を確保するのが大変ですが、このようなスペースに置いておけばリビングダイニングで本を読む習慣にもつながりそうです。
コンパクトにまとめられたリビングダイニング。ダイニングテーブルとソファ、テレビ台を置くとこのような感じで収まります。
バルコニー側からダイニングキッチン方面を見るとこのような眺めです。
キッチンには窓があり、とても開放感があります。
薄い木目で統一された明るいキッチンです。
キッチンのキャビネットは引出し収納となっております。キッチン上部には吊戸棚があり、合わせるとかなりの収納量があるので頼もしい限りです。
キッチン背面には冷蔵庫置場と電子レンジや炊飯器を置くことができるカウンターがあります。
コンロは3口、魚焼きグリル付き。それぞれにセンサーがついており、温度管理がラクラク行えます。特に揚げ物の際にご利用いただくと、その便利さを実感していただけると思いますよ!!
レンジフードは薄型で圧迫感がありません。窓からの景色も邪魔しないように設計されています。
キッチンの窓からも首都高速を見渡すことができます。窓がある明るいキッチンは憧れです![]()
食器洗浄乾燥機完備で、お食事後のお片づけもラクラクですね!
キッチンの水栓は浄水機能付き。ヘッドが引き出せるので便利にお使いいただけます。デザインもなかなか格好良いです。
続きまして、リビングのガラス入り引き戸を開けてみます。
こちらは約4.9帖の洋室です。こちらの洋室からもバルコニーに出入りできますよ!
この洋室には機能的なシステム収納があらかじめ設置されています。まるで家具のような収納。どのように使おうか、考えるだけでも楽しくなりそうです。
ガラス入りの引き戸は完全に壁側に引き込むことができます。
吊り下げタイプの扉で床にレールもないため、リビングダイニングと一体化してお使いいただくことも可能です。
引き戸を開け放つと開放感があります!室内の景色もかなり変わってきますよ!
廊下へ戻ってきました。今度は玄関から左へ進みます。扉がたくさん並んでいて、ワクワクします![]()
玄関を上がってすぐ左手にある観音開きの扉内は納戸になっています。棚板がないので、ご自身でアレンジしてお使いください!
隣にある扉を1枚飛ばしてその先の扉を開けると、その中はウォークインクローゼットになっていました。こちらは可動棚がたくさん設置されています!
先ほどご案内を飛ばした扉の中は…
トイレでした!真っ白で清潔感があります。
トイレの便座は温水洗浄暖房便座。トイレ上部には吊戸棚があり、トイレットペーパーのストックを収納するなど便利にお使いいただけます。現在吊戸棚の扉は補修中でした!
トイレと廊下を挟んで向かい側の扉の中は…
おっと!こちらは廊下の床との間に段差があります。慣れるまでは躓かないように注意が必要です。
扉の中は洗面室でした。船に使われていそうな照明が素敵です![]()
シンプルにまとめられた洗面室。広さはそんなにありませんが、機能がギュッと凝縮されています。
洗面化粧台の水栓はシャワーと切り替えが可能、かつ蛇口が引き出せるタイプのものが採用されています。
鏡の裏、そして洗面化粧台の下は全て収納となっております。
洗面化粧台の背面に浴室があります。
木目調のアクセントパネルが落ち着いた空間を演出しています。
浴槽は追い焚き機能付き。そしてこちらの浴室にはTVも付いています!TV大好きなご家族にはたまらないですね!お風呂からなかなか出られなくなりそう(笑)
シャワーヘッドはスライドバーに設置されており、高さ調整が可能です。カウンターや固定棚などもスッキリとしていて便利にお使いいただくことができます。
浴槽は曲線が多用されており、体にフィットするタイプです!
浴室内には浴室暖房換気乾燥機が設置されています。洗濯物がなかなか乾きにくい季節でも、こちらを使えばカラッと仕上がります!
さて、廊下の突き当たりまでやってきました。
まずは左側の扉からご案内していきます。
こちらは約5.8帖の洋室です。バルコニーに出入り可能な掃き出し窓からは明るい光が差し込んできます。
先ほどのリビング側にあった洋室同様、こちらの洋室も家具調のシステム収納が設置されています。ここまで作り込まれていると、何も考えなくても綺麗に物が収まりそうです。
右側の最後の扉を開けますよ!
こちらは約4.7帖の洋室です。2面に窓があるなんて贅沢ですね〜!!
こちらも家具調のシステム収納が設置されています。扉がないことにより、きちんと整理しなければ!という気持ちも芽生えそうですね!収納内の空気も循環するのでメリットの方が多そうです。
では最後に西側と東側のバルコニーをまとめてご紹介します。
こちらが西側のバルコニーです。どちらの洋室からも出入り可能です。
奥行きも幅も申し分ないバルコニー。こちらのバルコニーには物干し金物が設置されています。プライベートゾーンにあるので、来客時に干してある洗濯物を見られてしまうこともありません。
目の前に広がる緑はタイ王国の大使館。改修工事中なのは大使公邸のようです。適度に緑があって良い眺めですね!
続いて東側のバルコニーをご紹介します。
こちらのバルコニーも先ほどご紹介したバルコニーと同じくらいの広さ感です。
高輪、品川方面が一望できます。遠くまで見渡せますよーー!!
晴れた日は青い空がとても近く感じますね!
・
・
・
以上で目黒グレースマンションのご案内を終わります。
いかがでしたでしょうか??
目黒駅から徒歩9分のマンションです。
リノベーション済みという事で室内はとてもキレイですよ (っ・ω・)っ
内見のご予約やご質問などございましたらお気軽にお問い合わせくださいませ。
ご連絡お待ちしております。
□□□□□□□□□□□□□□□□□□□□□□□□□□□□□□□□□□□□□□□
★★★【目黒グレースマンション】周辺のハザードマップをCHECK!!★★★
お部屋のご購入前に…!周辺のハザードマップをチェックしておきませんか!
目黒グレースマンションのハザードマップは★こちらから…どうぞ★
□□□□□□□□□□□□□□□□□□□□□□□□□□□□□□□□□□□□□□□
弊社、不動産Agent 六棒株式会社では、
□リノベーションマンションはほぼ全て仲介手数料無料!
□その他一般仲介物件は仲介手数料20%~30%OFF!
にてお取り扱いしております!※弊社の「Agent Fee=仲介手数料」についてはご案内、ご面談の際に営業担当者よりご説明いたします!
なるべく沢山のお部屋をホームページに掲載したいと思っておりますが、時間的成約もございますので、残念ながらご紹介できるお部屋の一部しか掲載できておりません。
このホームページに掲載中のお部屋、その他サイト等で気になるお部屋、街を歩いていて気になったマンション等々ございましたら是非、弊社営業部までご相談ください!
~不動産Agent 六棒株式会社の特徴~
・一般仲介物件の仲介手数料は20%~30%OFFにてご案内中です!
・リノベーションマンションについてはほぼ全て仲介手数料無料です!
・住宅ローンに自信あります!
・頭金10万円より購入できます。是非ご相談下さい!
・お部屋のご見学は車で2~3件まとめて案内します!
・物件数3000件以上、新築戸建、リノベ物件も多数ご用意しております!
過去に販売していたお部屋の概要 このお部屋の販売は終了いたしました。
| 価格 | -万円 |
| 面積 | 66.96㎡ |
| 間取り | 2bedrooms(2LDK) |
| 管理費 | 月額20,000円 修繕積立金:月額17,000円 |
| 所在階 | 12階 |
| お問い合わせ・ご内見のご予約はこちらからお気軽にどうぞ | |
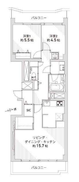
エレベーターに乗っている間に、間取り図のご紹介です。
※間取り図は別タブで開きますので、間取り図と記事や写真を照らし合わせながらご覧いただくことができます。
今回のお部屋は12階、間取りは2LDK、専有面積は66.96㎡。ワイドな15帖超リビングが特徴のファミリータイプのお部屋です。角部屋のため窓が多く確保されているのと、何と言っても二面バルコニーが魅力ですね♪
□□□□□□□□□□□□□□□□□□□□□□□□□□□□□□□□□□□□□□□
★★★【目黒グレースマンション】周辺のハザードマップをCHECK!!★★★
お部屋の記事を読む前に…!周辺のハザードマップをチェックしておきませんか!
目黒グレースマンションのハザードマップは★こちらから…どうぞ★
□□□□□□□□□□□□□□□□□□□□□□□□□□□□□□□□□□□□□□□
・
エレベーターを降りると2戸の玄関が向かい合ったエレベーターホールに出ます。正しいエレベーターに乗らないと1階からやり直しなので気を付けましょう!
玄関扉はかなりのレトロな雰囲気を醸し出していますが、設備は刷新されています。
インターホンはモニター付。オートロックはないものの、お部屋にいながら誰が訪ねてきたのか確認できるのはとても安心感があります。
それでは早速お部屋の中をご案内していきましょう♪
お邪魔しまーす!
いきなり広々とした玄関が目に飛び込んできました。
現在玄関のタタキ部分は養生中ですが、養生が外されればもっと素敵になりますよ!
玄関を入って右手にはオープンなシューズインクローゼットがあります。お気に入りの靴をさりげなくディスプレイしておくこともできますね!
玄関を上がった正面にはタイルの貼られたアクセントウォールがあります。ちょっとした小物をディスプレイしたり、壁面に絵を飾ったりして楽しめそうです。
玄関の照明は人感センサー付。人の動きを感知して照明を点灯させてくれるので、何かにつけて便利です!!
まずは玄関を上がって右手にあるガラス入りの扉を開けて中をご案内していきますよ!!
こちらが約15.8帖のリビングダイニングキッチンです。二面採光でとても明るいお部屋です。バルコニー側は東向き、腰高窓側は北向きです。
腰高窓からは首都高速が一望できます。夜の首都高の夜景、個人的に好きです♡
天井はコンクリートに白の塗装が施されており、無骨な雰囲気が漂っています。ライトもそれに合わせてインダストリアルな感じです。
黒のダクトレールが空間を引き締めていますね。ダクトレールは簡単に照明を増減できるのでかなり便利にお使いいただけると思います。
リビングダイニングに隣り合ってワークスペースが確保されています。アイロンがけなどの家事はもちろんのこと、テレワークスペースやお子様の学習スペース、ファミリーライブラリーなどにも使えそう。ちょっとしたアトリエのようですね!
こちらはキッチンです。
白のタイルがなかなか良い感じのイマドキなキッチン。
食器洗浄乾燥機付で食後のお片づけも楽々ですね!
キッチンキャビネットは引出し収納となっております。
吊戸棚はオープン収納。自慢のお鍋を置いたり、グリーンを飾っても良いですね!
キッチンの背面には冷蔵庫置場とオープン棚があります。オープン棚だと置いておく物にも気合が入りそうです。![]()
キッチンの水栓は浄水器一体型。シャワーヘッドも引き出せてとても便利にお使いいただけます。
コンロは3口魚焼きグリル付。最近はグリル部分で使用できる便利な調理グッズが販売されているので、お料理の幅も広がりそうです。
レンジフードも無骨な雰囲気。排気のダクトが剥き出しでなかなかの迫力です。
キッチンの奥にも角部屋ならでは、窓があります。換気や明かり取りとして大活躍してくれること間違いなしです。窓の下には作業台を調達すれば、とても機能的なキッチンの出来上がりです!
キッチンからリビングダイニングを眺めてみるとこんな感じです。
ワイドなリビングダイニングをどのように使おうか、夢が広がります。
廊下に戻ってきました。なんと玄関脇には写真左のような棚があります。棚は可動式なので、最下段の棚の高さを上げればベンチとしてもお使いいただけそうです。お子様がいらっしゃるご家族なら、こちらをちょっとした遊び場としても面白そうです。
更に廊下を進んだところには、比較的奥行きのある納戸があります。掃除道具を始めとして様々な用途にお使いいただけそうです。
さて、棚と納戸の間には引き戸がありました。引き戸の中もご案内しますね!
おっと、こちらは廊下から一段高くなっておりますので、躓かないように気をつけてください。
引き戸の中はトイレでした。床のグレーのタイルに背壁の木目と、なかなか雰囲気のあるトイレです。
トイレ上部には吊戸棚付き。こちらにはトイレットペーパーをストックしておくことができます。ペーパーを切らした時にすぐ上にあると思うと安心感があります。
便座はもちろん温水暖房洗浄便座です!
トイレを出ると向かい側に扉があります。そちらもご案内します♪
床にはトイレと同じくらいの段差があるので、こちらも気をつけてください!
扉の中は洗面室でした。
配管剥き出しでオシャレにデザインされた洗面化粧台です。![]()
鏡は何だか絵画の額縁のようです。洗面化粧台右手にはオープン棚があります。カゴなどを置いてお好きなようにアレンジできます。
洗面ボウルは置き型。カウンターの木目と陶器の白の素材感が活かされています。
黒い水栓を採用することで空間がグッと引き締まりますね。
こちらが浴室です。壁のパネルがインパクトありますね!!
浴槽は追い焚き機能付き。帰宅時間がバラバラのご家族でもボタン一つで温かいお風呂ができあがります!
シャワーはスライドバーに設置されているので、高さ調整が自由自在です。座って浴びるときも立って浴びるときも最適な高さ設定が可能ですよ![]()
浴槽はシンプルな形状でお掃除しやすそうですね。
浴室内には浴室暖房換気乾燥機が設置されています。洗濯物が乾きにくい季節はこちらの乾燥機を活用すればカラッと乾かすことができます。
洗面室を出て廊下を突き当たりまで進むと扉が2枚あります。まずは左側の扉から開けていきます!
こちらは約5.7帖の洋室です。洋室側にもバルコニーがあるため掃き出し窓が設置されています。とても明るく清々しい感じがします。
お部屋の入り口側にはクローゼットがあります。
割と幅のあるクローゼットですので、収納家具等をすっぽりと収めることができそうですね。
今度は右側の扉を開けてみましょう♪
こちらは約4.4帖の洋室です。バルコニーへ出入りできる掃き出し窓に加えて腰高窓もあり、明るさ十分です!
先ほどの洋室とは異なり、こちらの洋室はオープン収納となっています。
子供部屋にちょうど良さそうな広さ感です。これだけ明るいと日中のお勉強も捗りそうですね!
それでは、最後にバルコニーをまとめてご紹介します。
まずは西向きのバルコニーから。どちらの洋室からでも出られます。
幅・奥行き共に程よいサイズのバルコニーです。物干し金物付きです。
完全に抜けているので、目黒方面を一望できます。なかなかの眺めです![]()
次は東向きのバルコニーをご紹介します!
こちらも西側と同じような広さ感です。物干し金物はなさそうですが、置き型の物干しを置くスペースはありますよ!
こちらも完全に抜けているので、品川方面を遠くまで見渡すことができます!いい眺めですね!バルコニーが2面あると、洗濯物をどちらに干すか、季節によって選べるのでかなり便利にお使いいただけますよ!
・
・
・
以上で目黒グレースマンションのご案内を終わります。
いかがでしたでしょうか??
目黒駅から徒歩9分のマンションです。
リノベーション済みという事で室内はとてもキレイですよ (っ・ω・)っ
内見のご予約やご質問などございましたらお気軽にお問い合わせくださいませ。
ご連絡お待ちしております。
□□□□□□□□□□□□□□□□□□□□□□□□□□□□□□□□□□□□□□□
★★★【目黒グレースマンション】周辺のハザードマップをCHECK!!★★★
お部屋のご購入前に…!周辺のハザードマップをチェックしておきませんか!
目黒グレースマンションのハザードマップは★こちらから…どうぞ★
□□□□□□□□□□□□□□□□□□□□□□□□□□□□□□□□□□□□□□□
弊社、不動産Agent 六棒株式会社では、
□リノベーションマンションはほぼ全て仲介手数料無料!
□その他一般仲介物件は仲介手数料20%~30%OFF!
にてお取り扱いしております!※弊社の「Agent Fee=仲介手数料」についてはご案内、ご面談の際に営業担当者よりご説明いたします!
なるべく沢山のお部屋をホームページに掲載したいと思っておりますが、時間的成約もございますので、残念ながらご紹介できるお部屋の一部しか掲載できておりません。
このホームページに掲載中のお部屋、その他サイト等で気になるお部屋、街を歩いていて気になったマンション等々ございましたら是非、弊社営業部までご相談ください!
~不動産Agent 六棒株式会社の特徴~
・一般仲介物件の仲介手数料は20%~30%OFFにてご案内中です!
・リノベーションマンションについてはほぼ全て仲介手数料無料です!
・住宅ローンに自信あります!
・頭金10万円より購入できます。是非ご相談下さい!
・お部屋のご見学は車で2~3件まとめて案内します!
・物件数3000件以上、新築戸建、リノベ物件も多数ご用意しております!
過去に販売していたお部屋の概要 このお部屋の販売は終了いたしました。
| 価格 | -万円 |
| 面積 | 66.96㎡ |
| 間取り | 2bedrooms(2LDK) |
| 管理費 | 月額20,000円 修繕積立金:月額17,000円 |
| 所在階 | 9階 |
| お問い合わせ・ご内見のご予約はこちらからお気軽にどうぞ | |
ここで間取り図のご紹介です。
間取り図は別タブで開きますので、ご覧になりながらがお勧めです。
今回のお部屋は9階、間取りは2LDK、専有面積は66.96㎡となってます。
全部のお部屋にバルコニーがついてるんですね。明るくて、風通しが良さそうです♬
□□□□□□□□□□□□□□□□□□□□□□□□□□□□□□□□□□□□□□□
★★★【目黒グレースマンション】周辺のハザードマップをCHECK!!★★★
お部屋の記事を読む前に…!周辺のハザードマップをチェックしておきませんか!
目黒グレースマンションのハザードマップは★こちらから…どうぞ★
□□□□□□□□□□□□□□□□□□□□□□□□□□□□□□□□□□□□□□□
では、さっそく行ってみましょう!
エレベーターを降りると、そこはもう玄関前でした。
玄関にはカメラ付きインターホンとダブルロックが付いています。面倒かとは思いますが、鍵はふたつ共掛けたり、モニターでしっかり確認してからドアを開けたりしましょうね。安全の為です(^^)
それではお邪魔します…
扉を開けると右側にドアがひとつあり、廊下は左の方に続いているようです。このタイプ、真っ直ぐ廊下が伸びているタイプに比べて玄関からお部屋の中が見えにくいという利点があります。最近は宅配便やフードデリバリーなどで、知らない方が玄関に来る機会も増えましたからね。
振り返って玄関内の様子です。
人感センサーによって自動的にライトが点いてくれるので、両手がふさがっている時などに便利です。
姿見の付いた扉を開けてみると…
シューズインクローゼットです!
『IN』ってテンション上がりますよね(笑)
奥の棚は高さが変えられるので、靴の背の高さによって調節可能です。床面が広いので、靴以外の趣味の物とかも置いておけそうですね。ゴルフバックとか釣り道具とか…
ではまずは玄関右のドアから開けてみましょう。
こちらが約15.7帖のリビング・ダイニング・キッチンとなります。
ナチュラルな雰囲気のお部屋ですね。正面の大きな窓でとても明るくなっています。
お部屋の一面だけレンガ模様のアクセントウォールになっています。照明は調光が出来ますので、リラックスしたい時に少し暗くしたりも出来ますね。
家具はディスプレイ用で付いてるわけではありませんが、生活のイメージがし易くて助かります。家具を買う時の色や大きさの参考にして下さい。
ダイニング近くに、DENがありました。
DENって何かの略だと思ってたんですが、れっきとした英語なんですよ。『動物の巣穴』とか『隠れ家』なんて意味らしいです。不動産業界ではちょっとした書斎や作業スペースをそう呼んでいます。
リビング内の引き戸を開けると…
またまた『IN』発見!こんどはウォークインクローゼットですよ。とても広くて、L字にパイプが設置されたタイプです。
次はキッチンを見ていきましょう。
ブルーのタイルがとても綺麗なキッチンですね。タイルが六角形なのが個性的で素敵です。そういえば玄関の床のタイルも六角形でしたよね(^^)
今の時点で、私の選ぶ今年のベストキッチンです♬
前面のパネルは一見白に見えると思いますが、白樺のような柄が入ってるんですよ。
片面焼きグリルと3口コンロが付いています。
グリルってお魚イメージ強いと思いますが、他のお料理にもいろいろ使えるらしいですよ。ご興味のある方は調べてみて下さい。
水栓はヘッドが伸びますので、シンクを流したり、大きな鍋を洗ったりに便利ですよ。
食洗機が付いています。
洗い物はお任せして、食後はのんびり過ごしちゃいましょう。
キッチンには窓もありませんし、お料理中は換気扇をお忘れなく。
キッチンには二方向から出入りする事が出来ます。右側は入口ドアの近くなのでお買い物から帰って来て冷蔵庫やキッチンへ行く時、左側はダイニング部分に近いのでお料理を運んだりす時って感じですかね。
左側には冷蔵庫スペース、右側には電化製品や食器棚などのスペースがありました。
東側のバルコニーへ出てみましょう。
ゆったりとしたバルコニーですね。
目の前には高速2号線が通っています。ご覧の通りほとんど車が走っていませんでしたので音の感じはわかりませんでした。いちどご自身でご確認下さい。
素晴らしい眺望ですね。さすが9階です♬
では、いちど廊下に戻ります。
こちらが左に伸びていた廊下です。
リビングのドア以外は白い扉になっています。
廊下一番手前の扉は、収納になっていました。奥行きはありませんが間口が広く、中が確認しやすくて使いやすそうです。
では、となりのドアを開けてみます。
トイレとなります。
もちろん、ウォシュレットも完備されています。
無いと困りますよね~TOTOさんいつもお世話になっています。
トイレ内にコンパクトな手洗が付いていました。
これだけでワンランク上な気がしてしまいます(^^)下にはトイレ用洗剤くらいは入りそうですね。
トイレの隣にも収納がありました。
こちらは先程とは逆に、間口が狭くて奥行きがあるタイプです。大きめの物を入れたり使い分けができそうですね。
では、こんどは向かい側のドアです。
洗面室となります。
ミラーキャビネットと洗面台下に収納がありました。
細かい物から大きな物まで対応可能です。
水栓はハンドシャワータイプです。洗面ボウルも大き目なので、寝ぐせ直しくらいは出来そうですね。
つぎは、浴室へ行きます。
追い焚き機能がありますので、いつでも温かいお風呂に入れますよ。たまには朝風呂とかいかがですか?
浴室乾燥機が付いています。
浴室のカビ予防やお洗濯物乾燥、ヒートショック予防など様々な使い道があります。どんどん使っていきましょう。
洗面室となりには、洗濯機スペースがありました。
ドアや扉は無く、ブラインドで隠せるようになっています。上部には収納がありますのでお洗濯関係の物はここにまとめて置けそうですね。
ではさらに進んで…
廊下左奥のドアです。
こちらが約5.5帖の洋室となります。
ブルーグレイのクロスが張られた、他のお部屋とは少し違った可愛らしい印象のお部屋ですね。
お部屋には間口広めのクローゼットが付いていました。
では、となりのお部屋へ…
廊下突き当りのドアです。
こちらが約4.5帖の洋室となります。
シンプルなので、家具やカーテンなどでどんな雰囲気にも出来そうです。
こちらのお部屋にはクローゼットはありませんが、部屋の窪みにパイプが取り付けられていて洋服などが掛けられるようになっていましたよ。
では、最後に西側のバルコニーへ出てみましょう。
幅も奥行きも十分な広々としたバルコニーです。
陽当りも良さそうですね。少し段差がありますのでは慣れるまでお気を付け下さい。
こちら側の眺望も文句のつけようがありません。
ぼーっと眺めているといつの間にか時間が過ぎていきますね^^;
・
以上で目黒グレースマンションのご案内を終わります。
いかがでしたでしょうか??
目黒駅から徒歩10分のマンションです。
リノベーション済みという事で室内はとてもキレイですよ (っ・ω・)っ
内見のご予約やご質問などございましたらお気軽にお問い合わせくださいませ。
ご連絡お待ちしております。
□□□□□□□□□□□□□□□□□□□□□□□□□□□□□□□□□□□□□□□
★★★【目黒グレースマンション】周辺のハザードマップをCHECK!!★★★
お部屋のご購入前に…!周辺のハザードマップをチェックしておきませんか!
目黒グレースマンションのハザードマップは★こちらから…どうぞ★
□□□□□□□□□□□□□□□□□□□□□□□□□□□□□□□□□□□□□□□
弊社、不動産Agent 六棒株式会社では、
□リノベーションマンションはほぼ全て仲介手数料無料!
□その他一般仲介物件は仲介手数料20%~30%OFF!
にてお取り扱いしております!※弊社の「Agent Fee=仲介手数料」についてはご案内、ご面談の際に営業担当者よりご説明いたします!
なるべく沢山のお部屋をホームページに掲載したいと思っておりますが、時間的成約もございますので、残念ながらご紹介できるお部屋の一部しか掲載できておりません。
このホームページに掲載中のお部屋、その他サイト等で気になるお部屋、街を歩いていて気になったマンション等々ございましたら是非、弊社営業部までご相談ください!
~不動産Agent 六棒株式会社の特徴~
・一般仲介物件の仲介手数料は20%~30%OFFにてご案内中です!
・リノベーションマンションについてはほぼ全て仲介手数料無料です!
・住宅ローンに自信あります!
・頭金10万円より購入できます。是非ご相談下さい!
・お部屋のご見学は車で2~3件まとめて案内します!
・物件数3000件以上、新築戸建、リノベ物件も多数ご用意しております!
過去に販売していたお部屋の概要 このお部屋の販売は終了いたしました。
| 価格 | -万円 |
| 面積 | 66.96㎡ |
| 間取り | 3bedrooms(3LDK) |
| 管理費 | 月額20,000円 修繕積立金:月額17,000円 |
| 所在階 | 4階 |
| お問い合わせ・ご内見のご予約はこちらからお気軽にどうぞ | |
早速お部屋の紹介をしたいとおもいます!
今回のお部屋は、
目黒グレースマンション 4階 3LDK
専有面積:66.96㎡ バルコニー面積:なんと12.70㎡の両面バルコニー
JR山手線・目黒線「目黒」駅10分、JR山手線・浅草線・池上線「五反田」駅9分
2駅6路線利用可!の交通至便マンション!
管理:三和クリエート(株)一部委託契約

リノベーション内容
壁・天井クロス張替、フローリング張替、フロアタイル張替、建具入替交換、
システムキッチン新規入替交換、追炊き機能付きユニットバス1216新規入替交換、
浴室乾燥機設置、照明器具新規交換、洗面化粧台新規交換、ウォシュレットタイプ付きトイレ設備新規交換、TVモニーター付きインターフォン新規交換入替、給湯器新規交換入替。シューズクローク交換(その他詳細につきましては担当者にお尋ね下さい。)
早速玄関から入りたいとおもいます!

玄関を入ると、「広い玄関だなぁ」と一番に感じました。
圧迫感のない玄関は、出かける時・帰ってきた時に開放感を感じ取ることができそうですね(^^♪
玄関のシューズクロークには鏡が貼ってあるタイプです!
鏡があれば、出かける前の身だしなみのチェックは完璧ですよね!!
玄関からリビングやお部屋が見えないという、プライバシー保護の観点からも、落ち着く玄関になっています!

このお部屋の素敵なところは、両面バルコニーを設置したというところだけでなく、両面サイドに部屋を分けることによる、つまり、、、プライベート部分とパブリック部分を分けてあるということなんですよねぇ~
LDKや客間から寝室や浴室を離しているため、来客時に私的空間を見られることがない。
ホテルライクな生活・ハイグレードマンションの間取り「PP分離」のシステムを導入しているお部屋になります!

こちらのマンションは、両面バルコニーのタイプの部屋が多くあります!
廊下に面した窓が無く、バルコニーに面していますので、プライバシーが保たれているように感じます!
この部屋は西側バルコニーに面した5.5帖のお部屋になります(^^♪
左側のクローゼットは、5.5帖のお部屋の収納、右側の少し小さめの収納は、4帖の部屋の収納になります!

明るいお部屋ですよね!
子供部屋で少し狭い部屋だからといって、暗い部屋は、子供部屋にはしたくないですよね☆☆

西側の窓から見える緑の多い眺望は、大使館の敷地の緑です!
緑が多く癒されますよねぇ~
次は水回りを見ていきたいとおもいます~

Panasonic製のワングレード高い洗面台が入っていました!
白を基調とした鏡面仕上げの素材ですので、高級感もあり優しい気持ちにさせてくれる空間です☆彡

三面鏡の裏は、もちろん収納になっています!使いやすそうな洗面台すよねぇ~

浴室も新規交換済みです!
1216のお風呂ですが十分湯船に浸かれるとおもいます!
当然!追い炊き機能付き・浴室乾燥機付きです!

トイレも、もちろん新規交換済みです!
ウォシュレットもついています!リモコンパネル付きですので、座ったまま操作もできます!!便利ですよね~
トイレの上部には吊戸棚が設置されていますので、トイレの収納もOKです!

防水パンも新規設置済みです!
大型のドラム式洗濯機は、少し厳しいかもしれませんが、マンション用のドラム式洗濯機ならOKですよね!
次はキッチンに、Let’s Go!です!

キッチンも白を基調とした、素敵なキッチンが入っています!
清潔感が漂う落ち着いたキッチンだとおもいます!
使いやすそうですよね(^^♪

キッチンの背中には、小型ですが、機能性のいいカウンターがあります!
カウンター下部には棚がついていますので、小分けの収納にピッタリですよね🎶

レンジフードも新品です!3口ガスコンロも新品が入っています!
ガスコンロ派ですか?それともIHクッキングヒーター派ですか?
悩みどころですよねぇ

キッチンシンクも深くもなく浅くもなくの使いやすそうなシンクです!
料理がはかどりそうですよね!!!!

もちろんキッチン横には、TVモニター付きインターフォンと追い炊きリモコンパネルもありますので、家事の途中でも楽々対応できますね(^^♪

リビングダイニングキッチンです!
広いです!明るいです!おしゃれです!ずっと居たいです!(笑)

壁のアクセントクロスがリビングの色を引き締めてくれていますので、明るさの中に落ち着いた緊張感を漂わせていますね!

明るいリビングは家族の団欒の時間を増やしてくれるとおもいます!
4人家族が理想ですよね(^^♪

リビングと洋室(6.0帖)の可動間仕切りをオープンにすると、広いリビングとして使えます!大きな窓が2か所あり、明るく暖かい空間として利用できます!

間仕切りは3枚の引き戸タイプになっています!
リビングととして利用すると、こんな感じで広がります!!

洋室は6帖タイプです!バルコニー側の大きな窓に面しているので、明るく過ごしやすいです!

こちらのお部屋にはウォーキングクローゼットがあります!
たくさんの洋服が入りそうです!奥様の洋服がいっぱいで、旦那様の洋服は少しかもしれません(笑)
ウォーキングクローゼットの横には小さなカウンタ飾り棚を造作しました!
ゆとり感を感じる棚ですよね!落ち着きます☆彡

壁にはアクセントクロスが貼られています!こちらの部屋も清潔感と安心感を与える締まった雰囲気を持っています!

最後に眺望写真を撮影します!
東側のメインバルコニーの前も道路ですので、遮る建物がなく安心です!
西側のサブバルコニーのも前が緑です!
マンションは高い建物が前にあると、がっかりですよね!
眺望を買うといいます!
こちらのマンションは安心のマンションだとおもいますよね!
これだけの仕様のマンション、最初に自分で住んで将来賃貸に出してもいいかとおもう東京で投資目線のできるお部屋です!
内見のご希望、ご質問などございましたら、
過去に販売していたお部屋の概要 このお部屋の販売は終了いたしました。
| 価格 | -万円 |
| 面積 | 66.96㎡ |
| 間取り | 3bedroom(3LDK) |
| 管理費 | 月額17,000円 修繕積立金:月額20,000円 |
| 所在階 | 8階 |
間取りのご紹介です。3LDK、専有面積は66.96㎡。
室内は以下のリノベーション済み。
【リノベーション内容】
■キッチン・・・システムキッチン、浄水器付き
■浴室・・・ユニットバス、追い焚き機能付き、浴室換気乾燥暖房機付き
■洗面所・・・洗面化粧台
■トイレ・・・ウォシュレット付き
■その他・・・フローリング貼替、建具・玄関収納交換、壁・天井クロス貼替、フロアタイル貼替、、給湯器交換、新規照明器具取付、収納棚新設、スイッチ・コンセント交換、ハウスクリーニング
■家具付
室内は茶系のフローリングと建具で統一されていてアットホームな雰囲気です。
玄関横には大きなシューズボックスがあります。
扉には姿見が付いていますので、お出かけ前の最終チェックもバッチリです(*^。^*)
間取り図を見て頂くと分かりますが、玄関を上がって左右にお部屋配置された珍しい間取りです。
まずは突き当りを左に曲がったお部屋からご案内します。
廊下収納がありました!
可変式の棚ですので、掃除機だって仕舞えますよ(*^。^*)
コンパクトな洗面台で使い勝手が良さそうです(^◇^)
鏡の裏は収納になっていますので、散らかりがちな水廻りもこれですっきりキレイになります!
オートバス、浴室乾燥機付のお風呂場です。
花粉が舞うこれからの季節は浴室乾燥機が大活躍しますよ!
トイレは勿論ウォシュレット付き
吊戸棚がついていますので、トイレットペーパーや洗剤などを散らかりがちな小物もすっきり収納できます(^◇^)
廊下にはもう一つ収納が\(◎o◎)/!
これは広い!使わない物をどんどん仕舞いましょう(^_^;)
5.5帖の洋室です。
北向きですが、光は入ってきますので明るいお部屋です。
壁はアズセントクロスになっていて、とっても素敵です(*^。^*)
ワイドサイズのクローゼットですので、収納に困ることもありませんね!
収納ボックスを置いたり、上部の棚の上には季節物を置いたり、大活躍間違いなし<(`^´)>
隣のお部屋です。こちらは4.1帖の広さです。
東窓から朝日が入るお部屋なので寝室にしてはいかがでしょうか。
ちょっと狭いかな?と思う方は机を置いて納戸で使っても良いですね(*^。^*)
収納は奥行のあるタイプでこちらも使い勝手がよさそうです!
北側のバルコニーですので陽当りはありませんが、
南北両面バルコニーって贅沢ですよね(^◇^)
眺望はこんな感じです。緑が多くて癒されますね(^_-)-☆
奥にはブリリアタワー目黒が見えます。
1億円越えのタワーマンションが即完売という・・・スゴイです(^_^;)
続いては、お待たせしました!リビングダイニングのご紹介です。
リビングにつながる廊下の壁面は小物を置けるスペースになっています。
絵や花、写真など素敵な空間に仕上げて下さい(*^。^*)
10.8帖のリビングダイニングは、隣のお部屋の引戸を開けて、16.8帖の広々リビングとしてお使い頂くこともできます。お子様の成長やライフスタイルに合わせて使い分けられてとっても便利ですね(*^。^*)
東南角のリビングですので朝日を浴びて気持ちの良い1日をスタートできそうですね(^◇^)
洋室からリビングを見るとこのような感じです。
大きなウォークインクローゼットと壁面収納もありますので、勿論お部屋として使って頂けます!
キッチンには憧れの窓が付いています☆
ニオイもこもらず、また夏も快適に料理ができますね(^◇^)
南側のバルコニーは陽当り◎
洗濯物もすぐ乾きます<(`^´)>
「目黒グレースマンション」いかがでしたでしょうか。
ご内見のご希望・ご質問などございましたら、お気軽にお問い合わせくださいませ♪
過去に販売していたお部屋の概要 このお部屋の販売は終了いたしました。
| 価格 | -万円 |
| 面積 | 66.96㎡ |
| 間取り | 2bedrooms(2LDK) |
| 管理費 | 月額:20,000円 修繕積立金:月額17,000円 |
| 所在階 | 11階 |
間取り
目黒グレースマンション 66.96㎡ 2LDK
モニター付きインターホンでセキュリティー万全です!
玄関は、黒基調の石床になっていて、高級感たっぷりです!
廊下も同じ黒い石床で仕上がっています。
玄関右に大容量のシューズインクローゼットが設置されています。
これだけの収納量があれば、玄関廻りがいつでもスッキリしますので、急なお客様が来られても、大丈夫そうです!
玄関の正面には、ニッチカウンターが設置されています!
扉を開けると収納スペースになりますが、PSになっている為、すぐに移動できるものを収納して下さい!
ニッチカウンターの隣りは洗面室になっています!
こちらには、洗面台・洗濯機置場・バスルームが揃っていて、トイレ別です!
洗面台は大きな1枚ガラスを使用しています。広々使えるのでとても便利ですね。
ボウルの下に収納が出来ますので、小物などをストックしておけます!
ボウルは広々しているので使い勝手が良さそう!
洗濯パンは洗面台の隣りに用意されています。
黒を基調としたバスルームは、高級感を出しています。
ワイドミラーなので広々ご利用頂けます!
何より、嬉しい浴室換気乾燥機能が付いていますので、梅雨の時期も関係ありません!
廊下には、クローゼットが設置されていて、カラーボックスや、突っ張り棒、棚などを利用することにより、かなり収納出来ます!
続いては、リビングダイニングキッチンへ行きましょう!
入るとすぐ左には厨房が設置されていて、かなり広い空間になっています!
右側に冷蔵庫や食器棚などが十分配置出来ます。
ブラウンの高級感あるシステムキッチンは、吊棚が設置されています!
コンロが3つ口なので沢山の料理が出来ちゃいます。
収納については、吊棚が非常に助かります。
食器洗浄機も付いていますので、食器洗いの時間短縮が出来ます!
システムキッチンの向かいには、別で棚が用意されていますのでご自由にお使い頂けます!
シンクも広々しているので、食器がゴチャゴチャしなさそう!
厨房には窓が付いているので、眺望や、夜景を見ながら調理出来ちゃいますし、換気に、通風に便利です!
キッチンを出るとニッチカウンターの所に、TVモニターホンが設置されています!
誰が来たか和kるので便利で安全です!
17.7帖の広々リビングダイニングは、フローリングとクロスは新規貼り替えしています。
リビングダイニングには、エコカラットを使用していますので湿度の調整を自動的に行います!
クローゼットが設置されていますので、こちらへも収納が出来ちゃいます!
こちらはリビングダイニングから見た大型サッシです!
素晴らしい眺めですね!
バルコニーは陽当たり良好です!こちらに洗濯物を干したら、すぐに乾きそうです!
但し、突風や強風には注意が必要ですのでお気を付け下さい!
さすがに遠くまで良く見えます!都心のビル群が良い雰囲気です。
バルコニーのすぐ下に首都高速2号線が走っています。
騒音は、私は気になりませんでしたが、内見の際に御確認が必要かと思います!
続いては洋室1
洋室1は5.7帖あります。
フローリング・クロスは新規張替済みで、エコカラットを1部使用しているので、湿度を調整してくれたり、空気を常に新鮮にしてくれます!
クローゼットが設置されていますので収納に付いては困る事がありません!
続きましては洋室2
洋室2は4.1帖あります。
リノベーション前は和室だったそうです。和室から洋室に変更し、押入からクローゼットに変更してあります!
両洋室からバルコニーは出られます!
こちらは首都高と反対側なので緑が多く見えます。
遠くまで本当によく見えますね!これjは気持ちがいいですね!
春や夏に風がものすごく気持ち良さそう!!
マンション付近は、
・東急ストア プレッセ目黒店 徒歩9分
・サンクス上大崎店 徒歩3分
・目黒調剤薬局 徒歩6分
・三菱東京UFJ銀行 徒歩9分
・ドゥミルネサンス 徒歩7分
・目黒ゴルフセンター 徒歩10分
・目黒雅叙園 徒歩15分
・NTT東日本関東病院 徒歩9分
・第三日野小学校 徒歩5分
・日野中学校 徒歩15分
と、目具駅前が9分なので、とても便利な街です!
目黒駅の他には、「五反田駅」まで徒歩8分で行き来が出来ます!
五反田駅含めると、2駅6路線のご利用可能という事です。
是非、ご内見のお電話をお待ちしております!

































































































































































































































































































































弊社 公式HP
六棒総合研究所
掲載予定物件
価格変更と販売終了物件
ハザードマップ検索
適合証明書.jp
Facebook
Twitter
Instagram