□□□□□□□□□□□□□□□□□□□□□□□□□□□□□□□□□□□□□□□
いつも弊社ホームページをご覧頂き誠にありがとうございます。
ネオマイム東大井ステーションプラッツはお陰様で販売を終了致しました。弊社問合せフォームにてご要望頂けましたら、当お部屋でキャンセル等が発生した場合、他のお部屋が販売になりました際にご紹介させて頂きます。
弊社では、仲介手数料無料orお値引(50%off、30%off、20%off)にて皆様のマイホーム探しのお手伝いをさせて頂きいております。ネオマイム東大井ステーションプラッツの類似物件や、お探しのご条件等をお聞かせ頂けましたらご条件に合ったお部屋をご紹介させて頂きます。また、ご来社頂き一緒に探させて頂くことも可能ですので、是非弊社問合せフォームよりお気軽にお問合せください。
不動産Agent 六棒株式会社
TEL:03‐5413‐5336
□□□□□□□□□□□□□□□□□□□□□□□□□□□□□□□□□□□□□□□
今回は京浜急行線「立会川」駅から徒歩1分のリノベーションマンション『ネオマイム東大井ステーションプラッツ』を紹介します。
立会川駅は名前の通り、駅を出てすぐのところに「立会川」という川が流れています。
この川は、約10年前にボラが大発生した川でワイドショーを賑わせました。
その頃は「多摩川のタマちゃん」が人気者になって間もなかったので、陰に隠れちゃってる感じでしたけどね・・・。そりゃ、ボラよりもアザラシの方がカワイイですもんね・・・。
ちなみに、、、何で「立会川」っていうんだろう?ってハテナと思いませんか?
思いませんか!?・・・ちょっと無理やり感がありますが、得意の「wikipedia」で調べました!
いくつか説はあるそうなのですが、
・その昔、川を挟んで小競り合いがあった事から「太刀会川」となった
・鈴ヶ森刑場に送られる罪人を、その親族や関係者が最後に見送る(立ち会う)場所であること
から「立会川」となった
・中延の滝間(たきあい)という地を流れていたので滝間川(たきあいがわ)と呼ばれ、それが立
会川に変わった
というのがあるそうですよ。
ためになったねぇ~笑
立会川駅の改札は一つです。普段は地元の方達が使う、のどかな下町の駅という感じですが、
近くに大井競馬場があるので、レース開催期間は多くのお客さんで賑わう街に変わります♪
お休みの日にご夫婦で競馬場デートも良いかもしれませんね(*^。^*)
駅を降りると左右に商店街が広がっていました★
飲食店や、クリーニング屋さん、歯医者さんにお花屋さん。
地元の方達の交流の場にもなっているみたいですね(*^^)v
商店街のところどころに馬のゆるキャラが書かれています。「りょうくん」という名前らしいのですが・・・と疑問に思っていると。。。
謎が解けました!!見覚えのあるこの顔は・・・
龍馬さまではありませんか!!
それと大井競馬場を足して、「りょうくん」なんですね♪
龍馬像の裏に公園が広がっていました。小さい子たちが走り回っていましたよ(^v^)
公園の隣り(駅側)にはローソンがありました。
マンションから近くにコンビニがあると便利ですね☆
と思ったら、この建物が目指す「ネオマイム東大井ステーションプラッツ」でした。
いやいや、まだ駅からほとんど歩いていませんが・・・。の近さです★
ブラウンのタイルが真新しいキレイな外観でした★
入口はクルッと建物を半周して裏手にあります。やっぱりとてもキレイです。
だって平成13年築ですもの。人間でいえばまだ小学生ですもの(^o^)
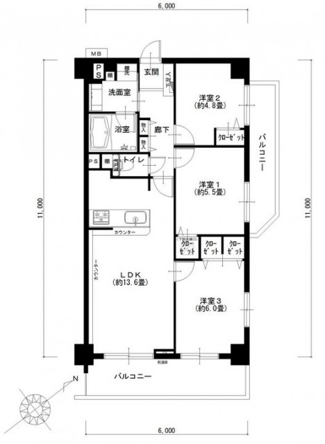
ではここで間取りの紹介です。
専有部分:66.00㎡ バルコニー(2面):14.97㎡ 3LDK 6月にリノベーション工事を終えたばかりのとってもキレイなお部屋です★☆
ちなみに周辺の施設について簡単に。。。
■浜川幼稚園は国道15号線を渡って徒歩6分
■鮫浜小学校は線路沿いを品川方面に進んで徒歩6分
■まいばすけっとは立会川を渡って道なりに徒歩4分
■スーパー文化堂は国道15号線を渡って、浜川小学校並びの徒歩5分
■勝島運河の土手までは旧東海道を越えて徒歩4分
といった具合に、徒歩圏内にいろいろと充実した施設がいっぱいあります♪
ちなみに!!勝島運河の土手は季節によって色んな花を咲かせてくれるようですよ♪
春には菜の花で一面黄色になり、秋にはコスモスが色とりどりの花を咲かせるそうです(^v^)
休日の楽しみ方がまた一つ、増えそうですね♪
さて、お部屋に入っていきましょう。玄関を入ると間接照明をうまく使ってやさしく明るい室内が見えました☆
シューズボックスは2段構成で大容量(^o^)
サニタリールームもとってもキレイでした。
収納棚もしっかりあって、浴室乾燥機付のバスルームは広くてユッタリ(*^^)v
廊下左側、手前のお部屋は4.8帖の洋室です。北側のバルコニーに出られるようになっていて、とても開放感のあるお部屋でした☆
もちろんクローゼットもちゃんとついていますよ(*^。^*)
その隣には5.5帖の洋室があります。このお部屋からも北側のバルコニーに出ることができます!クローゼットは奥行きたっぷりの大容量☆
5.5帖の洋室の目の前にはトイレがありました。分かりにくいかもしれませんが、天井付近の棚の他に、その下にくりぬいた様な棚があります。すぐ使う物とそうでないものを分けてしっかり収納できますね(*^^)v
廊下の先には13.6帖のリビングが広がっていました。
南側の壁にはカウンターが伸びていて、上から間接照明が当たっているので、お気に入りのオブジェやお花、絵なんかを飾れば、とっても居心地のいい空間を作ることが出来そう☆
腕の見せ所ですよ~笑
逆方向から見るととっても広く感じられますね~(#^.^#)
何も置いていなくてもオサレに感じてしまいます(^v^)
キッチンも奥様に嬉しい食洗機つき♪
これまで食器洗いに使っていた時間を何に使いましょ??
そして、最後のお部屋が6.0帖の洋室です。東側の壁に大きなクローゼットが付いていますので、ご家族の洋服もしっかりしまえそう(#^.^#)
いかがでしたか、ネオマイム東大井ステーションプラッツ。
お部屋の中は真新しいハイセンスな感じですが、マンション周辺は暖かさを感じる下町情緒あふれる雰囲気☆
同時に楽しめてしまう贅沢なマンションでした^_^;
皆様のご内見お待ちしております!!






























弊社 公式HP
六棒総合研究所
掲載予定物件
価格変更と販売終了物件
ハザードマップ検索
適合証明書.jp
Facebook
Twitter
Instagram