□□□□□□□□□□□□□□□□□□□□□□□□□□□□□□□□□□□□□□□
いつも弊社ホームページをご覧頂き誠にありがとうございます。
エコロジー落合レジデンスⅠはお陰様で販売を終了致しました。弊社問合せフォームにてご要望頂けましたら、当お部屋でキャンセル等が発生した場合、他のお部屋が販売になりました際にご紹介させて頂きます。
弊社では、仲介手数料無料orお値引(50%off、30%off、20%off)にて皆様のマイホーム探しのお手伝いをさせて頂きいております。エコロジー落合レジデンスⅠの類似物件や、お探しのご条件等をお聞かせ頂けましたらご条件に合ったお部屋をご紹介させて頂きます。また、ご来社頂き一緒に探させて頂くことも可能ですので、是非弊社問合せフォームよりお気軽にお問合せください。
不動産Agent 六棒株式会社
TEL:03‐5413‐5336
□□□□□□□□□□□□□□□□□□□□□□□□□□□□□□□□□□□□□□□
都営大江戸線『中井』駅徒歩5分。都市生活の利便性とやすらぎを兼ね備えた
ファミリータイプレジデンス『エコロジー落合レジデンスⅠ』のご紹介です。
東京メトロ東西線『落合』駅徒歩8分、西武新宿線『下落合』駅徒歩5分も
利用可能です。

この日は「中井」駅からスタート。地上にでると目の前には中井商友町という
約300mほどの商店街がつづいています。
生鮮食品、八百屋、肉屋、魚屋、生活用品と一通り揃っており
お買物もしやすい環境です。

エコロジー落合レジデンスⅠは平成7年築、5階建て、総世帯数33戸。
駅徒歩5分ながら緑あふれる閑静な住宅街に立地しています。
(向かい側にはエコロジー落合レジデンスⅡも建っています。)


シックで落ち着きのあるエントランスホール。
オートロック完備です。
今回の物件を紹介させて頂きます!
4階のお部屋になります(^^♪
3LDK 専有面積:70.37㎡ バルコニー面積:17.39㎡
バルコニーはなんと…3面バルコニーになります(^^♪
3方向角部屋のお部屋は陽当り・通風・採光・眺望が良好です!
こちらのマンションは、オートロック・宅配BOXも完備しています!
駐輪場は月額300円 バイク置場は月額1,500円~2,000円です。
お部屋はこちらになります☆彡
部屋のPOINT!は、4.2帖のキッチンです!
動線がよく、洗面所からバルコニーまで繋がった3WAYタイプです(^O^)/

リノベーション内容
壁・天井クロス張替、フローリング張替、フロアタイル張替、建具入替交換、
システムキッチン新規入替交換、追炊き機能付きユニットバス新規入替交換、
浴室乾燥機設置、照明器具新規交換、洗面化粧台新規交換、ウォシュレットタイプ付きトイレ設備新規交換、TVモニーター付きインターフォン新規交換入替、給湯器新規交換入替。(その他詳細につきましては担当者にお尋ね下さい。)
早速お部屋に入ってみたいとおもいます(^O^)

玄関は白に近いタイル張りで重厚感を感じます!

玄関を開けると白のクロスと白の木目調と白の扉に出迎えられます!
照明の色を変えるだけで、グッと雰囲気が変わりますね(^^♪

シューズクロークも天井から連なる大型タイプの収納になります!
女性のブーツも楽々収納ですよね☆彡
それでは、水回りからチェックしていきたいとおもいます!(”◇”)ゞ

ユニットバスも新規交換済みです!
もちろん浴室乾燥暖房機能付きですし、給湯も交換済みですので、追い炊き機能も当然ですが設置済みです!

トイレも洗浄機能はリモコンタイプになり、上部には吊戸棚式の収納が入っています!

トイレにはアクセントクロスも貼ってあり、メリハリがついた空間になっていますよね!
(*^-^*)

洗面化粧台も新規に交換済みです!
Panasonic製のいいものが入っています!落ち着くカラーですよね☆彡

防水パンの横のクロスもアクセントクロスとしてカラーが入っています!
洗濯機を置いたら見えなくなってしまいますが、心憎い気遣いです(笑)
洗面所はキッチンに繋がる同線があります!

1枚目はキッチン側から見た同線で2枚目は洗面所側からみた同線です!
便利そうで一番のポイントかとおもいますよ(^^♪

キッチンからバルコニーに出る扉です!
キッチンに明るさを取り込むのも兼ねています!
キッチンに窓や扉があると匂いが籠らなくて嬉しいですよね☆彡

キッチンも抑えたホワイト基調になっています!

作業台やコンロ横のスペースが若干広いタイプのキッチンになります!
作業台が広いと料理を作りやすいですよね(^^♪

シンク横にPanasonicとありました(笑)

キッチン上部吊戸棚もホワイト基調で清潔感たっぷりです!

料理ができる人は、さらに料理が上手くなり、料理初心者は料理が好きになるキッチンとおもいました!

キッチン横には、TVモニター付きインターフォン設備と追い炊き設備も設置済み!

明るいキッチンになりそうです☆彡

リビングダイニングから見たキッチンは、こんな感じです!
次はベットルームを見学してみたいとおもいます

洋室の横にバルコニーーが見えます!角部屋ですので3面バルコニーが実現しました!
3面バルコニーは、希少な価値がありますよね☆彡
玄関側の洋室です!バルコニープラス2面採光になります!
明るい生活が約束されています(*^-^*)

収納近くに窓があります!
マンションは湿気が気になりますよね☆彡

リビングダイニング横の続いた洋室です!
角部屋ですので、中洋室でも窓があります!
中部屋では実現できない贅沢かもしれませんね(^。^)y-.。o○

リビングダイニングとの続きは3枚の引き戸で仕切られています!
引き戸が天井まであるので、壮観ですよ☆彡

リビングの窓は、1か所は腰窓でもう一ヶ所は掃き出しの窓になります!
腰窓の方がダイニングテーブルを置きやすくないですか?

リビングの奥もアクセントクロスです!
部屋が引き締まって見えますよね(*^-^*)

広くて明るいリビングです!
ダイニングテーブルセットやソファーセットが似合いそうですよね!

カウンターキッチンの下のアクセントクロス!
いい感じな色ですよね☆彡ダイニングテーブルが似合いそうですよね(^^♪

腰窓と掃き出しの窓って意外とあいますよね!

おしゃれな照明も入っています!

個人的にはペンライトを、もう一つ増やしたいですよね(笑)
今回のお部屋は3面バルコニーですので、270°パノラマビュー感覚で眺望を楽しめます!よね~

バルコニーも広く洗濯物を干すのに十分だとおもいませんか?
いかがでしたでしょうか。
これだけの仕様のマンション、最初に自分で住んで将来賃貸に出してもいいかとおもう東京で投資目線のできるお部屋です!
内見のご希望、ご質問などございましたら、
過去に販売していたお部屋の概要。このお部屋の販売は終了いたしました。
| 価格 | -万円 |
| 面積 | 54.53㎡ |
| 間取り | 2bedrooms(1SLDK) |
| 管理費 | 月額:14,200円 修繕積立金:8,170円 |
| 所在階 | 5階 |
| お問い合わせ・ご内見のご予約はこちらからお気軽にどうぞ | |
間取りのご紹介です。3LDK、専有面積76.75㎡。
3階・東南角部屋です。ファミリーにゼヒ♪
ご内見のご希望・ご質問などございましたら、お気軽にお問い合わせくださいませ♪
過去に販売していたお部屋の概要 このお部屋の販売は終了いたしました。
| 価格 | -万円 |
| 面積 | 74.07㎡ |
| 間取り | 3bedrooms(3LDK) |
| 管理費 | 月額:14,700円 修繕積立金:月額11,000円 |
| 所在階 | 3階 |
ここで間取りのご紹介です。3LDK、74.07㎡。
玄関を入ると右手には真ん中に傘もしまえるシューズBOXがつくられています。
上のカウンター部分はちょうどよいディスプレイスペース。
お気に入りのインテリアなども飾れますよ。
玄関を上がってすぐ右手には収納がつくられていました。
シューズBOXに入りきらない靴の保管場所に重宝しそうです。
廊下をまっすぐ進み、採光部のある扉の奥は・・・。
約11.9畳のリビングダイニング。
南向きで陽当たりのよい明るい空間は家族の集いの場所にピッタリです。
反対側からもご覧ください。
キッチンスペースは約3.5畳。
うすーいグレーのスタリッシュなシステムキッチンは上下に収納場所がたっぷり。
大きな鍋やザルもサクサクしまえそうです。
一部オープンになっているのでリビングにいる家族と会話を楽しみながら
お料理の支度ができますよ。リビング側からは雑多な手元がみえずらいのも
うれしいです。
つづいて洗面室。入口に少し段差があるのでつまずかないように注意です・・・。
1枚鏡の大型洗面化粧台。2人並んで使っても窮屈に感じないかも・・・。
カウンターの上も広々しているので使い勝手もよさそうです。
洗面化粧台の後ろ側には洗濯機置場。
さらに洗面室内にはタオルやシャンプーのストックを収納するのに便利な
リネン庫がつくられています。
ゴチャゴチャしがちな物が増える場所だけに収納があると助かります。
バスルームは天然石のような柄の壁パネルが使われており、品のある雰囲気。
明るい色合いでリラックスできそうです。
トイレは洗面室をでてお隣に位置しています。吊戸棚付き。
ここから洋室2部屋、和室1部屋ご紹介します。
1部屋目は約5.9畳の洋室。玄関から一番近いお部屋になります。
収納にクローゼットがつくられています。
こちらのお部屋からはバルコニーにでられますよ。
(バルコニーは2面にあります。)
西向きです。
外は静かな住宅街。エコロジー落合レジデンスⅡも見えます。
2部屋目は約5.0畳の広さ。
収納に同じくクローゼットがつくられています。
3部屋目はリビングに隣接した和室。
約6.0畳の広さ。畳のいい香りがします・・・。
収納力大の押し入れもあります。
収納が多いと生活スペースが広く使えていいですね♪
扉をあけてリビングと和室をつなげると開放感のある空間になりました。
生活シーンにあわせて開けて使ったり、独立させたりとフレキシブルな
レイアウトがお楽しみいただけます。
最後にリビングと和室、両方からでられるバルコニーにでてみます。
南向き。ちなみにバルコニーは2面あわせて約24.08㎡。
お洗濯物が多くても乾かす場所はたっぷりあります。
下を見れば敷地内の緑が見えて、快適です!
ゼヒ実際のお部屋を一度ご見学ください。
みなさまのご内見、こころよりお待ちしております!
過去に販売していたお部屋の概要 このお部屋の販売は終了いたしました。
| 価格 | -万円 |
| 面積 | 76.42㎡ |
| 間取り | 3bedrooms(3LDK) |
| 管理費 | 月額15,200円 修繕積立金:月額11,400円 |
| 所在階 | 5階 |
ここで間取りのご紹介です。3LDK、76.42㎡。

5階、玄関前に到着です。廊下からの眺めも◎!

玄関入ると右手には上がカウンターになっているシューズBOXが
つくられています。
傘も入れられるので玄関まわりをスッキリ保てます。

廊下をまっすぐ進んで正面のガラスの入った扉の奥は・・・

約13.9畳のゆったりリビングダイニング。
南向きで陽当りにも恵まれています。家族団らんの場にピッタリです。

キッチンスペースは約3.9畳。
リビング側にカウンターがついている対面式キッチンなので食事の
支度をしながら家族と会話も楽しめます。


3口コンロのシステムキッチンは上下に収納場所もたっぷり。
物が増えがちなキッチンまわりもスッキリ片付きそうです。

つづいて洗面室のご紹介です。


洗面化粧台は洗面ボウル一体型カウンターでお掃除もしやすそうです。
横にキャビネットもあるのでゴチャゴチャしがちな洗面まわりもスッキリ
お使いいただけます。

洗濯機置場。


淡いピンクでリラックス雰囲気のバスルーム。
追い焚き機能もついています。

トイレは洗面室でて斜め向かいに位置しています。
吊戸棚はトイレットペーパーのストックを入れておくのに重宝しますね。

リビングダイニングの他にお部屋は和室が1部屋、洋室が2部屋
つくられています。まずはリビングに隣接している和室を見てみます。

約6.0畳の広さ。収納力バツグンの押入れもついています。
和室が1部屋あるとなごみます。

今度は洋室へ。

約4.8畳の広さ。枕棚付きのクローゼットもついています。
白いクロスにナチュラルな色のフローリングでどんな色の家具でも
馴染みそうな空間です。

こちらは約6.8畳の広さ。こちらにも枕棚付きのクローゼットが
つくられています。

最後にバルコニーにでてみます。約9.1㎡、南向き。

外は静かな住宅街が広がっています。空が広く見えて気持ちがいいです。
エコロジー落合レジデンスⅠはペットの飼育OK。
空室ですのでゼヒ現地を一度ご覧いただければと思います。
みなさまのご内見、心よりお待ちしております!
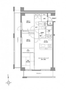
過去に販売していたお部屋の概要 このお部屋の販売は終了いたしました。
| 価格 | -万円 |
| 面積 | 76.75㎡ |
| 間取り | 3bedrooms(3LDK) |
| 管理費 | 月額:15,200円 修繕積立金:月額11,400円 |
| 所在階 | 4階 |
玄関入ると左手には上がカウンターになっているシューズBOXが
つくられています。家族分の靴を全てしまうには少し容量が足りないかも・・・。
普段履く靴だけを入れておくのがよさそうです。
廊下をまっすぐ進んで正面のガラスの扉の奥は・・・
約11.8畳のリビングダイニング。
東南向きで明るく家族団らんの場にピッタリです。
キッチンからもリビングが見えるので、お料理をしながら家族と会話も
楽しめますね。
リビングには棚のついた収納もあります。
掃除用具を入れて置くのにもよさそうです。
キッチンスペースは約3.6畳。
奥にはバルコニーへでれる網戸付きの窓もあるので自然換気もバッチリできます。
3口コンロのシステムキッチンは上下に収納場所もたっぷりあります。
大きなフライパンやザルもサクサク入りそうで頼もしいです。
キッチン側のバルコニーにでてみます。東向き。
あいにくの曇りですが、ナイスビューです。
リビングに戻ってきまして・・・お隣は和室になっています。
約7.0畳の和室。リビングと同じ東南開口で明るいです。
天袋付きの押入れもあります。玄関に靴が入りきらない場合は保管場所
にするのもよさそうです。
扉をあけて2部屋つなげると、さらに広々と開放感のある空間になりました。
生活シーンにあわせてフレキシブルに利用できます。
リビングと和室からでられる東南向きのバルコニー。
こちらも空が広く見えて眺めは◎です。
お部屋はLDK、和室の他に洋室が2つあります。
こちらは約6.7畳の広さ。
クローゼットもつくられています。
もう1部屋は約5.9畳の広さ。
クローゼットもあります。
こちらのお部屋にもコンパクトサイズのバルコニーがつくられています。
気候のいい日は網戸にしておくと快適に過ごせそうです。
外は静かな住宅街が広がっています。
最後に水廻りのご紹介です。
洗面室は入口入って右手が洗面台、正面にバスルーム、左手に洗濯機置場
の並びになっています。
洗面化粧台は洗面ボウル一体型カウンターでお掃除がしやすいのも
うれしいです。横にはタオルかけとキャビネットもついています。
洗面化粧台の後ろが洗濯機置場。
洗剤を置く棚などは特にないので、壁面収納やラックを用意するのが
よさそうです。
壁面パネルの淡いピンクにくつろぎを感じるバスルーム。
追い焚き機能付きで経済的。これから寒くなる季節にいつでもあたたかいお風呂
に入れるのはうれしいですね。
トイレは洗面室をでて斜め向かいに位置しています。
トイレットペーパーのストックをいれておくのに重宝する
吊戸棚もついています。
ペットもOKのこちらのお部屋、ゼヒ実際のお部屋をご覧ください。
(体長50センチ以下の犬・ネコ、2匹まで飼育可能です。)
みなさまのご内見、心よりお待ちしております!
























































































弊社 公式HP
六棒総合研究所
掲載予定物件
価格変更と販売終了物件
ハザードマップ検索
適合証明書.jp
Facebook
Twitter
Instagram