・
□□□□□□□□□□□□□□□□□□□□□□□□□□□□□□□□□□□□□□□
いつも弊社ホームページをご覧頂き誠にありがとうございます。
グランテラッセ西早稲田はお陰様で販売を終了致しました。弊社問合せフォームにてご要望頂けましたら、当お部屋でキャンセル等が発生した場合、他のお部屋が販売になりました際にご紹介させて頂きます。
不動産Agent 六棒株式会社
TEL:03‐5413‐5336
□□□□□□□□□□□□□□□□□□□□□□□□□□□□□□□□□□□□□□□
・
都電荒川線「面影橋」徒歩2分のリノベーションマンション『グランテラッセ西早稲田』のご紹介です。
JR山手線・東京メトロ東西線「高田馬場」徒歩14分、東京メトロ副都心線「雑司が谷」徒歩9分で利用可能です。
今回は、「雑司が谷」駅からマンションへ向かいます。
地上に上がると目の前に目白通りがあり、周辺にはスーパーマーケット・コンビニもありました。
目白通り高田一丁目の信号を渡り、面影橋を目指してまっすぐ住宅街を抜けていきます。
途中にも薬局・スーパーマーケット・クリーニングなどもあります。
神田川に架かる桜の名所「面影橋」。
川を渡るとこちらは路面電車の都電荒川線「面影橋」どこまで行っても1回160円の運賃です。
安産・子育ての神様「鬼子母神」は「雑司が谷」駅または都電荒川線「鬼子母神」駅から徒歩3分ほどの立地にあります。
こちらがご紹介する『グランテラッセ西早稲田』です。
昭和54年10月築、総戸数23戸、5階建て。
神田川の桜道沿いに建っています。
アプローチの両側の植栽はきれいに整備されています。
エントランス。(オートロックはありません。)
階段の横にはスロープもあるのでベビーカーやキャリーケースを持っての移動もスムーズです。 通勤の管理人さんもいます。
中庭の植栽はミニ庭園風。こちらもしっかり整備されてます。
共用廊下は外廊下タイプ。上の階へ行くと神田川沿いの緑がよく見えます♪

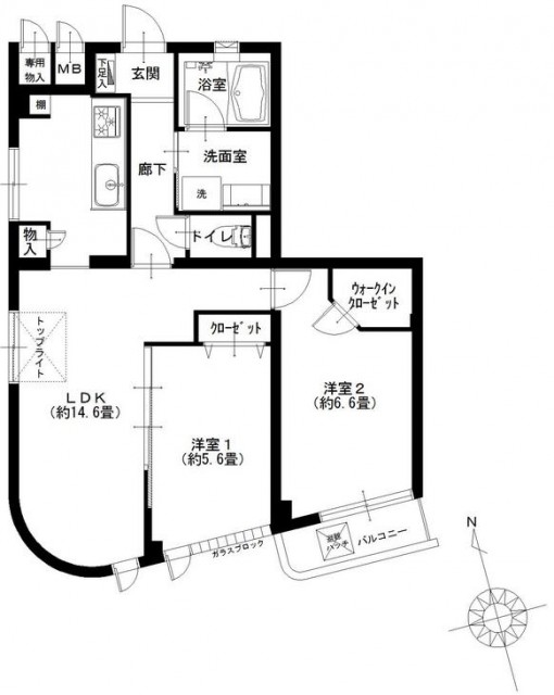
ここで間取り図のご紹介です。
※間取り図は別タブで開きますので、確認しながらご覧頂くことが出来ます。
今回ご紹介するお部屋は3階、間取りは2LDK、専有面積は53.00㎡。収納豊富なファミリータイプのお部屋です。では、早速行ってみましょう!

エレベーターを降りて、開放的な外廊下を進みます。

今回は、こちらのお部屋のご紹介です。
玄関はダブルロックとモニター付きインターフォンで防犯対策がされています。
さて、どんな内装か楽しみです。

お邪魔しまーす。どことなくアンティークチックな感じの内装です。LDKへの扉にガラスが入っているので圧迫感が無くて良いです。

シューズボックスは扉が片面鏡になっています。大きな鏡なので、お出かけ前の全身の身だしなみチェックが楽にできますね。
人感センサー付きライトが明るく照らしてくれます。
また、長押(なげし)が設置されているので、コートや上着類を壁にサッと掛けておくことができます。

シューズボックスは、トールタイプなので靴をたくさん収納できます。ブレーカーもこちらに入っています。
廊下を進むと、LDKに入る手前に扉付の洗濯機スペースがあります。
上部に棚が付いていますので、洗剤や柔軟剤を保管するのに使えます。

それでは、LDKへ行きましょう。

LDKは南向きなので、日当たりがいいですね。
窓から明るい日差しが入ってきています。

パッと見、特徴的なのは壁に設置された棚でしょうか。
この棚に何を飾るか、置くか、でお部屋の雰囲気が変わりそうです。

調理台の後ろにストック用品をおける棚があります。高さを変えられるので、パスタなども立てて保管できます。扉が付いているので生活感が出づらいのもgood👍

キッチンの照明はスポットライト。ライトの位置や角度は自由に変更できます。フルリノベーションでキッチンの建具までアンティーク風で全部揃っているのが素敵ですね。お部屋と調和しています。

収納はスライドキャビネット。スライドキャビネットは結構収納力もありますし、重いものを入れても大丈夫です。
後ろにカップボード等を置くスペースもあります。

グリル付の三ツ口ガスコンロに浄水機能付きの水洗。こちらの水洗はノズルが伸びるタイプです。

カウンターキッチンといえばこの眺め!
リビング・ダイニングとの間に間仕切りがなく、コミュニケーションを取りながらキッチン回りの事をすることができます。
写真右側は壁ではなく、扉ですよ~
ということで、開けてみましょう!


扉を開けると。。。
約5.4畳の洋室があります。LDKと同じバルコニーに面した明るいお部屋です。

収納はウォークインクローゼット。L字型にハンガーポール設置された広いクローゼットです。スーツケースや段ボールに入ったままの荷物など、大きな物も楽々収納出来ますよ♪

ガッツリ扉を開けると、LDKと一体化します。床にレールが無いタイプなので一体感がとっても増します。


このように、開け広げてひろーく使っても良いですね。

それでは、玄関横のお部屋も見てみましょう。


こちらは、約6畳の洋室となっています。

ウォークインクローゼットはL字型にバーが設置されてて、なかなかの広さです。
廊下に面している窓は格子が付いていますので、安心です。

次は、洗面室を見ましょう。

三面鏡の大きな洗面台です。壁にピタリと収まっています。壁にも鏡が付いています!
ビルトインの水洗は引っ張れば伸びます。洗面ボウルのお掃除も楽々✨
鏡の裏が全て収納になっているので、細々した洗面回りのものはこちらに仕舞っておけます。
・・


こちらはトイレ。収納棚と小窓、カウンターがあります。スマホを握りしめてトイレに駆け込んでも置いておけます。



浴室は淡く、白っぽい雰囲気です。曲線のバスタブでリラックスできそうです。追い炊き機能もあるので、長風呂も可能です。
シャワーはスライドバーで好きな位置にヘッドを設定できます。こちらにも小窓がありますので換気や採光ができます。

浴室乾燥機が付いていますので、雨の日でも安心です。花粉などが気になって外に干したくない時にも役立ちます。他にも「暖房」「乾燥」「涼風」「換気」の機能がありますよ。
では、最後にバルコニーを見に行きましょう。
・・

西側には建物があるので、お洗濯物を干すなら午前中からがお勧めです。物干し竿を設置できるようになっています。

3階ですが、目の前に建物が無いのが良いですね。電線等もなくスッキリしています。
右奥に見えるのは神田川 春には桜♬
バルコニーから身を乗り出しすぎないで下さいね!
・
以上でグランテラッセ西早稲田のご案内を終わります。
いかがでしたでしょうか??
雑司ヶ谷駅から徒歩10分のマンションです。
リノベーション済みという事で室内はとてもキレイですよ (っ・ω・)っ
内見のご予約やご質問などございましたらお気軽にお問い合わせくださいませ。
ご連絡お待ちしております。
弊社、不動産Agent 六棒株式会社では、
□リノベーションマンションはほぼ全て仲介手数料無料!
□その他一般仲介物件は仲介手数料20%~30%OFF!
にてお取り扱いしております!※弊社の「Agent Fee=仲介手数料」についてはご案内、ご面談の際に営業担当者よりご説明いたします!
なるべく沢山のお部屋をホームページに掲載したいと思っておりますが、時間的成約もございますので、残念ながらご紹介できるお部屋の一部しか掲載できておりません。
このホームページに掲載中のお部屋、その他サイト等で気になるお部屋、街を歩いていて気になったマンション等々ございましたら是非、弊社営業部までご相談ください!
~不動産Agent 六棒株式会社の特徴~
・一般仲介物件の仲介手数料は20%~30%OFFにてご案内中です!
・リノベーションマンションについてはほぼ全て仲介手数料無料です!
・住宅ローンに自信あります!
・頭金10万円より購入できます。是非ご相談下さい!
・お部屋のご見学は車で2~3件まとめて案内します!
・物件数3000件以上、新築戸建、リノベ物件も多数ご用意しております!
過去に販売していたお部屋の概要 こちらのお部屋の販売は終了いたしました
| 価格 | -万円 |
| 面積 | 60.76㎡ |
| 間取り | 2bedrooms(2LDK) |
| 管理費 | 月額:15,800円 修繕積立金:月額10,570円 |
| 所在階 | 5F |
| お問い合わせ・ご内見のご予約はこちらからお気軽にどうぞ | |
間取りのご紹介です。2LDK、60.76㎡。
南西角部屋につき陽当り・眺望良好☀
バルコニー側から桜並木がご覧いただけます。
室内リノベーション済みです。
【リノベーション内容】
■給湯器交換
■システムキッチン交換、ユニットバス交換、洗面台交換、トイレ交換
■全クロス張替、全フローリング張替、全建具交換、フロアタイル張替
■下足入れ交換
■洗濯水栓器具交換、防水パン交換
■スイッチパネル設置、ダウンライト設置
■インターフォン交換、エコカラット設置(玄関)、玄関人感センサー取付、ハウスクリーニング
白基調の明るい玄関ホール。横の壁面には調湿・消臭などの効果があるエコカラットがつかわれています。窓がなく、匂いが気になるところなので空気が快適に保てるのはうれしいですね。
インターホンは来訪者の顔が確認できるTVモニター付き。
毎日の安心安全な暮らしをサポートしてくれます。
エコカラットの向かい側にはたっぷり仕舞えるトールサイズのシューズBOXが設置されています。棚は可動式なのでブーツや長靴など背の高い履物もお仕舞いただけます。
表扉の半分には縦長の鏡も。お出かけ前の身だしなみチェックはこちらでどうぞ。
玄関をあがると廊下がまっすぐのびています。廊下側にある水回りの設備から順番にご紹介いたします。
廊下を進んですぐ左側は洗面室。洗面化粧台、洗濯機置場、バスルームがまとまっています。洗面室内も白基調。清潔感たっぷりです♪
洗面化粧台と洗濯機置場はお隣同士。鏡の裏、引き出しなど洗面化粧台は小物の収納場所も豊富にあります。洗面ボウル下の収納スペースに洗剤を入れておいてもいいかも。
バスルームは追い焚き、浴室換気乾燥機能付き。
バルコニーがあまり広くないのですが、乾燥機があればお洗濯も安心ですね!
カビの発生もグンと減ってお掃除も楽になるはず。
トイレは洗面室のお隣。ペーパーのストックを入れて置くのに便利な吊戸棚が設置されています。
廊下をまっすぐ進んだ先、採光部のある扉の奥は・・・
約14.6帖のLDK。壁面の窓にくわえてトップライトのある採光に優れたお部屋です。(トップライトは壁面の窓に比べると数倍の採光効果があるそうです。)
家具も置いてあるので実際の生活イメージもわきやすいのではないでしょうか♪
反対側からもご覧ください。キッチンスペースはLDKの扉の横。スペースは独立しており、リビング側からは見えづらくなっています。お客様やお友達が訪ねてきても雑多なところを見られる心配はありません。
キッチンスペース。こちらにも窓があります。
お料理中の熱や換気の解消も早そうです。
キッチンはフローリングに馴染む木目柄。
浄水機能付き水栓、3口ガスコンロ、食洗機と設備も整っています。
大割りのスライド収納もキッチングッズの出し入れがしやすく使い勝手がよさそうです。
キッチンには2か所、可動棚付の収納がつくられています。背の高い調味料のボトルも仕舞っておけますね♪
2部屋ある洋室のうち、1部屋はLDKに隣接しています。
LDKに隣接した洋室は約5.6帖。
採光部が大きく明るい空間です。
ガラスブロック部分は外から中が見えずらいのでカーテンを開けておくのもいいかも。クローゼットも設置されています。
可動式扉をあけて、LDKと洋室をつなげると広々と一体感のある空間になりました。つなげて使ったり、独立させて使ったりと生活シーンに合わせてフレキシブルにご利用いただけます。
LDKを入ってすぐ左側が廊下のようになっており、その先にもう1部屋の洋室があります。
こちらの洋室は約6.6帖。ベッドを2つ並べられる広さです。
壁面の一部にはさりげなくおしゃれなアクセントクロスが使われています。
大きな物がすっぽり仕舞えるウォークインクローゼットもつくられています。
最後に約6.6帖の洋室からバルコニーに出てみます。
2.90㎡、ほぼ南向き。
室外機が置いてあるのでお洗濯物を干すには少し狭いかも・・・。こんな時はバスルームの乾燥機のご利用が頼りになりますね。
眺望。神田川を挟んでマンションが建ち並ぶ開放感のある風景です。
春はここから桜並木を見渡すのも楽しみですね ✿
グランテラッセ西早稲田、いかがでしたでしょうか?
ご内見のご予約・ご質問などございましたら、お気軽にお問い合わせくださいませ♪
過去に販売していたお部屋の概要 このお部屋の販売は終了いたしました。
| 価格 | -万円 |
| 面積 | 53.00㎡ |
| 間取り | 3bedrooms(3DK) |
| 管理費 | 月額:12,700円 修繕積立金:月額9,600円 |
| 所在階 | 1階 |
間取り図はこちら。
南東向きの3DK 53.0㎡
オートロックはありませんが、インターフォンはTVモニター付きで安心ですね!
玄関を入ると左側にシューズBOX。
シューズBOX下のスペースは、使用頻度の高い靴などをサッと取り出せる便利な空間。
玄関ホール左側にサニタリールーム。
洗面台の横にちょっとしたスペースがあるので、棚などを置いて収納スペースとしても。
バスルームには、窓もあり換気もばっちり!
洗濯機置き場は玄関ホールにあります。
こちらは玄関ホール右側のベッドルーム5.6帖。
こちらはダイニングキッチン6.5帖。
明るい日差しが、キッチンまで差し込みます。
もちろん設備も充実しており、収納も豊富にあります。
キッチンカウンターも設置できそうです。
南東向きの大変明るいダイニングキッチン奥のベッドルーム6.0帖。
ベッドルームというより、引き戸を開けて、リビングとしてお使いになるお部屋かと思います。
柱の出っ張りが少なく、家具の配置がしやすいですね!
ダイニングキッチン横のベッドルーム6.0帖。
奥行きのある大型クローゼットがうれしいですね!
南東向きのバルコニー。は向かいに背の高い建物がなく日当たり良好です。
神田川沿いの桜の木も見えてます!
桜の名所、神田川に架かる「面影橋」。
春になれば桜のトンネルが神田川を覆い尽くします。
人気インテリアショップコーディネートの家具が付いてくる、
家具付きリノベーションマンション『グランテラッセ西早稲田』
皆様のご内見、こころよりお待ちしております!







































































