・
□□□□□□□□□□□□□□□□□□□□□□□□□□□□□□□□□□□□□□□
いつも弊社ホームページをご覧頂き誠にありがとうございます。
グリーンヒル新宿はお陰様で販売を終了致しました。弊社問合せフォームにてご要望頂けましたら、当お部屋でキャンセル等が発生した場合、他のお部屋が販売になりました際にご紹介させて頂きます。
不動産Agent 六棒株式会社
TEL:03‐5413‐5336
□□□□□□□□□□□□□□□□□□□□□□□□□□□□□□□□□□□□□□□
・
本日は東京メトロ副都心線、都営大江戸線「東新宿」駅より徒歩5分の
リノベーションマンション【グリーンヒル新宿】のご紹介です。
東新宿の駅を出て、若松河田方向に進みます。駅前のバス停からは九段下や
東京女子医大行きのバスが出ていました。
すぐに左に曲がり、細い道を道なりに進みます。途中、味わい深い感じの飲食店
を多く見かけました。途中からゆるゆると上り坂になりました。
児童遊園の隣が「グリーンヒル新宿」です。遊園からマンションが見えます。
(もちろん逆も。お部屋から遊んでいるお子さんをチェックできますね)
巨木が多く、濃い緑が茂っています。新宿エリアとは思えない静けさです。
ちなみに、このまま「グリーンヒル新宿」を通り過ぎて進むと、スーパー三徳がありますよ。
エントランスまでは少し坂になっているアプローチを進んでいきます。
共用部分に緑が多いのも、眼と心を癒してくれそう。
アプローチを進んでいくと外観が見えてきました。
「グリーンヒル新宿」、昭和44年5月築、総戸数130戸、12階建てです。
大規模マンションだけあって、ゆったりした風格ある佇まいです。
アプローチをあがると右側が駐車場になっていました。
ちなみに外来駐車場もありますよ!
その他自転車置き場とバイク置場もあります。
空き状況はご内見の際に営業マンに聞いてみてくださいね!
マンション専用のゴミ置場はこんな感じです。
アプローチをさらに進んで・・・
エントランスへ到着しました。
オートロックはありませんので、そのまま中へ入ります。
エントランス横には「居住者以外の方の出入りは必ず管理人に断ってください」
との文言もありました(*‘ω‘ *)
エントランス内はゆったりした広さ。
エレベーターも2基設置されています。
1台と2台では、お部屋に到着するスムーズさが全然違います。
エレベーター手前に管理組合事務所・集会所があります。
中に人がいるので何かと安心して暮らせそうです。
ここで間取り図のご紹介です。
※間取り図は別タブで開きますので、確認しながらご覧いただくことが出来ます。
今回ご紹介するお部屋は2階、専有面積60.00㎡の3LDK。ファミリーの方にお勧めのお部屋です。では、早速行ってみましょう!
玄関から廊下にかけては濃いめの木目を多用した落ち着いた雰囲気。リノベーション済みということでとても綺麗ですね。シューズボックスは収納力のあるトールタイプ。扉の姿見もお出かけ前に重宝しそうです。
洗面室には洗面化粧台、洗濯機スペース、浴室がまとまり脱衣所も兼ねています。洗面化粧台はお部屋のサイズからするとややコンパクト。込み合う朝などは譲り合いの精神が必要そうです(笑)洗濯機スペースの上部には棚が付いているので洗濯洗剤などのランドリー用品はこちらへどうぞ。
浴室は白を基調にモノトーンでコーディネイト。リフレッシュ出来そうな明るい雰囲気ですね。追い焚き機能が付いているのでお風呂の準備はワンタッチ。ご家族でお風呂のタイミングが合わなくても、保温機能でいつでも温かいお風呂に入れますよ。雨が多い季節に嬉しい浴室換気乾燥機付き!
こちらは約5.2帖の洋室。
3つある洋室の中では一番大きく、LDKを通らず出入りが出来る独立性の高さから寝室にお勧めのお部屋です。収納はオープンの収納棚と大きなウォークインクローゼット!!!衣類だけでなくスーツケースなどのかさばる物を入れておくにもよさそうですね。南東向きの窓は共用廊下に面しています。
こちらは約11.3帖のリビング・ダイニング・キッチン。
北西向きの窓に向かってキッチン、ダイニング、リビングと並んだ縦長のお部屋です。オーソドックスなタイプなので家具のレイアウトに悩むこともなさそうですね。バルコニーが無いお部屋なので窓際に室内干し用金具が設置されていました。エアコンと併用すれば乾燥防止にもなって一石二鳥ですよ。
キッチンは解放感が人気のカウンタータイプ!
夕食を作りながらお子様の話に耳を傾けたり、おつまみを作りながらお友達とおしゃべりしたり・・・そんな一体感が嬉しいキッチンです。お料理中は換気扇を忘れずに!
こちらは約4帖の洋室。
入口にはデッドスペースの出来ない引き戸を使用し、お部屋のスペースを最大限使えるような工夫がされています。窓はありませんが、静かで暗くて寝るにはいい環境ですよね。クローゼットはオープンタイプ。
こちらは約4.2帖の洋室。
北東向きに窓があるお部屋です。北向きって暗いというイメージがありましたが意外に明るいんですね。クローゼットはフルオープンになるタイプ。容量ではウォークインクローゼットに敵いませんが、使い勝手なら負けていませんよ。
・
以上でグリーンヒル新宿のご案内を終わります。
いかがでしたでしょうか??
東新宿駅から徒歩5分のマンションです。
リノベーション済みという事で室内はとてもキレイですよ (っ・ω・)っ
内見のご予約やご質問などございましたらお気軽にお問い合わせくださいませ。
ご連絡お待ちしております。
弊社、不動産Agent 六棒株式会社では、一般仲介物件は仲介手数料20%~30%OFF!
にてお取り扱いしております!
なるべく沢山のお部屋をホームページに掲載したいと思っておりますが、時間的成約もございますので、残念ながらご紹介できるお部屋の一部しか掲載できておりません。
このホームページに掲載中のお部屋、その他サイト等で気になるお部屋、街を歩いていて気になったマンション等々ございましたら是非、弊社営業部までご相談ください!
~不動産Agent 六棒株式会社の特徴~
・一般仲介物件の仲介手数料は20%~30%OFFにてご案内中です!
・住宅ローンに自信あります!
・頭金10万円より購入できます。是非ご相談下さい!
・お部屋のご見学は車で2~3件まとめて案内します!
・物件数3000件以上、新築戸建、リノベ物件も多数ご用意しております!
過去に販売していたお部屋の概要 こちらのお部屋の販売は終了いたしました
| 価格 | -万円 |
| 面積 | 60.00㎡ |
| 間取り | 2bedrooms(2LDK) |
| 管理費 | 月額13,000円 修繕積立金:月額7,000円 |
| 所在階 | 11階 |
| お問い合わせ・ご内見のご予約はこちらからお気軽にどうぞ | |
ここで間取り図のご紹介です。
※間取り図は別タブで開きますので、確認しながらご覧いただく事が出来ます。
今回のお部屋は11階、間取りは2LDK、専有面積は60.00㎡となります。
では早速行ってみましょう!
エレベーターを11階で降りて…
眺めの良い外廊下を進むと…
玄関に到着です。
アルコーブ付きで、廊下からは少し奥まった所にドアがあります。プライバシーの面や、雨風が強い時などに影響をうけづらいなど様々なメリットがあります。また、カメラ付きインターホンが設置されていているので、お部屋の中から訪問者を確認する事が出来ますよ。
それではお邪魔します。
玄関ドアを開けると、木の風合いを生かしたナチュラルな雰囲気の空間が迎えてくれました。
振り返って玄関内の様子です。
シューズボックスの代わりに可動棚が設置されています。風通しが良く靴には優しいですが、玄関という目立つ場所なので整理整頓は欠かせませんね。
まずは、正面のドアから開けてみましょう。
こちらはリビング・ダイニング・キッチンとなります。
木材を基調にした自然な雰囲気のお部屋になっています。木は、時間が経つ程に味わいが深まるところがいいですよね(^^)
寄木細工の様な壁、いいアクセントになっています。照明もお洒落♪♪
右側、ソファーの後ろに見えるのは隣の洋室になります。
洋室側からの様子です。
用途に合わせてこんな感じで開放して使うのもいいですね。かなり広いスペースになるので、大勢が集まった時などにピッタリです。
洋室の奥へ進むと、扉が二つ。左側は間口が広くて使いやすそうなクローゼットになっていました。奥行きもあるので収納力も抜群ですよ。
右側のドアは、リビング・ダイニング・キッチンにつながっていました。
壁部分に収納された仕切りの扉を引き出して閉めると…
独立した洋室になります。先程のドアはその時に便利そうですね。
閉めた時のリビング側から…
濃い色の面積が増えたからか、より落ち着いた雰囲気になりましたね。これはこれで素敵です(^^)
次は、キッチンを見ていきましょう。
調理台の下は、食洗器と収納になっていました。
洗い物はお任せして、食後はのんびりしちゃいましょう♪♪
水栓は浄水機能付きシャワー水栓。
切り替えるだけで美味しいお水が出てきます。ノズルが伸びるのでシンクのお掃除などにも便利ですよ。
コンロは3口。片面焼きグリルが付いています。
三つのコンロでお料理の効率もグッと上がりますね(^^)
お料理中は換気扇をお忘れなく。
調理台後方には冷蔵庫スペースも確保されているので、出っ張った冷蔵庫が邪魔になる事もありません。
では、いちど廊下に戻って..
出て右のドアを開けてみましょう。
洗面室になります。
造り付けの洗面台です。やっぱり既製じゃないのはいいですよね(^^)
収納は少し少なめ。洗面台の下になります。
洗面台隣の洗濯機スぺ―スには、棚が二段設置されていました。洗剤などの洗濯関係の物をまとめておいたり、洗面関係の物も置けそうですね。
次は浴室へ…
木目を模したパネルを使用した浴室です。
追い焚き機能が付いていますので、いつでも温かいお風呂に入れますよ。
ゆったり浸かれる広々とした浴槽です。
浴室乾燥機能は浴室のカビ予防だけでなく、お洗濯物乾燥やヒートショック予防など様々な働きをしてくれます。どんどん使っていきましょう。
では、次はトイレへ…
洗面室内のドアです。
ニッチカウンター…実用的に使うも良し、何か飾るも良し、使い方は自由です。
もちろんウォシュレットも完備していますよ。今の時代、無いと困りますよね(笑)
では、次のお部屋へ…
洗面室の向かいのドアです。
こちらは北西側の洋室です。
フローリングや建具はリビングと変わらないのに、ブルーのアクセントウォールによってガラッと雰囲気が変わっていますね。
このお部屋にも大きなクローゼットが付いていました。
窓の外は外廊下になっていますので、しっかり面格子が設置されていました。それでも夜間は換気窓を使いましょうね。
こちらのお部屋にはバルコニーがありませんので、最後に南東向きの窓からの眺めをご紹介します。
如何ですか?さすが11階の眺望ですよね。写真ではわかりづらいですが、肉眼ではスカイツリーも良く見えます。お天気が良ければもっと綺麗なんですけどね^^;)是非お天気のいい時にご覧になって下さい!
・
以上でグリーンヒル新宿のご案内を終わります。
いかがでしたでしょうか??
東新宿駅から徒歩5分のマンションです。
リノベーション済みという事で室内はとてもキレイですよ (っ・ω・)っ
内見のご予約やご質問などございましたらお気軽にお問い合わせくださいませ。
ご連絡お待ちしております。
弊社、不動産Agent 六棒株式会社では、
□リノベーションマンションはほぼ全て仲介手数料無料!
□その他一般仲介物件は仲介手数料20%~30%OFF!
にてお取り扱いしております!※弊社の「Agent Fee=仲介手数料」についてはご案内、ご面談の際に営業担当者よりご説明いたします!
なるべく沢山のお部屋をホームページに掲載したいと思っておりますが、時間的成約もございますので、残念ながらご紹介できるお部屋の一部しか掲載できておりません。
このホームページに掲載中のお部屋、その他サイト等で気になるお部屋、街を歩いていて気になったマンション等々ございましたら是非、弊社営業部までご相談ください!
~不動産Agent 六棒株式会社の特徴~
・一般仲介物件の仲介手数料は20%~30%OFFにてご案内中です!
・リノベーションマンションについてはほぼ全て仲介手数料無料です!
・住宅ローンに自信あります!
・頭金10万円より購入できます。是非ご相談下さい!
・お部屋のご見学は車で2~3件まとめて案内します!
・物件数3000件以上、新築戸建、リノベ物件も多数ご用意しております!
過去に販売していたお部屋の概要 このお部屋の販売は終了いたしました。
| 価格 | -万円 |
| 面積 | 56.06㎡ |
| 間取り | 3bedrooms(3LDK) |
| 管理費 | 月額13,000円 修繕積立金:月額7,000円 |
| 所在階 | 8階 |
| お問い合わせ・ご内見のご予約はこちらからお気軽にどうぞ | |
ここで間取り図をご紹介いたします。
間取り図は別タブで開く事が出来ますので、ご覧頂きながらがお勧めです。
今回のお部屋は8階、間取りは3LDK、専有面積は56.06㎡となってます。
ではさっそく行ってみましょう!
エレベーターを降りて、開放感いっぱいの外廊下を進むと…
玄関に到着です。
アルコーブがあり廊下からは奥まった所に扉がありました。プライバシーが守られていてgoodですね。
さらに、カメラ付きインターホンとダブルロックが防犯面を守ってくれていてvery goodです(^^)
それではお邪魔します…
扉を開けると、真っ直ぐに伸びた廊下に白いドアが並んでいました。木目を生かした中間調のフローリングに真っ白な壁で、すっきりとした雰囲気になっていますね。金具の黒がアクセントになっています。
振り返って玄関内の様子です。
姿見はお出掛け前の身だしなみチェックに嬉しいですね。
人感センサーがありますので玄関に入れば自動でライトが点いてくれますよ。手が塞がっている時などに助かります。
シューズボックスはトールタイプで収納力十分。棚は高さ調整可能ですのでブーツなどでも問題ありません。
まずは、正面のガラスの入ったドアから開けてみましょう。
この瞬間がドキドキしますよね(^^)
こちらが約11.5帖のリビング・ダイニング・キッチンとなります。
大きな窓から光が差すとても明るいお部屋ですね。廊下と同じくナチュラルなフローリングと真っ白な壁ですが、外光が入る事でより爽やかな印象になっています。見づらいですが右側の一面がグレーのアクセントウォールになっています。
今は隣の約4.1帖の洋室とつなげた状態になってますので15帖越えのお部屋となっています。
インターホンのモニターがキッチン近くにありました。お部屋全体の真ん中位に位置しているのでどこからでも出やすくなってます。ちゃんと確認してからドアは開けましょうね。
洋室の中から…
洋室にはクローゼットと、天井取付タイプの物干し竿掛けが付いていました。
このお部屋はバルコニーがありませんのでお洗濯物干しはこちらか、浴室乾燥になります。このタイプは、エアコンをつければ冬場などは洗濯物が乾きやすい上に乾燥対策も同時にできて一石二鳥ですよ。
仕切りの引き違い戸は壁部分に収納されていて、引き出して閉めると…
こんな感じの独立したお部屋になります。これなら、洗濯物を干している時に急なお客様があっても大丈夫ですね(^^)もちろん寝室などにもなりますよ。
こちらはキッチン近くの約4.5帖の洋室となります。
このお部屋には窓がありませんが、昼間は開けておけばリビングからの光が入りますよ。
クローゼットが付いています。
仕切り戸は同じ様になっていて…
閉めるとこの様な感じになります。
寝室なら良いかもしれませんが…
開けておくと、中からキッチンでお料理をするのが見えたり…
小さいお子様などのプレイルームにしてもキッチンから目が届いたりで、日中は開けておくと良いかもいれませんね。
ではキッチンを見てみましょう。
キッチンはL字型のオープンキッチンです。
L字型ですと大きさの割に移動距離が少なく効率が良かったり、コンロをダイニングから離したり出来るメリットがあります。
コーナー部分の収納は取り出しにくくなりがちですが、特殊な蝶番で普通より大きく開くようになっていました。優しい♪
食洗機が完備されています。
洗い物は食洗機にお任せして、食後はみんなでのんびり過ごしましょう(^^)
コンロは3口、片面焼きグリルが付いています。
グリルは、スイッチにもお魚マークが付ている様にお魚焼き機のイメージありますが、他のお料理もいろいろ出来るらしいですよ。ご興味がある方は調べてみて下さい。
お料理中は換気扇をお忘れなく。
冷蔵庫スペースは窪みになっているので冷蔵庫が出っ張る事がありませんね。ただし、入る大きさは決まっていますので気を付けましょう。
水栓は浄水機能付きシャワー水栓となります。
ワンタッチで美味しいお水も飲むことが出来ますし、ヘッドが伸びてシンクを流したりに便利ですよ。縛られていたので伸ばしてみる事は出来ませんでしたが…^^;
ではいちど廊下に戻ります…
リビング・ダイニング・キッチンから廊下に出てすぐ右に、収納がありました。棚は高さが変えられますので、入れる物に合わせて調節出来ますね。
収納の向かいのドアを開けてみます。
トイレとなります。
もちろんシャワートイレが完備されています。
ちなみにウォシュレットは他社さんの商品名で、INAXさんはシャワートイレなんですよ。ご存知でしたか?
ではとなりのドアを開けてみます。
洗面室となります。
収納は洗面台下とミラーキャビネットがありました。いろいろな大きさの物に対応出来ますね。
水栓はハンドシャワータイプですので、寝ぐせを直すくらいはこちらで出来ますよ。
横の洗濯機スペースには収納も付いていますので、洗剤や柔軟剤など洗濯関係の物はまとめておけますね。
次は浴室へ…
追い焚き機能がありますのでいつでも温かいお風呂に入れます。お風呂は自分のタイミングで入りたいですよね。
浴室乾燥機が付いています。
こちらのお部屋はバルコニーがありませんので、お洗濯物乾燥に大活躍ですね。それ以外にも浴室のカビ防止だったり、冬場のヒートショック防止などいろいろ役に立ちますよ!
では次のお部屋へ…
洗面室の前のドアです。
こちらが約6帖の洋室となります。
いちばん独立性の高いお部屋になっています。窓からは光が入ってきていますね。
正面の窓の外は外廊下になっていますが、しっかりと面格子が設置されていますのでご安心下さい。換気用のルーバーも付いていますので夜間はこちらでどうぞ。
クローゼットは間口が広く使いやすそうです。中が緑色になっていて可愛いですね。他のお部屋では一切なかったので、いい意味でビックリしました(笑)
こちらのカウンターもカワイイですね。
ちょっとした作業が出来るスペースって意外に重宝しますよね♪
それでは、最後に窓からの眺望をご覧頂きましょう。
素晴らしいとしか言いようのない眺望です。
建物が多いので夜景の方がもっと綺麗そうですね♬
・
・
以上でグリーンヒル新宿のご案内を終わります。
いかがでしたでしょうか??
東新宿駅から徒歩5分のマンションです。
リノベーション済みという事で室内はとてもキレイですよ (っ・ω・)っ
内見のご予約やご質問などございましたらお気軽にお問い合わせくださいませ。
ご連絡お待ちしております。
弊社、不動産Agent 六棒株式会社では、
□リノベーションマンションはほぼ全て仲介手数料無料!
□その他一般仲介物件は仲介手数料20%~30%OFF!
にてお取り扱いしております!※弊社の「Agent Fee=仲介手数料」についてはご案内、ご面談の際に営業担当者よりご説明いたします!
なるべく沢山のお部屋をホームページに掲載したいと思っておりますが、時間的成約もございますので、残念ながらご紹介できるお部屋の一部しか掲載できておりません。
このホームページに掲載中のお部屋、その他サイト等で気になるお部屋、街を歩いていて気になったマンション等々ございましたら是非、弊社営業部までご相談ください!
~不動産Agent 六棒株式会社の特徴~
・一般仲介物件の仲介手数料は20%~30%OFFにてご案内中です!
・リノベーションマンションについてはほぼ全て仲介手数料無料です!
・住宅ローンに自信あります!
・頭金10万円より購入できます。是非ご相談下さい!
・お部屋のご見学は車で2~3件まとめて案内します!
・物件数3000件以上、新築戸建、リノベ物件も多数ご用意しております!
過去に販売していたお部屋の概要 このお部屋の販売は終了いたしました。
| 価格 | -万円 |
| 面積 | 60.00㎡ |
| 間取り | 3bedrooms(3LDK) |
| 管理費 | 月額13,000円 修繕積立金:月額7,000円 |
| 所在階 | 2階 |
| お問い合わせ・ご内見のご予約はこちらからお気軽にどうぞ | |
ここで、間取り図をご紹介いたします。
間取り図は別タブで開きますので、ご覧になりながらがお勧めです。
今回のお部屋は2階、間取りは3LDK、専有面積は60.00㎡となってます。
では、さっそく行ってみましょう!
2階の外廊下を進むと…
玄関に到着です。
カメラ付きインターホンが付いています。訪問者をモニターで確認してからドアを開ける事が出来るので安心ですね。
それではお邪魔します!
自然の木肌を活かしたフローリングに白のクロスの、ナチュラルな雰囲気の廊下が真っ直ぐに伸びています。取っ手などの金具に使われている黒がいいアクセントになっていますね。
突き当りのドアが少し横にずれていて、玄関から中が見えづらくなっているのも、宅急便やフードデリバリーなどが増えている今の時代にピッタリです(^^)
振り返って玄関の様子です。
トールタイプのシューズボックスは棚の間隔調整が可能ですので、ブーツなどでも問題なく収納出来ますよ。
では、廊下突き当りのドアから開けてみましょう。
こちらが約10.3帖のリビング・ダイニング・キッチンとなります。
進んで、リビング・ダイニングです。
奥の大きな窓から明るい光が入ってきていますね。オーソドックスな色使いのお部屋ですので、選ぶ家具やカーテンでどんな雰囲気にも出来そうです。
反対から…
壁の一部がグレーのアクセントウォールになっています。間接照明に照らされて布の織目の質感が良くわかりますね。天井にもダインライトやスポットライトが設置されていてお部屋にアクセントをつけています。
キッチン近くには収納がありました。あまり奥行きはありませんが、棚は高さ調整可能です。上部にはコンセントやモジュラージャックがありますので電話やFAXなどを置いてもいいですし、お花や写真スタンドなどを置くのもいいかなと思います。
では、次のお部屋へ行きましょう。
こちらが約4.8帖の洋室となります。
リビングと同じサイズの窓がありますので、やっぱり明るいですね。
クローゼットが付いています。
窓際の天井にはハンガーを掛けるパイプが設置されていました。こちらの物件にはバルコニーが無く、お洗濯物はこちらで干す事になります。パイプは、下がっているクランクを回す事によって天井に収納出来るのでご安心下さい。もちろんクランクも外れますよ(笑)
仕切りの引き戸は全て壁部分に収納出来ますので、洋室とリビングをつなげて使う事も出来ます。
15帖超のお部屋の誕生です(^^)二つの窓がつながって更に明るく感じますね。
では、次はキッチンへ…
上品で落ち着いた雰囲気の調理台ですね。
3口コンロと片面焼きグリルが付いています。
3つもあれば、コンロ待ちの心配もありませんね。
水栓は浄水機能付きシャワー水栓です。
ワンタッチで美味しいお水を使えますし、ヘッドが伸びてシンクを流したりに便利ですよ。
収納もたくさんあります。
カウンターキッチンですので、お料理中は換気扇をお忘れなく。
調理台の後ろには冷蔵庫スペースが。窪んでいるので出っ張らなくていいですね。ただし、サイズにはご注意下さい。
一度、廊下に戻ります。
廊下の収納。
玄関近くのドアを開けてみます。
洗面室になります。
真っ白で清潔感のある洗面台ですね。
収納は洗面台下と、ミラーキャビネットが付いています。大きな物から細かい物までいろいろ収納出来そうです。
水栓はハンドシャワータイプですので、寝ぐせ直しくらいなら出来そうですね(^^)
洗濯機スペースの上部には吊戸棚が付いていいます。洗剤や洗濯ネットなど、洗濯関係の物をまとめて入れておけますよ。
浴室となります。
追い焚き機能が付いていますので、いつでも温かいお風呂に入れますね。
浴室乾燥機能がついています。
洋室内にもお洗濯物を干せる所がありましたが、こちらでも乾かす事が出来ますよ。
では次へ…
収納の前のドアです。
トイレとなります。
もちろんウォシュレットも完備されていますよ。
今の時代、無しって訳にはいかないですよね(笑) TOTOさんお世話になってます。
では次のお部屋へ…
リビングのドアそばの引き戸です。
こちらが約5.2帖の洋室です。
間口が広く使いやすそうなクローゼットが付いていました。
次は玄関そばの引き戸です。
こちらが約7.8帖の洋室となります。
ベッドルームとしてはかなり広々としたお部屋ですよ。
窓の外は外廊下になっていますので、しっかり面格子が設置されています。緑が見えるのはチョット嬉しいですね。
入口近くのドアを開けてみると…
ウォークインクローゼットになっていました。
両側にポールが設置されているタイプですね。床面も広いので収納ケースを置いても良さそうですね。大きなスーツケースでも楽々置けそうです。
それでは最後に、リビングの窓の外の眺望を見てみましょう♬
素晴らしい眺望です!
とても2階とは思えないですね。前はマンション敷地と公園なので当分はこの景色を楽しめますよ♬
・
・
以上でグリーンヒル新宿のご案内を終わります。
いかがでしたでしょうか??
東新宿駅から徒歩5分のマンションです。
リノベーション済みという事で室内はとてもキレイですよ (っ・ω・)っ
内見のご予約やご質問などございましたらお気軽にお問い合わせくださいませ。
ご連絡お待ちしております。
弊社、不動産Agent 六棒株式会社では、
□リノベーションマンションはほぼ全て仲介手数料無料!
□その他一般仲介物件は仲介手数料20%~30%OFF!
にてお取り扱いしております!※弊社の「Agent Fee=仲介手数料」についてはご案内、ご面談の際に営業担当者よりご説明いたします!
なるべく沢山のお部屋をホームページに掲載したいと思っておりますが、時間的成約もございますので、残念ながらご紹介できるお部屋の一部しか掲載できておりません。
このホームページに掲載中のお部屋、その他サイト等で気になるお部屋、街を歩いていて気になったマンション等々ございましたら是非、弊社営業部までご相談ください!
~不動産Agent 六棒株式会社の特徴~
・一般仲介物件の仲介手数料は20%~30%OFFにてご案内中です!
・リノベーションマンションについてはほぼ全て仲介手数料無料です!
・住宅ローンに自信あります!
・頭金10万円より購入できます。是非ご相談下さい!
・お部屋のご見学は車で2~3件まとめて案内します!
・物件数3000件以上、新築戸建、リノベ物件も多数ご用意しております!
過去に販売していたお部屋の概要 このお部屋の販売は終了いたしました。
| 価格 | -万円 |
| 面積 | 60.00㎡ |
| 間取り | 3bedrooms(3LDK) |
| 管理費 | 月額13,000円 修繕積立金:月額7,000円 |
| 所在階 | 8階 |
| お問い合わせ・ご内見のご予約はこちらからお気軽にどうぞ | |
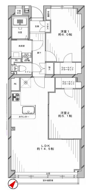
こちらが今回ご紹介させて頂くお部屋の間取りです。
60.00㎡の3LDK。
新規リノベーション済みの物件なので、隅々までピカピカです!!
間取り図をクリックして頂ければ別タブで開くので、見比べながら進んでいくのも良いかもしれませんね!!
エレベーターを降りるとお部屋までは外廊下が続いています。
雨や風の影響は受けてしまいますが、臭いと湿気が籠らないので1年を通して快適に過ごすことができるのと思いますよ。
玄関は廊下から少し奥に入ったところにあります。
玄関ドアを開けても廊下から室内が丸見えになることもなく、プライバシーを守るという点に関しては優れていると思います。
モニター付きのインターフォンも付いているので、防犯性も問題なさそうですね!!
オートロックは付いていないマンションなので、インターフォンが鳴ったらまずは相手の顔を確認しましょうね!!
それでは中へ入っていきましょう!!
おじゃましまーーっす!!
さすがリノベーション済み!!
分かっていてもこの綺麗さには感動します!玄関に入る前から靴を脱ぎたくなっちゃいます。
シューズボックスの扉には姿見が付いているので、お出かけ前のコーディネートチェックはバッチリですよ!!
帽子掛けですが、こういった使い方もオシャレでいいですよね?
玄関・廊下には人造大理石が使用されていて高級感を醸し出すことに一役買っています。
見た目の高級感もさることながら、お掃除のし易さも人気の秘密です。
それではまずは廊下を玄関突当りまで進んで行きましょう!!
スリットの入っているドアをあけてみましょう!!梁の部分が少し低めなので、身長の高い方はお気を付けくださいね!!
突当りのドアを開けるとリビング・ダイニング・キッチンになっています。
広さは約11.4帖。
南東向きの窓が付いています。
小さいながらもライトで照らされたカウンターが付いています。
後ろのモザイクタイルも上品でいい雰囲気です。
リビングの窓際から隣りを見ると洋室が続いています。
こちらは約4.2帖の洋室です。
壁一面にクローゼットが付いているので、収納にも困りそうになさそうです。
中央の棚を境に左右でわかれているので、ご夫婦で使い分けても良いかもしれませんね。
バルコニーの付いていないマンションなので室内に物干し竿を掛けることができるようになっています。最後にご紹介しますが、一応、外干しもできそうですが。。。
リビングとはスライド式のドアで仕切られているので、リビングの一部としても、一つの洋室としても使う事が出来ます。状況に応じて使い分けていきたいですね!!
次はキッチンを見ていきましょう!!
3口のグリル付きガスコンロ、浄水機能付きの水栓はシャワーヘッドになっています。
グリルが付いていると、お肉もお魚も美味しく焼けますが、実はピザやグラタンもできるというのはあまり知られていません。いい感じに焦げたチーズがあればお酒も無限に飲めちゃいそうですよ!!
食器洗浄機も付いています。
ウチの親は何故か食器洗浄機が信じられないらしく、手洗いした後に食器棚としてつかっていました。
シンク下の収納は引き出しタイプです。
奥まで無駄なく使うことが出来るので、デッドスペースも生まれにくいです。主婦の方々からの人気が高いのも納得です。
キッチンの隣には約3.7帖の洋室があります。
寝室として使うにはちょっと狭いかもしれませんね。子供部屋やクロークとしての使用をお勧めします。
扉はスリガラスになっているので、閉じていてもキッチン側がうっすらと見えます。
キッチンから見るとこんな感じです。
ブルーのアクセントクロスがうっすらと透けて見えるのが分かりますでしょうか??
それでは廊下へと戻って、
こちらのドアを開けてみましょう!!
中はトイレになっていました。
最新式のウォシュレット機能付きのトイレです。リモコンタイプなので、操作性もよさそうですね。
背後には棚があるので、消耗品などはカゴ等を使ってスッキリと収納してくださいね!
廊下の途中には収納スペースがありました。
棚板は自由に高さを変えることが出来るので、掃除機なども問題なく収納することが出来ますよ!
こちらは洗面室です。
洗面化粧台の隣には洗濯機置場もありました。
脱衣所も兼ている場所なので、脱いだお洋服はすぐに選択することもできますよ。
水栓はシャワーヘッドになっています。
洗面ボウルの隅々まで水を流すことが出来ますし、簡単な洗髪ならお風呂まで行く必要もありませんよ。
ミラーの内部は収納スペースになっているので歯ブラシや基礎化粧品などはこちらに収納してくださいね!
次はお風呂です。
お風呂には浴室換気乾燥機能がついているので、入浴後の湿気を取り、カビの発生を抑制してくれます。
暖房機能を使えば、冬の一番風呂でも浴室は暖か、ヒートショックも予防できますよ。
濃い木目調のパネルが高級感を出していますね!
水はけも良いので、お手入れも楽ですよ!
追い焚き機能もついているので、24時間アツアツのお風呂に入ることが出来ます。
お休みの日は朝風呂も良さそうですね!
玄関の前まで戻ってきました。
最後にご案内させて頂くこちらは約5.4帖の広さの洋室です。
主寝室としてお使い頂くのが良さそうです。
外の廊下に面した窓が付いていますが、ご覧の通りスリガラスになっており、窓の外には金属製の格子も付いているので防犯性も問題ありません。
断熱性の高い種類のガラスが使われているのも好印象です。
大きなウォークインクローゼットも付いています。
これだけの容量があれば、時間のかかる衣替えもあっという間に終りそうですね!!
バルコニーは無いので、最後に眺望を紹介しておしまいにしましょう。
南東向きの眺望です。
午後に撮影してので陰になってしまっていますが、午前中はとても明るそうですよ!!
窓の外に狭いスペースがありますが、こちらは室外機置場となっております。
間違っても外に出るのはやめてくださいね!!
ふと上を見ると何やらフックを掛けることのできそうな部分がありました。
風で飛んでしまいそうですし、何より窓から身を乗り出すのは危険なので洗濯物を干すのはオススメしませんよ。
よく見るとスカイツリーも見えました!
写真だと分かりづらいですが、肉眼だともう少しちゃんと見えますよ!!
では、以上でグリーンヒル新宿のご案内を終わります。
いかがでしたでしょうか??
東新宿駅から徒歩5分のマンションです。
リノベーション済みという事で室内はとてもキレイですよ (っ・ω・)っ
内見のご予約やご質問などございましたらお気軽にお問い合わせくださいませ。
ご連絡お待ちしております。
過去に販売していたお部屋の概要 このお部屋の販売は終了いたしました。
| 価格 | -万円 |
| 面積 | 60.00㎡ |
| 間取り | 2bedrooms(2SLDK) |
| 管理費 | 月額13,000円 修繕積立金:月額7,000円 |
| 所在階 | 12階 |
| お問い合わせ・ご内見のご予約はこちらからお気軽にどうぞ | |
エレベーターを降りると、エレベーターホールに自転車が置けるようになっています。
ここなら雨風にもあたらず、自転車にも優しいですね。
さすが12階、外廊下からの眺めも最高ですね。
玄関です。
奥まってますので、風が強い時など助かりそう。
カメラ付きインターフォンが付いてます。
しっかりお顔を確認してから、ドアを開けましょう!
玄関中からの様子です。
入ってすぐ左にはシューズBOXがありますね。
扉の一枚が姿見になっていて、お出かけ前のチェックに便利です。
人感センサーでお部屋に入るとすぐ明るくなりますので、暗い中手探りでスイッチを探したりはもうありませんね(笑)
では、廊下を進んで突き当りの最初のお部屋へ…
リビング・ダイニング・キッチンですね。
キッチン脇を通って、その向こうがリビング部分になります。
南向きの窓が明るいですね!
反対側からの様子。
右の仕切り戸は、開けるととなりのお部屋とリビングをつなげてつかえますが、その様子はまたのちほど…
一部照明は調光が可能なようです。
では、キッチンを見てみましょう。
コンロは3口、グリルが付いてます。
3口あると料理もサクサクはかどりますね(^^♪
グリルはお魚だけでなく、肉や野菜などにも使えますよ。
オープンキッチンなので、お料理の時に換気扇は忘れずに!
水栓はハンドシャワータイプです。
大きな鍋や、シンク洗いなどに便利ですね。
食洗機も完備してます。
使ったことが無いので憧れます(笑)
キッチンからリビングをを眺めてみるとこんな感じです。
では、リビングに戻って・・・
先ほどの仕切り戸を開けてみます。
やっぱり広々としてイイですね♪
窓が一つながりになるので、お部屋に一体感が出ています。
ベッドルームからの様子です。
ベッドルームとしてお使いの場合はこんな感じになります。
ちなみに仕切りは3枚がばらばらに動きます。
入ってすぐ左にはシステム収納があります。
真ん中の棚は可動式となってますので、いろいろ工夫出来ますね。
今度は、キッチン脇の引戸を開けてみましょう。
こちらは4.2帖のベッドルームとなります。
奥の壁一面が可動式の棚になってますね。
ポールも高さがかえられるようです。
こちらのお部屋は窓がありませんが、ベッドルームにすればゆっくり休めそうです(笑)
では、廊下に戻って…
出てすぐ左の扉を開けると、収納になってます。
そのとなりのドアの向こうが…
5.5帖のベッドルームになります。
奥の窓は外廊下に面してますが、しっかり格子が設置されてますので安心ですね。
窓の方から…
こちらのお部屋にはゆったりとしたクローゼットが付いてます。
では、また廊下に戻って…
リビングドアのとなりはトイレです。
上部には収納、ウォシュレットも完備です。
ウォシュレットが無い時代もあったんですよね^^;
TOTOさん感謝です(笑)
今度はそのとなりへ…
洗面室です。
玄関入ってすぐなので、すぐに手を洗えますね(^^♪
収納は鏡の裏と洗面台の下になります。
鏡の裏はこまごました物の収納になくてはなりませんね。
洗面台の奥には洗濯機スペースがあります。
水栓はハンドシャワータイプなので、朝のシャンプーくらいはこちらでOKですね。
では、浴室へ…
追い焚き機能もついてます。
お風呂入るタイミングってどうしてもバラバラになりがちですですよね。
浴室乾燥機付き。
こちらのお部屋はバルコニーがありませんので、これは重要ですね。
それ以外にも、お風呂場のカビ防止だったり、冬場のヒートショック防止などいろいろ役に立ちますよ!
最後に窓からの眺望をご覧頂きましょう!(^^)!
いや~すごいですね!
どちらを見ても空が広がってます。
きっと夜景もキレイですよ(´▽`*)
スカイツリーも見えますね。
(分かりづらくてすみません、真ん中あたりです)
では、以上でグリーンヒル新宿のご案内を終わります。
いかがでしたでしょうか??
東新宿駅から徒歩5分のマンションです。
リノベーション済みという事で室内はとてもキレイですよ (っ・ω・)っ
内見のご予約やご質問などございましたらお気軽にお問い合わせくださいませ。
ご連絡お待ちしております。
過去に販売していたお部屋の概要 このお部屋の販売は終了いたしました。
| 価格 | -万円 |
| 面積 | 63.00㎡ |
| 間取り | 3bedrooms(3LDK) |
| 管理費 | 月額13,000円 修繕積立金:月額7,000円 |
| 所在階 | 6階 |
| お問い合わせ・ご内見のご予約はこちらからお気軽にどうぞ | |
ここで間取りのご紹介です。3LDK、63.00㎡。南東角部屋です(´▽`*)
クリックすると別タブで開きますので、よかったら間取りをみながら写真を
ご覧ください!
共用廊下は外廊下タイプ。ホントに東新宿から徒歩5分なのかな、と思うほど静かです。
ご紹介するお部屋は6階の角部屋。
玄関前からの眺めもなかなかいいですよ!
玄関前にはプライバシーを保つアルコーブがついています。
インターホンはTVモニターがついているので事前に来訪者の顏が確認できて安心です。
ではお部屋の中へ入ってみましょう!
室内はリノベーション済みでピカピカです(´▽`*)
玄関ホールがゆったりしていて靴の脱ぎ履きもしやすそうです。
玄関横には背の高いシューズBOXがあります。
棚の高さは調節できるのでブーツなど背の高い履物も立てて仕舞っておけますね。
表扉には鏡がついているのでお出かけ前の身だしなみチェックはこちらでどうぞ!
玄関をあがると廊下がまっすぐのびています。
フロアタイルも建具もつるつるとした質感で高級感があります( *´艸`)ステキ
廊下をまっすぐ進んだ先の扉をあけてLDKから見ていきましょう!
LDKは約13.0帖。南東向きの明るい縦長空間です。
リビングダイニングスペース。
ゆとりがあるので家具の配置もしやすそうですね(´▽`*)
そして目を引くのがこちらのニッチカウンター!
ポップな色合いのタイルが可愛らしいですね♡
見ているだけで元気になりそうな気がします(*’▽’)
窓側からもLDKをご覧ください。
次にキッチンを見ていきましょう。
キッチンは落ち着いた色合いの木目調。
明るい窓に向かってお料理することができますよ(´▽`*)
リビングに家族やお友達がいれば会話を楽しむこともできますね。
食洗器がついているので食後の後片付けもちょっと楽になるかも!
浄水器一体型水栓はシャワーにもなるので、シンクのお掃除も隅々まで楽にできてとても便利です。
洋室は3部屋あるのですが、そのうち2部屋はLDKを介していけるようになっています。
キッチン横の2枚扉の洋室は・・・
約3.6帖の広さ。
小さめのクローゼットがついています。
お部屋の広さも限られているので書斎等として使ってもよさそうです。
可動扉は壁の向こうに引き込めるので開けたままでも見た目はスッキリ。
こうするとキッチンが広くなったような気がするのは私だけでしょうか(*‘ω‘ *)
もう1部屋はリビングダイニング側に扉があります。
扉をあけてお邪魔します。
広さは約4.8帖。
壁面のアクセントクロスが可愛らしいですね♡
クローゼットもついています。
今度はLDKを出て廊下側を見ていきましょう。
廊下を出て右側の白い扉は収納です。
日用品のストックを入れておいたりするのに活躍してくれそうです。
奥行きもあるので掃除機も入りそうですね。
収納のお隣は洋室です。
広さは約6.3帖。
洋室の中で一番広いので主寝室になるイメージでしょうか(*‘ω‘ *)
こちらのお部屋には約1.3帖の広さのウォークインクローゼットがついています。大きな収納家具は用意しなくてよさそうですね!
LDKの入口を廊下側へ出てすぐ左側の扉はトイレです。
白基調で清潔感のあるトイレルーム。
後ろには棚があるのでおしゃれな芳香剤を置いてもいいですね(´▽`*)
もちろんウォシュレットがついています。
トイレのお隣が洗面室になっています。
玄関からも近いので帰宅後の手洗いがスムーズにできますよ!
洗面室内は脱衣スペースを挟んで洗面化粧台、洗濯機置場、バスルームがあります。
洗面化粧台はスリムながら鏡の裏、引き出しと収納スペースが豊富。
小物類からドライヤー、タオルなどもしっかり収納できそうです。
水栓はシャワーになるので朝の寝ぐせもサッとなおすことができそうです。
洗面化粧台のお隣は洗濯機置場。
洗剤や洗濯ネットは上の棚へどうぞ(*’▽’)
足元は物が散らからずスッキリ保てそうですね。
洗濯機置場の向かいがバスルームなので脱いだ衣類はそのまま洗濯機へ放り込みやすい位置関係です。
バスルームは落ち着いた色合いの木目調パネルで高級感のある雰囲気( *´艸`)イイ
1日の疲れを落として明日への活力をチャージできそうです。
追い焚き、浴室換気乾燥機能と設備も充実しています。
こちらのお部屋、実はバルコニーがないのですが乾燥機があればお洗濯ものも安心です!
最後に、バルコニーがないのでLDKからの眺望をご紹介します。
お隣の洋室からも同じ眺めが見えますよ!
窓の外は程よく抜けた開放感のある眺めが楽しめます(´▽`*)
これは夜景もキレイそう☆
左右の眺めもグーです!空がキレイですね。
是非現地で実際にご覧くださいませ(*’▽’)
グリーンヒル新宿、いかがでしたでしょうか?
内見のご予約やご質問などございましたらお気軽にお問い合わせくださいませ。
ご連絡お待ちしております。
過去に販売していたお部屋の概要 このお部屋の販売は終了いたしました。
| 価格 | -万円 |
| 面積 | 60.00㎡ |
| 間取り | 2bedrooms(2LDK) |
| 管理費 | 月額:7,000円 修繕積立金:月額13,000円 |
| 所在階 | 6階 |
| お問い合わせ・ご内見のご予約はこちらからお気軽にどうぞ | |
こちらが今回ご紹介させて頂くお部屋の間取りです
クリックして頂ければ別タブで開きますので、ここからは間取り図と見比べながら進んで行きましょう
エレベーターを降りてお部屋までは外廊下が続いています。
雨や風の影響は受けてしまいますが、臭いや湿気が籠らないというメリットは何ものにも代え難いかと思いますよ
玄関先はアルコープになっています。
ドアを開けたときに、廊下を歩いている人からお部屋の中が見えにくくなっています。
ドアの前に自分だけのスペースがあれば、ここから自宅ッ!!って感じがしてきますね
もちろんモニター付きのインターフォンもあります。
お部屋の中から廊下の様子を確認できるのは防犯的にも心強いですよね
「管理会社から委託されてきたインターネット工事の業者です~」といって訪問してくるのはかなりの確率で非公式な業者なので注意してくださいね
それでは
お邪魔しまーーーっす!!!
さすがリノベーション済みの室内です!!
ピカピカ、おにゅーで気持ちがいいですよ
大容量・トールタイプのシューズボックスにはご家族全員の分の履物が余裕を持って収まりそうですね
玄関照明には人感センサーが付いています。
人と明るさに反応し、自動的に点灯・消灯する人感センサ機能は必要な時だけ点灯するので経済的で、つけ忘れや消し忘れの心配もありません。また、スイッチ操作が不要なので、荷物で手がいっぱいの時などもパッと点灯して便利。防犯にも役立ちます。
それでは奥のリビングへと進んで行きましょう
ドアを開けるとまずはキッチンです。
こちらは後でご紹介するので、まずは更に奥まで進んで行きましょう
こちらはリビング・ダイニングです。
LDKの広さは約15.7帖。開放感があるので日々のだんらんにも余裕が生まれそうですね
こちらは家具付きの物件になりますので、見えているテーブルやソファなどはそのままお使い頂くことが出来ますよ
特に高価なシーリングファンが最初から付いているのは嬉しいですね
テレビ台にもなるマルチカウンターは内部が収納になっています。
個人的にはDVDやCD等をぎっしり詰め込んでいきたいですね!!
マルチカウンターの上部はエコカラットになっています。エコカラットは現代における土壁で表面にある小さな穴に空気中の湿気が入ったり出たりすることで、湿気を吸収したり放出したりして湿度を変化させる働きをしていると考えられています。
リビングは約5帖の洋室と繋がっています。
スライド式のドアで仕切られているので、開けてしまえばリビングの一部としても使用する事の出来るお部屋です。
システム収納が付いていますね!!
お洋服を掛けるハンガーポール、雑貨等を収納することのできる棚がセットになったシステム収納は収納界のスーパーエリートです!!ドラゴンボールで例えるならベジータ??いや、もはやブロリーと言っても過言ではないかもしれません!!
もちろんスライド式のドアを閉めれば、1つの寝室としてもお使い頂けます。
状況に応じて自由に使いこなしていきたいですね
洋室のドアを開けるとキッチンが見えますね・・・・
そうです!!
実は写真のような造りになっていたのですよ!!
お子さんがいらっしゃる家庭でしたら鬼ごっこの定番のコースになりそうですね
間取り図を見たときにこの事に気が付いた人は間取り戸を見る目が付いていきたと自信を持ってもいいですよ
そのままの流れでキッチンをご紹介いたしましょう!!
浄水機能付きの水栓はシャワーヘッド、3口のグリル付きガスコンロ、食器洗浄機と至れり尽くせりの設備です。
ちょっとした小物を置くことのできるカウンターもあって、設計者もいい仕事してくれているのが分かります
収納スペースについては細かな説明をするよりも、写真を見て頂いた方が早いかと思います。
足もとの収納は引き出しタイプなので、奥まで無駄なく使うことが出来ますよ!!100円均一などで売っている箱等を上手く利用してスッキリとしたキッチンを維持してきたいですね
それでは廊下に戻りましょう!!
順番に開けていきますよ!!
まずはこちらのマルチクローゼットです
外から帰ってきて、コートを脱ぐのはここで決まりですね!!
奥行もある程度あるので、掃除機などの家電も収納することが出来そうです
次はトイレです。
TOTOのウォシュレット付きですね。
口コミサイトなどを覗いてみると「来客時にトイレのメーカーがTOTOじゃないのは少し気が引ける」という意見もあるくらい、日本の消費者からTOTOのトイレは厚い信頼を得ているようです。
吊戸棚の他にカウンターも付いているので、お洒落な小物を飾る事もできますよ!!
掃除用具などは人目につかない吊戸棚、お花はカウンターとトイレ用品の住み分けができるのも嬉しいです。
リラックスできるトイレは生活の中心になりうる可能性を秘めているのですよ!!
次は玄関前のこちらのドアをば。
こちらは洗面室です。
洗面化粧台の他に、脱衣所も兼ねているという事で洗濯機置場も併設されています。
脱いだお洋服はそのまま洗濯機に放り込むことが出来るのでお部屋の中が靴下で散らかることもなくなりそうですよ!!
洗濯機置場の横にはビルドインタイプのカウンターも設置されていました。
洗剤や柔軟剤の置き場所に大活躍、意外と洗濯機周りに収納場所のない物件も多いのでこういった細かな部分も貴重に感じます。
洗面化粧台には大きなガラスが付いています。内部が収納になっている3面鏡タイプではないのですが、その分視認性に優れた造りになっています。
洗面ボウルのサイドにあるドライスペースもしっかりと確保されているので、ちょっとした小物の仮置きがしたいお化粧時などに重宝します。ドライスペースも意外となかったり狭くて使えなかったりする物件が多いので、他にも物件を見られるのであればぜひチェック項目に追加して置いてください
次はお風呂です。
こちらもピカピカの浴室です。
浴室換気乾燥機能が付いているので、雨の日はこちらで洗濯物を干すことが出来ます。
梅雨の時期や夕立の怖い夏場などには本当に大活躍してくれることと思います。
また入浴前に浴室を温めておく事もできるので、真冬の一番風呂も苦じゃありませんよ
鏡面仕上げの壁なので空間自体も広く感じることが出来ますね
お休みの日は朝からお風呂でゆっくりとした時間を過ごすこともできそうです。
それでは廊下を挟んでこちらのドアを。
こちらの洋室は約5.7帖。
窓は外の廊下に面しているのですが、窓には金属製の格子が付いているので防犯的にも安心できます。
高さの調節が可能な棚も付いています。
窓際は書斎としても使うこともできそうですね!!
棚の他には、なんとウォークインクローゼットも付いています。
お洋服の他にも、季節ものの家電なんかも収納出来ちゃいますよ
かなりの収納力があるので、大量のお洋服も入れることができそうです。面倒な衣替えもあっという間に終っちゃいそうですね!
最後にバルコニーといきたいところなのですが、グリーンヒル新宿にはバルコニーがありません。
せっかくなので窓からの眺望を見ていきましょう。
正面は市ヶ谷、飯田橋方面です。
少し高台になっているので、目の前も開けているようにみえますね!!
南東向きなので、午前中は明るい光が入ってきそうです
バルコニーが無くても洗濯物は干すことが出来ます!
頭上を見上げればフックを掛ける場所がありました!!
他のお部屋の方もこの場所を使って物干し竿を設置しているみたいでしたよ!!
緑の部分は室外機置場になると思って頂いていた方がいいかもしれません。
空いた場所があれば、お花などを育ててみるのもアリかもですよ。
では、以上でグリーンヒル新宿のご案内を終わります。
いかがでしたでしょうか??
東新宿駅徒歩5分、新宿エリアも徒歩圏という利便性の高い立地に加えて、住宅街の高台に位置する閑静な住環境です。
リノベーション済みという事で新しく生まれ変わったお部屋ですよヽ(´∀`)
内見のご予約やご質問などございましたらお気軽にお問い合わせくださいませ。
ご連絡お待ちしております。
過去に販売していたお部屋の概要 このお部屋の販売は終了いたしました。
| 価格 | -万円 |
| 面積 | 60.00㎡ |
| 間取り | 2bedrooms(2LDK) |
| 管理費 | 月額7,000円 修繕積立金:月額13,000円 |
| 所在階 | 8階 |
| お問い合わせ・ご内見のご予約はこちらからお気軽にどうぞ | |
さて、こちらが今回ご紹介させて頂くお部屋の間取り・・・・・
「「なんじゃこりゃぁあぁあああぁあぁぁ!!!!!」」
ああああ・・・・・ (((;゚Д゚)))ガクガクブルブル
間取り図だけでこの感想が出てくる人は、なかなか間取り図を見る目がありますよ!!
とにかく、一刻も早く中を見てみたい気持ちですヾ(*≧∀≦)ノ゙
クリックして頂ければ別タブで開きますが、途中でも定期的に間取り図を見れるようにしていきますね!!
エレベーターを降りると外廊下になっていますヽ(´∀`)
雨の影響は受けますが、その分湿気や臭いが籠ることはありませんよ!!
アルコープ付きなので、玄関ドアを開けた拍子に室内が丸見えになることもありません。
アルコープ付きのマンションは良いマンションなイメージがあります ( ・`ω・´)
玄関先にはモニター付きのインターフォンが付いています。
オートロックの付いていないマンションではありますが、お部屋の中から外の様子を確認できるのは防犯面でも安心できますね!!
7匹の子ヤギも3匹の子豚も家にこれが付いていれば、物語の結果も違ったと思いますよ(U^ω^)
それでは、いざ室内へ!!
こんな感じで、説明していく区間を赤く表示していきますね!!
ドアを開けると奥から明るい光が差し込んできているのが目に入ります。
奥に進みたい気持ちを抑えて、まずは玄関をじっくり見ていきましょう。
玄関の照明には人感センサーが付いています。
深夜の帰宅でも、手探りで電気のスイッチを探さなくても大丈夫です。
消し忘れることもないので、お財布にも環境にも優しい設計になっていますよヽ(´∀`)
横に長い棚には大量の靴が収納できそうですね・・・・
この棚は後ほど、再度登場するので今はサラッと流しますよ c (っ・ω・)っ
次は廊下です。
廊下なんて特に写真を見なくても・・・・
と思うかもしれませんが、後々の伏線?になっているので一応見ていってください。
進んでいくと・・・・・
んんんんんんんんんんん・・・・・・・???????
「「「「「 衝突注意 」」」」」
この張り紙が無いと3人に1人はぶつかって行くことでしょう。
ここも後ほど戻ってきますよ
さて、それでは廊下を抜けてリビング・ダイニング・キッチンへと参りましょう!!
うーーーーーむ、、、、、、
ほおおおお・・・・・・・
へえぇぇえええぇ・・・・・・
いや、すみません。
あまりにも珍しい内装だったので、なんて説明していいやらマジで困っている次第です。
とりあえず、2017年の集大成として遊び心を爆発させた感じがします ( ゚д゚ )
キッチンも見ていきましょう。
キッチンだけ見ると一般的な気がしてきます。
大きなシンクのついた水栓、3口のグリル付きガスコンロ。
全体的なスペースは広々しているので、複数人での調理もできそうですヽ(゚▽゚*)乂(*゚▽゚)ノ
収納スペースは各所の棚も含め、ふんだんに設置されています。
足元の収納は引き出しタイプになっています(・ω・)b
奥まで無駄なく使用することが出来るのでデッドスペースが生まれにくくなっていますよ。
フライパンなどはスタンドを使って立てて置くことで、取り出しも簡単です!!
何より腰に優しいのがうれしいですね!!
次はキッチン前の洋室です。
こちらの洋室は約4.9帖。
一部の壁がガラスになっているので、室外からの光も入ってきます。
お洋服を掛けることのできるポールも付いています。
一見収納があるようには見えませんがオシャレにインテリアとしてもお洋服を掛けることが出来ます。
衝突注意の張り紙です。
普通に前を向いて歩いている限りは本当にぶつかる人はいないと思いますが、歩きスマホ等をしているとぶつかってしまいそうな気もしてきます。。。。
気を付けましょう。
目隠しも兼ねてガラス用のシールを張っても良いかもしれませんね。
廊下から改めて衝突注意です。
お気を付け下さい。
そして、こちらも廊下からガラス越しに見えているお部屋。
入ってみましょう。
んん??
んんんんんん????
あれーーーーー・・・・・???
という事で、玄関との境目に一部壁がありません( ゚ω゚ )
靴を脱いで直接お部屋に上がる事も可能ですよ!!
そしてこちらは、、、、
廊下からガラス越しに見えていたクローゼット?です。
いちいちオシャレですね( ・`ω・´)
次はトイレです。
こちらのドアですね。
LIXILのシャワートイレが付いています。
10~20年前の便器をこれまで使っていた方にとっては最近のトイレはかなり洗浄力・汚れの付きにくさが向上しているという印象を受けるかと思います。
トイレと言えどもいろいろ進歩しているのですよ ( ゚ω^ )ゝ
つぎは洗面室です。
ふーむ。
洗面室もなんだか凝ってる感じですね (○´ω`○)
丸い鏡と高さのある洗面ボウル、タイル貼りの壁がモダンな雰囲気を出しています。
洗濯機置場もあります。
脱衣所も兼ねている場所なので、脱いだお洋服はすぐに洗うことが出来ますよ
水原 希子が髪乾かしてそうな雰囲気が・・・・ 何となくですけど分かりますよね???
次はお風呂です。
入口のドアにはガラスが付いています。
これはエロい気がする!! (/ω・\)チラッ
基本的には普通のお風呂ですが、やはり細部にはこだわりが見えます (*’д`*)
浴室乾燥機能が付いているので、洗濯物も浴室に干すことができますよ!!
カビの防止にもなるので、積極的に使っていきたい機能でもありますヽ(゚▽゚*)乂(*゚▽゚)ノ
追い焚き機能があるので、いつでも好きな時に熱いお風呂に入ることが出来ますよ。
お仕事で帰りが遅くなっても、熱いお湯に肩まで浸かれば1日の疲れも溶け出しそうです!!
次の日も程よくテキトーに頑張りましょうね c (っ・ω・)っ
バルコニーが無いので、リビングからの眺望で最後にしましょう。
眺望については特に説明することは無さそうです。
もともと背の高い建物は立っていないですが、
マンションの西から東にかけてが下り坂になっているので、眺めを邪魔するモノはなにもありません(・`ω´・ ○)
気持がいい位の青空ですね!!!
午前中は眩しい位のお部屋になりそうです!!
では、以上でグリーンヒル新宿 8階のご案内を終わります。
如何でしたでしょうか?
閑静な住宅街の中に佇むマンションです。
遊び心しかないリノベーションなので、ぜひ室内を見に来てほしいです。
内見のご予約やご質問などございましたらお気軽にお問い合わせくださいませ。
ご連絡お待ちしております。
過去に販売していたお部屋の概要 このお部屋の販売は終了いたしました。
| 価格 | -万円 |
| 面積 | 60.00㎡ |
| 間取り | 2bedrooms(2LDK) |
| 管理費 | 月額13,000円 修繕積立金:月額7,000円 |
| 所在階 | 4階 |
| お問い合わせ・ご内見のご予約はこちらからお気軽にどうぞ | |
こちらが今回ご紹介させて頂くお部屋の間取りです。
60㎡の2LDK。リフォーム済みでキレイなお部屋になっています。
さっそく参りましょう (((((((((((っ・ω・)っ
玄関の外にはカメラ付きのインターフォンが付いています。
オートロックの付いていないマンションですが、お部屋の中から外の様子を確認できるのは嬉しいですね!!
勧誘やセールスなどは顔を合わせることなくお帰り願いましょう∠(`・ω・´)
ピカピカの玄関ですね!!
それもそのはず!玄関廊下は天然大理石貼り!!!(☆Д☆)
大理石はセレブの素材ですね!新宿セレブの仲間入りが出来そうです!!
奥に進むとリビング・ダイニング・キッチンがあります。
天井の間接照明が優しい雰囲気を出していますね(`・ω・´)
ダウンライトを多く取り付けてある理ますね。
LEDの電球だと、消費電力も少なくて済みますし、何より寿命の長さは白熱電球の数十倍というありがたさ。エジソンもビックリです!!
キッチンの前がカウンターになっています。
2人程度で住むなら、ここをテーブル代わりに使ってもよさそうです。バーみたいでお洒落ですよ!!( `д´)b
それではキッチンのご紹介を。
3口のグリル付きガスコンロが付いています。グリルがあれば、肉も魚もこんがり、パリッと仕上げることが出来るのでお料理も捗りそうです。サイズの合う鍋があれば煮込み料理もできちゃいますよ(´°(エ)°`)
水栓は浄水機能付き。シャワーヘッドになっているのでお鍋に水を注ぐのも楽になりますね!!
食器洗浄機も付いています。
面倒な後片付けもボタン一つで終わってしまいますね!!
その分、お料理にこだわってみる・・・・かどうかはその人次第ですが( ゚д゚ )
キッチンから隣りを見ると畳が見えます!!
ここは和室。とはいっても、まわりを壁でしっかり囲んでいる訳ではないので、間取り図上ではリビングの一部として数えられています。
畳は琉球畳と同じ正方形のモノです。色や素材も様々なモノが売られていますので、自由にカスタマイズすることも可能ですよ( ー`дー´)
それでは一旦、廊下に戻ってみます。
まずはトイレ。
TOTO製のトイレは何と言っても節水に優れています。
素材、形状、水流等にこだわった結果、従来の1/4にまで水の量を減らすことに成功しています。さすが国内シェアNO.1のメーカーなだけありますね!!嬉しくて、いつもより余計に流しちゃいそうですヾ(*≧∀≦)ノ゙
吊戸棚も付いているので、消耗品などの置き場所には困りませんよ!!
次は洗面室。
大きなミラーのついた洗面化粧台が印象的です。
水栓はシャワーへッドになっているので、こちらで簡単な洗髪をすることも可能ですよ!
洗濯機置場の防水パンも新規交換されています。脱衣所も兼ねている場所なので、抜いた服をすぐに洗うことが出来るのもいいですね(´∀`*)ノ
お風呂には大きなワイドミラーが付いています。
壁の端から端まで伸びているミラーは空間を広く見せてくれる効果があるのですよ!!
追い焚き機能・浴室乾燥機能も付いているお風呂で一日の疲れも洗い流してしまいましょう( ・`ω・´)
こちらは玄関の隣に位置している洋室です。
寝室となるお部屋でしょうか?? 窓からの程よい明かりで快適な目覚めを期待できそうです (☆Д☆)
ウォークンクローゼットも付いています。
L字にハンガーパイプが付いているのでかなりの量のお洋服を掛けることが出来そうです。
面倒な衣替えもあっという間に終わりそうですね c (っ・ω・)っ
リビングの隣の洋室です。
南東向きに窓が付いているので、とても明るいお部屋になっていますよ!!
クローゼットもあるので、新しく家具を置かなくても良さそうです!!
バルコニーの無いお部屋なので、リビングからの眺望を。
ここから先は下り坂になっているので、陽の光を遮る建物もありません。
暖かな生活が出来そうですね ( ゚ω^ )ゝ
では、以上でグリーンヒル新宿のご案内を終わります。
いかがでしたでしょうか??
東新宿駅徒歩5分、新宿エリアも徒歩圏という利便性の高い立地に加えて、住宅街の高台に位置する閑静な住環境です。
リノベーション済みという事で新しく生まれ変わったお部屋ですよヽ(´∀`)
内見のご予約やご質問などございましたらお気軽にお問い合わせくださいませ。
ご連絡お待ちしております。
過去に販売していたお部屋の概要 このお部屋の販売は終了いたしました。
| 価格 | -万円 |
| 面積 | 63.18㎡ |
| 間取り | 2bedrooms(2LDK) |
| 管理費 | 月額13,000円 修繕積立金:月額7,000円 |
| 所在階 | 9階 |
| お問い合わせ・ご内見のご予約はこちらからお気軽にどうぞ | |
共有廊下は外廊下になります。
既に眺望がよだれでそうです(*´Д`)
新宿にあるスクウェア・エニックスが見えますねキョロ ((o(・x・ )o( ・x・)o)) キョロ
さて今回のお部屋は9階になります。
12階建てなのですが、このお部屋は上階に部屋はありません\(´°v°)/んぴッ
間取り図はこちら↓
クリックすると別タブで開くことも可能です。
間取り図とお部屋比較すると見やすいですよ
では、営業部小倉が【グリーンヒル新宿 9階】
お部屋一緒にご案内させて頂きます(o*。_。)oペコッ
さすがビッグコミュニティ!
アルコープのある高級感ある玄関前になります。
では♡早速お部屋いってみましょう
お邪魔しまーす┏○ペコ
玄関照明は便利な人感センサー
節電にもなりますよ(((uдu*)ゥンゥンn
右手にはトールタイプのシューズボックスがあります。
姿見付きでファッションショーが出来ます (*^艸^)
大容量で安心の収納力です( ´∀`)bグッ!
白基調に紺の扉がはえますね♡
コントラストが素敵:*:・(*´ω`pq゛
リビングへいってみましょう♪
入るとキッチンが左手に見えますね
バルコニーはありません。
開口部南東向き日当たり抜群の約15帖のリビングです(/・ω・)/
ダウンライト使いがお洒落でしょ?
L字でコーディネートしやすそうですね(((uдu*)ゥンゥンn
バルコニーはありません。
大事なことなので二回言いましたφ(`д´)メモメモ…
逆L字の先端部分、クロスはエコカラットになっています。
調整能力が高く、お洒落度もアップする万能壁紙ですよ\(´°v°)/んぴッ
結露やじめじめも防ぎます(((uдu*)ゥンゥンn
キッチン見ていきましょうε=┏(・ω・)┛
インテリアを邪魔しないナチュラルな木目調のシステムキッチン
3口ガスコンログリル付き
水栓はシャワーヘッドで浄水機能一体型です!
多機能ですね~:*:・(*´ω`pq゛
お手入れもしやすいタイルです。
ミントグリーンがいちいちお洒落!!
収納力も高いですよ((ノェ`*)っ))タシタシ
開き扉とスライド式の棚があります。
用途にあわせて有効活用して下さい♡
リビングからは洋室へいけますε=┏(・ω・)┛
リビングのフローリングと少し色味がが変わります。
それだけでお部屋の印象だいぶ違いますよ|ω・`)ちら
グレーがかかったフローリングがより一層ブルーの扉を際立たせます(〃▽〃)ポッ
カドベヤの為、このお部屋にも採光がとれ明るい室内に◎
開口部南西です。
収納力も高いですね。
リビングに収納がないので助かりますね(((uдu*)ゥンゥンn
廊下に戻りますε=┏(・ω・)┛
廊下戻り左手には高さ調節も出来るの棚がありました
|д゚)じーー
玄関に棚があるのは便利ですよね!
掃除用品や日用品のストックなど入れるのも良いですね(((uдu*)ゥンゥン
続いてトイレへε=(ノ゚Д゚)ノ ∥WC∥
ウォシュレット機能付きのトイレ
棚や手洗い場も完備。
とっても使いやすいですね(((uдu*)ゥンゥンn
続いて洗面所へいきましょうか!
独立洗面台と洗濯機置場|ω・`)ちら
脱衣所ですね。
脱いだら洗濯籠に洗濯物いれてーーー!!!!Σ(゚Д゚)
ってことはもう言わなくてすむかな・・・・・?
洗面台の水栓もシャワーヘッドに。
毎日のシンクのお手入れが楽々です(^^♪
鏡部分、裏が収納になっています。
右側ライトもついていて、細部まで使用者を思ってますね((ノェ`*)っ))タシタシ
下にも収納ありますよ
下はかごなどに入れて整理整頓して下さい(`・ω・´)b
洗濯機置場の上にも棚があります|ω・`)ちら
洗剤やリネン類が入れられます\(´°v°)/んぴッ
続いて浴室は浴室乾燥機能
湿気知らず、悪天候知らず~♪な主婦の味方\( ´・ω・`)┐
暖房機能を使えば冬のヒートショック防止にもなりますよ
浴室は、、シンプルis THE BEST!!!
といった感じでしょうか (*^艸^)
なんだかインスタ映えしそうなお風呂ですね( *´艸)( 艸`*)ププッ
最後に洋室ご案内致します!
玄関側開口部北西向き、約6.5帖の洋室です(^^♪
窓付近にはちょっとした棚も設置。
高さ調節も出来ます◎本棚を買う必要がないですね(((uдu*)ゥンゥンn
クローゼットも仕切りもないので好きな物を入れられます。
上に棚もあるので衣替えしたものは上へε=┏(・ω・)┛
さてお部屋いかがでしたか?
バルコニーがないので最後に!
南東向き日当たり良好の眺望ご覧ください
(((((((((((っ・ω・)っ
平成28年外壁など、大規模修繕工事済み
東南角部屋、新規内装リノベーション済み( -`ω-)どや!
冒頭でご紹介した東大久保児童遊園も隣接され子育て環境も良いですね
他にも詳細が知りたい!!実際に見学をしたい!!などありましたら
仲介手数料最大無料の当社
お電話ください(^-^*)/
TEL 03-5413-5336
お気軽にお問い合わせください。
スタッフ一同お待ちしております。
過去に販売していたお部屋の概要 このお部屋の販売は終了いたしました。
| 価格 | -万円 |
| 面積 | 60.00㎡ |
| 間取り | 3bedrooms(3LDK) |
| 管理費 | 月額13,000円 修繕積立金:月額7,000円 |
| 所在階 | 11階 |
| お問い合わせ・ご内見のご予約はこちらからお気軽にどうぞ | |
間取りのご紹介です。2LDK、60.00㎡。
8階部分の陽当たり&眺望に恵まれたお部屋です。
室内は只今リノベーション工事中!
一足先に充実のリノベーション内容をご紹介いたします。
■玄関・・・玄関収納、人感センサー
■キッチン・・・LIXIL製システムキッチン
■浴室・・・パナソニック製ユニットバス(浴室換気乾燥機)
■洗面・・・TOTO製洗面化粧台
■トイレ・・・TOTO製ウォシュレット付トイレ
■床・・パナソニック製フローリング(廊下、洋室、LDK)、フロアタイル(玄関、洗面、トイレ)
■建具・・・パナソニック製内装ドア
■共通・・・給水・給湯、追焚管新規(専有部分)、給湯器(追焚機能付き)、分電盤、LEDダウンライト、シーリングライト、スイッチパネル、TVモニタインタホン、全クロス張替え、ハウスクリーニング、etc・・・
【内装工事終了予定:2014年6月下旬】
水廻りも一新&収納豊富。ピカピカのお部屋に生まれ変わるのが待ち遠しいですね!
工事終了前のご紹介も可能ですので、ご質問などはお気軽にお問合せくださいませ![]()
過去に販売していたお部屋の概要(11F ) このお部屋の販売は終了いたしました。
| 価格 | -万円 |
| 面積 | 60.00㎡ |
| 間取り | 3bedrooms(3LDK) |
| 管理費 | 月額13,000円 修繕積立金:月額7,000円 |
| 所在階 | 11階 |
| お問い合わせ・ご内見のご予約はこちらからお気軽にどうぞ | |
エレベーターで11階まで上ります。外廊下から見る景色はなかなか爽やか。
青空がどこまでも広がっています。午前中は曇っていましたが、晴れ間が出て
きました。
11階からマンションの植栽を見下ろすとこんな感じ。
(高所恐怖症の方は注意が必要かも、な高さです)
お部屋のドアを開けると、こんな眺望が眼に飛び込んでくるなんてなかなか
ない贅沢ですね。
ここで間取りのご紹介。60.00㎡、3LDKです。
大理石調のタイルが優雅な雰囲気の玄関。ドアには巻き取り式の網戸が
設置されているので、夏には玄関からお部屋の奥まで風の通り道が
できますね。
右側にはトールサイズのシューズボックスがありました。これだけあると
家族の靴がみんな入っちゃいそうです。
約10帖のリビングダイニングキッチン。洋室2つに面しています。食事時だけで
なく、自然に家族が集まってくる空間になる予感。窓はないですが、右側の洋室
との仕切り(引き戸)を開けておけばけっこう明るいですよ。
リビングの一角を占めるキッチン。ホワイトを基調としており、明るく爽やかな
印象です。作業スペースも広くとってあるので、集中してお料理に打ち込めそう。
シンクの水栓は浄水器内蔵型、キッチン上部には吊戸棚、など機能面でも
さまざまな配慮がなされていますよ。
洗面室もホワイトがまぶしい空間です。床のタイルも白の大理石模様に
シルバーのラインでアクセント付けされています。
つるりんとした洗面ボウルが特徴の洗面化粧台は、三面鏡裏がキャビネット
になっているので、こまごました日用品はしまってすっきりさせておけますね。
洗濯機置き場の横の壁面にはカウンターが設けられていました。洗剤など
置いて実用的に使ってもよし、ルームフレグランスなど飾ってもよし、
使い方は色々です。
ウッディな壁面パネルが、癒しオーラを漂わせるバスルーム。ゆったりとリラックス
しながら入浴を楽しめそうです。浴室換気乾燥機が設置されており、物干し竿に
加えてハンガーまでありました。素敵な気遣いです。
ウォシュレット付トイレ。洗面室と同じ、ホワイティな床のタイルと、一部壁面の
ユニークな模様が入ったアクセントクロスが瀟洒な感じです。カウンターには
日用品を並べておいてもいいですし、せっかくのアクセントクロスを活かすべく
オサレ小物など置いてみてもいいと思います。
リビングダイニングと引き戸でつながっている洋室。約5.4帖あります。
クローゼットはないですが、エアコンが取付されていました。一部壁面には
アースカラーのアクセントクロスがあしらわれております。
南東向きの窓からは、スコーーンと突き抜けた眺望がご覧いただけます!
遠くに小さくスカイツリーも見えました!
その隣の洋室(約5.1帖)。こちらにはクローゼットついています。また、洗濯物を
干すための金具が天井に設置されていました。バルコニーがないので、この
心配りは嬉しいですね。
なお窓には落下防止のため、室内に手すりがあります。窓から身を乗り出せない
構造になっているので、お子さんがいらっしゃる方でも安心です。
玄関横の洋室(約6.0帖)。こちらにもクローゼットがあり、3つある洋室の中で
一番広いです。
帰りは日ごろの運動不足を解消!新宿三丁目まで歩くぞ!と意気込んで
明治通りを進んでいたところ、横のバス停に「伊勢丹前」行きのバスが…
なんて意志の弱い私。しかしこのバス路線は使えそうです。
「グリーンヒル新宿」、いかがでしたか?東新宿駅徒歩5分、新宿エリアも徒歩圏
という利便性の高い立地に加えて、住宅街の高台に位置する閑静な住環境、
という2つのメリットが備わっています!
皆様のご内見、心よりお待ちしております!
過去に販売していたお部屋の概要 このお部屋の販売は終了いたしました。
| 価格 | -万円 |
| 面積 | 60.00㎡ |
| 間取り | 3bedrooms(3LDK) |
| 管理費 | 月額:13,000円 修繕積立金:月額7,000円 |
| 所在階 | 2F |
| お問い合わせ・ご内見のご予約はこちらからお気軽にどうぞ | |
お部屋のドア前には大きな桜の木があり、春が来るのが楽しみです
(ずいぶん先ですが 汗)。植栽が豊かで、なんだか心が癒されます。
セミも鳴いていました。
なお、お部屋は2階ですが斜面に建っているので、ほぼ1階のような感じです。
ここで間取りのご紹介。60.00㎡、3LDKです。
玄関右側にはトール型シューズボックス。素晴らしい収納力です。
廊下突き当りがリビングダイニングキッチン、さらにその奥に洋室が左右に
並んでいます。廊下途中で収納を発見しました。掃除機や暖房器具なども
余裕で入る大きさです。
リビングダイニングにはエアコンが新規で設置されていました!木目調の
アクセントクロスがあしらわれ、ナチュラルなムードが漂っています。
傷ひとつないフローリングの光沢が美しいです。
システムキッチンはホワイト基調で、清潔な雰囲気。シンクの水栓は浄水器内蔵
タイプです。上部に吊戸棚(耐震ラッチついてました)がありますので、食器等は
こちらにしまっておけますね。
洗面化粧台は三面鏡ではなく2面鏡?ですが、横顔チェックには
充分です。下部はガバチョ!と引き出し型収納なのがいいですね。
バスルームには浴室換気乾燥機が設置されています。換気乾燥だけでなく、
暖房機能や涼風機能もありますので、快適なバスライフが送れることでしょう。
ウォシュレット付のトイレには、後方の壁面にニッチが設けられて
アクセントクロスなんて貼られちゃってます。せっかくなのでオサレ空間に
するべく頑張りたいですね。
リビングダイニング奥・右側の洋室(約5.4帖)。こちらのお部屋のみ、収納が
ナッスィングです。
リビングダイニング奥・左側の洋室(約5.1帖)。バルコニーはありませんが、
窓からは緑がわしゃわしゃ勢い良く茂っているのがご覧いただけます。
玄関側の洋室(約5.6帖)。一部壁面の木目クロスでウッディなお部屋です。
みなさまのご内見、こころよりお待ちしております!





































































































































































































































































































































































































































































































































































































































































































































































