□□□□□□□□□□□□□□□□□□□□□□□□□□□□□□□□□□□□□□□
いつも弊社ホームページをご覧頂き誠にありがとうございます。
メゾンセゾン落合はお陰様で販売を終了致しました。弊社問合せフォームにてご要望頂けましたら、当お部屋でキャンセル等が発生した場合、他のお部屋が販売になりました際にご紹介させて頂きます。
弊社では、仲介手数料無料orお値引(50%off、30%off、20%off)にて皆様のマイホーム探しのお手伝いをさせて頂きいております。メゾンセゾン落合の類似物件や、お探しのご条件等をお聞かせ頂けましたらご条件に合ったお部屋をご紹介させて頂きます。また、ご来社頂き一緒に探させて頂くことも可能ですので、是非弊社問合せフォームよりお気軽にお問合せください。
不動産Agent 六棒株式会社
TEL:03‐5413‐5336
□□□□□□□□□□□□□□□□□□□□□□□□□□□□□□□□□□□□□□□
本日は新宿区のリフォームマンション、『メゾンセゾン落合』のご紹介です!
都営大江戸線・西武新宿線の「中井」駅からスタート、徒歩10分です。最寄りは
同じく西武新宿線「下落合」駅徒歩6分。JR山手線「高田馬場」駅も徒歩15分です。
中井駅付近は商店街が続いています。「ようこそなのだ!」のバカボンが出迎えて
くれますよ。ベーカリーでは「秋の実りフェア」が実施されていました。
スーパーや薬局、コンビニもあり暮らしやすい雰囲気です。
神田川を過ぎて、坂を上ったらじきにマンション到着です。体力が試されるこちらの
坂は、「霞坂」という美しい名前がついています。昔は坂の下が一面水田になって
おり、春霞が立つのどかな田園風景が美しかったことから命名されたとのこと。
風流です。
あ、途中のマルエツプチは朝10時から夜10時まで営業していますよ。
こちらが「メゾンセゾン落合」外観。瀟洒なタイル貼りです。
マンション周辺は第一種低層住宅専用地域で、閑静な住宅街が広がっています。
昭和63年9月築、総戸数18戸、3階建て。安心の大手ブランド、大林組の施工です。
(新耐震基準!!)
エントランスには車椅子の方のためにスロープが設置されていました。
オートロックも完備しています。
エントランスホールには風情ある庭?も。ステキです!
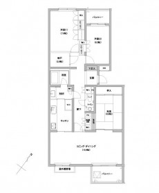
ここで間取りのご紹介です。3LDKに納戸の付いた101.40㎡。
お部屋は最上階の3階。
エレベーターはないので階段移動になります。
玄関を入ると右手にはシューズBOXがつくられています。
上のカウンター部分にはインテリアなどお気に入りの物をディスプレイ
できますよ。
玄関をあがると左右に廊下が伸びています。
廊下にはポールのついたクローゼットと棚付き収納がつくられています。
シューズBOXに入りきらない靴を保管したり、来客があれば荷物や上着をサッと
しまえたりと重宝しそうです。
廊下を左手方向に進み、採光部のある扉の奥は・・・。
約15.8畳のゆとりあるリビングダイニング。
南向きの明るい 空間は家族の憩いの場にピッタリです。
エアコンも設置されています。
家具が配置してあるので、実際の生活もイメージがつきやすいかと思います。
ゆとりをもってソファやダイニングテーブルも配置できますよ。
キッチンはリビングと洗面室、どちらからも出入りができる2WAYタイプ。
家事も手際よく進められます。
キッチンスペース部分には洗濯機置場もつくられています。
落ち着いた色合いのシステムキッチンは上下に収納場所がたっぷり。
雑多なキッチングッズもまとめて収納いただけます。
調理スペースも広々。ビルトインオーブンもついて、お料理の支度が楽しく
なりそうです!
キッチンから洗面室へ。
リネン庫もつくられています♪
1枚鏡の大型の洗面化粧台はカウンター部分も広々としていて使い勝手が
よさそうです。横にはキャビネットもついています。
ホワイト基調の清潔感あふれるバスルーム。
冷える季節にはありがたい追い焚き機能もバッチリついています。
トイレは洗面室を廊下方面から出て、斜め向かいに位置してます。
まるい洗面ボウルと鏡のついた手洗い場もありますよ。
ここから洋室と和室をご紹介します。
玄関入って、右方向へ進むと洋室の扉。3つありますが、1つは約2.0畳の納戸です。
大型収納があると使わない季節家電や掃除機など大きな物もドサッとしまえる
ので助かりますね。 その他書斎として利用したりと使い方は自由です。
こちらは約6.3畳の洋室。
ポール付きのクローゼットと棚の付いた物入れがあり、さらにバルコニー(2面に
あります。)もついています。北西向き。
バルコニーの外は静かで穏やかな住宅街が広がっています。
まわりに高い建物がないので空がよく見渡せて快適です。
2部屋目は約7.9畳の洋室。
ポール付きのクローゼットが2つと物入れが1つ並んでおり、収納たっぷり。
物をしまう場所が多いとお部屋がスッキリ使えてグーです。
3部屋目はリビング内に入口があります。 扉の奥は・・・。
約6.8畳の和室。直に座ったりゴロリと横になれるお部屋があるといいですね・・・。
和みます。
収納力大の押し入れと床の間もつくられています。
最後にリビング側のバルコニーにでてみます。ほぼ南向き。
前方に同じくらいの高さのマンションがたっているものの、周囲に高い建物は
ないので空が広く見渡せます。この日は少し曇っていますが、晴れた日は
陽当たりも期待できそうです! ゼヒ実際のお部屋をご見学ください♪
みなさまのご内見、こころよりお待ちしております!
過去に販売していたお部屋の概要 このお部屋の販売は終了いたしました。
| 価格 | -万円 |
| 面積 | 131.00㎡ |
| 間取り | 3bedrooms(3LDK) |
| 管理費 | 月額17,000円 修繕積立金:月額17,000円 |
| 所在階 | 3階 |
| お問い合わせ・ご内見のご予約はこちらからお気軽にどうぞ | |
マンション内の廊下を進み、階段を上ります。エレベーターが設置されて
いませんが3階ですので階段でも余裕です(た、たぶん…)
3階まで上ると玄関。上手く言えないのですがこの「メゾンセゾン落合」、
階段が複数あって、それぞれの階段に各階1戸の玄関が面しています。
プライバシーに配慮した玄関配置ですね。設計の妙を感じます。
ここで間取りのご紹介。131.00㎡、ゆとりの3LDK+納戸+WIC、最上階
東南角部屋です。日当たり・風通し共に良さそう。
ここまで大きいお部屋はなかなかないので、楽しみです。
まずは玄関。ラグジュアリーな石貼りの床面に、期待が高まります。シューズ
ボックスは若干小さめですが、廊下に収納がこれでもかというほどあるので、
入りきらない靴やワンマイルグッズは、そちらに収納すれば問題解決です。
シューズボックスと反対側の壁面は、巨大なミラーが設置されており、これは
ファッションチェックのみならず、色々なポージングも出来そうですよ。
さっすが130㎡超もあると、廊下の幅もワイド、そして収納もたっぷり。
ブレーカーはこちらの中にありました。
広々・素敵空間のリビングダイニング(約22.4帖)。思わず感嘆のため息が漏れて
しまいます。南にバルコニー、東にルーフバルコニーがあるので、お部屋の中は
電気をつけなくても日中充分明るいです(写真では一応電気ついてます)。
なお、ナショナル時代のエアコンが取付されていました。試しに電源を入れてみました
が、なかなかのハイパワーでございました。
ルーフバルコニーからの眺望をどうぞ。第一種低層住宅専用地域ならでは、
3階でも遠くまで見渡せる爽快な眺望です。ルーフバルコニーはテーブルセットを
置いたとしてもまだまだゆとりありそうです。
キッチンもゆとりたっぷりなうえ、ルーフバルコニーに面してドアがついています。
シンクも広々、作業スペースも大きいですのでピザを作ったりパン生地をこねたり、
余裕をもってお料理できそうです。コンロの白い琺瑯とブラックのコントラストに
乙女心がくすぐられます。
キッチンの隅っこには洗濯機置き場。使っていないときは扉を閉めて、
いかにも収納でございます、というように見せかけOKです。こういう生活感が
表に出ない工夫に、細やかな配慮を感じます。
洗面室もゆったりした広さで、ワイドな洗面化粧台は2人並んで歯磨きしても
ゆとりがありそうです。一枚鏡が、どこか外国のホテルのような雰囲気を醸し
出しています。
リネン庫もたっぷり。タオルだけでなく、洗剤のストックやシャンプー、
トリートメントの買い置きなどガンガン入れてしまいましょう。
バスルームもビッグサイズで、一日の終わりにのんびりゆったり入浴できそう。
照明や水栓のデザインも心配りが行き届き、ここにもホテルライクなムードが。
タイルの床もリノベーション・リフォーム物件では珍しくなりましたが、だからこそ
新鮮な印象です。
トイレは2つあります。ほぼ同じつくりですが、片方のウォシュレットのみ、トイレの
ふたがウイイイイン…と自動でOPENします。おしゃれな手洗い場も両方に設けて
ありますよ。
リビングダイニング隣の洋室(約6.5帖)。収納力のあるクローゼット及び物入れが
設置されていますので、お部屋うちをすっきりと保てそうです。こちらにもエアコンが
ついていました。
ウォークインクローゼットがある洋室(約9.2帖)。広い上にこちらもエアコン付なので
主寝室としての利用がぴったりですね。
北側の眺望も抜けています。空と雲が近いです。
そのとなり・北側バルコニーに面した洋室(約5.3帖)。ほかの洋室と比べると
若干小さめですが、お部屋の隅に柱型が出ていないので、家具が効率的に
レイアウトできますね。
こちらは約3.8帖の納戸。これだけ大きな収納スペースがあると、居住空間を
存分に有効活用できそうな気がします。
帰りは面白そうな公園をいくつか過ぎ、坂を下って最寄りとなる下落合駅に出て
みました。下落合駅は高田馬場駅から西武新宿線・普通電車で1駅です。
「メゾンセゾン落合」、いかがでしたか?なんとこちら、シャッターゲート付駐車場も
ついてきます!!ペットも2匹まで飼育可能(成獣の状態で体長50cm以下の犬か猫)
ですよ。
皆様のご内見、心よりお待ちしております!










































































































弊社 公式HP
六棒総合研究所
掲載予定物件
価格変更と販売終了物件
ハザードマップ検索
適合証明書.jp
Facebook
Twitter
Instagram