・
□□□□□□□□□□□□□□□□□□□□□□□□□□□□□□□□□□□□□□□
いつも弊社ホームページをご覧頂き誠にありがとうございます。
パイロットハウス北新宿はお陰様で販売を終了致しました。弊社問合せフォームにてご要望頂けましたら、当お部屋でキャンセル等が発生した場合、他のお部屋が販売になりました際にご紹介させて頂きます。
不動産Agent 六棒株式会社
TEL:03‐5413‐5336
□□□□□□□□□□□□□□□□□□□□□□□□□□□□□□□□□□□□□□□
・
新宿区北新宿より総世帯数156戸の大規模マンション「パイロットハウス北新宿」のご紹介です!
* … * … * … * …* … * … * … * …*
◆ アクセス ◆
JR山手線「新大久保」駅徒歩11分
JR中央総武線「大久保」駅徒歩7分
JR中央総武線・都営大江戸線「東中野」駅徒歩7分
* … * … * … * …* … * … * … * …*
* … * … * … * …* … * … * … * …*
◆ ライフインフォメーション ◆
ローソン・・・徒歩4分
オリンピック・・・徒歩4分
スギ薬局・・・徒歩5分
新宿区役所柏木特別出張所・・・徒歩10分
北新宿三郵便局・・・徒歩4分
新宿区立北新宿図書館・・・徒歩4分
北新宿公園・・・徒歩5分
* … * … * … * …* … * … * … * …*
マンションに向かう前にまずはこちらをご覧ください↓↓↓
□□□□□□□□□□□□□□□□□□□□□□□□□□□□□□□□□□□□□□□
★★★【パイロットハウス北新宿】周辺のハザードマップをCHECK!!★★★
お部屋の記事を読む前に…!周辺のハザードマップをチェックしておきませんか!
パイロットハウス北新宿のハザードマップは★こちらから…どうぞ★
□□□□□□□□□□□□□□□□□□□□□□□□□□□□□□□□□□□□□□□
最寄駅の大久保駅までは徒歩8分。山手線の新大久保駅も徒歩圏内なので、遅くまで飲んでしまっても余裕をもって終電に間に合いそうです。
大久保駅周辺は国際色豊かなイメージ。
韓流ブームはまだまだ強いコンテンツではありますね。
マンションから新宿までも徒歩15分くらいです。
下手に電車を使うよりも歩いたほうが早いかもしれませんね。
5分圏内には大きなスーパー、ドラッグストア、ゲオもあります。
コンビニも近くにあるので24時間、困ることはありませんね。
東中野駅からも徒歩8分です。
個人的には大久保駅よりも東中野駅の方が好きですね。
閑静な住宅街の中にパイロットハウス北新宿を見つけることができます。
パイロットハウス北新宿は昭和53年築、地下1階付き地上5階建て、総世帯数156戸。マンションや戸建てが建ち並ぶ閑静な住宅街の中に建つ鹿島建設施工の大規模マンションです。
2007年に大規模修繕工事実施済み、2015年に屋上防水工事実施済み。
管理人常駐で管理体制も良好です。
広いホールにはAEDが設置されていました。公共の場所ではよく見かけるようになりましたが、マンションではまだまだあまり見かけません。いざという時に心強いですよね。
ご利用の予定がある方は空き状況をお問い合わせください。
住込みの管理人さんがいるので、マンションの管理体制はバッチリですね。
マンションの中庭には滑り台があったりなどちょっとした公園のようになっています。
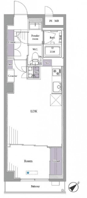
ここで間取り図のご紹介です。
※間取り図は別タブで開きますので、確認しながらご覧いただく事が出来ます。
今回のお部屋は4階、間取りは1LDK、専有面積は34.65㎡となります。ひとり暮らしの方にお勧めです。では、さっそく行ってみましょう!
□□□□□□□□□□□□□□□□□□□□□□□□□□□□□□□□□□□□□□□
★★★【パイロットハウス北新宿】周辺のハザードマップをCHECK!!★★★
お部屋の記事を読む前に…!周辺のハザードマップをチェックしておきませんか!
パイロットハウス北新宿のハザードマップは★こちらから…どうぞ★
□□□□□□□□□□□□□□□□□□□□□□□□□□□□□□□□□□□□□□□
エレベーターで4階まで上がり、明るい外廊下を進むとお部屋に到着です。ここのマンションは内廊下のお部屋も多いのですが、今回は外廊下なんですね。左のテラスみたいな所は危ないので出ないように!とのことですので気を付けましょう。
玄関ドア横にはモニター付きインターホンが設置されて、お部屋の中から訪問者を確認する事が出来ます。映像で確認してから応対するかを決められるのは便利ですね。ドアスコープもありますが、向こうからも見られている感じがしてなんか苦手です^^;)
コンパクトな玄関と玄関ホール。木目を生かしたフローリングがいい感じです。
シューズボックスは上がった所にあり、中央部分には鏡も付いています。お出掛け前の身だしなみチェックに重宝しそうですね。
では、お部屋の中へ…
こちらは約12.3帖のリビング・ダイニング・キッチン+約5.4帖の洋室。二部屋をつなげてワンルームにした様子です。ライフスタイルや状況によって使い分けが出来るのは嬉しいですね。天井や壁のクロスにもいろいろな木目のテクスチャが使われていて独特な雰囲気のお部屋です。
洋室側から…
洋室には西向きのバルコニーに面した窓付き。LDKには窓がないのでワンルームにすると全体が明るくなるメリットもあります。
引込式で収納された扉を引き出して閉めれば…
本来の約5.4帖の洋室に戻ります。扉には一部ガラスが入っているので、閉めてもLDKにはある程度外光が入るんですね。
収納はウォークインクローゼット!??なんとこのクローゼットにはドアが付いていて、バルコニーに出られるようになっています!!窓付はありましたが、さすがにこれは珍しい。換気性能は抜群ですね(笑)
キッチンは人気のカウンタータイプ。コミュニケーションが取りやすく、調理中でも会話が弾みます。キッチン内が目立たないという特徴もありますので、お客さんが来た時も気兼ねなく腕を振るう事が出来ますよ。
調理台下のスライドキャビネットは出し入れがしやすく、ぎっしり詰めても中身が確認しやすい優れものです。収納が足りない時は、後ろに冷蔵庫と共にカップボードなどを置くことも可能。
水栓は浄水機能付きシャワー水栓。切り替えるだけで気軽に美味しいお水を使えます。ヘッドが伸びてシンクや大きな鍋を洗うのも楽々♬
コンロは3口、グリルも付いて調理器具は充実。グリルって魚のイメージが強いですが、他の食材にもいろいろと使えるんですよ。ただし、使う時は換気扇をお忘れなく!早めに回すのが効果的らしいですよ。
次は洗面室へ…
洗面室には洗面台の他に、浴室、洗濯機スペース、トイレがまとまっていて、脱衣所も兼ねているようです。洗濯機スペースには棚が付いていますので、洗剤などはこちらへどうぞ。
収納はミラー横のキャビネットと洗面台下。細かい物から大きい物までスッキリ収まりそうです。
次はトイレへ…
洗面室と同じ全面木目のトイレ。昔行った山小屋を思い出しました。
INAX製のシャワートイレ付。トイレットペーパーなどのストックに便利な吊戸棚も付いています。
次は浴室へ…
リンナイ製の追い焚き機能付きユニットバス。自動ボタンひとつでお風呂を沸かせます。そのまま保温もしてくれるのでいつでも温かいお風呂に入れますよ。備え付けのテレビに夢中で長風呂しても、風邪をひく心配はありません(^^)
浴室換気乾燥機は浴室の換気乾燥はもちろんのこと、暑い季節は涼風、寒い季節は浴室暖房、梅雨の季節は洗濯物乾燥など、一年を通して使える優れもの。24時間換気なども出来て今の時代にピッタリ!
それでは最後はバルコニーのご紹介。
奥の洋室の窓とクローゼット内のガラスドア^^;)から出られます。
広さ2.83㎡、西向き。コンパクトですが物干し金具も設置され、お洗濯物も干せるようになっています。南側が開けていますので陽当りも良好ですよ。
外は中庭に面していてとても静か。遠くまで見晴らせる訳ではありませんが、緑豊富でのんびりとしていて、個人的にはいい眺めだと思います(^^)
・
以上でパイロットハウス北新宿のご案内を終わります。
いかがでしたでしょうか??
大久保駅から徒歩8分のマンションです。
リノベーション済みという事で室内はとてもキレイですよ (っ・ω・)っ
内見のご予約やご質問などございましたらお気軽にお問い合わせくださいませ。
ご連絡お待ちしております。
□□□□□□□□□□□□□□□□□□□□□□□□□□□□□□□□□□□□□□□
★★★【パイロットハウス北新宿】周辺のハザードマップをCHECK!!★★★
お部屋のご購入前に…!周辺のハザードマップをチェックしておきませんか!
パイロットハウス北新宿のハザードマップは★こちらから…どうぞ★
□□□□□□□□□□□□□□□□□□□□□□□□□□□□□□□□□□□□□□□
弊社、不動産Agent 六棒株式会社では、
□リノベーションマンションはほぼ全て仲介手数料無料!
□その他一般仲介物件は仲介手数料20%~30%OFF!
にてお取り扱いしております!※弊社の「Agent Fee=仲介手数料」についてはご案内、ご面談の際に営業担当者よりご説明いたします!
なるべく沢山のお部屋をホームページに掲載したいと思っておりますが、時間的成約もございますので、残念ながらご紹介できるお部屋の一部しか掲載できておりません。
このホームページに掲載中のお部屋、その他サイト等で気になるお部屋、街を歩いていて気になったマンション等々ございましたら是非、弊社営業部までご相談ください!
~不動産Agent 六棒株式会社の特徴~
・一般仲介物件の仲介手数料は20%~30%OFFにてご案内中です!
・リノベーションマンションについてはほぼ全て仲介手数料無料です!
・住宅ローンに自信あります!
・頭金10万円より購入できます。是非ご相談下さい!
・お部屋のご見学は車で2~3件まとめて案内します!
・物件数3000件以上、新築戸建、リノベ物件も多数ご用意しております!
過去に販売していたお部屋の概要 このお部屋の販売は終了いたしました。
| 価格 | -万円 |
| 面積 | 41.25㎡ |
| 間取り | 2bedrooms(2DK) |
| 管理費 | 月額9,800円 修繕積立金:月額9,490円 |
| 所在階 | 1F |
| お問い合わせ・ご内見のご予約はこちらからお気軽にどうぞ | |
ここで間取り図のご紹介です。
※間取り図は別タブで開きますので、確認しながらご覧いただく事が出来ます。
今回のお部屋は1階、間取りは2DK、専有面積は41.25㎡となります。
約30㎡のお庭が気になりますね。
では、さっそく行ってみましょう!
□□□□□□□□□□□□□□□□□□□□□□□□□□□□□□□□□□□□□□□
★★★【パイロットハウス北新宿】周辺のハザードマップをCHECK!!★★★
お部屋の記事を読む前に…!周辺のハザードマップをチェックしておきませんか!
パイロットハウス北新宿のハザードマップは★こちらから…どうぞ★
□□□□□□□□□□□□□□□□□□□□□□□□□□□□□□□□□□□□□□□
お部屋は1階ですが、エントランスはBLという一つ下の階なのでエレベーターに乗ります。横には階段もありますので、体調と相談の上ご利用下さい(^^)
エレベーターを降りたら内廊下を通り抜け、外廊下を進みます。外廊下の外は中庭になっています。
玄関に到着です。
カメラ付きインターホンが設置されていますので、お部屋の中から訪問者を確認する事が出来ますよ。玄関まで来なくていいのが嬉しいですね。
それではお邪魔します。
ドアを開けると、白を基調としたスッキリとした印象の廊下が伸びています。
振り返って玄関内の様子です。
廊下に上がってすぐの所に、上下に分かれてシューズボックスがありました。棚板の高さは変えられるので、ブーツなどでも収納可能です。
では、まずは正面のドアから開けてみましょう。
こちらが約7帖のダイニング・キッチン+約6帖の洋室となります。
合わせて約13帖。バルコニーに面した大きな窓から光が入って明るいお部屋ですね。洋室のアクセントウォールが印象的です。
ダイニング・キッチンです。広くはありませんが、こぢんまりとしていて居心地良さそうですね(^^)
ダイニング部分からキッチン方向を…
洋室から…
仕切りを戸袋から引き出して閉めると…
独立した洋室になります。
扉がすりガラスなので、閉めても奥行きというか一体感を感じられる気がします。
洋室には収納が付いています。棚も何もないスペースなので、大きな物でも自由に置く事が出来ますよ。
仕切りを閉めた時のダイニング・キッチンです。
今度はキッチンを見ていきましょう。
調理台の下は収納と食洗器になっています。
洗い物は食洗器にお任せして、食後はのんびりしちゃいましょう♬
コンロは2口、片面焼きグリルも付いています。
グリルってお魚イメージが強いですが、他のお料理にもいろいろと使えるらしいですよ。ネット上にはたくさんのレシピが上がってますので、ご興味のある方は是非調べてみて下さい。
水栓は浄水機能付きシャワー水栓です。
切り替えるだけで水道水が美味しいお水に早変わり。ヘッドが伸びるのでシンクのお掃除などにも便利です。
カウンターキッチンですので、お料理中は換気扇をお忘れなく。
調理台後ろには、冷蔵庫や食器棚のスペースが確保されています。
では、いちど廊下に戻って…
玄関から一番近いドアを開けてみます。
洗面室となります。床が個性的ですね。
収納はミラーキャビネットと洗面台下にありました。細かい物から大きな物まで上手く収める事が出来そうですね。
水洗はハンドシャワータイプですので、寝ぐせ直しくらいなら出来ますよ。
洗濯機スペースは洗面台横にあります。
次は、浴室を見てみましょう。
壁の一面がダークブラウンの鏡面仕上げになっていて、高級感のある浴室ですね。
追い焚き機能が付いていますので、いつでも温かいお風呂に入れます。
浴室乾燥機能は浴室のカビ予防だけでなく、雨天のお洗濯物乾燥やヒートショック予防など様々な働きをしてくれます。使いこなしていきたいですね(^^)
洗面室内のドアを開けると…
トイレです。
もちろん温水洗浄便座も完備していますよ。
ちなみに、ウォシュレットって商品名だってご存知でしたか?私も最近まで知らなかったんですけど^^;)こちらはPanasonicさんの商品なのでビューティ・トワレといいます。
では、次のお部屋へ…
洗面室の向かいのドアです。
こちらが約4.5帖の洋室となります。
収納はクローゼットになっていました。中には格子柄のクロスが貼られています。見えない所にもこだわっていますね(^^)
窓の外は外廊下越しに中庭が見えます。しっかり面格子も設置されていますよ。
では、最後にバルコニーへ出てみましょう!
バルコニーには洋室の窓から出る事が出来ます。お庭、楽しみですね♬
2.70㎡のバルコニーとなります。
物干し竿受けが付いていて竿だけあればお洗濯物を干す事が出来ますよ。南東向きなので午前中が狙い目ですね。
そして、バルコニーからは…
お庭に出る事が出来ます。
お庭はなんと約30㎡もあるんですよ。いい感じに緑が茂っていてほんと癒されます♬
とても静かで、大久保駅の喧騒が遠い世界の出来事のような気がします(^^)
・
以上でパイロットハウス北新宿のご案内を終わります。
いかがでしたでしょうか??
大久保駅から徒歩8分のマンションです。
リノベーション済みという事で室内はとてもキレイですよ (っ・ω・)っ
内見のご予約やご質問などございましたらお気軽にお問い合わせくださいませ。
ご連絡お待ちしております。
□□□□□□□□□□□□□□□□□□□□□□□□□□□□□□□□□□□□□□□
★★★【パイロットハウス北新宿】周辺のハザードマップをCHECK!!★★★
お部屋のご購入前に…!周辺のハザードマップをチェックしておきませんか!
パイロットハウス北新宿のハザードマップは★こちらから…どうぞ★
□□□□□□□□□□□□□□□□□□□□□□□□□□□□□□□□□□□□□□□
弊社、不動産Agent 六棒株式会社では、
□リノベーションマンションはほぼ全て仲介手数料無料!
□その他一般仲介物件は仲介手数料20%~30%OFF!
にてお取り扱いしております!※弊社の「Agent Fee=仲介手数料」についてはご案内、ご面談の際に営業担当者よりご説明いたします!
なるべく沢山のお部屋をホームページに掲載したいと思っておりますが、時間的成約もございますので、残念ながらご紹介できるお部屋の一部しか掲載できておりません。
このホームページに掲載中のお部屋、その他サイト等で気になるお部屋、街を歩いていて気になったマンション等々ございましたら是非、弊社営業部までご相談ください!
~不動産Agent 六棒株式会社の特徴~
・一般仲介物件の仲介手数料は20%~30%OFFにてご案内中です!
・リノベーションマンションについてはほぼ全て仲介手数料無料です!
・住宅ローンに自信あります!
・頭金10万円より購入できます。是非ご相談下さい!
・お部屋のご見学は車で2~3件まとめて案内します!
・物件数3000件以上、新築戸建、リノベ物件も多数ご用意しております!
過去に販売していたお部屋の概要 このお部屋の販売は終了いたしました。
| 価格 | -万円 |
| 面積 | 33.98㎡ |
| 間取り | 1bedrooms(1LDK) |
| 管理費 | 月額8,200円 修繕積立金:月額8,010円 |
| 所在階 | 1階 |
| お問い合わせ・ご内見のご予約はこちらからお気軽にどうぞ | |
ここで今回のお部屋の間取り図をご紹介します。
間取り図は別タブで開きますので、ご覧頂きながらどうぞ。
お部屋は1階、間取りは1LDK、専有面積は33.98㎡となります。
では、さっそく行ってみましょう!
□□□□□□□□□□□□□□□□□□□□□□□□□□□□□□□□□□□□□□□
★★★【パイロットハウス北新宿】周辺のハザードマップをCHECK!!★★★
お部屋の記事を読む前に…!周辺のハザードマップをチェックしておきませんか!
パイロットハウス北新宿のハザードマップは★こちらから…どうぞ★
□□□□□□□□□□□□□□□□□□□□□□□□□□□□□□□□□□□□□□□
実はエントランスのある階はBLという階になっていて、お部屋のある1階はひとつ階を上がる必要があります。エレベーターもありますが今回は階段を使いました。1階分だけならいい運動です(笑)
マンションには外廊下もありますが、今回は内廊下部分のお部屋です。中庭をぐるりと囲むようにお部屋が配置されていて、廊下も曲がり角が多く迷子になりそうでした^^;)防犯のためかコーナーミラーが設置されていましたよ。
曲がりながら進んで行くと…
玄関に到着です。
カメラ付きインターホンが付いていますので、しっかりモニターを確認してからドアを開けて下さいね。
それではお邪魔します…
個性的な造りですね。廊下には端から端まで収納棚が設置されていますが、全く隠されていないのでセンスが試されている気がします^^;)
シューズボックスがありそうな場所にも同じタイプの棚が設置されています。綺麗に置く事さえ出来れば風通しが良くていいかもしれませんね。棚は簡単に高さが変えられますのでいろいろ工夫しがいがあります。
人感センサーがありますので入れば自動的にライトが点きます。荷物で手がふさがってる時などに助かりますよ。
では突き当りのドアから開けてみましょう。
こちらが約9.3帖のリビング・ダイニング・キッチンとなります。
スタイリッシュで男性的な雰囲気のお部屋ですね。レンガ様のアクセントウォールが印象的です。
こういうちょっとした凹みが気になるんですよね^^;)なんとかして役に立ててあげたくなります。スティッククリーナーを置く?ラックを置いて下をルンバの基地にするのもいいかな?別に特別掃除好きな訳ではないんですけどね(^^)
ではお隣のお部屋に行ってみます。
こちらが約5帖の洋室となります。
このお部屋はナチュラルテイストになってますね。バルコニーに面した窓から光が入ってきています。
クローゼットが付いています。
間口が広く、中がひと目で見えて使いやすそうですね。
仕切りの引き違い戸は壁の部分に収納出来ますので、完全に開放して二部屋をつなげて使う事が出来ます。
広くなるのもありますが、窓の光がより入って明るくなるのがいいですね。
ではキッチンを見ていきます。
コンロは3口、片面焼きグリルが付いています。
グリルはお魚を焼くだけじゃなく、ピザトーストだとか、揚げ物の温めにもいいらしいですよ。ネットで調べるとたくさん出てくるので、お興味のある方は調べて下さい。
水栓は浄水機能付きシャワー水栓です。
ヘッドが伸びてシンクを流したりするのに便利ですよ。
オープンキッチンですので、お料理中は換気扇をお忘れなく。
調理台の後ろには冷蔵庫スペースと電化製品のラックのスペースがありました。
では、いちど廊下に出て…
廊下のもう一つのドアを開けてみましょう。
洗面室となります。
白くシンプルな洗面台です。白は清潔感があっていいですね。
水栓はハンドシャワータイプですので、朝のシャンプーなどはこちらでも出来ますよ。洗面ボウルも大き目ですので水跳ねの心配もありません。
洗濯機スペースの上部には棚も付いていて洗剤などを置けるようになっています。
トイレは洗面室内に有りドアもありません。気になる場合は、突っ張り棒でカーテンなどを付けるのもいいかもしれませんね。
もちろんウォシュレットが完備されています。
もう、無いと困る方も多いのではないでしょうか。TOTOさんお世話になってます(笑)
次は浴室へ…
追い焚き機能が付いていますので、スイッチ一つでお風呂を沸かす事が出来ますよ。お湯を止め忘れたりする心配もありません。
浴室乾燥機能は、浴室のカビ予防、お洗濯物の乾燥、ヒートショック予防など様々な役に立ってくれます。どんどん使っていきましょう。ちなみに、涼風というボタンがありますが冷房ではないそうで扇風機みたいな物だそうです。残念^^;
それでは最後にバルコニーへ出てみましょう。
広いとは言えないバルコニーですが、お洗濯物を干したりは出来るようになっています。
竿受けは緑に覆われているので今のままでは使えなさそうですね。「風の谷のナウシカ」を思い出してしまいました(笑)
この感じ、個人的にはとっても気に入りました。非常に静かで癒されますよ♬
まるで作品みたいじゃないですか?
駆除してしまうのが勿体ないような気がします(^^)
・
以上でパイロットハウス北新宿のご案内を終わります。
いかがでしたでしょうか??
大久保駅から徒歩8分のマンションです。
リノベーション済みという事で室内はとてもキレイですよ (っ・ω・)っ
内見のご予約やご質問などございましたらお気軽にお問い合わせくださいませ。
ご連絡お待ちしております。
□□□□□□□□□□□□□□□□□□□□□□□□□□□□□□□□□□□□□□□
★★★【パイロットハウス北新宿】周辺のハザードマップをCHECK!!★★★
お部屋のご購入前に…!周辺のハザードマップをチェックしておきませんか!
パイロットハウス北新宿のハザードマップは★こちらから…どうぞ★
□□□□□□□□□□□□□□□□□□□□□□□□□□□□□□□□□□□□□□□
弊社、不動産Agent 六棒株式会社では、
□リノベーションマンションはほぼ全て仲介手数料無料!
□その他一般仲介物件は仲介手数料20%~30%OFF!
にてお取り扱いしております!※弊社の「Agent Fee=仲介手数料」についてはご案内、ご面談の際に営業担当者よりご説明いたします!
なるべく沢山のお部屋をホームページに掲載したいと思っておりますが、時間的成約もございますので、残念ながらご紹介できるお部屋の一部しか掲載できておりません。
このホームページに掲載中のお部屋、その他サイト等で気になるお部屋、街を歩いていて気になったマンション等々ございましたら是非、弊社営業部までご相談ください!
~不動産Agent 六棒株式会社の特徴~
・一般仲介物件の仲介手数料は20%~30%OFFにてご案内中です!
・リノベーションマンションについてはほぼ全て仲介手数料無料です!
・住宅ローンに自信あります!
・頭金10万円より購入できます。是非ご相談下さい!
・お部屋のご見学は車で2~3件まとめて案内します!
・物件数3000件以上、新築戸建、リノベ物件も多数ご用意しております!
過去に販売していたお部屋の概要 このお部屋の販売は終了いたしました。
| 価格 | -万円 |
| 面積 | 34.84㎡ |
| 間取り | 1bedrooms(1LDK) |
| 管理費 | 月額8,200円 修繕積立金:月額5,610円 |
| 所在階 | 2階 |
| お問い合わせ・ご内見のご予約はこちらからお気軽にどうぞ | |
エレベーターで上にあがると、最初は内廊下ですが途中からお部屋までは外廊下が続いています。
雨や風の影響は受けますが、そのかわり湿気や臭いが籠ることはありません。
景色を見ることができるのも嬉しいですよね。
さて今回のお部屋は2階になります。
間取り図はこちら↓
クリックすると別タブで開くことも可能です。
間取り図とお部屋比較すると見やすいですよ
では、営業部小倉が【パイロットハウス北新宿 2階】
お部屋一緒にご案内させて頂きます(o*。_。)oペコッ
□□□□□□□□□□□□□□□□□□□□□□□□□□□□□□□□□□□□□□□
★★★【パイロットハウス北新宿】周辺のハザードマップをCHECK!!★★★
お部屋の記事を読む前に…!周辺のハザードマップをチェックしておきませんか!
パイロットハウス北新宿のハザードマップは★こちらから…どうぞ★
□□□□□□□□□□□□□□□□□□□□□□□□□□□□□□□□□□□□□□□
こちらツートーンの壁紙がキュート♡な今回のお部屋玄関前になります!
TVモニタ付きインターフォンがで来訪者もばっちり確認|ω・`)ちら
セキュリティ面も安心ですねー
では♡早速お部屋いってみましょう
お邪魔しまーす┏○ペコ
入ってすぐ右手にはトールタイプのシューズボックス
姿見付きでお出かけ前のファッションチェックが出来ます(`・ω・´)b
大容量で高さ調節も出来るので靴の多いお洒落さんも安心ε-(´∀`*)ホッ
玄関照明は人感センサー付き
消し忘れがなくなり、節電にもなります (*^艸^)
真っ直ぐ進むとリビングへ
(っ・ω・)っ
リビング南東向き日当たり良好◎
リビングと洋室が繋がっており、スライド式の扉で仕切られています。
普段は開け放してワンルームとしても使っても良いですねヾ(o´∀`o)ノワァーィ♪
閉めてみると洋室こんな感じです。
朝の寝起きが良くなりそうな日差しです♡
もちろん!クローゼットも完備( ´∀`)bグッ
洋室を広々使えるようにクローゼット広くとりました。
動線をまもる為開閉もスライド式です。
キッチンへいってみましょう♪
(((((((((((っ・ω・)っ
シンクピカピカです♡
水栓シャワーヘッドタイプでびよーんと伸びちゃいますΣ(゚Д゚)
伸びるのでシンクの隅々までお掃除することが出来ますよ
2口ガスコンログリル付き\( ´・ω・`)┐
(。´・ω・)ん?
今2口だけかぁ~と心の声が、、?
実際お料理で3口必須なことあまりないのでは(/・ω・)/
グリルもあるので一通りのお料理は出来ますよ♡
下の収納はスライド式!
重い物も出し入れが楽々(^^♪
奥の物も見やすいので便利ですよo(^o^)o ワクワク
上段は開き戸タイプになっています。
日常使いしない大皿や使わない鍋類入れても◎
備え付けの棚も作られているので食器棚を購入する必要もなさそうです\(´°v°)/んぴッ
洗面台につづく扉の前にはニッチカウンターが
お洒落なもの置いちゃってください((ノェ`*)っ))タシタシ
ちょっとした物も入れられる棚もあります!
高さ調節も出来るので様々なものが入れられます(((uдu*)ゥンゥン
その後ろにも収納が!
と、思いきや洗濯機置場でした(; ゚ ロ゚)ナン!( ; ロ゚)゚ デス!!( ; ロ)゚ ゚トー!!!
カモフラージュされていてわからなかったですね(;゚д゚)ゴクリ
トイレはウォシュレット機能付き!
あるのとないのとでは大違いですよね♡
使わなくてもないと落胆します(*´σー`)エヘヘ
棚も設置!ペーパーなどの消耗品も入れられますよ
続いて洗面所へ
|ω・`)ちら
真っ白な独立洗面台は気持ちが良いですね!
緑も添えられて清潔感があります。
こちらも水栓がシャワーヘッドタイプです。
基本的に水回りは毎日綺麗に使いたいですよね!
なのでお手入れのしやすさは重要になってくると思います(((uдu*)ゥンゥン
収納も鏡裏と♡下にも(๑°⌓°๑)♡
基礎化粧品類は鏡の中に入れられ、洗剤や掃除用品は下へε=ε=(ノ≧∇≦)ノ
続いて浴室は浴室乾燥機能
湿気知らず、悪天候知らず~♪な仕事必殺人の味方\( ´・ω・`)┐
暖房機能を使えば冬のヒートショック防止、風邪もひきません( *´艸)( 艸`*)
淡い木目調がとっても良いですね!
個人的にとても好きな色のお風呂です(〃▽〃)ポッ
追い焚き機能もついているので節水にもなります。
朝でも夜でもいつでも暖かい湯舟に入れますヾ(o´∀`o)ノワァーィ♪
横長の姿見は浴室内を広く見せてくれます|ω・`)ちら
光も反射して明るく清潔感がありますね(((uдu*)ゥンゥン
さてお部屋いかがでしたか?
最後に!南東向き日当たり良好、
バルコニーへいってみましょう♪
(((((((((((っ・ω・)っ
2階になるので眺望は期待できませんが、陽射しは入りそうですね|ω・`)ちら
こちら156戸の大規模マンション【パイロットハウス北新宿】
長期修繕計画(案)もあるそうですよ!
すこーーしだけでも気になったら、
お気軽に当社スタッフまでお問い合わせください(o*。_。)oペコッ
他にも詳細が知りたい!!実際に見学をしたい!!などありましたら
仲介手数料最大無料の当社
お電話ください(^-^*)/
TEL 03-5413-5336
お気軽にお問い合わせください。
スタッフ一同お待ちしております。
過去に販売していたお部屋の概要 このお部屋の販売は終了いたしました。
| 価格 | -万円 |
| 面積 | 44.90㎡ |
| 間取り | 2bedrooms(2LDK) |
| 管理費 | 月額10,600円 修繕積立金:月額7,230円 |
| 所在階 | 5階 |
| お問い合わせ・ご内見のご予約はこちらからお気軽にどうぞ | |
こちらが今回のお部屋の間取りです。
さっそく入ってみましょう。ヾ(*´∀`*)ノ
□□□□□□□□□□□□□□□□□□□□□□□□□□□□□□□□□□□□□□□
★★★【パイロットハウス北新宿】周辺のハザードマップをCHECK!!★★★
お部屋の記事を読む前に…!周辺のハザードマップをチェックしておきませんか!
パイロットハウス北新宿のハザードマップは★こちらから…どうぞ★
□□□□□□□□□□□□□□□□□□□□□□□□□□□□□□□□□□□□□□□
玄関の外にはカメラ付きのインターフォンがあります。
オートロックではないですが、お部屋の中から外の様子を確認できるのは防犯面でも安心できますね∠(`・ω・´)
玄関に入るとすぐ左手にシューズボックスがあります。
大きなシューズボックスで中の棚も高さを調節することができるので、ほとんどのタイプの履物を収納できるのではないでしょうか(`ω´)
LIXILのトイレは丸みをおびたデザインで、見た目のスタイリッシュさを出しつつもお掃除のし易さ、汚れの付きにくさなど計算づくの設計となっています( ー`дー´)
上部には吊戸棚が付いているので、トイレットペーパーなどの消耗品や掃除用具などはこちらに収納することができますね。扉が付いているので人目につかないのもありがたいです。
白一色になりがちなトイレではありますが、お花や観葉植物など、少しアクセントを加えるだけで空間の雰囲気がガラッと変わってきますね。
こちらは洗面室です。
水栓はシャワーヘッドになっていますね。
簡単な洗髪もできますし、洗面ボウルの隅々まで水を流すことができるのでお掃除がとても楽になりますよ(*^艸^)
ミラー内部はキャビネットになっているので、基礎化粧品やハブラシ等はこちらに収納することができますねヽ(´∀`)
また、洗面ボウルの両サイドのドライスペースも広いので小物を置いておく事もできます。
洗面室には洗濯機置場もあります。
脱いだ服をそのまま洗濯機に入れることができるので、お部屋が散らかることもなさそうですヽ(゚▽゚*)乂(*゚▽゚)ノ
続いてはお風呂です。淡い木目調の壁が落ち着いた雰囲気を出しています。
浴室乾燥機能があるので雨の日などは洗濯物を干すこともできますよ。
横に長いミラーは浴室を広くみせる効果があります。
広々とした浴室でゆったりとリラックスすることができますね!!
追い焚き機能があればいつでも熱いお湯に浸かることができますね。
お休みの日は朝からお風呂に入ってゆっくりと過ごしたいものです。
浴室内はボタン一つでLEDの白い光から、温かみのある電球色の光へと切り替えることができます(☆Д☆)
その時の気分で選ぶことができますよ!!
寝室としては最適ですね。
窓は北東を向いているので、朝方は光が直接入ってくるかもしれません。
遮光カーテンが必要かどうかは微妙なラインですね( ー`дー´)
クローゼットが付いています。
ハンガーポール付きなのでお洋服も掛けることができますね。
では先に進みましょう。
水栓には浄水器能が付いています。
重い水を買う必要もないのでお料理にも積極的に使っていきたいですね。
コンロは2口のグリル付きガスコンロです。
グリルが付いているとお料理の幅も広がりますね。魚やお肉だけではなく、グラタンなども強い火力でこんがり仕上がりますよ( ̄∀ ̄*)
リビング・ダイニングです。
リノベーション済みで、新しく貼り換えられた壁、床、天井は見ていて気持ちがいいですね。
窓は南西向きなので1日中、暖かな光がお部屋を照らしてくれます。
こちらはリビングの隣の洋室です。
リビングとはスライド式のドアで仕切られているので、開放したままでも大丈夫ですし、もちろんドアを閉めて1つの独立したお部屋としても良さそうです ( ・`ω・´)
クローゼットも付いています。
お洋服を掛けることができるので、お部屋に別途家具を置かなくてもいいですね。
季節もののコートなどを掛けておけば衣替えも簡単に終わりそうですよ。
最後にバルコニーです。
南西を向いているのでお洗濯物もすぐに乾きそうです(・`ω´・ ○)
正面に見えているのは中野坂上のビルでしょうか。
近くには背の高い建物が無いのでとても陽当たりが良いですよ(☆Д☆)
では、以上でパイロットハウス北新宿のご案内を終わります。
如何でしたでしょうか?
新宿からほど近く、かつ閑静な住宅街となっています。
リノベーション済みなので、新築のような内装ですよ。
内見のご予約やご質問などございましたらお気軽にお問い合わせくださいませ。
ご連絡お待ちしております。
過去に販売していたお部屋の概要 このお部屋の販売は終了いたしました。
| 価格 | -万円 |
| 面積 | 41.25㎡ |
| 間取り | 2bedrooms(2DK) |
| 管理費 | 月額9,800円 修繕積立金:月額6,640円 |
| 所在階 | 5階 |
| お問い合わせ・ご内見のご予約はこちらからお気軽にどうぞ | |
間取りのご紹介です。2DK、専有面積は41.25㎡。
最上階につき眺望良好なお部屋です。
室内は只今以下のリノベーション工事中です。
【リノベーション内容】
■キッチン・・・システムキッチン(パナソニック)
■浴室・・・ユニットバス(パナソニック)、追い焚き機能付き、浴室換気乾燥暖房機付き
■洗面所・・・洗面化粧台 、洗濯水栓、防水パン
■トイレ・・・LIXIL、ウォシュレット付き
■その他・・・フローリング貼替、建具・玄関収納交換、壁・天井クロス貼替、フロアタイル貼替、クッションフロア貼替、給湯器交換、エアコン(1基)、カラーTVモニター付きインターフォン、新規照明器具取付、収納棚新設、スイッチ・コンセント交換、ハウスクリーニング
■アフターサービス保証付き
【内装工事終了予定:2016年5月中旬】
工事中のご紹介も可能です。
ご内見のご希望・ご質問などございましたら、お気軽にお問い合わせくださいませ♪





























































































































































































































































































弊社 公式HP
六棒総合研究所
掲載予定物件
価格変更と販売終了物件
ハザードマップ検索
適合証明書.jp
Facebook
Twitter
Instagram