□□□□□□□□□□□□□□□□□□□□□□□□□□□□□□□□□□□□□□□
いつも弊社ホームページをご覧頂き誠にありがとうございます。
プチモンド目白はお陰様で販売を終了致しました。弊社問合せフォームにてご要望頂けましたら、当お部屋でキャンセル等が発生した場合、他のお部屋が販売になりました際にご紹介させて頂きます。
不動産Agent 六棒株式会社
TEL:03‐5413‐5336
□□□□□□□□□□□□□□□□□□□□□□□□□□□□□□□□□□□□□□□
本日は東京メトロ副都心線「雑司が谷」駅より徒歩2分リノベーションマンション
プチモンド目白 をご案内致します!
歴史と文化の香りがにじむ魅力的な街、雑司が谷の物件のご紹介です☆
今回のお部屋は、東京メトロ副都心線『雑司が谷』駅から徒歩2分という好立地なのですが、JR山手線『目白』駅からも徒歩11分というアクセスの良さなのです(●´∀`)
こちらは、JR『目白』駅☆
ステンドガラスがオシャレな駅舎です♪♪
目白駅周辺は、学習院をはじめ多くの学校が集まる文教エリア。緑も多くステキな街並みです♪♪
駅前には歴史を感じさせる老舗も☆スーパーやカフェ、レストランも多くあります。
こちらは、建設中の『トラッド目白』11月にオープンの商業施設です(♡˙︶˙♡)
中にはスーパーやコンビニ、フラワーショップに歯科、カフェやレストランなどが入っています。目白駅から徒歩1分なのでお仕事帰りに寄っていくこともできます。
目白と言えば、やっぱり『学習院』のイメージが強いですよね♪♪
街並みに気品を与える存在です☆
こちらは、『徳川黎明会』☆
目白は立派なお屋敷が並ぶ街ですが、その中でもこちらの『徳川黎明会』さんの建物はステキです♪♪
尾張徳川家所蔵の美術品などの管理・一般への公開などを目的としている法人です。
会長は、尾張徳川家の当主が務めているそうですよ(●’∀’●)ノ
こちらは目白駅近くの、『豊島区立目白庭園』☆
うれしい入場無料の庭園です(●´∀`)
目白庭園は、池泉回遊式の庭園で、池の周囲をめぐることができます。
庭園内には四季折々の様々な自然の表情を満喫できるよう草木が配植されています♪♪
都会の喧騒の一角に造られた貴重な空間で癒されること間違いなしです(●´∀`)
庭園内には、雑誌「赤い鳥」を由来にした木造瓦葺平屋建ての数寄建築の「赤鳥庵」があり、茶道・華道・句会などの趣味の集まりを中心に、その他各種会合・発表会などにもごお借りすることができるそうです♪♪
最寄駅の東京メトロ副都心線『雑司が谷』駅の近くには、有名な雑司が谷の 『鬼子母神』があります♪♪
鬼子母神は、 安産・子育の神さまです☆
こちらのご尊像は室町時代の永禄4年(西暦1561年)に目白台で掘り出され、お寺に納めたものだそうです。450年以上前とは、ご利益ありそうです♪♪
境内には、大銀杏もあり見応えありです☆是非、お散歩に行ってきてください。
石畳の参道には大きな欅の並木が広がりとてもステキです(*´∀`*)ノ。+゚ *。
カフェもあって、休みの日には訪れてゆったりした時を過ごすのもgood
こちらは都営荒川線『鬼子母神前停留所』☆
マンションから徒歩4分の場所にあります♪唯一現存する都電で懐かしい雰囲気。
うまく使えば、よい交通手段になるかもしれませんよ(●´∀`)

今回ご紹介させていただくマンションはスーパー、コンビニが近くにあり大変便利な立地です♪♪
2軒隣がスーパーで、3件隣りがコンビニです(笑)
こちらが今回ご紹介させていただく『プチモンド目白』です♪
昭和58年築、
前面の道路は目白通りで、少し交通量が多いです。
マンションをぐるりとまわった側面にはゴミ置き場と駐輪場がありました。
(敷地内に駐車場とバイク置場はございません)
エントランスは 、道を一本入ったところです。
こちらからマンションに入ります。
エントランスは階段を少し下がったかたちになります。
こちらがエントランスホールです。管理体制は巡回管理。オートロックはありませんが、防犯カメラが目を光らせています♪
少しレトロなエントランスですかね。
こちらのエレベーターでお部屋へ向かいます。
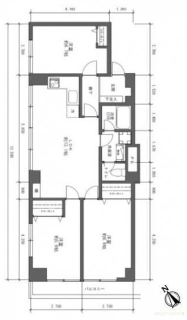
間取りのご紹介です。3LDK、69.49㎡。
クリックすると別タブで開きますので、よかったら間取りをみながら写真を
ご覧ください!
ご紹介するお部屋は4階。玄関前の共用廊下が広いです。
お部屋のインターホンはTVモニターがついており、事前に来訪者の顏もバッチリ確認できるので防犯面も安心(´▽`*)さらにはダブルロックキーでピッキング対策も◎!
さっそくお部屋の中へおじゃまします。
玄関を入ると目の前には木目調の扉のシューズBOXがどどーんと設置されています。
シューズBOXはご覧の通りたっぷり収納できます。
これならお部屋で靴を管理する心配はいらないですね!
人の動きを感知して自動で照明が消灯する人感センサーもついており、パッと電気がつくのも便利です。
玄関をあがると廊下が左右にのびています。
最初に左側へ進んでLDKから見ていきましょう!
ささ、どうぞお入りください。
LDKは約13.1帖の縦長空間。
ゆとりがあるので家具の配置もしやすそうですね(´▽`*)
大きな2つの窓はほぼ西向き。
窓と柱を挟んで可動棚がついた収納スペースもつくられています。
入口と反対側からもLDKをご覧ください。
入口側がキッチンスペースになっています。
壁側に落ち着いたネイビーのL字型キッチンが設置されています。
窓が近いのでお料理中の換気がしやすいのがうれしいですね!
キッチンは引き出し収納にくわえ、上には吊戸棚が設置されています。
物が多くなりがちなところだけに収納が多いのはいいですね!
L字型だと調理スペースが広めなのもうれしいところです(´▽`*)
3部屋ある洋室のうち、2部屋はLDKを介していけるようになっています。
隣り合っている洋室の扉の右側から入ってみましょう。
please come in!
こちらの洋室は約5.9帖。
南・西に大きな窓があり開放感があります。
幅の広いクローゼットもついています。
壁面の一部に使われたアクセントクロスもおしゃれですね!
もう1部屋の洋室は・・・
約6.9帖の広さ。こちらは壁面のクロスがミントグリーンのような色でさわやかな印象。クロス一つでお部屋の印象も大分違いますね(*‘ω‘ *)
こちらにも幅の広いクローゼットがついています。
大型の収納家具は用意する必要はなさそうです。
つづきまして・・・LDKの入口を入ってすぐ横にある扉は洗面室です。
洗面室は脱衣スペースを囲むようにトイレ、洗面化粧台、洗濯機置場、バスルームがまとまっています。
洗濯機置場と洗面化粧台はお隣どうし。
洗面化粧台は鏡の裏や洗面ボウル下と収納スペースが豊富にあります。
洗剤類も仕舞っておけそうですね。
水栓の蛇口はひっぱるとシャワーになるので朝の寝ぐせもササッとなおせて、とても便利です。
洗面化粧台のお隣はトイレです。
トイレはウォシュレット付き。
上の棚にはトイレットペーパーのストックや掃除道具をどうぞ!
こちらはバスルーム。洗濯機置場がすぐ横にあるので脱いだ衣服はポイッと洗濯機へ入れやすいです。
木目調の壁パネルが使われたやさしい雰囲気のバスルーム。
追い焚き機能がついており、家族の帰宅時間がバラバラでも、いつでも温かいお湯に浸かれますよ!
さらに浴室換気乾燥機能もついています。
乾燥機があれば雨の日のお洗濯も安心。カビ対策にもなります。
LDKから廊下側へ戻って、廊下側にある洋室を見に行きましょう。
廊下側にある洋室は約6.7帖の広さ。
洋室も6帖超えるとゆとりがありますね(´▽`*)
クローゼットの他、エアコンが設置されています。
引っ越したその日から快適な生活が送れそうですよ。
最後に洋室2部屋に面しているバルコニーに出てみます。
バルコニーは約5.40㎡。南西向きで陽当り良好☀
お洗濯物もたっぷり干せる広さです。
バルコニーから正面の眺望です。
大通りを挟んでマンションやビルが立ち並ぶ風景です。
左右も同じ感じの風景が続きます。
緑(銀杏の木)が見えるので、なんだか和やかな気分になります(´▽`*)
空を見上げれば太陽がキラリ。サンサンと陽ざしがふりそそぎますよ☀
プチモンド目白、いかがでしたでしょうか?
内見のご予約やご質問などございましたらお氣軽にお問い合わせくださいませ♪
弊社、不動産Agent 六棒株式会社では、
□リノベーションマンションはほぼ全て仲介手数料無料!
□その他一般仲介物件は仲介手数料20%~30%OFF!
にてお取り扱いしております!※弊社の「Agent Fee=仲介手数料」についてはご案内、ご面談の際に営業担当者よりご説明いたします!
なるべく沢山のお部屋をホームページに掲載したいと思っておりますが、時間的成約もございますので、残念ながらご紹介できるお部屋の一部しか掲載できておりません。
このホームページに掲載中のお部屋、その他サイト等で気になるお部屋、街を歩いていて気になったマンション等々ございましたら是非、弊社営業部までご相談ください!
~不動産Agent 六棒株式会社の特徴~
・一般仲介物件の仲介手数料は20%~30%OFFにてご案内中です!
・リノベーションマンションについてはほぼ全て仲介手数料無料です!
・住宅ローンに自信あります!
・頭金10万円より購入できます。是非ご相談下さい!
・お部屋のご見学は車で2~3件まとめて案内します!
・物件数3000件以上、新築戸建、リノベ物件も多数ご用意しております!
過去に販売していたお部屋の概要 このお部屋の販売は終了いたしました。
| 価格 | -万円 |
| 面積 | 57.85㎡ |
| 間取り | 2bedrooms(2LDK) |
| 管理費 | 月額:10,140円 修繕積立金:月額15,210円 |
| 所在階 | 4階 |
| お問い合わせ・ご内見のご予約はこちらからお気軽にどうぞ | |
こちらが今回ご紹介させて頂くお部屋の間取りです。
2LDK、57.85㎡。4階。です!
クリックして頂ければ別タブで開くので、間取り図と見比べながら進んでいきましょう!!
エレベーターからお部屋までは外廊下です。
雨や風の影響は受けてしましますが、臭いや湿気が籠らないのは魅力的ですね!
ホテルライクな内廊下も魅力的なんですけど個人的にはオススメです。
玄関の前にはカメラ付きのインターフォンが付いています。
お部屋の中にいながら廊下の様子が確認できるので、防犯面でも安心できますね!!
煩わしいセールス、勧誘なども顔を合わせることなくお帰り頂けます。
それでは中に入っていきましょう!!
チョット散らかってますけどドーゾドーゾ!!
玄関を抜けて突当りのドアを開けると
こちらはリビング・ダイニング・キッチンです。
約10.9帖もの広さがありますよ!
こちらの物件は無印良品とコラボしています。
家具や小物類は無印にいけば手に入れることが出来るみたいです!
こちらは約6.0帖の洋室です。
リビングとはスライド式のドアで仕切られているので、写真の様に開けていればLDKの一部としても使うことが出来ます。
もちろんドアを閉じれば一つの洋室としても使うことが出来ます。
状況に応じて使い分けていきましょう!
窓も大きいので、いい感じに光も入ってきています。
次はキッチンをご紹介しましょう!
あまり見ない感じのキッチンです。
壁に取りつけてある持ち出しキッチンというやつです。
敢えて余計な収納を設けない、シンプルなキッチンです。ご自由にカスタマイズしてお使い頂けます。
天板は特殊な素材で約230℃まで耐えることが出来ます。高温のお鍋等を直接置くこともできますよ!
お料理中もご家族との会話を楽しむことが出来そうですね。
玄関へと戻って・・・
次は洗面室です。
洗面化粧台もシンプルなものが付いていますね!
シングルミラーなので視認性もバツグンですよ!
隣りには洗濯機置場がありました。
洗面室は脱衣所も兼ねているので、脱いだお洋服はすぐに洗濯することもできますよ!
次はトイレです。
しっかりとウォシュレット付きのトイレです。
最近のマンションはウォシュレットが付いていて当たり前になってきていますが、なんだかんだで実物を確認できると嬉しいものです。
そしてお風呂を見てみましょう!
浴室には換気乾燥機能が付いているので、雨の日にはこちらで洗濯物を干すことが出来ます。
カビの防止にもなるので毎日使いたい機能でもありますね!
冬場は事前にお風呂を温めておく事でヒートショックを防いだりと縁の下で大活躍の機能です。
追い焚き機能も付いています。
昔のように家族でお風呂の時間をそろえる時代ではありません。それぞれが、自分の好きな時間にアツアツのお風呂に入ることが出来ます。
横長のミラーが良かった!!と思う方もいるかもしれませんが、
ここだけの話、スタンダードな縦長のミラーの方が日々の掃除やメンテナンスは楽なのですよ・・・
万が一、交換するようなことになっても作業が楽ですしね・・・
ではリビングに戻って、、、
次はこちらの洋室です。

こちらは約7.4帖もの広さがあります。
ダブルベッドも余裕をもって置けちゃいますね!!
角に位置しているので、明るいお部屋になっていますよ。
こちらはクローゼットスペースです。
これだけ広いと、お洋服だけではなく、季節ものの家電から生活雑貨まで何でもしまっておくことが出来そうですね!!
バルコニーへ出てみましょう!
すみません。ちょっと訳あって散らかっていますが、、、
エントランスのあった路地に面しています。
正面にマンションが建っているので絶景ではありませんが、副都心線徒歩2分のマンションなので、むしろ恵まれているレベルかもしれませんね!
では、以上でプチモンド目白のご案内を終わります。
いかがでしたでしょうか??
雑司が谷駅徒歩2分、リノベーション済みという事で内装もピカピカですよ。
内見のご予約やご質問などございましたらお気軽にお問い合わせくださいませ。
ご連絡お待ちしております。
弊社、不動産Agent 六棒株式会社では、
□リノベーションマンションはほぼ全て仲介手数料無料!
□その他一般仲介物件は仲介手数料20%~30%OFF!
にてお取り扱いしております!※弊社の「Agent Fee=仲介手数料」についてはご案内、ご面談の際に営業担当者よりご説明いたします!
なるべく沢山のお部屋をホームページに掲載したいと思っておりますが、時間的成約もございますので、残念ながらご紹介できるお部屋の一部しか掲載できておりません。
このホームページに掲載中のお部屋、その他サイト等で気になるお部屋、街を歩いていて気になったマンション等々ございましたら是非、弊社営業部までご相談ください!
~不動産Agent 六棒株式会社の特徴~
・一般仲介物件の仲介手数料は20%~30%OFFにてご案内中です!
・リノベーションマンションについてはほぼ全て仲介手数料無料です!
・住宅ローンに自信あります!
・頭金10万円より購入できます。是非ご相談下さい!
・お部屋のご見学は車で2~3件まとめて案内します!
・物件数3000件以上、新築戸建、リノベ物件も多数ご用意しております!
過去に販売していたお部屋の概要 このお部屋の販売は終了いたしました。
| 価格 | -万円 |
| 面積 | 57.85㎡ |
| 間取り | 2bedrooms(2LDK) |
| 管理費 | 月額10,140円 修繕積立金:月額15,210円 |
| 所在階 | 4階 |
| お問い合わせ・ご内見のご予約はこちらからお気軽にどうぞ | |
こちらが今回ご案内させて頂くお部屋の間取りです。
リビング・ダイニングに床暖房が付いているのが嬉しいですね。
さっそく参りましょうヾ(*≧∀≦)ノ゙
エレベーターを降りると開放的な外廊下がつづきます。
玄関先にはカメラ付きのインターフォンが付いていますね!
マンションにはオートロックが付いていないですが、お部屋の中から外の様子を確認できるのは嬉しいです。セールスや勧誘などもお部屋の中から対応できますので安心できますね∠(`・ω・´)
優しいアイボリーで統一された玄関です。
シューズボックスは設置されていませんので、お好きなデザインの物を購入してくださいね!!
オシャレなモデルも数多く販売されていますので、センスが光りますね ( ・`ω・´)
それでは廊下を進んでいきましょう!!
廊下の突当りのドアを開けるとリビング・ダイニング・キッチンがあります。
先ほども軽く触れましたが、こちらのリビング・ダイニングには床暖房が付いています。
足元から暖まってくるのでストーブ要らず!
暖まるまでに少し時間はかかりますが、タイマーを上手に利用して温かな冬を過ごしてくださいね (´°(エ)°`)
約15もの広さがあるリビング・ダイニングはさすがに開放感がありますね!!
窓は東向きです(☆Д☆) マンションの前には目白通りが通っていますが、車の音はそんなに気になりませんでしたよ!!
こちらはキッチンです。
大きなシンクを備えた水栓、3口のグリル付きガスコンロ、食器洗浄機が付いています。
食器洗浄機が付いているのは嬉しいですね。最後の後片付けがボタン一つで終わるのであれば、少し手間のかかるお料理に挑戦しても良いような気分になっちゃいますね!!
上部の吊戸棚、キッチンカウンター内部と収納もたっぷりです。
キッチン回りの物は大体収納できてしまいそうです(・ω・)b
では、いったん玄関方向に戻りましょう!
玄関から見て右側のドアを開けると洗面室がありますね!!
洗面化粧台の他にトイレ、洗濯機置場も同室内にあります。それでは見ていきましょう!!
先ずは洗面化粧台です。
四角い洗面台は新規交換済みで正に新品です。水廻りがピカピカだと気持ちがいいですね。
水栓はシャワーヘッドになっています。汚れが溜まりにくいですし、洗面ボウルの隅々まで水を流すことができるのでお掃除も楽に終わりますよ(・ω・)b
洗面台のミラーサイドと内側は収納になっています。
歯ブラシや基礎化粧品などの使用頻度の高いものはこちらに入れておくことができますよ!!
シンクの下は引き出しタイプの収納になっていますね。取り出しが楽にできるので様々なものを収納できそうですね!!
洗面台の隣にはトイレがありますね。
洗面台と同じスペースにトイレがある事に抵抗を感じる人もいらっしゃいますが、実際に使うとなると近いに越したことはありませんよ。大家族で住まれるなら話は別ですが!!
TOTOのタンクレスタイプのトイレなので空間が広く使えますね!
タオルのストックに丁度良さそうな棚も付いているので、個人的には過ごしやすい空間になりそうな気がしますよ( ・∀・)
続いては浴室です。
濃いブラウンの壁が高級感を出していますね(☆Д☆)
お風呂には追い焚き機能が付いています。この機能があればいつでも熱いお風呂に入ることができますね! 帰宅が遅くなっても、朝ぶろでさっぱりしたくなっても、問題なくたっぷりのお湯に浸かることができますよ!!
一日の疲れをしっかり落として翌日に備えましょう!!
さて、玄関に戻って左側の扉を開けるとお部屋があります。
約3.7帖のこちらの洋室には大きなクローゼットと窓が付いています。
窓は外の廊下に面していますが、金属製の格子が付いていますので防犯面では安心です。
大容量のクローゼットです。これだけの大きさがあれば収納に困る事は無さそうですね。
上部は物置になっているので季節ものの家電でも大丈夫です!!
趣味の部屋にしてしまっても良さそうですね(・`ω´・ ○)
それでは一度リビングに戻りましょう。
先ほどは触れませんでしたが、淡いブルーンの扉がありますね・・・
1まいめ!!
2まいめ!!
3まいめ!!
という事でお隣の洋室が出てきました!!
こちらは広さ約6.2帖の洋室です。
スライド式のドアを開けてしまえば約21帖ものリビング・ダイニングが出来上がりますよ!!
状況に応じて使い分ける事もできますが、私個人としてはこちらの開放感がある方が好きですよ(*^艸^)
中に荷物が入ってますが、こちらにもクローゼットが付いています。
お洋服を掛けるポールが付いていないので、自由にスペースを使うことができますよ。
最後にバルコニーです。
東向きのバルコニーですが、前に背の高いマンションが建っているので直接日光が当たるかは微妙化もしれませんね。
この日はあいにくの雨でしたので、天気のいい日に来ればまた違ったのかもしれませんが・・・
北側遠くには池袋のビル群が見えますね!!
晴れの日は気持ちよさそうですよ!!
以上でプチモンド目白のご案内を終わります。
如何でしたでしょうか??
雑司が谷駅から徒歩2分のお部屋でした。
リフォーム済みなのでピカピカのお部屋ですよ!!
内見のご予約やご質問などございましたらお気軽にお問い合わせくださいませ。
ご連絡お待ちしております!!
弊社、不動産Agent 六棒株式会社では、
□リノベーションマンションはほぼ全て仲介手数料無料!
□その他一般仲介物件は仲介手数料20%~30%OFF!
にてお取り扱いしております!※弊社の「Agent Fee=仲介手数料」についてはご案内、ご面談の際に営業担当者よりご説明いたします!
なるべく沢山のお部屋をホームページに掲載したいと思っておりますが、時間的成約もございますので、残念ながらご紹介できるお部屋の一部しか掲載できておりません。
このホームページに掲載中のお部屋、その他サイト等で気になるお部屋、街を歩いていて気になったマンション等々ございましたら是非、弊社営業部までご相談ください!
~不動産Agent 六棒株式会社の特徴~
・一般仲介物件の仲介手数料は20%~30%OFFにてご案内中です!
・リノベーションマンションについてはほぼ全て仲介手数料無料です!
・住宅ローンに自信あります!
・頭金10万円より購入できます。是非ご相談下さい!
・お部屋のご見学は車で2~3件まとめて案内します!
・物件数3000件以上、新築戸建、リノベ物件も多数ご用意しております!
過去に販売していたお部屋の概要 このお部屋の販売は終了いたしました。
| 価格 | -万円 |
| 面積 | 49.20㎡ |
| 間取り | 2bedrooms(2LDK) |
| 管理費 | 月額:8,660円 修繕積立金:月額12,990円 |
| 所在階 | 5階 |

扉を開けると、ピカピカです(*´˘`*)♡
照明は人感センサー機能付ですので、
入って左にトールサイズのシューズボックスがあります♪
白と茶色でまとまった雰囲気が素敵です。
シューズボックスは、トールサイズなので収納力バツグン!!
家族全員分の靴もスッキリおさまると思います。扉には大きな姿見があるのでお出かけ前のチェックもバッチリです(o´∀`ノ
傘などを収納したいですね(o´∀`ノ
廊下左側が、サニタリ-ルームになっています☆
洗面台・洗濯機置場・バスルームがまとまっています★
右手に洗面台、奥に洗濯機置場、・左手にバスルームの並びになっています。
まずは洗面台です☆ピッカピカ♪♪
白を基調とした清潔感ある洗面台です。鏡の裏に収納スペースのありますので、ハブラシから洗顔フォームまでゴチャゴチャ散らかりがちな洗面ま
洗濯機置場です☆
棚等は設置されていませんので、後から棚を設置したり、突っ張り棒で収納を作ったりと工夫したいですね(*´∀`*)
白で統一されたキレイなバスルームです☆
ゆっくり大きなバスタブにつかって疲れを癒せそうです♪♪
追い焚きと浴室乾燥機能が付いています。
廊下に戻ってお隣はトイレになっています☆
嬉しいウォシュレット付になります。背後には棚があるので、ストック品の収納や消臭剤を置くスペースとして利用してみて下さい♥♡
扉はついていませんので、オシャレなかごを使ってみてはいかがでしょうか♪
廊下一番奥のお部屋、約6.2帖の洋室です♪♪
ベットルームになると思います。大きめの窓で、朝はすっきり目覚められそうです(*´˘`*)♡
クローゼットもあり収納もOK♪奥行きもしっかりです♪♪
次は、いったん廊下に戻って、玄関入って右手のお部屋を見ていきましょう♪♪
約10.6帖のリビングダイニングキッチンです☆
あたたかい照明の色合いがステキなお部屋です♪♪

お部屋の壁は一部エコカラットで、アクセントになっています。
エコカラットは、湿度を調節してくれる優れもの♪♪
ダウンライトもステキですね(●´∀`)
奥のお部屋とは、スライド式のドアで隔てられていますので、扉をあけて一つのお部屋として使うこともできます♪♪
扉を開けると約15帖のお部屋になりますので、とっても広々です(●´∀`)
ステキなダイニングですね☆
大事なことを書いておりませんでした。。。
こちらのお部屋は家具付きの販売になるのでお部屋に置いてある家具はいただけま
こちらのダイニングも、先ほどのお部屋のベットも、ソファーもです(*´˘`*)♡
広々としたステキなシステムキッチンです☆
ゆったりとしたキッチンで収納にも困りません(●’∀’●)ノ
こんなにステキなキッチンでお料理できたら幸せですね。+゚ *。。+゚ *。
食器洗浄機も付いていますので後片付けもラクチン(*´˘`*)♡
浄水機能付水栓もウレシイです♪♪お料理も楽しくできます☆
キッチンの前面は窓になっています。明るいキッチンで◎
冷蔵庫置場もしっかり用意されています☆
小さいですが、素敵なキッチンカウンターがついています♬
キッチンからリビングダイニングがすべて見渡せるのも安心です♪
リビングの奥は、約4.2帖の洋室です☆
ベットを入れるには少し狭いかと思いますので、素敵な書斎にされてはいかがでしょうか(*´˘`*)♡
スライド式の扉をうまく使って、工夫したいですね♪♪

こちらの家具もやっぱり付いてきます☆
こちらのお部屋にもクローゼットがあります♪
バーも付いているので、ロングコート等の衣類の収納にも良いですね♪♪
それでは、最後にバルコニーに出てみましょう♪♪
お部屋は、目白通りに面していませんので、騒音はありません。
バルコニーも11.68㎡と広々☆奥に見えるのは池袋の町並みでしょうか。
夜の景色も見てみたいです(*´˘`*)♡
交通の便も良く、緑も多いエリアです。
最上階の角部屋で充実した生活が送れると思います☆
内見のご希望、ご質問などございましたら、


























































































































































































































