□□□□□□□□□□□□□□□□□□□□□□□□□□□□□□□□□□□□□□□
いつも弊社ホームページをご覧頂き誠にありがとうございます。
田町東豊エステートはお陰様で販売を終了致しました。弊社問合せフォームにてご要望頂けましたら、当お部屋でキャンセル等が発生した場合、他のお部屋が販売になりました際にご紹介させて頂きます。
不動産Agent 六棒株式会社
TEL:03‐5413‐5336
□□□□□□□□□□□□□□□□□□□□□□□□□□□□□□□□□□□□□□□
・
港区芝浦エリアよりリノベーションマンション『田町東豊エステート』のご紹介です!
品川-田町間の新駅開設予定でますます便利になる田町エリアから
リノベーションマンション「田町スカイハイツ」のご紹介です。
アクセス
JR山手線・京浜東北線「田町」駅徒歩8分
都営浅草線・三田線「三田」駅徒歩10分
□□□□□□□□□□□□□□□□□□□□□□□□□□□□□□□□□□□□□□□
★★★【田町東豊エステート】周辺のハザードマップをCHECK!!★★★
お部屋の記事を読む前に…!周辺のハザードマップをチェックしておきませんか!
田町東豊エステートのハザードマップは★こちらから…どうぞ★
□□□□□□□□□□□□□□□□□□□□□□□□□□□□□□□□□□□□□□□
ハザードマップもご確認いただきましたので、早速最寄りの最寄の田町駅へ!
マンションは東口方面ですが、西口方面にでるとすぐに「三田」駅があるので地下鉄の三田線・都営浅草線も利用可能、どこへ行くにもアクセス便利です。
駅周辺は企業や飲食店が多くにぎやか。この日は駅に着いたのがお昼時だった
ので会社員の方のランチタイムでどこも混みあっていました。
マンションまでは東口をでたら芝浦3丁目の交差点までまっすぐ進み、そこから
道を折れて少し歩くと到着します。
途中にスーパーマーケットもありお買い物も便利です。
マンションへ向かう途中、川を渡ります。
モノレールが通るので、電車とはまた違った眺望ですね。
電車のように、ガタンゴトンと音がしないので、とても不思議です(笑)
周辺には、出荷工場が沢山あるので、トラックが多く見受けられました。
大通りなので、比較的交通量が多いです。
お散歩している人や、サラリーマンなど、様々な人が行き交っています。
物件近くの橋の横には、小休憩できそうな小さい広場があります。
ハトもお休みしていますね。
物件まで、もう少しですよー!
田町東豊エステートは昭和54年築、10階建て、総世帯数50戸。
外観は白基調で川沿いに建っています。
コンビニまで徒歩1分、スーパーまで徒歩6分とお買い物も便利です。
敷地内に駐車場もあります。
★修繕履歴
2019年 集合郵便受けダイヤル錠交換・宅配BOX設置
2017年 エレベーター安全対策工事・ゴミ置場屋根張替
2010年 外部階段屋根設置
2008年 鉄部塗装工事
2007年 屋上防水改修工事
2006年 エレベーター改修工事
エントランス横はスロープになっており、キャリーケースやベビーカーでの移動もスムーズ♪
駐車場横には、駐輪場があります。バイクを置く事もできますよ。
エントランス。オートロックはありませんが、日勤で管理人さんがいます。
真っ直ぐ進むとエレベーターが1基。
では、エレベーターに乗ってお部屋に向かいます。
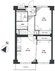
ここで間取り図のご紹介です。
※間取り図は別タブで開きますので、確認しながらご覧いただく事が出来ます。
今回のお部屋は3階、間取りは1LDK、専有面積は43.85㎡となります。
では、早速行ってみましょう。
□□□□□□□□□□□□□□□□□□□□□□□□□□□□□□□□□□□□□□□
★★★【田町東豊エステート】周辺のハザードマップをCHECK!!★★★
お部屋の記事を読む前に…!周辺のハザードマップをチェックしておきませんか!
田町東豊エステートのハザードマップは★こちらから…どうぞ★
□□□□□□□□□□□□□□□□□□□□□□□□□□□□□□□□□□□□□□□
エレベーターを3階で降りて…
風通しのいい外廊下を進むと…
玄関に到着です。
カメラ付きインターホンが設置されていて、お部屋のモニターで訪問者を確認する事が出来ます。玄関まで来る必要がないのがいいですね。
それではお邪魔します。
ドアを開けると、玄関というには広い空間が広がっていました。
間取り図にはシューズインクローゼットとありますが、扉がなく『土間』のような感じになっています。靴はもちろんの事、自転車やベビーカーなども置く事が出来そうです。
棚板は高さ調整可能。大きな窓があって換気もバッチリですよ。窓の外は外廊下なので、しっかり面格子が設置されています。
中に入った時に照明を点けてくれたのは、人感センサーです。いつでも明るい玄関が迎えてくれるのは嬉しいですよね♬
白い扉の奥は…
洗濯機スぺ―スになっていました。中には棚も付いていますので、洗剤などの洗濯関係の物はここにまとめて置いておけますね。
では、お部屋の中へ進みましょう。
こちらが約14.8帖のリビング・ダイニング・キッチンとなります。
ブルックリンスタイルのスタイリッシュなお部屋です。テイストがはっきりしているので、家具なども選びやすいですね。革やアイアン、無垢材などのヴィンテージ感のある素材が合いそうです。
レンガ調のアクセントウォールには棚が設置されています。高さも変えられますが、棚の位置によってお部屋の印象も変わってくるので、実用的というより装飾的な面での調節になりそうです。センスの見せ所ですね(^^)
次は、隣のお部屋へ…
リビングの引き戸を開けてみます。
こちらが約6.2帖の洋室となります。
バルコニーに面した、大きな窓からの光が眩しいですね。仕切りの扉は上半分がガラスになっていて、閉めてもリビングの様子がわかる一体感のあるお部屋です。
壁の一面を使ったクローゼットが設置されていました。間口が広く使いやいのはもちろんの事、奥行きがあって収納力も抜群です。
扉は開けていくと壁部分に収納されて…
こんな感じにリビングとつなげてお部屋を使う事が出来ます。
20帖超のお部屋の出来上がり。状況に応じて使い分けられるのは便利ですね♬
今度はキッチンを見てみます。
お部屋の雰囲気に合わせた調理台です。
調理台には収納は少なめ。吊戸棚は扉の無いオープンな物になっています。
コンロは縦並びの2口です。その分作業スペースが広くなっていますよ。
お料理中は換気扇をお忘れなく。あえてむき出しのダクトが、雰囲気造りに一役買っています(^^)
広いキッチンカウンターは、作業スペースやお料理を出す際のワンクッションとしても使えます。忙しい朝食の定位置になったりもしそうですね(笑)
ちなみに、キッチンに入る所は一段高くなっています。躓かないようにお気を付け下さい。
調理台左には冷蔵庫スペースと収納棚が並んでありました。冷蔵庫スペースは窪みに置くタイプなので、サイズにはご注意を。
では、次へ…
キッチン前の黒い引き戸です。
トイレ兼洗面室となります。
もちろんウォシュレットも完備していますよ。今の時代無いと困りますよね(笑) TOTOさんお世話になっています。
三面鏡の付いたゆったりサイズの洗面台です。
収納はミラーキャビネットと洗面台の下になります。細かい物の多くなりがちな洗面に、ミラーキャビネットは助かりますね。
水栓はハンドシャワータイプ。広い洗面ボウルを流したりするのにも便利です。
では、浴室へ..
シンプルな白を基調とした浴室になっています。
追い焚き機能が付いていますので、いつでも温かいお風呂に入れます。
浴室乾燥機能は浴室のカビ予防だけでなく、雨天のお洗濯物乾燥やヒートショック予防など様々な働きをしてくれます。どんどん使っていきましょう。
それでは、最後にバルコニーへ出てみましょう!
洋室の窓から出ます。
こちらが3.69㎡のバルコニーとなります。
幅はありませんが、奥行きがあって実際の数字より広く感じます。手摺が下まで柵なのもあるかもしれませんね。ご覧の通りの陽射しなので、お洗濯物も気持ち良く乾きそうです(^^)
目の前の眺めです。
この開放感、言葉はいりませんよね♬ 個人的には、川沿いならあまり上の階じゃない方が川を感じられていいと思います。如何ですか?
・
・
以上で田町東豊エステートのご案内を終わります。
いかがでしたでしょうか??
田町駅から徒歩8分のマンションです。
リノベーション済みという事で室内はとてもキレイですよ (っ・ω・)っ
内見のご予約やご質問などございましたらお気軽にお問い合わせくださいませ。
ご連絡お待ちしております。
□□□□□□□□□□□□□□□□□□□□□□□□□□□□□□□□□□□□□□□
★★★【田町東豊エステート】周辺のハザードマップをCHECK!!★★★
お部屋のご購入前に…!周辺のハザードマップをチェックしておきませんか!
田町東豊エステートのハザードマップは★こちらから…どうぞ★
□□□□□□□□□□□□□□□□□□□□□□□□□□□□□□□□□□□□□□□
弊社、不動産Agent 六棒株式会社では、
□リノベーションマンションはほぼ全て仲介手数料無料!
□その他一般仲介物件は仲介手数料20%~30%OFF!
にてお取り扱いしております!※弊社の「Agent Fee=仲介手数料」についてはご案内、ご面談の際に営業担当者よりご説明いたします!
なるべく沢山のお部屋をホームページに掲載したいと思っておりますが、時間的成約もございますので、残念ながらご紹介できるお部屋の一部しか掲載できておりません。
このホームページに掲載中のお部屋、その他サイト等で気になるお部屋、街を歩いていて気になったマンション等々ございましたら是非、弊社営業部までご相談ください!
~不動産Agent 六棒株式会社の特徴~
・一般仲介物件の仲介手数料は20%~30%OFFにてご案内中です!
・リノベーションマンションについてはほぼ全て仲介手数料無料です!
・住宅ローンに自信あります!
・頭金10万円より購入できます。是非ご相談下さい!
・お部屋のご見学は車で2~3件まとめて案内します!
・物件数3000件以上、新築戸建、リノベ物件も多数ご用意しております!
過去に販売していたお部屋の概要 このお部屋の販売は終了いたしました。
| 価格 | -万円 |
| 面積 | 48.84㎡ |
| 間取り | 2bedrooms(2LDK) |
| 管理費 | 月額12,200円 修繕積立金:月額12,800円 組合費:月額200円 |
| 所在階 | 6階 |
| お問い合わせ・ご内見のご予約はこちらからお気軽にどうぞ | |
ここで、間取り図のご案内です。
※クリックすると別画面で開きます!間取り図を確認しつつご覧頂けますよ!
こちらの物件は、2LDK、48.84㎡。
芝浦運河沿いの角部屋で、陽当り良好なお部屋ですよ。
6階につきました。
開放感のある外廊下を進みます。
こちらが、今回のお部屋です。
カメラ付きインターホンが設置されていますね。玄関を開ける前に訪問者を確認出来るので、とても安心です。
では、お部屋に入ってみましょう。お邪魔しまーす!
一面がオフホワイトの清潔感溢れる廊下が伸びています。
玄関を入ってすぐに、人感センサーが設置されていました。
スイッチを押さずともライトが自動的に付き、一定時間で消してくれる優れものです。消し忘れもなくなるので節電にもなりますね。どれだけ点けっぱなしなんだって言われそうですけど(笑)
玄関を入って左には、シューズボックスが設置されています。
トールタイプなので収納力バツグンです。間隔調整が出来るので、ブーツなどの高さがある靴も収納出来ます。これで玄関をスッキリ使う事ができますね。
玄関を入って右側には、ニッチカウンターがあります。
お花を飾る事も出来るし、お出掛けの際の荷物置きとしても活用できます。このカウンター、意外と便利ですよ!
では、真っ直ぐ進んで、正面のドアを開けたいと思います。
ガチャ
こちらもオフホワイトを基調としていて、とても綺麗ですね。
奥も見てみましょう。
リビング部分です。
広すぎず、狭すぎずのちょうどいい空間ですね、落ち着きます♬
家具は見本なので付いてはきませんが、生活のイメージがしやすくて助かります。家具の色や大きさの参考にしてもいいですね。
窓側から全体を…

ダイニング部分です。
お部屋の印象に合わせて家具もグレーやホワイトで合わせると、とても落ち着いた雰囲気になるんですね。
天井には、間接照明、ダウンライト、スポットライトと様々なライトがあり、照明に対するこだわりを感じます。
キッチンに来てみました。
冷蔵庫や食器棚を置いても十分広いスペースがあります。
調理台下の収納は引き出しタイプになっています。このタイプは中が見やすいし、出し入れがしやすくていいですよね。

上部には吊戸棚があります。こちらにはあまり使わない物をどうぞ。
食器洗浄機が完備されています。
食後の時間が、ゆったり過ごせせるアイテムです♬
水栓は浄水機能付きです。お料理にも美味しいお水を使えますね。
コンロは3口あります。高温調理の他に温度設定やタイマーも付いているので、煮込み料理や時間のかかる料理をする時にはとても便利です。
グリルもついていますよ。
それでは、リビングとなりの洋室に行ってみましょう。
こちらが南側の洋室となります。
南東向きの大きな窓なので、お天気のいい日には明るくなりそうです。
ドアの近くにコンパクトタイプの収納が完備されています。
ポールが2本設置されているので、洋服を2段に渡って掛ける事が出来ます。
それでは、こちらの洋室を出まして…
いちど、廊下に戻ります。
ちなみに、ドアストッパーが設置されています。
ドアを開き切ると自動的にロックしてくれます。風でバタンと閉まったりして危ない時がありますから、これはいいですね。
廊下に戻ってきました。右側の扉から開けてみますね。
こちらは、収納スペースです。
収納スペース向かい側の扉を開けてみると…
こちらは、トイレです。

ちょっと段差があるので、お気をつけください。
収納棚が完備されており、ウォシュレットもあります。
トイレの右側を開けると、
洗面室があります。
洗面台の下には引き出しタイプの収納があります。こちらには大き目の物を…
鏡の後の収納には細かい物を入れると良さそうですね。
洗面台はとても広いので、顏を洗う時など周りが水浸し…なんて事もなくなりそうですね(笑)
水栓はヘッドが伸びるタイプなので、大きい洗面台を流したりするのにも便利です。
洗面台の右側には、洗濯機スペースがあります。
上部には収納棚があります。
あまり高すぎない位置で、使い勝手が良さそうです。
棚の大きさよりも扉が大きいので、とても開けやすいですよ。
洗濯機スペースと、洗面台の後ろには、バスルームがあります。
床は、樹脂床材が使用されているのでツルツルしていません。滑って転ぶ心配もありませんね(^^)

追い焚き機能が付いた浴槽です。
浴槽の蓋を収納出来るフックが設置されています。ついている蓋は軽いのでフックに掛けるのも楽ですよ。
壁も天井も全部ホワイトなので、全体的に明るく綺麗ですね。
湯船に浸かっていると、とてもリラックスできそうです。
浴室のカビ予防や雨天のお洗濯物乾燥、ヒートショック予防など様々な役に立ってくれますよ。
それでは、バスルームを出て向かいにあるドアを開けてみましょう。
こちらが北側の洋室となります。こちらのお部屋にも窓が2つありますね。
引き戸を開けると…ウォークインクローゼットになっていました。
ポールがコの字型に3本設置されたタイプです。お洋服がたくさん掛けられそうですよ♪♪
床面も広いので、大きなスーツケースでも楽々入りそうですし、衣装ケースなどを置いても良いかもしれませんね。
それでは、最後にバルコニーへ行ってみましょう。
バルコニーへは南側の洋室から出られます。
バルコニーは綺麗にデッキパネルが張られています。
ネットですが、普通はハトやカラス除けですが、この辺ですと多分ウミネコ除けだと思います。水辺と言う事もありお気に入りの場所なのかも…^^;)
流れる川面を眺めていると、とってもリラックス出来るんですよ~川沿いっていいですよね♬
・
では、以上で田町東豊エステートのご案内を終わります。
いかがでしたでしょうか??
田町駅から徒歩8分のマンションです。
リノベーション済みという事で室内はとてもキレイですよ (っ・ω・)っ
内見のご予約やご質問などございましたらお気軽にお問い合わせくださいませ。
ご連絡お待ちしております。
弊社、不動産Agent 六棒株式会社では、
□リノベーションマンションはほぼ全て仲介手数料無料!
□その他一般仲介物件は仲介手数料20%~30%OFF!
にてお取り扱いしております!※弊社の「Agent Fee=仲介手数料」についてはご案内、ご面談の際に営業担当者よりご説明いたします!
なるべく沢山のお部屋をホームページに掲載したいと思っておりますが、時間的成約もございますので、残念ながらご紹介できるお部屋の一部しか掲載できておりません。
このホームページに掲載中のお部屋、その他サイト等で気になるお部屋、街を歩いていて気になったマンション等々ございましたら是非、弊社営業部までご相談ください!
~不動産Agent 六棒株式会社の特徴~
・一般仲介物件の仲介手数料は20%~30%OFFにてご案内中です!
・リノベーションマンションについてはほぼ全て仲介手数料無料です!
・住宅ローンに自信あります!
・頭金10万円より購入できます。是非ご相談下さい!
・お部屋のご見学は車で2~3件まとめて案内します!
・物件数3000件以上、新築戸建、リノベ物件も多数ご用意しております!
過去に販売していたお部屋の概要 このお部屋の販売は終了いたしました。
| 価格 | -万円 |
| 面積 | 48.84㎡ |
| 間取り | 2bedrooms(2DK) |
| 管理費 | 月額12,200円 修繕積立金:月額12,800円 組合費:月額200円 |
| 所在階 | 5階 |
| お問い合わせ・ご内見のご予約はこちらからお気軽にどうぞ | |
それでは、お部屋に向かってみましょう。
エレベーターに乗っている間に、間取り図の紹介です。
※クリックすると別画面で表示されますので、以降確認しながら進むことが出来ます!
こちらの物件は、2DK、48.84㎡。
川沿いなので、バルコニーからの眺望、陽当り共に良好です!
5階につきました。
エレベーターを降りて外廊下を進むとお部屋に到着です。
カメラ付きインターホンが設置されているので、訪問者の確認が出来て安心です。
それでは、お部屋に入ってみましょう。お邪魔しまーす。
高級感のある玄関ですね。
真っ直ぐ伸びた廊下の、突き当りのドアから光が洩れています。
玄関を入って左側には、トールサイズのシューズボックスがあります。
下にはライトが設置されていて足元が明るいですね。
扉3枚分ですから収納力はバッチリです。
棚板は間隔調整ができるので、ブーツなどの長さがある靴でも収納可能ですよ。
人感センサーが設置されているので、自動的にライトがつきます。両手が塞がっていても大丈夫(^^)v
それでは、真っ直ぐ進んでダイニングキッチンに行ってみましょう。
ガチャ。
こちらが約8.5帖のダイニング・キッチンとなります。
大きな窓から自然光がたっぷり入って来ています。建具やキッチンのパネルが濃い目のブラウンで、落ち着いた雰囲気ですね。
窓側から全体を…
ドアを開けてすぐの所に台があります。
コンセントも設置されているので、電話やファックスなどを置いたりする事が出来そうです。お花や写真などを飾るのもいいですね(^^)
キッチンを見ていきましょう。
キッチンの収納は、シンク・コンロの下と上部に棚が設置されているので、キッチン回りの器具などたっぷり収納ができます。
食器洗浄機も設置されています。
お片付けの時間を短縮して、のんびりする時間が増えますね。
水栓はヘッドが伸びて、シンクを流したりに便利です。
コンロは3口で、グリルも付いています。
キッチン回りの壁は凹凸がない壁なので、お掃除がしやすそうですね。ホワイトなので汚れがすぐに発見できます。
それでは、ダイニング隣の洋室に行ってみましょう。
こちらが約5.2帖の洋室となります。
窓の反対側には、クローゼットあります。
間口が広くて使いやすそうなクローゼットですね。中が一度に全部見られます。
また、上部にも物を収納する事が出来ますよ。
洋室の扉は、壁部分に収納して全開にする事ができます。
ちょっと、全開にしてみますね~。
はい!
約14帖のお部屋の誕生です。
お友達を呼んでパーティーをしても良いかもしれません☆
真ん中からみたお部屋の風景です。
窓が2つで、全体的に明るく広く見えます。
では、いちど廊下に戻ってみましょう。
ダイニングの扉を開けると、すぐ右に収納スペースの扉があります。
幅はあまりないですが、奥行きがあります。
棚の間隔も変えられるので、整理グッズなどを使いながらいろいろ工夫してみましょう。
ダイニングの扉を開けて左には……
トイレがあります。
上部には収納棚、ウォシュレットが完備されています。
トイレを後にして、玄関近くの扉をあけてみます。
ガチャ。
洗面台ですね。
鏡の後ろと、下に収納があります。
洗面台の右には、洗濯機スペース。
上部には、棚が設置されています。
洗濯機スペースの向かいには、バスルームがあります。
バスルームの壁もブラウンですね。
ここにも、シックで落ち着いた雰囲気がありました。
追い焚き機能がありますので、いつでも温かいお風呂に入れますよ。
浴槽の蓋は、壁に掛けて収納することが出来ます。スッキリですね。
湯船に浸かって上を見上げると、ブラウンの壁にライトが反射していい雰囲気です。1日の疲れがゆっくり溶けていく、そんな時間を過ごせそうです。
では、浴室を後にして……
向かいのお部屋に行ってみたいと思います。
こちらが約5.9帖の洋室となります。
全ての居室に窓があるんですね!ちょっと窓を開けてみましょう。
窓の外は外廊下になっていますので、しっかりと面格子が設置されています。ビルの間から遠くまで見えますね。
反対側にはクローゼットがあります。こちらも開けてみましょう。
先程より少しだけ小さいですが、それでも十分広いクローゼットです。
では、最後にバルコニーへ出てみましょう。

幅はあまりありませんが、奥行きがあるのでゆったりと感じるバルコニーです。
上に物干し竿受けがありますね。ここでお洗濯物を干せるようです。南東向きですので午前中がお勧めですよ。
川沿いってやっぱりいいですよね♬ 憧れます(*´ω`)
とにかく眺望は最高です!!風もとても気持ちいいですよ。
ウミネコの鳴き声を聞きながら、リラックスした時間を過ごせるかと思います。
・
では、以上で田町東豊エステートのご案内を終わります。
いかがでしたでしょうか??
田町駅から徒歩8分のマンションです。
リノベーション済みという事で室内はとてもキレイですよ (っ・ω・)っ
内見のご予約やご質問などございましたらお気軽にお問い合わせくださいませ。
ご連絡お待ちしております。
弊社、不動産Agent 六棒株式会社では、
□リノベーションマンションはほぼ全て仲介手数料無料!
□その他一般仲介物件は仲介手数料20%~30%OFF!
にてお取り扱いしております!※弊社の「Agent Fee=仲介手数料」についてはご案内、ご面談の際に営業担当者よりご説明いたします!
なるべく沢山のお部屋をホームページに掲載したいと思っておりますが、時間的成約もございますので、残念ながらご紹介できるお部屋の一部しか掲載できておりません。
このホームページに掲載中のお部屋、その他サイト等で気になるお部屋、街を歩いていて気になったマンション等々ございましたら是非、弊社営業部までご相談ください!
~不動産Agent 六棒株式会社の特徴~
・一般仲介物件の仲介手数料は20%~30%OFFにてご案内中です!
・リノベーションマンションについてはほぼ全て仲介手数料無料です!
・住宅ローンに自信あります!
・頭金10万円より購入できます。是非ご相談下さい!
・お部屋のご見学は車で2~3件まとめて案内します!
・物件数3000件以上、新築戸建、リノベ物件も多数ご用意しております!
過去に販売していたお部屋の概要 このお部屋の販売は終了いたしました。
| 価格 | -万円 |
| 面積 | 48.84㎡ |
| 間取り | 2bedrooms(2LDK) |
| 管理費 | 月額12,200円 修繕積立金:月額12,800円 組合費:月額200円 |
| 所在階 | 9階 |
| お問い合わせ・ご内見のご予約はこちらからお気軽にどうぞ | |
間取りのご紹介です。2LDK、48.84㎡。
9階・東南向きにつき陽当り・眺望良好!
芝浦運河を臨めます。
室内は只今リノベーション工事中!
一足先に充実のリノベーション内容をご紹介いたします。
■フローリング、天井・壁、クロス
■洗面所、トイレ、CF
■システムキッチン(浄水機能付き)
■ユニットバス、洗面化粧台、ウォシュレット
■給湯器
■建具、下足入れ、網戸
■コスモスイッチ、照明器具、クリーニング、他
【内装工事終了予定:2015年10月下旬】
工事中のご紹介も可能です。
ご内見のご希望・ご質問などございましたら、お気軽にお問い合わせください♪



























































































































































































































